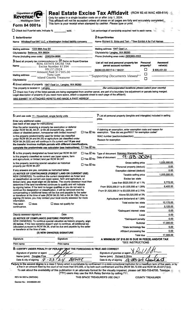
Property
Account |
| Property ID: | 334999 | Abbreviated Legal Description: | OLYMPIC GDNS LOT 8 BLK 2 SL-9 (N90.4'OF E150'OF LOT 8 BLK 2) EX PT TO CITY OF OH AF#86008419 |
| Geographic ID: | S7600-00-02809-0 | Agent Code: | |
| Type: | Real | | |
| Tax Area: | 100 - APPRAISER-OH Schl Dist, in OH | Land Use Code | 11 |
| Open Space: | N | DFL | N |
| Historic Property: | N | Remodel Property: | N |
| Multi-Family Redevelopment: | N | | |
| Township: | | Section: | |
| Range: | |
Location |
| Address: | 345 SE JEROME ST OAK HARBOR, WA 98277 | Mapsco: | |
| Neighborhood: | Cycle 1 | Map ID: | 89 |
| Neighborhood CD: | 1 |
Owner |
| Name: | JUHL, JOHN | Owner ID: | 279059 |
| Mailing Address: | 345 SE JEROME ST OAK HARBOR, WA 98277 | % Ownership: | 100.0000000000% |
| | | Exemptions: | |
Taxes and Assessment Details
Values
| (+) Improvement Homesite Value: | + | $0 | |
| (+) Improvement Non-Homesite Value: | + | $230,894 | |
| (+) Land Homesite Value: | + | $0 | |
| (+) Land Non-Homesite Value: | + | $185,000 | |
| (+) Curr Use (HS): | + | $0 | $0 |
| (+) Curr Use (NHS): | + | $0 | $0 |
| | | -------------------------- | |
| (=) Market Value: | = | $415,894 | |
| (–) Productivity Loss: | – | $0 | |
| | | -------------------------- | |
| (=) Subtotal: | = | $415,894 | |
| (+) Senior Appraised Value: | + | $0 | |
| (+) Non-Senior Appraised Value: | + | $415,894 | |
| | | -------------------------- | |
| (=) Total Appraised Value: | = | $415,894 | |
| (–) Senior Exemption Loss: | – | $0 | |
| (–) Exemption Loss: | – | $0 | |
| | | -------------------------- | |
| (=) Taxable Value: | = | $415,894 | |
Taxing Jurisdiction
| Owner: | JUHL, JOHN | | |
| % Ownership: | 100.0000000000% | | |
| Total Value: | $415,894 | | |
| Tax Area: | 100 - APPRAISER-OH Schl Dist, in OH |
| CF | Conservation Futures | 0.0316035091 | $415,894 | $415,894 | $13.14 | | |
| CEM1 | Cemetery #1 | 0.0040320932 | $415,894 | $415,894 | $1.68 | | |
| COH | City of Oak Harbor | 2.3001546061 | $415,894 | $415,894 | $956.62 | | |
| OAKBOND | City of Oak Harbor BOND | 0.1926904192 | $415,894 | $415,894 | $80.14 | | |
| HOBOND | Hospital BOND | 0.1910887512 | $415,894 | $415,894 | $79.47 | | |
| HOGEN | Hospital GEN | 0.3902502903 | $415,894 | $415,894 | $162.30 | | |
| CE | County Current Expense | 0.3708482477 | $415,894 | $415,894 | $154.23 | | |
| ISLANDEMS | Hospital GEN (EMS) | 0.5000000000 | $415,894 | $415,894 | $207.95 | | |
| LIB | Library Sno-Isle GEN | 0.3153421757 | $415,894 | $415,894 | $131.15 | | |
| NWHIDPRMT | P & R N Whidbey GEN | 0.2004466701 | $415,894 | $415,894 | $83.36 | | |
| SCH201MO | School 201 Enrichment | 1.8559231640 | $415,894 | $415,894 | $771.87 | | |
| ST | State School | 1.3035497053 | $415,894 | $415,894 | $542.14 | | |
| ST2 | State School Part 2 | 0.8169543533 | $415,894 | $415,894 | $339.77 | | |
| | Total Tax Rate: | 8.4728839852 | | | | | |
| | | | | Taxes w/Current Exemptions: | $3,523.82 | | |
| | | | | Taxes w/o Exemptions: | $3,523.82 | | |
Improvement / Building
| Improvement #1: | RESIDENTIAL | State Code: | Y | 1308.0 sqft | Value: | $230,894 |
| Bathrooms: | 1 | Bedrooms: | 3 | | Ceiling: | DRYWALL PAINTED | Exterior Wall/Cover: | VINYL | | Floor Covering: | CERAMIC TILE/HWD 40/60 | Floor Structure: | WOOD W/SUBFLOOR | | Foundation: | CONCRETE BLOCKS | Heating: | FHA ELECTRIC | | Interior Finish: | DRYWALL PAINT | Plumbing Fixture Cnt: | 6 | | Roof Slope: | 8" IN 12" | Roof Structure/Cover: | CJ ASPHALT |
|
| | Type | Description | Class CD | Sub Class CD | Year Built | Area |
| | BAS | BASE/MAIN FLOOR | 3 | 0 | 1949 | 988.0 |
| | UPH | HALF STORY | 3 | 0 | 1949 | 320.0 |
| | DGR | DETACHED GARAGE | 3 | 0 | 1949 | 672.0 |
Sketch
Property Image
Land
| 1 | 15 | SQ (12001-21780) | 0.3000 | 13068.00 | 0.00 | 0.00 | 1.00 | $185,000 | $0 |
Roll Value History
| 2026 | N/A | N/A | N/A | N/A | N/A |
| 2025 | $230,894 | $185,000 | $0 | $415,894 | $415,894 |
| 2024 | $234,047 | $175,000 | $0 | $409,047 | $409,047 |
| 2023 | $227,742 | $180,000 | $0 | $407,742 | $407,742 |
| 2022 | $209,074 | $180,000 | $0 | $389,074 | $389,074 |
| 2021 | $184,289 | $125,000 | $0 | $309,289 | $309,289 |
| 2020 | $180,245 | $100,000 | $0 | $280,245 | $280,245 |
| 2019 | $132,234 | $140,000 | $0 | $272,234 | $272,234 |
| 2018 | $132,667 | $125,000 | $0 | $257,667 | $257,667 |
| 2017 | $117,522 | $110,000 | $0 | $227,522 | $227,522 |
| 2016 | $119,277 | $90,000 | $0 | $209,277 | $209,277 |
| 2015 | $121,030 | $70,000 | $0 | $191,030 | $191,030 |
| 2014 | $122,784 | $55,000 | $0 | $177,784 | $177,784 |
| 2013 | $124,537 | $55,000 | $0 | $179,537 | $179,537 |
| 2012 | $126,293 | $60,000 | $0 | $186,293 | $186,293 |
| 2011 | $127,101 | $50,000 | $0 | $177,101 | $177,101 |
| 2010 | $137,311 | $50,000 | $0 | $187,311 | $187,311 |
| 2009 | $148,717 | $60,000 | $0 | $208,717 | $208,717 |
| 2008 | $149,236 | $75,000 | $0 | $224,236 | $224,236 |
| 2007 | $151,413 | $75,000 | $0 | $226,413 | $226,413 |
Deed and Sales History
| 1 | 10/09/2019 | QCD | Quit Claim Deed | COOK, DACOTAH A | JUHL, JOHN | | | $0.00 | 40682 | 4473301 |
| 2 | 03/16/2017 | WD | Warranty Deed | COOK, MICHELLE J | JUHL, JOHN | | | $190,500.00 | 28548 | 4419368 |
| 3 | 09/05/2014 | SPWARDEED | Special Warranty Deed | SECRETARY OF HOUSING & URBAN DEVELOPMENT | COOK, MICHELLE J | | | $126,660.00 | 16750 | 4365313 |
| 4 | 06/14/2013 | WD | Warranty Deed | WELLS FARGO BANK NA | SECRETARY OF HOUSING & URBAN DEVELOPMENT | | | $249,579.00 | 14374 | 4355665 |
| 5 | 04/25/2013 | TRUSTEED | Trustee's Deed | BURBANK JTWROS, JERRED L | WELLS FARGO BANK NA | | | $249,579.00 | 11133 | 4338627 |
| 6 | 03/15/2007 | WD | Warranty Deed | ADAMS, NICHOLAS W | BURBANK JTWROS, JERRED L | | | $221,050.00 | 71006 | 4197849 |
| 7 | 07/20/2005 | WD | Warranty Deed | WHITNEY, KELLY K | ADAMS, NICHOLAS W | | | $179,000.00 | 53519 | 4141512 |
| 8 | 06/01/1982 | OTHER | Other - Misc. Documents | WHITNEY, MICHAEL L | WHITNEY, KELLY K | | | $0.00 | 22343 | 401147 |
| 9 | 01/01/1900 | OTHER | Other - Misc. Documents | Unknown | WHITNEY, MICHAEL L | | | $0.00 | 0 | 0 |
Payout Agreement
| No payout information available.. |