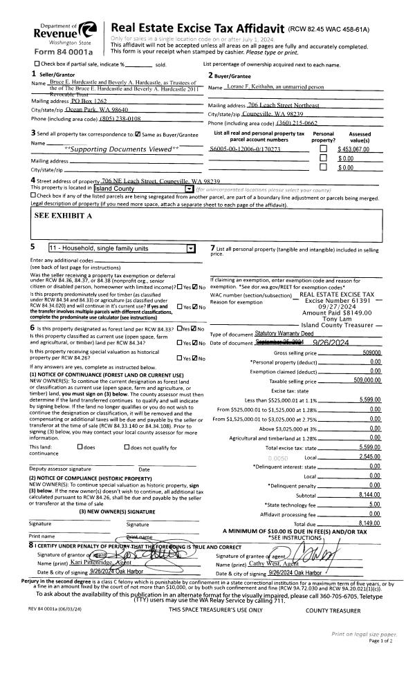
Property
Account |
| Property ID: | 335006 | Abbreviated Legal Description: | OLYMPIC GDNS 10-W175'OF E325'OF LOT 8 BLK 2 EX S110'OF W60' EX E25'OF S180.8' EX S120'OF E60'OF W120' |
| Geographic ID: | S7600-00-02810-0 | Agent Code: | |
| Type: | Real | | |
| Tax Area: | 100 - APPRAISER-OH Schl Dist, in OH | Land Use Code | 11 |
| Open Space: | N | DFL | N |
| Historic Property: | N | Remodel Property: | N |
| Multi-Family Redevelopment: | N | | |
| Township: | | Section: | |
| Range: | |
Location |
| Address: | 924 SE 4TH AVE OAK HARBOR, WA 98277 | Mapsco: | |
| Neighborhood: | Cycle 1 | Map ID: | 89 |
| Neighborhood CD: | 1 |
Owner |
| Name: | FIKSE TTEE, DAVID GILBERT | Owner ID: | 311476 |
| Mailing Address: | JANE MARLENE FIKSE TTEE 924 SW 4TH AVE OAK HARBOR, WA 98277 | % Ownership: | 100.0000000000% |
| | | Exemptions: | |
Taxes and Assessment Details
Values
| (+) Improvement Homesite Value: | + | $0 | |
| (+) Improvement Non-Homesite Value: | + | $401,435 | |
| (+) Land Homesite Value: | + | $0 | |
| (+) Land Non-Homesite Value: | + | $190,000 | |
| (+) Curr Use (HS): | + | $0 | $0 |
| (+) Curr Use (NHS): | + | $0 | $0 |
| | | -------------------------- | |
| (=) Market Value: | = | $591,435 | |
| (–) Productivity Loss: | – | $0 | |
| | | -------------------------- | |
| (=) Subtotal: | = | $591,435 | |
| (+) Senior Appraised Value: | + | $0 | |
| (+) Non-Senior Appraised Value: | + | $591,435 | |
| | | -------------------------- | |
| (=) Total Appraised Value: | = | $591,435 | |
| (–) Senior Exemption Loss: | – | $0 | |
| (–) Exemption Loss: | – | $0 | |
| | | -------------------------- | |
| (=) Taxable Value: | = | $591,435 | |
Taxing Jurisdiction
| Owner: | FIKSE TTEE, DAVID GILBERT | | |
| % Ownership: | 100.0000000000% | | |
| Total Value: | $591,435 | | |
| Tax Area: | 100 - APPRAISER-OH Schl Dist, in OH |
| CF | Conservation Futures | 0.0316035091 | $591,435 | $591,435 | $18.69 | | |
| CEM1 | Cemetery #1 | 0.0040320932 | $591,435 | $591,435 | $2.38 | | |
| COH | City of Oak Harbor | 2.3001546061 | $591,435 | $591,435 | $1,360.39 | | |
| OAKBOND | City of Oak Harbor BOND | 0.1926904192 | $591,435 | $591,435 | $113.96 | | |
| HOBOND | Hospital BOND | 0.1910887512 | $591,435 | $591,435 | $113.02 | | |
| HOGEN | Hospital GEN | 0.3902502903 | $591,435 | $591,435 | $230.81 | | |
| CE | County Current Expense | 0.3708482477 | $591,435 | $591,435 | $219.33 | | |
| ISLANDEMS | Hospital GEN (EMS) | 0.5000000000 | $591,435 | $591,435 | $295.72 | | |
| LIB | Library Sno-Isle GEN | 0.3153421757 | $591,435 | $591,435 | $186.50 | | |
| NWHIDPRMT | P & R N Whidbey GEN | 0.2004466701 | $591,435 | $591,435 | $118.55 | | |
| SCH201MO | School 201 Enrichment | 1.8559231640 | $591,435 | $591,435 | $1,097.66 | | |
| ST | State School | 1.3035497053 | $591,435 | $591,435 | $770.96 | | |
| ST2 | State School Part 2 | 0.8169543533 | $591,435 | $591,435 | $483.18 | | |
| | Total Tax Rate: | 8.4728839852 | | | | | |
| | | | | Taxes w/Current Exemptions: | $5,011.15 | | |
| | | | | Taxes w/o Exemptions: | $5,011.15 | | |
Improvement / Building
| Improvement #1: | RESIDENTIAL | State Code: | Y | 2451.8 sqft | Value: | $401,435 |
| Bathrooms: | 2 | Bedrooms: | 4 | | Ceiling: | DRYWALL PAINTED | Exterior Wall/Cover: | PLY/HARDBOARD T-111 | | Floor Covering: | HARDWOOD/CARP 60-40 | Floor Structure: | WOOD W/SUBFLOOR | | Foundation: | CONCRETE | Heating: | FHA GAS | | Interior Finish: | DRYWALL PAINT | Plumbing Fixture Cnt: | 10 | | Roof Slope: | 4" IN 12" | Roof Structure/Cover: | CJ ASPHALT |
|
| | Type | Description | Class CD | Sub Class CD | Year Built | Area |
| | BAS | BASE/MAIN FLOOR | 3 | 0 | 1974 | 2451.8 |
| | AGR | ATTACHED GARAGE | 3 | 0 | 1974 | 468.0 |
| | OWP | OPEN WOOD PORCH W/STEPS | 3 | 0 | 1974 | 518.0 |
| | OWP | OPEN WOOD PORCH W/STEPS | 3 | 0 | 1974 | 181.4 |
| | DGR | DETACHED GARAGE | 3 | 0 | 1974 | 768.0 |
| | OP4 | OPEN PORCH W/CEILING-ROOF | 3 | 0 | 1974 | 48.0 |
Sketch
Property Image
Land
| 1 | 16 | AC (00.51-01.00) | 0.6400 | 27878.40 | 0.00 | 0.00 | 1.00 | $190,000 | $0 |
Roll Value History
| 2026 | N/A | N/A | N/A | N/A | N/A |
| 2025 | $401,435 | $190,000 | $0 | $591,435 | $591,435 |
| 2024 | $406,631 | $175,000 | $0 | $581,631 | $581,631 |
| 2023 | $390,711 | $180,000 | $0 | $570,711 | $570,711 |
| 2022 | $358,486 | $180,000 | $0 | $538,486 | $538,486 |
| 2021 | $315,828 | $125,000 | $0 | $440,828 | $440,828 |
| 2020 | $308,776 | $100,000 | $0 | $408,776 | $408,776 |
| 2019 | $241,159 | $150,000 | $0 | $391,159 | $391,159 |
| 2018 | $241,919 | $125,000 | $0 | $366,919 | $366,919 |
| 2017 | $225,050 | $110,000 | $0 | $335,050 | $335,050 |
| 2016 | $228,012 | $90,000 | $0 | $318,012 | $318,012 |
| 2015 | $230,973 | $70,000 | $0 | $300,973 | $300,973 |
| 2014 | $233,933 | $65,000 | $0 | $298,933 | $298,933 |
| 2013 | $236,895 | $65,000 | $0 | $301,895 | $301,895 |
| 2012 | $239,855 | $65,000 | $0 | $304,855 | $304,855 |
| 2011 | $232,859 | $65,000 | $0 | $297,859 | $297,859 |
| 2010 | $241,262 | $65,000 | $0 | $306,262 | $306,262 |
| 2009 | $251,037 | $75,000 | $0 | $326,037 | $326,037 |
| 2008 | $254,025 | $78,000 | $0 | $332,025 | $332,025 |
| 2007 | $257,019 | $78,000 | $0 | $335,019 | $335,019 |
Deed and Sales History
| 1 | 12/19/2023 | QCD | Quit Claim Deed | FIKSE, DAVID D | FIKSE TTEE, DAVID GILBERT | | | $10.00 | 59251 | 4569603 |
| 2 | 10/01/1979 | WD | Warranty Deed | BOWERS, JAMES B | FIKSE, DAVID D | | | $60,850.00 | 95284 | 361127 |
| 3 | 01/01/1900 | OTHER | Other - Misc. Documents | Unknown | BOWERS, JAMES B | | | $0.00 | 0 | 0 |
Payout Agreement
| No payout information available.. |