Property
Account |
| Property ID: | 335694 | Abbreviated Legal Description: | OLY MAR VW 3 LOT 64 |
| Geographic ID: | S7605-03-00064-0 | Agent Code: | |
| Type: | Real | | |
| Tax Area: | 810 - APPRAISER-S Whid Schl Dist, Diking District#1, improved & 1 acre or less | Land Use Code | 11 |
| Open Space: | N | DFL | N |
| Historic Property: | N | Remodel Property: | N |
| Multi-Family Redevelopment: | N | | |
| Township: | | Section: | |
| Range: | |
Location |
| Address: | 6191 BLUE HAVEN WAY CLINTON, WA 98236 | Mapsco: | |
| Neighborhood: | Cycle 4 | Map ID: | 790 |
| Neighborhood CD: | 4 |
Owner |
| Name: | GREENBERG TRUSTEE, JOEL H | Owner ID: | 283036 |
| Mailing Address: | LINDA E BERG TUSTEE 6191 BLUE HAVEN WAY CLINTON, WA 98236 | % Ownership: | 100.0000000000% |
| | | Exemptions: | |
Taxes and Assessment Details
Values
| (+) Improvement Homesite Value: | + | $0 | |
| (+) Improvement Non-Homesite Value: | + | $367,120 | |
| (+) Land Homesite Value: | + | $0 | |
| (+) Land Non-Homesite Value: | + | $400,000 | |
| (+) Curr Use (HS): | + | $0 | $0 |
| (+) Curr Use (NHS): | + | $0 | $0 |
| | | -------------------------- | |
| (=) Market Value: | = | $767,120 | |
| (–) Productivity Loss: | – | $0 | |
| | | -------------------------- | |
| (=) Subtotal: | = | $767,120 | |
| (+) Senior Appraised Value: | + | $0 | |
| (+) Non-Senior Appraised Value: | + | $767,120 | |
| | | -------------------------- | |
| (=) Total Appraised Value: | = | $767,120 | |
| (–) Senior Exemption Loss: | – | $0 | |
| (–) Exemption Loss: | – | $0 | |
| | | -------------------------- | |
| (=) Taxable Value: | = | $767,120 | |
Taxing Jurisdiction
| Owner: | GREENBERG TRUSTEE, JOEL H | | |
| % Ownership: | 100.0000000000% | | |
| Total Value: | $767,120 | | |
| Tax Area: | 810 - APPRAISER-S Whid Schl Dist, Diking District#1, improved & 1 acre or less |
| CF | Conservation Futures | 0.0316035091 | $767,120 | $767,120 | $24.24 | | |
| FIRE3 | Fire & Rescue Dist #3 S Whidbey GEN | 1.2004855531 | $767,120 | $767,120 | $920.92 | | |
| HOBOND | Hospital BOND | 0.1910887512 | $767,120 | $767,120 | $146.59 | | |
| HOGEN | Hospital GEN | 0.3902502903 | $767,120 | $767,120 | $299.37 | | |
| CE | County Current Expense | 0.3708482477 | $767,120 | $767,120 | $284.49 | | |
| CR | County Roads | 0.4584763726 | $767,120 | $767,120 | $351.71 | | |
| ISLANDEMS | Hospital GEN (EMS) | 0.5000000000 | $767,120 | $767,120 | $383.56 | | |
| LIB | Library Sno-Isle GEN | 0.3153421757 | $767,120 | $767,120 | $241.91 | | |
| PORTWHID | Port of S Whidbey GEN | 0.1094540357 | $767,120 | $767,120 | $83.96 | | |
| SCH206BOND | School 206 BOND | 0.3161759235 | $767,120 | $767,120 | $242.54 | | |
| SCH206MO | School 206 Enrichment | 0.4547169547 | $767,120 | $767,120 | $348.82 | | |
| ST | State School | 1.3035497053 | $767,120 | $767,120 | $999.98 | | |
| ST2 | State School Part 2 | 0.8169543533 | $767,120 | $767,120 | $626.70 | | |
| SWHIDPRBD | P & R S Whidbey BOND | 0.0152817568 | $767,120 | $767,120 | $11.72 | | |
| SWHIDPRBD2 | P & R S Whidbey BOND2 | 0.0138911264 | $767,120 | $767,120 | $10.66 | | |
| SWHIDPRMT | P & R S Whidbey GEN | 0.2053334452 | $767,120 | $767,120 | $157.52 | | |
| | Total Tax Rate: | 6.6934522006 | | | | | |
| | | | | Taxes w/Current Exemptions: | $5,134.69 | | |
| | | | | Taxes w/o Exemptions: | $5,134.69 | | |
Improvement / Building
| Improvement #1: | RESIDENTIAL | State Code: | Y | 2105.8 sqft | Value: | $367,120 |
| Bathrooms: | 2.5 | Bedrooms: | 2 | | Ceiling: | DRYWALL PAINTED | Cooling: | HEAT PUMP/CONV/V | | Exterior Wall/Cover: | PLY/HARDBOARD T-111 | Floor Covering: | CERAMIC TILE/HWD 40/60 | | Floor Structure: | WOOD W/SUBFLOOR | Foundation: | CONCRETE | | Interior Finish: | DRYWALL PAINT | Plumbing Fixture Cnt: | 15 | | Roof Slope: | 3" IN 12" | Roof Structure/Cover: | CJ ASPHALT |
|
| | Type | Description | Class CD | Sub Class CD | Year Built | Area |
| | BAS | BASE/MAIN FLOOR | 3 | 0 | 1996 | 2105.8 |
| | OP4 | OPEN PORCH W/CEILING-ROOF | 3 | 0 | 1996 | 105.0 |
| | AGR | ATTACHED GARAGE | 3 | 0 | 1996 | 410.0 |
| | UTY | STORAGE/UTILITY | 3 | 0 | 1996 | 96.0 |
Sketch
Property Image
Land
| 1 | 14 | SQ (08001-12000) | 0.0000 | 0.00 | 0.00 | 0.00 | 1.00 | $400,000 | $0 |
Roll Value History
| 2026 | N/A | N/A | N/A | N/A | N/A |
| 2025 | $367,120 | $400,000 | $0 | $767,120 | $767,120 |
| 2024 | $371,751 | $380,000 | $0 | $751,751 | $751,751 |
| 2023 | $376,383 | $360,000 | $0 | $736,383 | $270,003 |
| 2022 | $345,007 | $330,000 | $0 | $675,007 | $605,007 |
| 2021 | $303,654 | $280,000 | $0 | $583,654 | $583,654 |
| 2020 | $285,120 | $250,000 | $0 | $535,120 | $535,120 |
| 2019 | $212,272 | $290,000 | $0 | $502,272 | $502,272 |
| 2018 | $212,918 | $180,000 | $0 | $392,918 | $392,918 |
| 2017 | $201,553 | $180,000 | $0 | $381,553 | $381,553 |
| 2016 | $203,982 | $180,000 | $0 | $383,982 | $383,982 |
| 2015 | $206,410 | $170,000 | $0 | $376,410 | $376,410 |
| 2014 | $211,822 | $170,000 | $0 | $381,822 | $381,822 |
| 2013 | $214,352 | $170,000 | $0 | $384,352 | $384,352 |
| 2012 | $216,879 | $170,000 | $0 | $386,879 | $386,879 |
| 2011 | $219,407 | $200,000 | $0 | $419,407 | $419,407 |
| 2010 | $229,322 | $200,000 | $0 | $429,322 | $429,322 |
| 2009 | $239,354 | $250,000 | $0 | $489,354 | $489,354 |
| 2008 | $238,052 | $240,000 | $0 | $478,052 | $478,052 |
| 2007 | $241,273 | $230,000 | $0 | $471,273 | $471,273 |
Deed and Sales History
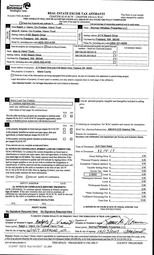
| 1 | 11/09/2017 | QCD | Quit Claim Deed | GREENBERG, JOEL HERSHEL | GREENBERG TRUSTEE, JOEL H | | | $0.00 | 32033 | 4434703 |
| 2 | 05/12/2017 | WD | Warranty Deed | SCHMIDT, JEAN | GREENBERG, JOEL HERSHEL | | | $519,000.00 | 29339 | 4422740 |
| 3 | 07/20/2012 | TRUSTEED | Trustee's Deed | SCHMIDT TRUSTEE, JEAN | SCHMIDT, JEAN | | | $200,000.00 | 8214 | 4319220 |
| 4 | 01/27/2012 | PRD | Personal Representatives Deed | SCHMIDT, JEAN | SCHMIDT TRUSTEE, JEAN | | | $0.00 | 6912 | 4310227 |
| 5 | 11/10/2011 | TOD | Transfer On Death Deed | SCHMIDT, MARTIN / JEAN | SCHMIDT, JEAN | | | | 82212 | |
| 6 | 10/01/1997 | WD | Warranty Deed | SZEGIET, HANS & | SCHMIDT, MARTIN/JEAN | | | $235,000.00 | 335694 | 97017592 |
| 7 | 04/01/1996 | WD | Warranty Deed | ZELLER, HEINZ & | SZEGIET, HANS & | | | $55,500.00 | 61227 | 96006269 |
| 8 | 01/01/1900 | OTHER | Other - Misc. Documents | Unknown | ZELLER, HEINZ & | | | $0.00 | 0 | 0 |
Payout Agreement
| No payout information available.. |