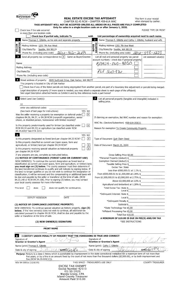
Property
Account |
| Property ID: | 335854 | Abbreviated Legal Description: | OLY MAR VW 3 LOT 79 |
| Geographic ID: | S7605-03-00079-0 | Agent Code: | |
| Type: | Real | | |
| Tax Area: | 810 - APPRAISER-S Whid Schl Dist, Diking District#1, improved & 1 acre or less | Land Use Code | 11 |
| Open Space: | N | DFL | N |
| Historic Property: | N | Remodel Property: | N |
| Multi-Family Redevelopment: | N | | |
| Township: | | Section: | |
| Range: | |
Location |
| Address: | 6187 BLUE HAVEN WAY CLINTON, WA 98236 | Mapsco: | |
| Neighborhood: | Cycle 4 | Map ID: | 790 |
| Neighborhood CD: | 4 |
Owner |
| Name: | HEPP, NANCY A | Owner ID: | 292776 |
| Mailing Address: | 6187 BLUE HAVEN WAY CLINTON, WA 98236 | % Ownership: | 100.0000000000% |
| | | Exemptions: | |
Taxes and Assessment Details
Values
| (+) Improvement Homesite Value: | + | $0 | |
| (+) Improvement Non-Homesite Value: | + | $264,578 | |
| (+) Land Homesite Value: | + | $0 | |
| (+) Land Non-Homesite Value: | + | $250,000 | |
| (+) Curr Use (HS): | + | $0 | $0 |
| (+) Curr Use (NHS): | + | $0 | $0 |
| | | -------------------------- | |
| (=) Market Value: | = | $514,578 | |
| (–) Productivity Loss: | – | $0 | |
| | | -------------------------- | |
| (=) Subtotal: | = | $514,578 | |
| (+) Senior Appraised Value: | + | $0 | |
| (+) Non-Senior Appraised Value: | + | $514,578 | |
| | | -------------------------- | |
| (=) Total Appraised Value: | = | $514,578 | |
| (–) Senior Exemption Loss: | – | $0 | |
| (–) Exemption Loss: | – | $0 | |
| | | -------------------------- | |
| (=) Taxable Value: | = | $514,578 | |
Taxing Jurisdiction
| Owner: | HEPP, NANCY A | | |
| % Ownership: | 100.0000000000% | | |
| Total Value: | $514,578 | | |
| Tax Area: | 810 - APPRAISER-S Whid Schl Dist, Diking District#1, improved & 1 acre or less |
| CF | Conservation Futures | 0.0316035091 | $514,578 | $514,578 | $16.26 | | |
| FIRE3 | Fire & Rescue Dist #3 S Whidbey GEN | 1.2004855531 | $514,578 | $514,578 | $617.74 | | |
| HOBOND | Hospital BOND | 0.1910887512 | $514,578 | $514,578 | $98.33 | | |
| HOGEN | Hospital GEN | 0.3902502903 | $514,578 | $514,578 | $200.81 | | |
| CE | County Current Expense | 0.3708482477 | $514,578 | $514,578 | $190.83 | | |
| CR | County Roads | 0.4584763726 | $514,578 | $514,578 | $235.92 | | |
| ISLANDEMS | Hospital GEN (EMS) | 0.5000000000 | $514,578 | $514,578 | $257.29 | | |
| LIB | Library Sno-Isle GEN | 0.3153421757 | $514,578 | $514,578 | $162.27 | | |
| PORTWHID | Port of S Whidbey GEN | 0.1094540357 | $514,578 | $514,578 | $56.32 | | |
| SCH206BOND | School 206 BOND | 0.3161759235 | $514,578 | $514,578 | $162.70 | | |
| SCH206MO | School 206 Enrichment | 0.4547169547 | $514,578 | $514,578 | $233.99 | | |
| ST | State School | 1.3035497053 | $514,578 | $514,578 | $670.78 | | |
| ST2 | State School Part 2 | 0.8169543533 | $514,578 | $514,578 | $420.39 | | |
| SWHIDPRBD | P & R S Whidbey BOND | 0.0152817568 | $514,578 | $514,578 | $7.86 | | |
| SWHIDPRBD2 | P & R S Whidbey BOND2 | 0.0138911264 | $514,578 | $514,578 | $7.15 | | |
| SWHIDPRMT | P & R S Whidbey GEN | 0.2053334452 | $514,578 | $514,578 | $105.66 | | |
| | Total Tax Rate: | 6.6934522006 | | | | | |
| | | | | Taxes w/Current Exemptions: | $3,444.30 | | |
| | | | | Taxes w/o Exemptions: | $3,444.30 | | |
Improvement / Building
| Improvement #1: | RESIDENTIAL | State Code: | Y | 1407.5 sqft | Value: | $264,578 |
| Bathrooms: | 1.75 | Bedrooms: | 2 | | Ceiling: | DRYWALL PAINTED | Exterior Wall/Cover: | CEMENT FIBER | | Floor Covering: | HARDWOOD 100% | Floor Structure: | WOOD W/SUBFLOOR | | Foundation: | CONCRETE | Heating: | WALL HEAT ELECTRIC | | Interior Finish: | DRYWALL PAINT | Plumbing Fixture Cnt: | 9 | | Roof Slope: | 4" IN 12" | Roof Structure/Cover: | CJ ASPHALT |
|
| | Type | Description | Class CD | Sub Class CD | Year Built | Area |
| | BAS | BASE/MAIN FLOOR | 3 | 0 | 2003 | 1407.5 |
| | OP4 | OPEN PORCH W/CEILING-ROOF | 3 | 0 | 2003 | 37.5 |
| | AGR | ATTACHED GARAGE | 3 | 0 | 2003 | 264.0 |
| | OWP | OPEN WOOD PORCH W/STEPS | 3 | 0 | 2003 | 60.0 |
Sketch
Property Image
Land
| 1 | 13 | SQ (06001-08000) | 0.0000 | 0.00 | 0.00 | 0.00 | 1.00 | $250,000 | $0 |
Roll Value History
| 2026 | N/A | N/A | N/A | N/A | N/A |
| 2025 | $264,578 | $250,000 | $0 | $514,578 | $514,578 |
| 2024 | $267,681 | $240,000 | $0 | $507,681 | $507,681 |
| 2023 | $270,785 | $240,000 | $0 | $510,785 | $510,785 |
| 2022 | $248,009 | $210,000 | $0 | $458,009 | $458,009 |
| 2021 | $218,098 | $150,000 | $0 | $368,098 | $368,098 |
| 2020 | $189,721 | $180,000 | $0 | $369,721 | $369,721 |
| 2019 | $136,888 | $225,000 | $0 | $361,888 | $361,888 |
| 2018 | $137,285 | $130,000 | $0 | $267,285 | $267,285 |
| 2017 | $138,079 | $120,000 | $0 | $258,079 | $258,079 |
| 2016 | $139,666 | $120,000 | $0 | $259,666 | $259,666 |
| 2015 | $141,252 | $120,000 | $0 | $261,252 | $261,252 |
| 2014 | $142,886 | $106,250 | $0 | $249,136 | $249,136 |
| 2013 | $144,486 | $106,250 | $0 | $250,736 | $250,736 |
| 2012 | $146,084 | $106,250 | $0 | $252,334 | $252,334 |
| 2011 | $147,684 | $125,000 | $0 | $272,684 | $272,684 |
| 2010 | $151,133 | $125,000 | $0 | $276,133 | $276,133 |
| 2009 | $157,512 | $150,000 | $0 | $307,512 | $307,512 |
| 2008 | $165,621 | $140,000 | $0 | $305,621 | $305,621 |
| 2007 | $165,751 | $130,000 | $0 | $295,751 | $295,751 |
Deed and Sales History
| 1 | 11/22/2019 | WD | Warranty Deed | MORROW, SALLY | HEPP, NANCY A | | | $370,000.00 | 41339 | 4476833 |
| 2 | 09/19/2002 | ESTSEPPROP | Establish Separate Property | MORROW, SALLY | MORROW, SALLY | | | $0.00 | 23737 | 4031711 |
| 3 | 09/18/2002 | WD | Warranty Deed | STUBBS, WILLIS E | MORROW, SALLY | | | $39,900.00 | 23736 | 4031710 |
| 4 | 05/01/1994 | TRUSTEED | Trustee's Deed | HEBIG-NAFF, KATHLEEN J | STUBBS, WILLIS E | | | $0.00 | 42256 | 94012756 |
| 5 | 04/01/1990 | WD | Warranty Deed | HEBIG-NAFF, KATHLEEN J | HEBIG-NAFF, KATHLEEN J | | | $24,500.00 | 2143 | 90006949 |
| 6 | 04/01/1990 | QCD | Quit Claim Deed | COTTER, RICHARD A | HEBIG-NAFF, KATHLEEN J | | | $0.00 | 2142 | 90006948 |
| 7 | 01/01/1900 | OTHER | Other - Misc. Documents | Unknown | COTTER, RICHARD A | | | $0.00 | 0 | 0 |
Payout Agreement
| No payout information available.. |