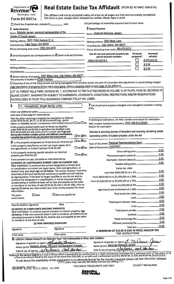
Property
Account |
| Property ID: | 336087 | Abbreviated Legal Description: | ONAMAC LOT 7 |
| Geographic ID: | S7610-00-00007-0 | Agent Code: | |
| Type: | Real | | |
| Tax Area: | 510 - APPRAISER-Stan/Cam Schl Dist, improved & 1 acre or less | Land Use Code | 11 |
| Open Space: | N | DFL | N |
| Historic Property: | N | Remodel Property: | N |
| Multi-Family Redevelopment: | N | | |
| Township: | | Section: | |
| Range: | |
Location |
| Address: | 767 COMMODORE LN CAMANO ISLAND, WA 98282 | Mapsco: | |
| Neighborhood: | Cycle 5 | Map ID: | 467 |
| Neighborhood CD: | 5 |
Owner |
| Name: | VINCENT, HEATHER LOUISE | Owner ID: | 299586 |
| Mailing Address: | RONALD G MASON JR 767 COMMODORE LN CAMANO ISLAND, WA 98282 | % Ownership: | 100.0000000000% |
| | | Exemptions: | |
Taxes and Assessment Details
Values
| (+) Improvement Homesite Value: | + | $350,729 | |
| (+) Improvement Non-Homesite Value: | + | $0 | |
| (+) Land Homesite Value: | + | $230,000 | |
| (+) Land Non-Homesite Value: | + | $0 | |
| (+) Curr Use (HS): | + | $0 | $0 |
| (+) Curr Use (NHS): | + | $0 | $0 |
| | | -------------------------- | |
| (=) Market Value: | = | $580,729 | |
| (–) Productivity Loss: | – | $0 | |
| | | -------------------------- | |
| (=) Subtotal: | = | $580,729 | |
| (+) Senior Appraised Value: | + | $0 | |
| (+) Non-Senior Appraised Value: | + | $580,729 | |
| | | -------------------------- | |
| (=) Total Appraised Value: | = | $580,729 | |
| (–) Senior Exemption Loss: | – | $0 | |
| (–) Exemption Loss: | – | $0 | |
| | | -------------------------- | |
| (=) Taxable Value: | = | $580,729 | |
Taxing Jurisdiction
| Owner: | VINCENT, HEATHER LOUISE | | |
| % Ownership: | 100.0000000000% | | |
| Total Value: | $580,729 | | |
| Tax Area: | 510 - APPRAISER-Stan/Cam Schl Dist, improved & 1 acre or less |
| CF | Conservation Futures | 0.0316035091 | $580,729 | $580,729 | $18.35 | | |
| EMS1 | Fire & Rescue Dist #1 Camano GEN (EMS) | 0.3677864386 | $580,729 | $580,729 | $213.58 | | |
| FIRE1 | Fire & Rescue Dist #1 Camano GEN | 1.2502910536 | $580,729 | $580,729 | $726.08 | | |
| FIRE1BOND | Fire & Rescue Dist #1 Camano BOND | 0.1570001679 | $580,729 | $580,729 | $91.17 | | |
| CE | County Current Expense | 0.3708482477 | $580,729 | $580,729 | $215.36 | | |
| CR | County Roads | 0.4584763726 | $580,729 | $580,729 | $266.25 | | |
| LCIB | Library Sno-Isle BOND (Camano Island) | 0.0396325772 | $580,729 | $580,729 | $23.02 | | |
| LIB | Library Sno-Isle GEN | 0.3153421757 | $580,729 | $580,729 | $183.13 | | |
| SCH205_401 | School 205-401 Enrichment | 1.2698420524 | $580,729 | $580,729 | $737.43 | | |
| SCH205BOND | School 205-401 BOND | 0.9396497583 | $580,729 | $580,729 | $545.68 | | |
| ST | State School | 1.3035497053 | $580,729 | $580,729 | $757.01 | | |
| ST2 | State School Part 2 | 0.8169543533 | $580,729 | $580,729 | $474.43 | | |
| | Total Tax Rate: | 7.3209764117 | | | | | |
| | | | | Taxes w/Current Exemptions: | $4,251.49 | | |
| | | | | Taxes w/o Exemptions: | $4,251.49 | | |
Improvement / Building
| Improvement #1: | RESIDENTIAL | State Code: | Y | 1655.9 sqft | Value: | $350,729 |
| Bathrooms: | 2 | Bedrooms: | 2 | | Ceiling: | DRYWALL PAINTED | Cooling: | HEAT PUMP/CONV/V | | Exterior Wall/Cover: | PLY/HARDBOARD T-111 | Floor Covering: | HARDWOOD/CARP 20-80 | | Floor Structure: | WOOD W/SUBFLOOR | Foundation: | CONCRETE | | Interior Finish: | DRYWALL PAINT | Plumbing Fixture Cnt: | 11 | | Roof Slope: | 4" IN 12" | Roof Structure/Cover: | CJ ASPHALT |
|
| | Type | Description | Class CD | Sub Class CD | Year Built | Area |
| | BAS | BASE/MAIN FLOOR | 3 | 0 | 1990 | 1655.9 |
| | OP1 | OPEN PORCH SLAB | 3 | 0 | 1990 | 137.0 |
| | AGR | ATTACHED GARAGE | 3 | 0 | 1990 | 552.0 |
| | OWP | OPEN WOOD PORCH W/STEPS | 3 | 0 | 1990 | 504.0 |
| | OWC | OPEN WOOD PORCH W/STEPS/ROOF/C | 3 | 0 | 1990 | 86.3 |
Sketch
Property Image
Land
| 1 | 14 | SQ (08001-12000) | 0.0000 | 0.00 | 0.00 | 0.00 | 1.00 | $230,000 | $0 |
Roll Value History
| 2026 | N/A | N/A | N/A | N/A | N/A |
| 2025 | $350,729 | $230,000 | $0 | $580,729 | $580,729 |
| 2024 | $354,748 | $230,000 | $0 | $584,748 | $584,748 |
| 2023 | $358,769 | $230,000 | $0 | $588,769 | $588,769 |
| 2022 | $327,608 | $200,000 | $0 | $527,608 | $527,608 |
| 2021 | $257,184 | $160,000 | $0 | $417,184 | $417,184 |
| 2020 | $250,465 | $140,000 | $0 | $390,465 | $90,601 |
| 2019 | $182,422 | $140,000 | $0 | $322,422 | $90,601 |
| 2018 | $182,972 | $110,000 | $0 | $292,972 | $90,601 |
| 2017 | $184,059 | $100,000 | $0 | $284,059 | $90,601 |
| 2016 | $186,250 | $90,000 | $0 | $276,250 | $90,601 |
| 2015 | $161,503 | $65,000 | $0 | $226,503 | $90,601 |
| 2014 | $163,617 | $65,000 | $0 | $228,617 | $228,617 |
| 2013 | $165,728 | $41,600 | $0 | $207,328 | $207,328 |
| 2012 | $167,841 | $41,600 | $0 | $209,441 | $209,441 |
| 2011 | $169,954 | $52,000 | $0 | $221,954 | $221,954 |
| 2010 | $178,095 | $52,000 | $0 | $230,095 | $230,095 |
| 2009 | $180,939 | $90,000 | $0 | $270,939 | $270,939 |
| 2008 | $183,179 | $96,897 | $0 | $280,076 | $280,076 |
| 2007 | $185,470 | $96,840 | $0 | $282,310 | $282,310 |
Deed and Sales History
| 1 | 05/13/2021 | WD | Warranty Deed | EISENMAN, LEONA M | VINCENT, HEATHER LOUISE | | | $525,000.00 | 48418 | 4520359 |
| 2 | 09/02/2014 | WD | Warranty Deed | SHORE, WILLIAM G | EISENMAN, LEONA M | | | $250,000.00 | 16726 | 4365195 |
| 3 | 08/20/2003 | 5 | DNU - Marriage License/Name Change | SHORE, WILLIAM G | SHORE, WILLIAM G | | | $0.00 | 33697 | 4072086 |
| 4 | 07/17/2003 | QCD | Quit Claim Deed | SHORE, JULIE A | SHORE, WILLIAM G | | | $0.00 | 33116 | 4067502 |
| 5 | 06/17/2003 | QCD | Quit Claim Deed | MASON, J K | SHORE, JULIE A | | | $0.00 | 32739 | 4064453 |
| 6 | 03/01/1989 | WD | Warranty Deed | BIGLER, RICHARD A | MASON, J K | | | $11,500.00 | 91597 | 89005573 |
| 7 | 04/01/1980 | TRUSTEED | Trustee's Deed | ONAMAC, PARTNERS | BIGLER, RICHARD A | | | $1,000.00 | 1818 | 369282 |
| 8 | 01/01/1900 | OTHER | Other - Misc. Documents | Unknown | ONAMAC, PARTNERS | | | $0.00 | 0 | 0 |
Payout Agreement
| No payout information available.. |