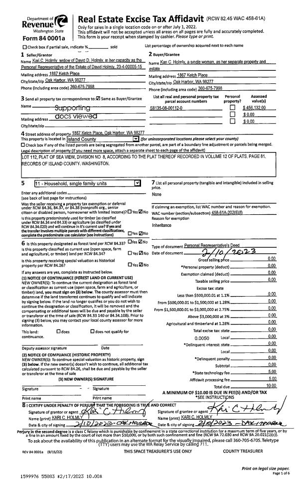
Property
Account |
| Property ID: | 336700 | Abbreviated Legal Description: | ONAMAC LOT 69 |
| Geographic ID: | S7610-00-00069-0 | Agent Code: | |
| Type: | Real | | |
| Tax Area: | 510 - APPRAISER-Stan/Cam Schl Dist, improved & 1 acre or less | Land Use Code | 11 |
| Open Space: | N | DFL | N |
| Historic Property: | N | Remodel Property: | N |
| Multi-Family Redevelopment: | N | | |
| Township: | | Section: | |
| Range: | |
Location |
| Address: | 766 MALABAR DRIVE CAMANO ISLAND, WA 98282 | Mapsco: | |
| Neighborhood: | Cycle 5 | Map ID: | 467 |
| Neighborhood CD: | 5 |
Owner |
| Name: | GT BRADLEY TTEE | Owner ID: | 303155 |
| Mailing Address: | GT BRADLEY LIVING TRUST 766 MALABAR DR CAMANO ISLAND, WA 98282 | % Ownership: | 100.0000000000% |
| | | Exemptions: | |
Taxes and Assessment Details
Values
| (+) Improvement Homesite Value: | + | $0 | |
| (+) Improvement Non-Homesite Value: | + | $631,280 | |
| (+) Land Homesite Value: | + | $0 | |
| (+) Land Non-Homesite Value: | + | $230,000 | |
| (+) Curr Use (HS): | + | $0 | $0 |
| (+) Curr Use (NHS): | + | $0 | $0 |
| | | -------------------------- | |
| (=) Market Value: | = | $861,280 | |
| (–) Productivity Loss: | – | $0 | |
| | | -------------------------- | |
| (=) Subtotal: | = | $861,280 | |
| (+) Senior Appraised Value: | + | $0 | |
| (+) Non-Senior Appraised Value: | + | $861,280 | |
| | | -------------------------- | |
| (=) Total Appraised Value: | = | $861,280 | |
| (–) Senior Exemption Loss: | – | $0 | |
| (–) Exemption Loss: | – | $0 | |
| | | -------------------------- | |
| (=) Taxable Value: | = | $861,280 | |
Taxing Jurisdiction
| Owner: | GT BRADLEY TTEE | | |
| % Ownership: | 100.0000000000% | | |
| Total Value: | $861,280 | | |
| Tax Area: | 510 - APPRAISER-Stan/Cam Schl Dist, improved & 1 acre or less |
| CF | Conservation Futures | 0.0316035091 | $861,280 | $861,280 | $27.22 | | |
| EMS1 | Fire & Rescue Dist #1 Camano GEN (EMS) | 0.3677864386 | $861,280 | $861,280 | $316.77 | | |
| FIRE1 | Fire & Rescue Dist #1 Camano GEN | 1.2502910536 | $861,280 | $861,280 | $1,076.85 | | |
| FIRE1BOND | Fire & Rescue Dist #1 Camano BOND | 0.1570001679 | $861,280 | $861,280 | $135.22 | | |
| CE | County Current Expense | 0.3708482477 | $861,280 | $861,280 | $319.40 | | |
| CR | County Roads | 0.4584763726 | $861,280 | $861,280 | $394.88 | | |
| LCIB | Library Sno-Isle BOND (Camano Island) | 0.0396325772 | $861,280 | $861,280 | $34.13 | | |
| LIB | Library Sno-Isle GEN | 0.3153421757 | $861,280 | $861,280 | $271.60 | | |
| SCH205_401 | School 205-401 Enrichment | 1.2698420524 | $861,280 | $861,280 | $1,093.69 | | |
| SCH205BOND | School 205-401 BOND | 0.9396497583 | $861,280 | $861,280 | $809.30 | | |
| ST | State School | 1.3035497053 | $861,280 | $861,280 | $1,122.72 | | |
| ST2 | State School Part 2 | 0.8169543533 | $861,280 | $861,280 | $703.63 | | |
| | Total Tax Rate: | 7.3209764117 | | | | | |
| | | | | Taxes w/Current Exemptions: | $6,305.41 | | |
| | | | | Taxes w/o Exemptions: | $6,305.41 | | |
Improvement / Building
| Improvement #1: | RESIDENTIAL | State Code: | Y | 2784.9 sqft | Value: | $631,280 |
| Bathrooms: | 2.5 | Bedrooms: | 3 | | Ceiling: | DRYWALL PAINTED | Cooling: | HEAT PUMP/CONV/V | | Exterior Wall/Cover: | CEMENT FIBER | Floor Covering: | VINYL TILE/HARWD 20-80 | | Floor Structure: | WOOD W/SUBFLOOR | Foundation: | CONCRETE | | Interior Finish: | DRYWALL PAINT | Plumbing Fixture Cnt: | 14 | | Roof Slope: | 8" IN 12" | Roof Structure/Cover: | CJ ASPHALT |
|
| | Type | Description | Class CD | Sub Class CD | Year Built | Area |
| | BAS | BASE/MAIN FLOOR | 4 | 0 | 2021 | 2423.4 |
| | AGR | ATTACHED GARAGE | 4 | 0 | 2021 | 718.6 |
| | UPH | HALF STORY | 4 | 0 | 2021 | 361.5 |
| | OP3 | OPEN PORCH W/ROOF | 4 | 0 | 2021 | 30.0 |
| | OWP | OPEN WOOD PORCH W/STEPS | 4 | 0 | 2021 | 252.0 |
Sketch
Property Image
Land
| 1 | 13 | SQ (06001-08000) | 0.0000 | 0.00 | 0.00 | 0.00 | 1.00 | $230,000 | $0 |
Roll Value History
| 2026 | N/A | N/A | N/A | N/A | N/A |
| 2025 | $631,280 | $230,000 | $0 | $861,280 | $861,280 |
| 2024 | $636,289 | $230,000 | $0 | $866,289 | $866,289 |
| 2023 | $642,969 | $230,000 | $0 | $872,969 | $872,969 |
| 2022 | $592,775 | $200,000 | $0 | $792,775 | $792,775 |
| 2021 | $95,112 | $80,000 | $0 | $175,112 | $175,112 |
| 2020 | $0 | $80,000 | $0 | $80,000 | $80,000 |
| 2019 | $0 | $80,000 | $0 | $80,000 | $80,000 |
| 2018 | $0 | $80,000 | $0 | $80,000 | $80,000 |
| 2017 | $0 | $50,000 | $0 | $50,000 | $50,000 |
| 2016 | $0 | $50,000 | $0 | $50,000 | $50,000 |
| 2015 | $0 | $50,000 | $0 | $50,000 | $50,000 |
| 2014 | $0 | $50,000 | $0 | $50,000 | $50,000 |
| 2013 | $0 | $73,500 | $0 | $73,500 | $73,500 |
| 2012 | $0 | $73,500 | $0 | $73,500 | $73,500 |
| 2011 | $0 | $73,500 | $0 | $73,500 | $73,500 |
| 2010 | $0 | $73,500 | $0 | $73,500 | $73,500 |
| 2009 | $0 | $85,000 | $0 | $85,000 | $85,000 |
| 2008 | $0 | $125,356 | $0 | $125,356 | $125,356 |
| 2007 | $0 | $125,356 | $0 | $125,356 | $125,356 |
Deed and Sales History
| 1 | 02/10/2022 | WD | Warranty Deed | SINGER TTEE, DAVID ALAN | GT BRADLEY TTEE | | | $888,000.00 | 51984 | 4539903 |
| 2 | 12/09/2020 | WD | Warranty Deed | FOGELSTROM, HELEN K | SINGER TTEE, DAVID ALAN | | | $161,000.00 | 46182 | 4505639 |
| 3 | 08/03/2018 | WD | Warranty Deed | SINCLAIR, DORIS H | FOGELSTROM, HELEN K | | | $97,950.00 | 35527 | 4450136 |
| 4 | 01/01/1993 | QCD | Quit Claim Deed | SINCLAIR, RICHARD R | SINCLAIR, DORIS H | | | $0.00 | 30074 | 93000384 |
| 5 | 11/01/1992 | QCD | Quit Claim Deed | SINCLAIR, DORIS H | SINCLAIR, RICHARD R | | | $0.00 | 25164 | 92025344 |
| 6 | 08/01/1983 | REC | Real Estate Contract | HOME, SAVINGS & | SINCLAIR, DORIS H | | | $15,200.00 | 32353 | 1627277 |
| 7 | 06/01/1983 | TRUSTEED | Trustee's Deed | ONAMAC, PARTNERS | HOME, SAVINGS & | | | $0.00 | 31682 | 0 |
| 8 | 01/01/1900 | OTHER | Other - Misc. Documents | Unknown | ONAMAC, PARTNERS | | | $0.00 | 0 | 0 |
Payout Agreement
| No payout information available.. |