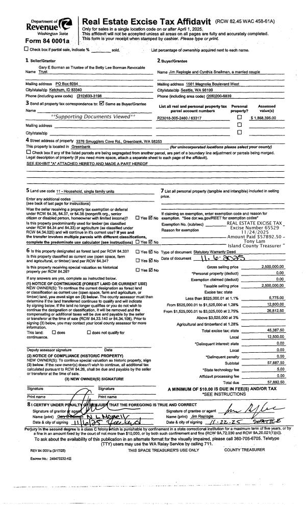
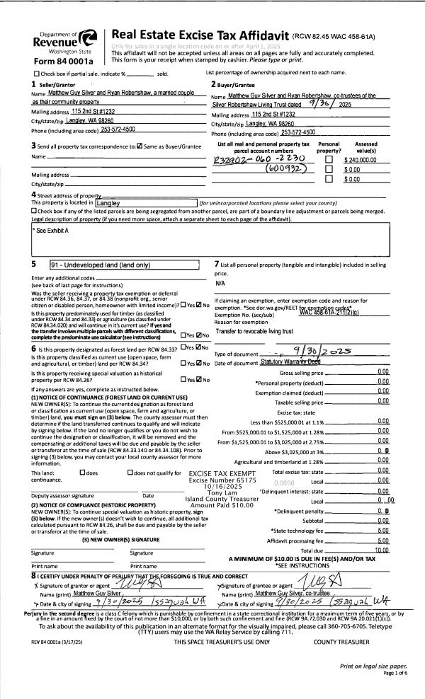
Property
Account |
| Property ID: | 3374 | Abbreviated Legal Description: | J CROCKETT DC OPEN AG TGW PT VAC RD R-28-88 AF#880004603 TGW EZ AF#90017991 |
| Geographic ID: | R13103-332-1790 | Agent Code: | |
| Type: | Real | | |
| Tax Area: | 312 - APPRAISER-Cpvl Schl Dist, outside Cpvl, improved, greater than 1 acre | Land Use Code | 83 |
| Open Space: | Y | DFL | N |
| Historic Property: | N | Remodel Property: | N |
| Multi-Family Redevelopment: | N | | |
| Township: | 31 | Section: | 03 |
| Range: | R1 |
Location |
| Address: | 171 FORT CASEY RD COUPEVILLE, WA 98239 | Mapsco: | |
| Neighborhood: | Cycle 2 | Map ID: | 27 |
| Neighborhood CD: | 2 |
Owner |
| Name: | SULLIVAN, THOMAS M | Owner ID: | 5782 |
| Mailing Address: | 171 FORT CASEY RD COUPEVILLE, WA 98239-9711 | % Ownership: | 100.0000000000% |
| | | Exemptions: | |
Taxes and Assessment Details
Values
| (+) Improvement Homesite Value: | + | $0 | |
| (+) Improvement Non-Homesite Value: | + | $85,096 | |
| (+) Land Homesite Value: | + | $0 | |
| (+) Land Non-Homesite Value: | + | $340,000 | |
| (+) Curr Use (HS): | + | $0 | $0 |
| (+) Curr Use (NHS): | + | $76,800 | $10,908 |
| | | -------------------------- | |
| (=) Market Value: | = | $501,896 | |
| (–) Productivity Loss: | – | $65,892 | |
| | | -------------------------- | |
| (=) Subtotal: | = | $436,004 | |
| (+) Senior Appraised Value: | + | $0 | |
| (+) Non-Senior Appraised Value: | + | $436,004 | |
| | | -------------------------- | |
| (=) Total Appraised Value: | = | $436,004 | |
| (–) Senior Exemption Loss: | – | $0 | |
| (–) Exemption Loss: | – | $0 | |
| | | -------------------------- | |
| (=) Taxable Value: | = | $436,004 | |
Taxing Jurisdiction
| Owner: | SULLIVAN, THOMAS M | | |
| % Ownership: | 100.0000000000% | | |
| Total Value: | $501,896 | | |
| Tax Area: | 312 - APPRAISER-Cpvl Schl Dist, outside Cpvl, improved, greater than 1 acre |
| CF | Conservation Futures | 0.0316035091 | $436,004 | $436,004 | $13.78 | | |
| CEM2 | Cemetery #2 | 0.0095056933 | $436,004 | $436,004 | $4.14 | | |
| FIRE5 | Fire & Rescue Dist #5 C Whidbey GEN | 1.2008080668 | $436,004 | $436,004 | $523.56 | | |
| FIRE5BOND | Fire & Rescue Dist #5 C Whidbey BOND | 0.1400090713 | $436,004 | $436,004 | $61.04 | | |
| HOBOND | Hospital BOND | 0.1910887512 | $436,004 | $436,004 | $83.32 | | |
| HOGEN | Hospital GEN | 0.3902502903 | $436,004 | $436,004 | $170.15 | | |
| CE | County Current Expense | 0.3708482477 | $436,004 | $436,004 | $161.69 | | |
| CR | County Roads | 0.4584763726 | $436,004 | $436,004 | $199.90 | | |
| ISLANDEMS | Hospital GEN (EMS) | 0.5000000000 | $436,004 | $436,004 | $218.00 | | |
| LIB | Library Sno-Isle GEN | 0.3153421757 | $436,004 | $436,004 | $137.49 | | |
| LIBCAP | Library Sno-Isle BOND (Cap Fac Imp Area) | 0.0543427938 | $436,004 | $436,004 | $23.69 | | |
| POCOUP | Port of Coupeville GEN | 0.1093371703 | $436,004 | $436,004 | $47.67 | | |
| POCOUPIDD | Port of Coupeville IDD | 0.3409740022 | $436,004 | $436,004 | $148.67 | | |
| COUPSDTECH | School 204 CP (TECH) | 0.7545480007 | $436,004 | $436,004 | $328.99 | | |
| SCH204MO | School 204 Enrichment | 0.6716186034 | $436,004 | $436,004 | $292.83 | | |
| ST | State School | 1.3035497053 | $436,004 | $436,004 | $568.35 | | |
| ST2 | State School Part 2 | 0.8169543533 | $436,004 | $436,004 | $356.20 | | |
| | Total Tax Rate: | 7.6592568070 | | | | | |
| | | | | Taxes w/Current Exemptions: | $3,339.47 | | |
| | | | | Taxes w/o Exemptions: | $3,339.47 | | |
Improvement / Building
| Improvement #1: | RESIDENTIAL | State Code: | Y | 1200.0 sqft | Value: | $85,096 |
| Bathrooms: | 1 | Bedrooms: | 2 | | Ceiling: | PLASTER PAINTED | Exterior Wall/Cover: | WOOD SIDING | | Floor Covering: | VINYL 100% | Floor Structure: | WOOD W/SUBFLOOR | | Foundation: | WOOD BLOCKS | Interior Finish: | PLASTER | | Plumbing Fixture Cnt: | 5 | Roof Slope: | 6" IN 12" | | Roof Structure/Cover: | ALUM LIGHT |   |   |
|
| | Type | Description | Class CD | Sub Class CD | Year Built | Area |
| | BAS | BASE/MAIN FLOOR | 2 | 0 | 1910 | 1200.0 |
| | ATF | ATTIC FINISHED | 2 | 0 | 1910 | 448.0 |
| | CPD | OPEN CARPORT DIRT FLOOR | 2 | | 1910 | 200.0 |
| | UTY | STORAGE/UTILITY | 2 | 0 | 1910 | 200.0 |
Sketch
Property Image
Land
| 1 | HS | HOMESITE | 1.0000 | 43560.00 | 0.00 | 0.00 | 1.00 | $340,000 | $0 |
| 2 | 83 | OPEN AGRICULTURE | 14.8220 | 645646.32 | 0.00 | 0.00 | 1.00 | $76,800 | $10,908 |
Roll Value History
| 2026 | N/A | N/A | N/A | N/A | N/A |
| 2025 | $85,096 | $416,800 | $10,908 | $436,004 | $436,004 |
| 2024 | $86,952 | $390,000 | $10,908 | $427,860 | $427,860 |
| 2023 | $88,805 | $370,000 | $10,908 | $123,101 | $123,101 |
| 2022 | $82,207 | $350,000 | $10,908 | $115,239 | $115,239 |
| 2021 | $73,103 | $310,000 | $10,908 | $103,606 | $103,606 |
| 2020 | $72,017 | $285,000 | $10,908 | $100,940 | $100,940 |
| 2019 | $54,485 | $350,000 | $10,908 | $87,518 | $87,518 |
| 2018 | $21,829 | $310,000 | $10,908 | $52,332 | $52,332 |
| 2017 | $21,829 | $300,000 | $11,283 | $33,112 | $33,112 |
| 2016 | $20,608 | $300,000 | $11,283 | $31,891 | $31,891 |
| 2015 | $20,608 | $268,940 | $11,283 | $31,891 | $31,891 |
| 2014 | $20,608 | $268,940 | $11,283 | $31,891 | $31,891 |
| 2013 | $20,608 | $268,940 | $11,283 | $31,891 | $31,891 |
| 2012 | $29,951 | $268,940 | $11,283 | $41,234 | $41,234 |
| 2011 | $29,951 | $316,400 | $11,283 | $41,234 | $41,234 |
| 2010 | $32,101 | $316,400 | $11,283 | $43,384 | $43,384 |
| 2009 | $3,536 | $51,942 | $11,283 | $44,195 | $44,195 |
| 2008 | $4,874 | $50,717 | $11,283 | $44,308 | $44,308 |
| 2007 | $4,883 | $50,791 | $11,283 | $44,391 | $44,391 |
Deed and Sales History
| 1 | 08/20/2025 | PRD | Personal Representatives Deed | DAVID SULLIVAN, PR | SULLIVAN, DAVID | | | $0.00 | 64614 | 4590133 |
Payout Agreement
| No payout information available.. |