Property
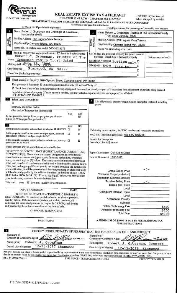
Account |
| Property ID: | 33751 | Abbreviated Legal Description: | 54 - IN NE NW: BG SLN NE NW & WLN ST HWY 1-D N89*W662 .03' TO SWCR NE NW N17.77' TPB N65*E300.57' N24*W160' S65*W229' S175.26' TPB |
| Geographic ID: | R13311-398-1430 | Agent Code: | |
| Type: | Real | | |
| Tax Area: | 110 - APPRAISER-OH Schl Dist, outside OH, improved & 1 acre or less | Land Use Code | 11 |
| Open Space: | N | DFL | N |
| Historic Property: | N | Remodel Property: | N |
| Multi-Family Redevelopment: | N | | |
| Township: | 33 | Section: | 11 |
| Range: | R1 |
Location |
| Address: | 4317 NOISEY CIR OAK HARBOR, WA 98277 | Mapsco: | |
| Neighborhood: | Cycle 6 | Map ID: | 202 |
| Neighborhood CD: | 6 |
Owner |
| Name: | CEJUDO, ADRIAN OMAR ANDRADE | Owner ID: | 316585 |
| Mailing Address: | CARLOS ROBERTO ALEGRIA 4317 NOISEY CIR OAK HARBOR, WA 98277 | % Ownership: | 100.0000000000% |
| | | Exemptions: | |
Taxes and Assessment Details
Values
| (+) Improvement Homesite Value: | + | $0 | |
| (+) Improvement Non-Homesite Value: | + | $22,731 | |
| (+) Land Homesite Value: | + | $0 | |
| (+) Land Non-Homesite Value: | + | $200,000 | |
| (+) Curr Use (HS): | + | $0 | $0 |
| (+) Curr Use (NHS): | + | $0 | $0 |
| | | -------------------------- | |
| (=) Market Value: | = | $222,731 | |
| (–) Productivity Loss: | – | $0 | |
| | | -------------------------- | |
| (=) Subtotal: | = | $222,731 | |
| (+) Senior Appraised Value: | + | $0 | |
| (+) Non-Senior Appraised Value: | + | $222,731 | |
| | | -------------------------- | |
| (=) Total Appraised Value: | = | $222,731 | |
| (–) Senior Exemption Loss: | – | $0 | |
| (–) Exemption Loss: | – | $0 | |
| | | -------------------------- | |
| (=) Taxable Value: | = | $222,731 | |
Taxing Jurisdiction
| Owner: | CEJUDO, ADRIAN OMAR ANDRADE | | |
| % Ownership: | 100.0000000000% | | |
| Total Value: | $222,731 | | |
| Tax Area: | 110 - APPRAISER-OH Schl Dist, outside OH, improved & 1 acre or less |
| CF | Conservation Futures | 0.0316035091 | $222,731 | $222,731 | $7.04 | | |
| CEM1 | Cemetery #1 | 0.0040320932 | $222,731 | $222,731 | $0.90 | | |
| FIRE2 | Fire & Rescue Dist #2 N Whidbey GEN | 0.5475949600 | $222,731 | $222,731 | $121.97 | | |
| HOBOND | Hospital BOND | 0.1910887512 | $222,731 | $222,731 | $42.56 | | |
| HOGEN | Hospital GEN | 0.3902502903 | $222,731 | $222,731 | $86.92 | | |
| CE | County Current Expense | 0.3708482477 | $222,731 | $222,731 | $82.60 | | |
| CR | County Roads | 0.4584763726 | $222,731 | $222,731 | $102.12 | | |
| ISLANDEMS | Hospital GEN (EMS) | 0.5000000000 | $222,731 | $222,731 | $111.37 | | |
| LIB | Library Sno-Isle GEN | 0.3153421757 | $222,731 | $222,731 | $70.24 | | |
| NWHIDPRMT | P & R N Whidbey GEN | 0.2004466701 | $222,731 | $222,731 | $44.65 | | |
| SCH201MO | School 201 Enrichment | 1.8559231640 | $222,731 | $222,731 | $413.37 | | |
| ST | State School | 1.3035497053 | $222,731 | $222,731 | $290.34 | | |
| ST2 | State School Part 2 | 0.8169543533 | $222,731 | $222,731 | $181.96 | | |
| | Total Tax Rate: | 6.9861102925 | | | | | |
| | | | | Taxes w/Current Exemptions: | $1,556.04 | | |
| | | | | Taxes w/o Exemptions: | $1,556.04 | | |
Improvement / Building
| Improvement #1: | MANUFACTURED HOME | State Code: | Y | 994.5 sqft | Value: | $12,429 |
| Bathrooms: | 1 | Bedrooms: | 2 | | Ceiling: | PLASTER PAINTED | Cooling: | EVAP NO DUCT | | Exterior Wall/Cover: | VINYL | Floor Covering: | CARPET 100% | | Floor Structure: | SLAB ON GRADE | Foundation: | SLAB | | Heating: | FHA ELECTRIC | Interior Finish: | PLASTER | | Plumbing Fixture Cnt: | 1 | Roof Slope: | FLAT | | Roof Structure/Cover: | CJ ALUMINIUM HEAVY |   |   |
|
| | Type | Description | Class CD | Sub Class CD | Year Built | Area |
| | BAS | BASE/MAIN FLOOR | 3 | 0 | 1978 | 994.5 |
| | OCP | OPEN CARPORT | 3 | 0 | 1978 | 171.0 |
| Improvement #2: | MANUFACTURED HOME | State Code: | Y | 897.8 sqft | Value: | $10,302 |
| Bathrooms: | 1 | Bedrooms: | 2 | | Ceiling: | PLASTER PAINTED | Cooling: | EVAP NO DUCT | | Exterior Wall/Cover: | VINYL | Floor Covering: | CARPET 100% | | Floor Structure: | SLAB ON GRADE | Foundation: | SLAB | | Heating: | FHA ELECTRIC | Interior Finish: | PLASTER | | Plumbing Fixture Cnt: | 1 | Roof Slope: | FLAT | | Roof Structure/Cover: | CJ ALUMINIUM HEAVY |   |   |
|
Sketch
Property Image
Land
| 1 | 16 | AC (00.51-01.00) | 0.9700 | 42253.20 | 0.00 | 0.00 | 1.00 | $200,000 | $0 |
Roll Value History
| 2026 | N/A | N/A | N/A | N/A | N/A |
| 2025 | $22,731 | $200,000 | $0 | $222,731 | $222,731 |
| 2024 | $23,523 | $190,000 | $0 | $213,523 | $213,523 |
| 2023 | $23,613 | $190,000 | $0 | $213,613 | $213,613 |
| 2022 | $23,745 | $160,000 | $0 | $183,745 | $183,745 |
| 2021 | $22,231 | $125,000 | $0 | $147,231 | $147,231 |
| 2020 | $22,789 | $110,000 | $0 | $132,789 | $132,789 |
| 2019 | $19,160 | $155,000 | $0 | $174,160 | $174,160 |
| 2018 | $20,115 | $120,000 | $0 | $140,115 | $140,115 |
| 2017 | $21,070 | $90,000 | $0 | $111,070 | $111,070 |
| 2016 | $10,458 | $70,000 | $0 | $80,458 | $80,458 |
| 2015 | $10,950 | $50,000 | $0 | $60,950 | $60,950 |
| 2014 | $11,442 | $40,000 | $0 | $51,442 | $51,442 |
| 2013 | $12,180 | $40,000 | $0 | $52,180 | $52,180 |
| 2012 | $12,671 | $38,250 | $0 | $50,921 | $50,921 |
| 2011 | $13,163 | $45,000 | $0 | $58,163 | $58,163 |
| 2010 | $32,678 | $45,000 | $0 | $77,678 | $77,678 |
| 2009 | $33,490 | $65,000 | $0 | $98,490 | $98,490 |
| 2008 | $33,876 | $65,000 | $0 | $98,876 | $98,876 |
| 2007 | $34,369 | $65,000 | $0 | $99,369 | $99,369 |
Deed and Sales History
| 1 | 05/21/2025 | WD | Warranty Deed | JJC PROPERTIES NW, LLC | CEJUDO, ADRIAN OMAR ANDRADE | | | $346,427.00 | 63549 | 4586204 |
| 2 | 05/23/2025 | MANHOME | Manufactured Home | JJC PROPERTIES NW, LLC | CEJUDO, ADRIAN OMAR ANDRADE | | | $12,839.00 | 63548 | |
| 3 | 05/23/2025 | MANHOME | Manufactured Home | JJC PROPERTIES NW, LLC | CEJUDO, ADRIAN OMAR ANDRADE | | | $10,684.00 | 63546 | |
| 4 | 11/27/2017 | QCD | Quit Claim Deed | CORT, WILLIAM | JJC PROPERTIES NW, LLC | | | $0.00 | 32350 | 4436155 |
| 5 | 10/14/2015 | WD | Warranty Deed | MUDDER, RUSSELL I | CORT, WILLIAM | | | $68,000.00 | 21819 | 4388003 |
| 6 | 10/27/2010 | QCD | Quit Claim Deed | RUSSELL I MUDDER | MUDDER, RUSSELL I | | | $9,000.00 | 2775 | 4284214 |
| 7 | 10/27/2010 | QCD | Quit Claim Deed | NOISEY CIRCLE LLC | RUSSELL I MUDDER | | | $0.00 | 2772 | 4284213 |
| 8 | 11/19/2007 | WD | Warranty Deed | ST JOHN, STEVEN D | NOISEY CIRCLE LLC, | | | $100,000.00 | 73820 | 4216617 |
| 9 | 04/02/2003 | WD | Warranty Deed | RAVENCRAFT, SEAN N | ST JOHN, STEVEN D | | | $67,900.00 | 31512 | 4054822 |
| 10 | 11/01/1993 | OTHER | Other - Misc. Documents | RAVENCRAFT, SEAN N | RAVENCRAFT, SEAN N | | | $10.00 | 34421 | 0 |
| 11 | 11/01/1993 | OTHER | Other - Misc. Documents | RAVENCRAFT, SEAN N | RAVENCRAFT, SEAN N | | | $14,500.00 | 34420 | 0 |
| 12 | 10/01/1993 | WD | Warranty Deed | FISCHER, EDWARD G | RAVENCRAFT, SEAN N | | | $30,000.00 | 34419 | 93023079 |
| 13 | 08/01/1984 | WD | Warranty Deed | WOODS, HAZEL | FISCHER, EDWARD G | | | $35,000.00 | 42395 | 84001976 |
| 14 | 01/01/1900 | OTHER | Other - Misc. Documents | BURNS, REX | FISCHER, EDWARD | | | $0.00 | 0 | 0 |
| 15 | 01/01/1900 | OTHER | Other - Misc. Documents | FISCHER, EDWARD | BURNS, REX | | | $13,189.00 | 0 | 0 |
| 16 | 01/01/1900 | OTHER | Other - Misc. Documents | Unknown | FISCHER, EDWARD | | | $0.00 | 0 | 0 |
| 17 | 01/01/1900 | OTHER | Other - Misc. Documents | FISCHER, EDWARD | WOODS, HAZEL | | | $0.00 | 0 | 0 |
Payout Agreement
| No payout information available.. |