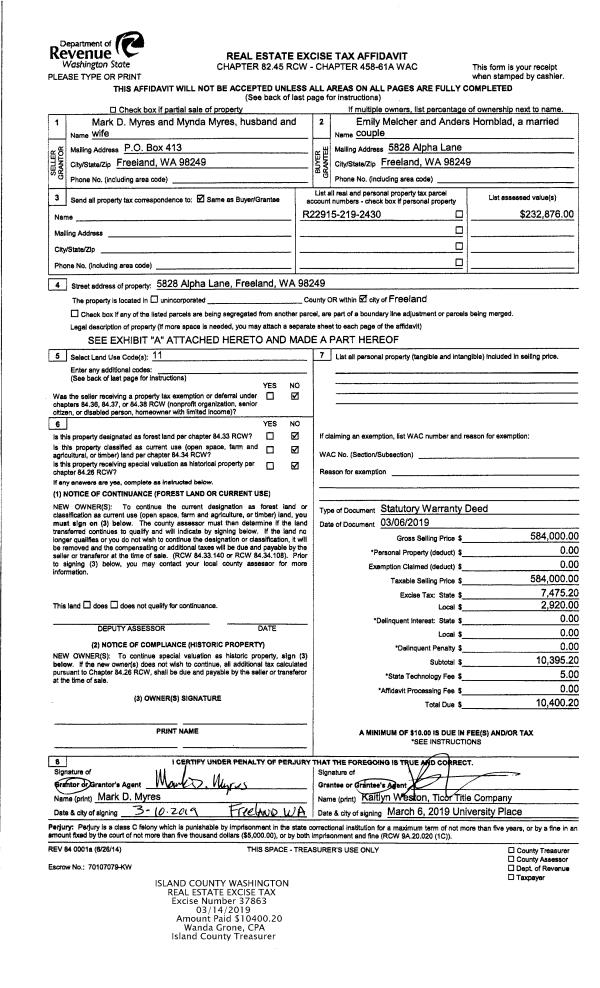
Property
Account |
| Property ID: | 337736 | Abbreviated Legal Description: | ONAMAC TERR LOT 38 |
| Geographic ID: | S7615-00-00038-0 | Agent Code: | |
| Type: | Real | | |
| Tax Area: | 510 - APPRAISER-Stan/Cam Schl Dist, improved & 1 acre or less | Land Use Code | 11 |
| Open Space: | N | DFL | N |
| Historic Property: | N | Remodel Property: | N |
| Multi-Family Redevelopment: | N | | |
| Township: | | Section: | |
| Range: | |
Location |
| Address: | 856 EASY ST CAMANO ISLAND, WA 98282 | Mapsco: | |
| Neighborhood: | Cycle 5 | Map ID: | 486 |
| Neighborhood CD: | 5 |
Owner |
| Name: | OUDERKIRK, ANDREW W | Owner ID: | 181672 |
| Mailing Address: | TAMAR D OUDERKIRK 862 BLACKBURN RD CAMANO ISLAND, WA 98282-8675 | % Ownership: | 100.0000000000% |
| | | Exemptions: | |
Taxes and Assessment Details
Values
| (+) Improvement Homesite Value: | + | $0 | |
| (+) Improvement Non-Homesite Value: | + | $356,842 | |
| (+) Land Homesite Value: | + | $0 | |
| (+) Land Non-Homesite Value: | + | $240,000 | |
| (+) Curr Use (HS): | + | $0 | $0 |
| (+) Curr Use (NHS): | + | $0 | $0 |
| | | -------------------------- | |
| (=) Market Value: | = | $596,842 | |
| (–) Productivity Loss: | – | $0 | |
| | | -------------------------- | |
| (=) Subtotal: | = | $596,842 | |
| (+) Senior Appraised Value: | + | $0 | |
| (+) Non-Senior Appraised Value: | + | $596,842 | |
| | | -------------------------- | |
| (=) Total Appraised Value: | = | $596,842 | |
| (–) Senior Exemption Loss: | – | $0 | |
| (–) Exemption Loss: | – | $0 | |
| | | -------------------------- | |
| (=) Taxable Value: | = | $596,842 | |
Taxing Jurisdiction
| Owner: | OUDERKIRK, ANDREW W | | |
| % Ownership: | 100.0000000000% | | |
| Total Value: | $596,842 | | |
| Tax Area: | 510 - APPRAISER-Stan/Cam Schl Dist, improved & 1 acre or less |
| CF | Conservation Futures | 0.0316035091 | $596,842 | $596,842 | $18.86 | | |
| EMS1 | Fire & Rescue Dist #1 Camano GEN (EMS) | 0.3677864386 | $596,842 | $596,842 | $219.51 | | |
| FIRE1 | Fire & Rescue Dist #1 Camano GEN | 1.2502910536 | $596,842 | $596,842 | $746.23 | | |
| FIRE1BOND | Fire & Rescue Dist #1 Camano BOND | 0.1570001679 | $596,842 | $596,842 | $93.70 | | |
| CE | County Current Expense | 0.3708482477 | $596,842 | $596,842 | $221.34 | | |
| CR | County Roads | 0.4584763726 | $596,842 | $596,842 | $273.64 | | |
| LCIB | Library Sno-Isle BOND (Camano Island) | 0.0396325772 | $596,842 | $596,842 | $23.65 | | |
| LIB | Library Sno-Isle GEN | 0.3153421757 | $596,842 | $596,842 | $188.21 | | |
| SCH205_401 | School 205-401 Enrichment | 1.2698420524 | $596,842 | $596,842 | $757.90 | | |
| SCH205BOND | School 205-401 BOND | 0.9396497583 | $596,842 | $596,842 | $560.82 | | |
| ST | State School | 1.3035497053 | $596,842 | $596,842 | $778.01 | | |
| ST2 | State School Part 2 | 0.8169543533 | $596,842 | $596,842 | $487.59 | | |
| | Total Tax Rate: | 7.3209764117 | | | | | |
| | | | | Taxes w/Current Exemptions: | $4,369.46 | | |
| | | | | Taxes w/o Exemptions: | $4,369.46 | | |
Improvement / Building
| Improvement #1: | RESIDENTIAL | State Code: | Y | 1957.0 sqft | Value: | $356,842 |
| Bathrooms: | 2.5 | Bedrooms: | 4 | | Ceiling: | DRYWALL PAINTED | Cooling: | HEAT PUMP/CONV/V | | Exterior Wall/Cover: | CEMENT FIBER | Floor Covering: | CARPET/VINYL 80-20 | | Floor Structure: | SLAB ON GRADE | Foundation: | CONCRETE | | Interior Finish: | DRYWALL PAINT | Plumbing Fixture Cnt: | 13 | | Roof Slope: | 4" IN 12" | Roof Structure/Cover: | CJ ALUMINIUM HEAVY |
|
| | Type | Description | Class CD | Sub Class CD | Year Built | Area |
| | BAS | BASE/MAIN FLOOR | 3 | 0 | 2020 | 1073.0 |
| | BIG | BUILT IN GARAGE | 3 | 0 | 2020 | 627.0 |
| | UPS | UPPER STORY | 3 | 0 | 2020 | 884.0 |
| | OP3 | OPEN PORCH W/ROOF | 3 | 0 | 2020 | 96.0 |
Sketch
Property Image
Land
| 1 | 16 | AC (00.51-01.00) | 0.0000 | 0.00 | 0.00 | 0.00 | 1.00 | $240,000 | $0 |
Roll Value History
| 2026 | N/A | N/A | N/A | N/A | N/A |
| 2025 | $356,842 | $240,000 | $0 | $596,842 | $596,842 |
| 2024 | $359,697 | $240,000 | $0 | $599,697 | $599,697 |
| 2023 | $362,553 | $230,000 | $0 | $592,553 | $592,553 |
| 2022 | $331,744 | $230,000 | $0 | $561,744 | $561,744 |
| 2021 | $299,915 | $140,000 | $0 | $439,915 | $439,915 |
| 2020 | $294,582 | $140,000 | $0 | $434,582 | $434,582 |
| 2019 | $0 | $80,000 | $0 | $80,000 | $80,000 |
| 2018 | $8,800 | $80,000 | $0 | $88,800 | $88,800 |
| 2017 | $8,871 | $50,000 | $0 | $58,871 | $58,871 |
| 2016 | $8,382 | $50,000 | $0 | $58,382 | $58,382 |
| 2015 | $3,308 | $65,000 | $0 | $68,308 | $68,308 |
| 2014 | $3,308 | $65,000 | $0 | $68,308 | $68,308 |
| 2013 | $3,308 | $52,000 | $0 | $55,308 | $55,308 |
| 2012 | $3,308 | $52,000 | $0 | $55,308 | $55,308 |
| 2011 | $3,308 | $65,000 | $0 | $68,308 | $68,308 |
| 2010 | $4,148 | $65,000 | $0 | $69,148 | $69,148 |
| 2009 | $4,214 | $75,000 | $0 | $79,214 | $79,214 |
| 2008 | $4,265 | $91,575 | $0 | $95,840 | $95,840 |
| 2007 | $4,332 | $91,575 | $0 | $95,907 | $95,907 |
Deed and Sales History
| 1 | 05/02/2019 | WD | Warranty Deed | STRONG, KENNETH RAY | OUDERKIRK, ANDREW W | | | $107,000.00 | 38335 | 4462546 |
| 2 | 06/07/2017 | WD | Warranty Deed | DU, ZIQIN | STRONG, KENNETH RAY | | | $85,000.00 | 29740 | 4424265 |
| 3 | 07/19/2013 | WD | Warranty Deed | EMERY, ALYCE L | DU, ZIQIN | | | $45,000.00 | 12141 | 4344827 |
Payout Agreement
| No payout information available.. |