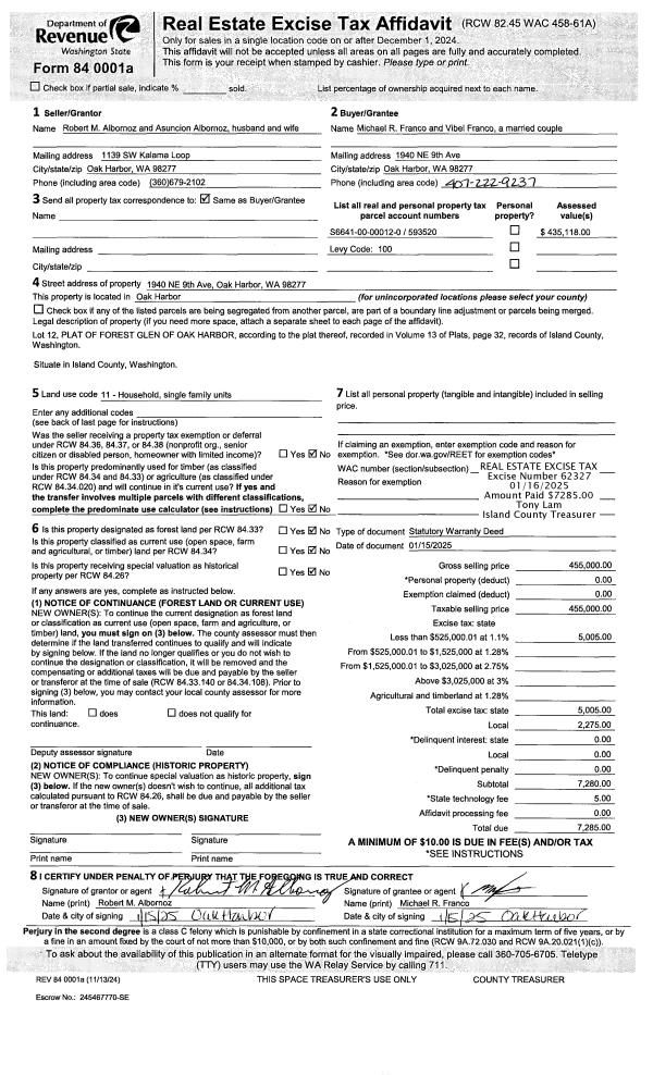
Property
Account |
| Property ID: | 337969 | Abbreviated Legal Description: | ORRS LOTS 18 & 19 TGW PT VAC RD LY W OF WLN SD LOTS & E OF CO HWY INCL ADJ TIDES |
| Geographic ID: | S7620-00-00019-1 | Agent Code: | |
| Type: | Real | | |
| Tax Area: | 720 - APPRAISER-S Whid Schl Dist, Special District, improved & less than 1 acre | Land Use Code | 11 |
| Open Space: | N | DFL | N |
| Historic Property: | N | Remodel Property: | N |
| Multi-Family Redevelopment: | N | | |
| Township: | | Section: | |
| Range: | |
Location |
| Address: | 6531 COLUMBIA BEACH DR CLINTON, WA 98236 | Mapsco: | |
| Neighborhood: | Cycle 4 | Map ID: | 1002 |
| Neighborhood CD: | 4 |
Owner |
| Name: | GRABO, JOAN C | Owner ID: | 313284 |
| Mailing Address: | 6523 COLUMBIA BEACH DR CLINTON, WA 98236 | % Ownership: | 100.0000000000% |
| | | Exemptions: | |
Taxes and Assessment Details
Values
| (+) Improvement Homesite Value: | + | $0 | |
| (+) Improvement Non-Homesite Value: | + | $266,174 | |
| (+) Land Homesite Value: | + | $0 | |
| (+) Land Non-Homesite Value: | + | $851,000 | |
| (+) Curr Use (HS): | + | $0 | $0 |
| (+) Curr Use (NHS): | + | $0 | $0 |
| | | -------------------------- | |
| (=) Market Value: | = | $1,117,174 | |
| (–) Productivity Loss: | – | $0 | |
| | | -------------------------- | |
| (=) Subtotal: | = | $1,117,174 | |
| (+) Senior Appraised Value: | + | $0 | |
| (+) Non-Senior Appraised Value: | + | $1,117,174 | |
| | | -------------------------- | |
| (=) Total Appraised Value: | = | $1,117,174 | |
| (–) Senior Exemption Loss: | – | $0 | |
| (–) Exemption Loss: | – | $0 | |
| | | -------------------------- | |
| (=) Taxable Value: | = | $1,117,174 | |
Taxing Jurisdiction
| Owner: | GRABO, JOAN C | | |
| % Ownership: | 100.0000000000% | | |
| Total Value: | $1,117,174 | | |
| Tax Area: | 720 - APPRAISER-S Whid Schl Dist, Special District, improved & less than 1 acre |
| CF | Conservation Futures | 0.0316035091 | $1,117,174 | $1,117,174 | $35.31 | | |
| FIRE3 | Fire & Rescue Dist #3 S Whidbey GEN | 1.2004855531 | $1,117,174 | $1,117,174 | $1,341.15 | | |
| HOBOND | Hospital BOND | 0.1910887512 | $1,117,174 | $1,117,174 | $213.48 | | |
| HOGEN | Hospital GEN | 0.3902502903 | $1,117,174 | $1,117,174 | $435.98 | | |
| CE | County Current Expense | 0.3708482477 | $1,117,174 | $1,117,174 | $414.30 | | |
| CR | County Roads | 0.4584763726 | $1,117,174 | $1,117,174 | $512.20 | | |
| ISLANDEMS | Hospital GEN (EMS) | 0.5000000000 | $1,117,174 | $1,117,174 | $558.59 | | |
| LIB | Library Sno-Isle GEN | 0.3153421757 | $1,117,174 | $1,117,174 | $352.29 | | |
| PORTWHID | Port of S Whidbey GEN | 0.1094540357 | $1,117,174 | $1,117,174 | $122.28 | | |
| SCH206BOND | School 206 BOND | 0.3161759235 | $1,117,174 | $1,117,174 | $353.22 | | |
| SCH206MO | School 206 Enrichment | 0.4547169547 | $1,117,174 | $1,117,174 | $508.00 | | |
| ST | State School | 1.3035497053 | $1,117,174 | $1,117,174 | $1,456.29 | | |
| ST2 | State School Part 2 | 0.8169543533 | $1,117,174 | $1,117,174 | $912.68 | | |
| SWHIDPRBD | P & R S Whidbey BOND | 0.0152817568 | $1,117,174 | $1,117,174 | $17.07 | | |
| SWHIDPRBD2 | P & R S Whidbey BOND2 | 0.0138911264 | $1,117,174 | $1,117,174 | $15.52 | | |
| SWHIDPRMT | P & R S Whidbey GEN | 0.2053334452 | $1,117,174 | $1,117,174 | $229.39 | | |
| | Total Tax Rate: | 6.6934522006 | | | | | |
| | | | | Taxes w/Current Exemptions: | $7,477.75 | | |
| | | | | Taxes w/o Exemptions: | $7,477.75 | | |
Improvement / Building
| Improvement #1: | RESIDENTIAL | State Code: | Y | 1524.3 sqft | Value: | $266,174 |
| Bathrooms: | 2 | Bedrooms: | 3 | | Ceiling: | DRYWALL PAINTED | Cooling: | HEAT PUMP/CONV/V | | Exterior Wall/Cover: | PLY/HARDBOARD T-111 | Floor Covering: | CERAMIC TILE/CPT 40-60 | | Floor Structure: | SLAB ON GRADE | Foundation: | CONCRETE | | Interior Finish: | DRYWALL PAINT | Plumbing Fixture Cnt: | 10 | | Roof Slope: | 4" IN 12" | Roof Structure/Cover: | CJ ASPHALT |
|
| | Type | Description | Class CD | Sub Class CD | Year Built | Area |
| | BAS | BASE/MAIN FLOOR | 3 | 0 | 1958 | 1524.3 |
| | OP3 | OPEN PORCH W/ROOF | 3 | 0 | 1958 | 391.0 |
| | OP3 | OPEN PORCH W/ROOF | 3 | 0 | 1958 | 336.0 |
| | OWP | OPEN WOOD PORCH W/STEPS | 3 | 0 | 1958 | 375.0 |
| | oOBD | Out Buildings | 3 | 0 | 1958 | 0.0 |
Sketch
Property Image
Land
| 1 | LB | LOW BANK | 0.0000 | 0.00 | 100.00 | 0.00 | 1.00 | $850,000 | $0 |
| 2 | 55 | TIDES | 0.0000 | 0.00 | 100.00 | 0.00 | 1.00 | $1,000 | $0 |
Roll Value History
| 2026 | N/A | N/A | N/A | N/A | N/A |
| 2025 | $266,174 | $851,000 | $0 | $1,117,174 | $1,117,174 |
| 2024 | $269,490 | $801,000 | $0 | $1,070,490 | $1,070,490 |
| 2023 | $272,806 | $801,000 | $0 | $1,073,806 | $1,073,806 |
| 2022 | $250,980 | $751,000 | $0 | $1,001,980 | $1,001,980 |
| 2021 | $222,159 | $676,000 | $0 | $898,159 | $898,159 |
| 2020 | $212,755 | $601,000 | $0 | $813,755 | $813,755 |
| 2019 | $156,808 | $551,000 | $0 | $707,808 | $707,808 |
| 2018 | $157,258 | $451,000 | $0 | $608,258 | $608,258 |
| 2017 | $158,149 | $401,000 | $0 | $559,149 | $559,149 |
| 2016 | $159,955 | $401,000 | $0 | $560,955 | $560,955 |
| 2015 | $158,793 | $401,000 | $0 | $559,793 | $559,793 |
| 2014 | $143,122 | $401,000 | $0 | $544,122 | $544,122 |
| 2013 | $144,954 | $401,000 | $0 | $545,954 | $545,954 |
| 2012 | $146,787 | $658,282 | $0 | $805,069 | $805,069 |
| 2011 | $148,619 | $774,273 | $0 | $922,892 | $922,892 |
| 2010 | $156,883 | $774,273 | $0 | $931,156 | $931,156 |
| 2009 | $161,637 | $1,052,218 | $0 | $1,213,855 | $1,213,855 |
| 2008 | $128,954 | $1,052,218 | $0 | $1,181,172 | $1,181,172 |
| 2007 | $130,933 | $1,051,634 | $0 | $1,182,567 | $1,182,567 |
Deed and Sales History
| 1 | 07/23/2024 | PRD | Personal Representatives Deed | ESTATE OF EDWARD W GRABO | GRABO, JOAN C | | | $0.00 | 60744 | 4575072 |
| 2 | 06/05/2015 | WD | Warranty Deed | MARKS TRUSTEE, DALE D | GRABO, EDWARD W | | | $525,000.00 | 19931 | 4379892 |
| 3 | 11/06/2003 | 5 | DNU - Marriage License/Name Change | MARKS, DALE D | MARKS TRUSTEE, DALE D | | | $0.00 | 35222 | 4083461 |
| 4 | 05/16/2003 | QCD | Quit Claim Deed | MARKS TRUSTEE, DALE D | MARKS, DALE D | | | $0.00 | 32180 | 4060055 |
| 5 | 11/29/2002 | QCD | Quit Claim Deed | MARKS, JANE C | MARKS TRUSTEE, DALE D | | | $0.00 | 24836 | 4039410 |
| 6 | 06/01/1990 | QCD | Quit Claim Deed | PINGER, JANE C | MARKS, JANE C | | | $0.00 | 3418 | 90011154 |
| 7 | 04/01/1990 | OTHER | Other - Misc. Documents | PINGER, JANE C | PINGER, JANE C | | | $0.00 | 63622 | 90007324 |
| 8 | 08/01/1980 | OTHER | Other - Misc. Documents | PINGER, JAMES W | PINGER, JANE C | | | $0.00 | 58908 | 0 |
| 9 | 01/01/1900 | OTHER | Other - Misc. Documents | Unknown | PINGER, JAMES W | | | $0.00 | 0 | 0 |
Payout Agreement
| No payout information available.. |