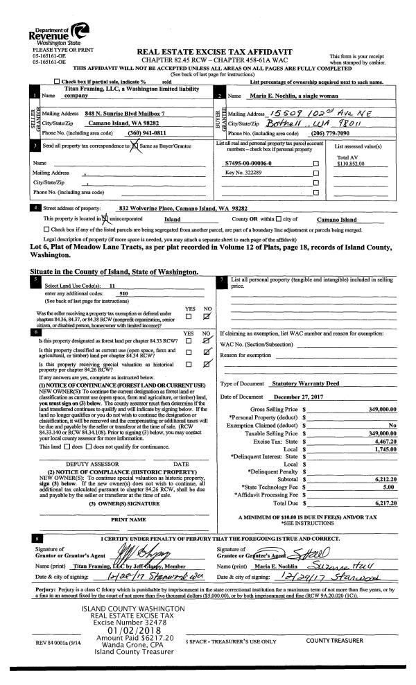
Property
Account |
| Property ID: | 33804 | Abbreviated Legal Description: | 55 - IN NE NW: BG CM SLN SD SUBD & WLN ST HWY N89*W662 .03' TO SWCR NE NW N193.03' TPB N65*E229.03' N24*W160' S65*W137.49' S175.26' TPB EX: BG CM SLN SD SUBD & WLN ST HWY N89*W662.03' TO SWCR NE NW N193.03' TPB N65*E229 .03' N24*W80' S65*W193.26' S87.63' |
| Geographic ID: | R13311-418-1390 | Agent Code: | |
| Type: | Real | | |
| Tax Area: | 110 - APPRAISER-OH Schl Dist, outside OH, improved & 1 acre or less | Land Use Code | 11 |
| Open Space: | N | DFL | N |
| Historic Property: | N | Remodel Property: | N |
| Multi-Family Redevelopment: | N | | |
| Township: | 33 | Section: | 11 |
| Range: | R1 |
Location |
| Address: | 4329 NOISEY CIR OAK HARBOR, WA 98277 | Mapsco: | |
| Neighborhood: | Cycle 6 | Map ID: | 202 |
| Neighborhood CD: | 6 |
Owner |
| Name: | FROST, LORRAINE | Owner ID: | 282260 |
| Mailing Address: | 4329 NOISY CIRCLE OAK HARBOR, WA 98277 | % Ownership: | 100.0000000000% |
| | | Exemptions: | |
Taxes and Assessment Details
Values
| (+) Improvement Homesite Value: | + | $0 | |
| (+) Improvement Non-Homesite Value: | + | $103,765 | |
| (+) Land Homesite Value: | + | $0 | |
| (+) Land Non-Homesite Value: | + | $190,000 | |
| (+) Curr Use (HS): | + | $0 | $0 |
| (+) Curr Use (NHS): | + | $0 | $0 |
| | | -------------------------- | |
| (=) Market Value: | = | $293,765 | |
| (–) Productivity Loss: | – | $0 | |
| | | -------------------------- | |
| (=) Subtotal: | = | $293,765 | |
| (+) Senior Appraised Value: | + | $0 | |
| (+) Non-Senior Appraised Value: | + | $293,765 | |
| | | -------------------------- | |
| (=) Total Appraised Value: | = | $293,765 | |
| (–) Senior Exemption Loss: | – | $0 | |
| (–) Exemption Loss: | – | $0 | |
| | | -------------------------- | |
| (=) Taxable Value: | = | $293,765 | |
Taxing Jurisdiction
| Owner: | FROST, LORRAINE | | |
| % Ownership: | 100.0000000000% | | |
| Total Value: | $293,765 | | |
| Tax Area: | 110 - APPRAISER-OH Schl Dist, outside OH, improved & 1 acre or less |
| CF | Conservation Futures | 0.0316035091 | $293,765 | $293,765 | $9.28 | | |
| CEM1 | Cemetery #1 | 0.0040320932 | $293,765 | $293,765 | $1.18 | | |
| FIRE2 | Fire & Rescue Dist #2 N Whidbey GEN | 0.5475949600 | $293,765 | $293,765 | $160.86 | | |
| HOBOND | Hospital BOND | 0.1910887512 | $293,765 | $293,765 | $56.14 | | |
| HOGEN | Hospital GEN | 0.3902502903 | $293,765 | $293,765 | $114.64 | | |
| CE | County Current Expense | 0.3708482477 | $293,765 | $293,765 | $108.94 | | |
| CR | County Roads | 0.4584763726 | $293,765 | $293,765 | $134.68 | | |
| ISLANDEMS | Hospital GEN (EMS) | 0.5000000000 | $293,765 | $293,765 | $146.88 | | |
| LIB | Library Sno-Isle GEN | 0.3153421757 | $293,765 | $293,765 | $92.64 | | |
| NWHIDPRMT | P & R N Whidbey GEN | 0.2004466701 | $293,765 | $293,765 | $58.88 | | |
| SCH201MO | School 201 Enrichment | 1.8559231640 | $293,765 | $293,765 | $545.21 | | |
| ST | State School | 1.3035497053 | $293,765 | $293,765 | $382.94 | | |
| ST2 | State School Part 2 | 0.8169543533 | $293,765 | $293,765 | $239.99 | | |
| | Total Tax Rate: | 6.9861102925 | | | | | |
| | | | | Taxes w/Current Exemptions: | $2,052.26 | | |
| | | | | Taxes w/o Exemptions: | $2,052.26 | | |
Improvement / Building
| Improvement #1: | MANUFACTURED HOME | State Code: | Y | 1356.0 sqft | Value: | $103,765 |
| Bathrooms: | 2 | Bedrooms: | 3 | | Ceiling: | PLASTER PAINTED | Cooling: | EVAP NO DUCT | | Exterior Wall/Cover: | VINYL | Floor Covering: | CARPET 100% | | Floor Structure: | SLAB ON GRADE | Foundation: | SLAB | | Heating: | FHA ELECTRIC | Interior Finish: | PLASTER | | Plumbing Fixture Cnt: | 1 | Roof Slope: | FLAT | | Roof Structure/Cover: | CJ ALUMINIUM HEAVY |   |   |
|
| | Type | Description | Class CD | Sub Class CD | Year Built | Area |
| | BAS | BASE/MAIN FLOOR | 4 | 0 | 1997 | 1356.0 |
| | OWP | OPEN WOOD PORCH W/STEPS | 4 | 0 | 1997 | 106.8 |
| | UTY | STORAGE/UTILITY | 4 | 0 | 1997 | 140.0 |
Sketch
Property Image
Land
| 1 | 15 | SQ (12001-21780) | 0.3200 | 13939.20 | 0.00 | 0.00 | 1.00 | $190,000 | $0 |
Roll Value History
| 2026 | N/A | N/A | N/A | N/A | N/A |
| 2025 | $103,765 | $190,000 | $0 | $293,765 | $293,765 |
| 2024 | $107,007 | $170,000 | $0 | $277,007 | $277,007 |
| 2023 | $95,870 | $170,000 | $0 | $265,870 | $265,870 |
| 2022 | $76,319 | $160,000 | $0 | $236,319 | $236,319 |
| 2021 | $68,259 | $125,000 | $0 | $193,259 | $193,259 |
| 2020 | $67,188 | $110,000 | $0 | $177,188 | $177,188 |
| 2019 | $54,379 | $150,000 | $0 | $204,379 | $204,379 |
| 2018 | $55,830 | $120,000 | $0 | $175,830 | $175,830 |
| 2017 | $52,526 | $90,000 | $0 | $142,526 | $142,526 |
| 2016 | $41,001 | $70,000 | $0 | $111,001 | $111,001 |
| 2015 | $41,570 | $50,000 | $0 | $91,570 | $91,570 |
| 2014 | $42,709 | $55,250 | $0 | $97,959 | $97,959 |
| 2013 | $43,848 | $55,250 | $0 | $99,098 | $99,098 |
| 2012 | $44,986 | $55,250 | $0 | $100,236 | $100,236 |
| 2011 | $46,125 | $65,000 | $0 | $111,125 | $111,125 |
| 2010 | $48,953 | $65,000 | $0 | $113,953 | $113,953 |
| 2009 | $51,618 | $65,000 | $0 | $116,618 | $116,618 |
| 2008 | $52,971 | $65,000 | $0 | $117,971 | $117,971 |
| 2007 | $53,662 | $65,000 | $0 | $118,662 | $118,662 |
Deed and Sales History
| 1 | 09/25/2017 | WD | Warranty Deed | SERNA, VICTOR R | FROST, LORRAINE | | | $200,000.00 | 31348 | 4431300 |
| 2 | 09/07/2005 | WD | Warranty Deed | BOHLE, LINDA | SERNA, VICTOR R | | | $162,000.00 | 54495 | 4147018 |
| 3 | 05/01/1997 | OTHER | Other - Misc. Documents | BOHLE, LINDA | BOHLE, LINDA | | | $0.00 | 11111111 | 0 |
| 4 | 05/01/1997 | ESTSEPPROP | Establish Separate Property | BOHLE, LINDA | BOHLE, LINDA | | | $0.00 | 71910 | 97008768 |
| 5 | 03/01/1997 | QCD | Quit Claim Deed | HOBBS, VERONA L | BOHLE, LINDA | | | $0.00 | 70869 | 97003997 |
| 6 | 04/01/1990 | OTHER | Other - Misc. Documents | SORBEN, VEROBA H | HOBBS, VERONA L | | | $0.00 | 63596 | 0 |
| 7 | 01/01/1900 | OTHER | Other - Misc. Documents | Unknown | SORBEN, VEROBA H | | | $0.00 | 0 | 0 |
Payout Agreement
| No payout information available.. |