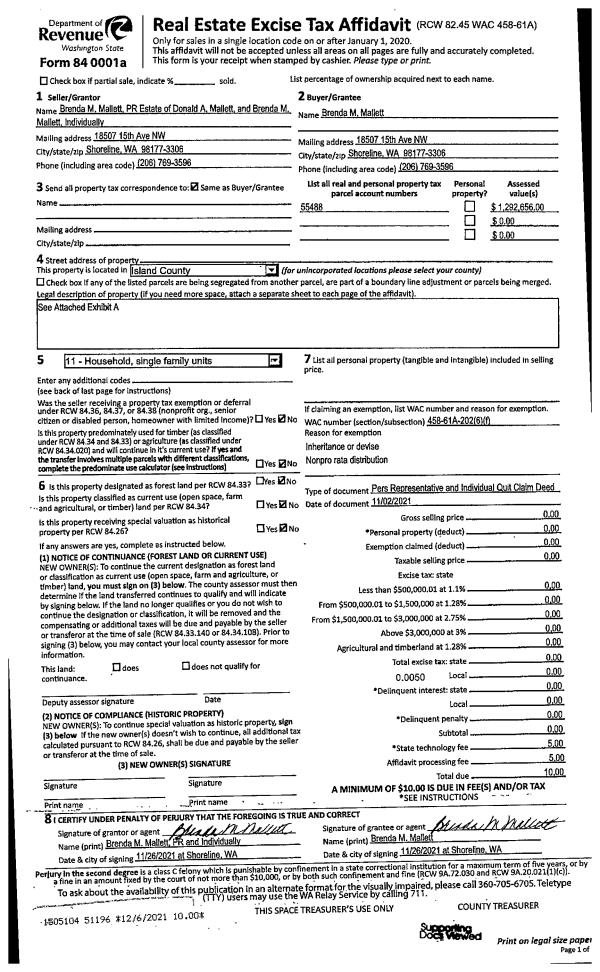
Property
Account |
| Property ID: | 338085 | Abbreviated Legal Description: | ORRS S100' OF E175' OF W575' OF LOT 26 |
| Geographic ID: | S7620-00-26010-0 | Agent Code: | |
| Type: | Real | | |
| Tax Area: | 720 - APPRAISER-S Whid Schl Dist, Special District, improved & less than 1 acre | Land Use Code | 11 |
| Open Space: | N | DFL | N |
| Historic Property: | N | Remodel Property: | N |
| Multi-Family Redevelopment: | N | | |
| Township: | | Section: | |
| Range: | |
Location |
| Address: | 4825 BERG RD CLINTON, WA 98236 | Mapsco: | |
| Neighborhood: | Cycle 4 | Map ID: | 1002 |
| Neighborhood CD: | 4 |
Owner |
| Name: | ROTH, JOHN D | Owner ID: | 256621 |
| Mailing Address: | PO BOX 289 CLINTON, WA 98236-0289 | % Ownership: | 100.0000000000% |
| | | Exemptions: | |
Taxes and Assessment Details
Values
| (+) Improvement Homesite Value: | + | $0 | |
| (+) Improvement Non-Homesite Value: | + | $266,390 | |
| (+) Land Homesite Value: | + | $0 | |
| (+) Land Non-Homesite Value: | + | $340,000 | |
| (+) Curr Use (HS): | + | $0 | $0 |
| (+) Curr Use (NHS): | + | $0 | $0 |
| | | -------------------------- | |
| (=) Market Value: | = | $606,390 | |
| (–) Productivity Loss: | – | $0 | |
| | | -------------------------- | |
| (=) Subtotal: | = | $606,390 | |
| (+) Senior Appraised Value: | + | $0 | |
| (+) Non-Senior Appraised Value: | + | $606,390 | |
| | | -------------------------- | |
| (=) Total Appraised Value: | = | $606,390 | |
| (–) Senior Exemption Loss: | – | $0 | |
| (–) Exemption Loss: | – | $0 | |
| | | -------------------------- | |
| (=) Taxable Value: | = | $606,390 | |
Taxing Jurisdiction
| Owner: | ROTH, JOHN D | | |
| % Ownership: | 100.0000000000% | | |
| Total Value: | $606,390 | | |
| Tax Area: | 720 - APPRAISER-S Whid Schl Dist, Special District, improved & less than 1 acre |
| CF | Conservation Futures | 0.0316035091 | $606,390 | $606,390 | $19.16 | | |
| FIRE3 | Fire & Rescue Dist #3 S Whidbey GEN | 1.2004855531 | $606,390 | $606,390 | $727.96 | | |
| HOBOND | Hospital BOND | 0.1910887512 | $606,390 | $606,390 | $115.87 | | |
| HOGEN | Hospital GEN | 0.3902502903 | $606,390 | $606,390 | $236.64 | | |
| CE | County Current Expense | 0.3708482477 | $606,390 | $606,390 | $224.88 | | |
| CR | County Roads | 0.4584763726 | $606,390 | $606,390 | $278.02 | | |
| ISLANDEMS | Hospital GEN (EMS) | 0.5000000000 | $606,390 | $606,390 | $303.20 | | |
| LIB | Library Sno-Isle GEN | 0.3153421757 | $606,390 | $606,390 | $191.22 | | |
| PORTWHID | Port of S Whidbey GEN | 0.1094540357 | $606,390 | $606,390 | $66.37 | | |
| SCH206BOND | School 206 BOND | 0.3161759235 | $606,390 | $606,390 | $191.73 | | |
| SCH206MO | School 206 Enrichment | 0.4547169547 | $606,390 | $606,390 | $275.74 | | |
| ST | State School | 1.3035497053 | $606,390 | $606,390 | $790.46 | | |
| ST2 | State School Part 2 | 0.8169543533 | $606,390 | $606,390 | $495.39 | | |
| SWHIDPRBD | P & R S Whidbey BOND | 0.0152817568 | $606,390 | $606,390 | $9.27 | | |
| SWHIDPRBD2 | P & R S Whidbey BOND2 | 0.0138911264 | $606,390 | $606,390 | $8.42 | | |
| SWHIDPRMT | P & R S Whidbey GEN | 0.2053334452 | $606,390 | $606,390 | $124.51 | | |
| | Total Tax Rate: | 6.6934522006 | | | | | |
| | | | | Taxes w/Current Exemptions: | $4,058.84 | | |
| | | | | Taxes w/o Exemptions: | $4,058.84 | | |
Improvement / Building
| Improvement #1: | RESIDENTIAL | State Code: | Y | 2969.0 sqft | Value: | $266,390 |
| Bathrooms: | 2.5 | Bedrooms: | 4 | | Ceiling: | DRYWALL PAINTED | Exterior Wall/Cover: | STUCCO | | Floor Covering: | CARPET/VINYL 60-40 | Floor Structure: | WOOD W/SUBFLOOR | | Foundation: | CONCRETE BLOCKS | Heating: | BASEBOARD ELECTRIC | | Interior Finish: | DRYWALL PAINT | Plumbing Fixture Cnt: | 12 | | Roof Slope: | 3" IN 12" | Roof Structure/Cover: | BEAM BUILT-UP ROCK |
|
| | Type | Description | Class CD | Sub Class CD | Year Built | Area |
| | BAS | BASE/MAIN FLOOR | 3 | 0 | 1969 | 2069.0 |
| | DWN | DOWNSTAIRS LIVING AREA | 3 | 0 | 1969 | 900.0 |
| | OP1 | OPEN PORCH SLAB | 3 | 0 | 1969 | 88.0 |
| | OP2 | OPEN PORCH W/STEPS | 3 | 0 | 1969 | 104.0 |
| | OP4 | OPEN PORCH W/CEILING-ROOF | 3 | 0 | 1969 | 480.0 |
| | AGR | ATTACHED GARAGE | 3 | 0 | 1969 | 1053.0 |
| | BAW | BALCONY WOOD RAIL | 3 | 0 | 1969 | 88.0 |
Sketch
Property Image
Land
| 1 | 15 | SQ (12001-21780) | 0.0000 | 0.00 | 0.00 | 0.00 | 1.00 | $340,000 | $0 |
Roll Value History
| 2026 | N/A | N/A | N/A | N/A | N/A |
| 2025 | $266,390 | $340,000 | $0 | $606,390 | $606,390 |
| 2024 | $277,068 | $300,000 | $0 | $577,068 | $577,068 |
| 2023 | $281,992 | $300,000 | $0 | $581,992 | $581,992 |
| 2022 | $334,043 | $280,000 | $0 | $614,043 | $614,043 |
| 2021 | $305,991 | $230,000 | $0 | $535,991 | $535,991 |
| 2020 | $283,563 | $180,000 | $0 | $463,563 | $463,563 |
| 2019 | $216,107 | $240,000 | $0 | $456,107 | $456,107 |
| 2018 | $216,816 | $200,000 | $0 | $416,816 | $416,816 |
| 2017 | $218,233 | $110,000 | $0 | $328,233 | $328,233 |
| 2016 | $221,067 | $100,000 | $0 | $321,067 | $321,067 |
| 2015 | $223,176 | $100,000 | $0 | $323,176 | $323,176 |
| 2014 | $203,374 | $100,000 | $0 | $303,374 | $303,374 |
| 2013 | $206,281 | $100,000 | $0 | $306,281 | $306,281 |
| 2012 | $209,186 | $106,250 | $0 | $315,436 | $315,436 |
| 2011 | $252,220 | $125,000 | $0 | $377,220 | $377,220 |
| 2010 | $267,949 | $125,000 | $0 | $392,949 | $392,949 |
| 2009 | $276,036 | $150,000 | $0 | $426,036 | $426,036 |
| 2008 | $181,979 | $175,000 | $0 | $356,979 | $356,979 |
| 2007 | $184,555 | $175,000 | $0 | $359,555 | $359,555 |
Deed and Sales History
| 1 | 01/03/2012 | BARGSLD | Bargain And Sale Deed | US BANK NATIONAL ASSOCIATION | ROTH, JOHN D | | | $186,000.00 | 6614 | 4308069 |
| 2 | 07/08/2011 | TRUSTEED | Trustee's Deed | WINEMAN, GREGORY D. | US BANK NATIONAL ASSOCIATION | | | $0.00 | 4914 | 4297830 |
| 3 | 01/30/2002 | WD | Warranty Deed | KLOPFENSTEIN, KEVIN/YVONNE | WINEMAN, GREGORY D. | | | $219,665.00 | 20562 | 4011256 |
| 4 | 02/01/1998 | QCD | Quit Claim Deed | KLOPFENSTEIN, KEVIN J | KLOPFENSTEIN, KEVIN/YVONNE | | | $0.00 | 80932 | 98005229 |
| 5 | 06/01/1997 | 5 | DNU - Marriage License/Name Change | KLOPFENSTEIN, KEVIN J | KLOPFENSTEIN, KEVIN J | | | $0.00 | 72237 | 97010416 |
| 6 | 08/01/1984 | WD | Warranty Deed | BLAYNE, ROBERT W | KLOPFENSTEIN, KEVIN J | | | $85,000.00 | 42329 | 84001711 |
| 7 | 05/01/1978 | OTHER | Other - Misc. Documents | Unknown | BLAYNE, ROBERT W | | | $64,500.00 | 82365 | 333351 |
Payout Agreement
| No payout information available.. |