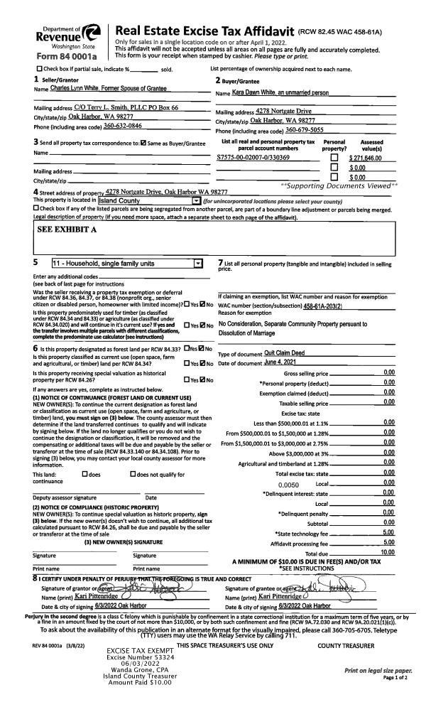
Property
Account |
| Property ID: | 338469 | Abbreviated Legal Description: | OZIYA LOT 2 |
| Geographic ID: | S7630-00-00002-0 | Agent Code: | |
| Type: | Real | | |
| Tax Area: | 540 - APPRAISER-Stan/Cam Schl Dist, Special Dist, improved & less than 1 acre | Land Use Code | 11 |
| Open Space: | N | DFL | N |
| Historic Property: | N | Remodel Property: | N |
| Multi-Family Redevelopment: | N | | |
| Township: | | Section: | |
| Range: | |
Location |
| Address: | 649 AWA LN CAMANO ISLAND, WA 98282 | Mapsco: | |
| Neighborhood: | Cycle 5 | Map ID: | 857 |
| Neighborhood CD: | 5 |
Owner |
| Name: | ARNOLD, PHILLIP R | Owner ID: | 272857 |
| Mailing Address: | TERRY A ARNOLD 649 AWA LN CAMANO ISLAND, WA 98282 | % Ownership: | 100.0000000000% |
| | | Exemptions: | |
Taxes and Assessment Details
Values
| (+) Improvement Homesite Value: | + | $0 | |
| (+) Improvement Non-Homesite Value: | + | $78,986 | |
| (+) Land Homesite Value: | + | $0 | |
| (+) Land Non-Homesite Value: | + | $240,000 | |
| (+) Curr Use (HS): | + | $0 | $0 |
| (+) Curr Use (NHS): | + | $0 | $0 |
| | | -------------------------- | |
| (=) Market Value: | = | $318,986 | |
| (–) Productivity Loss: | – | $0 | |
| | | -------------------------- | |
| (=) Subtotal: | = | $318,986 | |
| (+) Senior Appraised Value: | + | $0 | |
| (+) Non-Senior Appraised Value: | + | $318,986 | |
| | | -------------------------- | |
| (=) Total Appraised Value: | = | $318,986 | |
| (–) Senior Exemption Loss: | – | $0 | |
| (–) Exemption Loss: | – | $0 | |
| | | -------------------------- | |
| (=) Taxable Value: | = | $318,986 | |
Taxing Jurisdiction
| Owner: | ARNOLD, PHILLIP R | | |
| % Ownership: | 100.0000000000% | | |
| Total Value: | $318,986 | | |
| Tax Area: | 540 - APPRAISER-Stan/Cam Schl Dist, Special Dist, improved & less than 1 acre |
| CF | Conservation Futures | 0.0316035091 | $318,986 | $318,986 | $10.08 | | |
| EMS1 | Fire & Rescue Dist #1 Camano GEN (EMS) | 0.3677864386 | $318,986 | $318,986 | $117.32 | | |
| FIRE1 | Fire & Rescue Dist #1 Camano GEN | 1.2502910536 | $318,986 | $318,986 | $398.83 | | |
| FIRE1BOND | Fire & Rescue Dist #1 Camano BOND | 0.1570001679 | $318,986 | $318,986 | $50.08 | | |
| CE | County Current Expense | 0.3708482477 | $318,986 | $318,986 | $118.30 | | |
| CR | County Roads | 0.4584763726 | $318,986 | $318,986 | $146.25 | | |
| LCIB | Library Sno-Isle BOND (Camano Island) | 0.0396325772 | $318,986 | $318,986 | $12.64 | | |
| LIB | Library Sno-Isle GEN | 0.3153421757 | $318,986 | $318,986 | $100.59 | | |
| SCH205_401 | School 205-401 Enrichment | 1.2698420524 | $318,986 | $318,986 | $405.06 | | |
| SCH205BOND | School 205-401 BOND | 0.9396497583 | $318,986 | $318,986 | $299.74 | | |
| ST | State School | 1.3035497053 | $318,986 | $318,986 | $415.81 | | |
| ST2 | State School Part 2 | 0.8169543533 | $318,986 | $318,986 | $260.60 | | |
| | Total Tax Rate: | 7.3209764117 | | | | | |
| | | | | Taxes w/Current Exemptions: | $2,335.30 | | |
| | | | | Taxes w/o Exemptions: | $2,335.30 | | |
Improvement / Building
| Improvement #1: | MANUFACTURED HOME | State Code: | Y | 1331.0 sqft | Value: | $78,986 |
| Bathrooms: | 0 | Bedrooms: | 0 | | Ceiling: | PLASTER PAINTED | Cooling: | EVAP NO DUCT | | Exterior Wall/Cover: | VINYL | Floor Covering: | CARPET 100% | | Floor Structure: | SLAB ON GRADE | Foundation: | SLAB | | Heating: | FHA ELECTRIC | Interior Finish: | PLASTER | | Plumbing Fixture Cnt: | 1 | Roof Slope: | FLAT | | Roof Structure/Cover: | CJ ALUMINIUM HEAVY |   |   |
|
Sketch
Property Image
Land
| 1 | 15 | SQ (12001-21780) | 0.0000 | 0.00 | 0.00 | 0.00 | 1.00 | $240,000 | $0 |
Roll Value History
| 2026 | N/A | N/A | N/A | N/A | N/A |
| 2025 | $78,986 | $240,000 | $0 | $318,986 | $318,986 |
| 2024 | $82,084 | $235,000 | $0 | $317,084 | $317,084 |
| 2023 | $74,076 | $225,000 | $0 | $299,076 | $299,076 |
| 2022 | $69,517 | $180,000 | $0 | $249,517 | $249,517 |
| 2021 | $30,639 | $150,000 | $0 | $180,639 | $180,639 |
| 2020 | $32,294 | $120,000 | $0 | $152,294 | $152,294 |
| 2019 | $26,780 | $160,000 | $0 | $186,780 | $186,780 |
| 2018 | $28,119 | $120,000 | $0 | $148,119 | $148,119 |
| 2017 | $29,458 | $75,000 | $0 | $104,458 | $104,458 |
| 2016 | $30,797 | $50,000 | $0 | $80,797 | $80,797 |
| 2015 | $31,383 | $50,000 | $0 | $81,383 | $81,383 |
| 2014 | $38,704 | $50,000 | $0 | $88,704 | $88,704 |
| 2013 | $39,963 | $50,000 | $0 | $89,963 | $89,963 |
| 2012 | $41,222 | $66,400 | $0 | $107,622 | $107,622 |
| 2011 | $42,480 | $83,000 | $0 | $125,480 | $125,480 |
| 2010 | $43,020 | $83,000 | $0 | $126,020 | $126,020 |
| 2009 | $44,395 | $90,000 | $0 | $134,395 | $134,395 |
| 2008 | $45,833 | $95,000 | $0 | $140,833 | $140,833 |
| 2007 | $41,065 | $100,538 | $0 | $141,603 | $141,603 |
Deed and Sales History
| 1 | 11/11/2015 | SPWARDEED | Special Warranty Deed | SECRETARY OF HOUSING & URBAN DEVELOPMENT | ARNOLD, PHILLIP R | | | $61,000.00 | 22265 | 4390015 |
| 2 | 08/06/2015 | WD | Warranty Deed | HSBC BANK USA NA | SECRETARY OF HOUSING & URBAN DEVELOPMENT | | | $0.00 | 21360 | 4386011 |
| 3 | 11/14/2014 | TRUSTEED | Trustee's Deed | IVERSON, AARON J | HSBC BANK USA NA | | | $0.00 | 17641 | 4368887 |
| 4 | 10/06/2006 | WD | Warranty Deed | HIPSKIND, DARIN S | IVERSON, AARON J | | | $135,000.00 | 64383 | 4183918 |
| 5 | 03/08/2000 | WD | Warranty Deed | SEC OF HOUSING & URBAN DEV, | HIPSKIND, DARIN S | | | $81,000.00 | 914 | 20004549 |
| 6 | 10/04/1999 | WD | Warranty Deed | HOMESIDE LENDING, | SEC OF HOUSING & URBAN DEV, | | | $85,246.00 | 94174 | 99022887 |
| 7 | 09/10/1999 | TRUSTEED | Trustee's Deed | SARTER, WILLIAM H | HOMESIDE LENDING, | | | $85,246.00 | 93904 | 99021792 |
| 8 | 11/01/1994 | OTHER | Other - Misc. Documents | SCHMIDT, LORI | SARTER, WILLIAM H | | | $43,500.00 | 44713 | 0 |
| 9 | 11/01/1994 | WD | Warranty Deed | SARTER, WILLIAM H | SARTER, WILLIAM H | | | $29,000.00 | 44712 | 94024114 |
| 10 | 02/01/1993 | WD | Warranty Deed | SIEVERSON, MARTIN P | SCHMIDT, LORI | | | $12,000.00 | 30512 | 93002777 |
| 11 | 02/01/1989 | QCD | Quit Claim Deed | SIEVERSON, MARTIN P | SIEVERSON, MARTIN P | | | $0.00 | 90427 | 89001474 |
| 12 | 08/01/1984 | QCD | Quit Claim Deed | SIEVERSON, MARTIN P | SIEVERSON, MARTIN P | | | $0.00 | 42527 | 84002516 |
| 13 | 06/01/1979 | TRUSTEED | Trustee's Deed | WELLS, JUNIOR R | SIEVERSON, MARTIN P | | | $6,000.00 | 93940 | 357064 |
| 14 | 01/01/1900 | OTHER | Other - Misc. Documents | Unknown | WELLS, JUNIOR R | | | $0.00 | 0 | 0 |
Payout Agreement
| No payout information available.. |