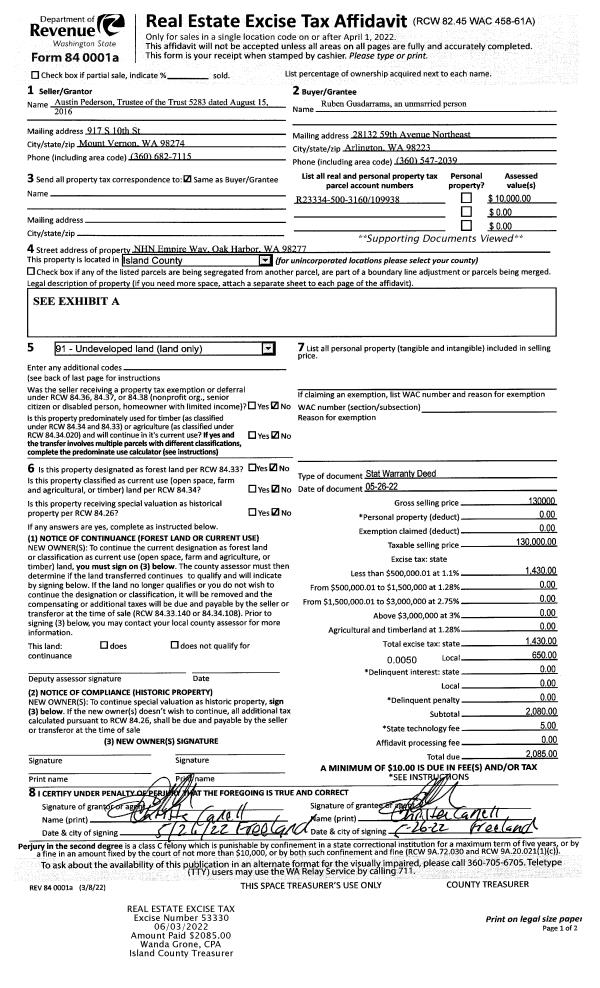
Property
Account |
| Property ID: | 338637 | Abbreviated Legal Description: | OZIYA LOT 19 |
| Geographic ID: | S7630-00-00019-0 | Agent Code: | |
| Type: | Real | | |
| Tax Area: | 540 - APPRAISER-Stan/Cam Schl Dist, Special Dist, improved & less than 1 acre | Land Use Code | 11 |
| Open Space: | N | DFL | N |
| Historic Property: | N | Remodel Property: | N |
| Multi-Family Redevelopment: | N | | |
| Township: | | Section: | |
| Range: | |
Location |
| Address: | 672 AWA LN CAMANO ISLAND, WA 98282 | Mapsco: | |
| Neighborhood: | Cycle 5 | Map ID: | 857 |
| Neighborhood CD: | 5 |
Owner |
| Name: | JACOBSON, BRUCE | Owner ID: | 294036 |
| Mailing Address: | MELODY JACOBSON 672 AWA LN CAMANO ISLAND, WA 98282 | % Ownership: | 100.0000000000% |
| | | Exemptions: | |
Taxes and Assessment Details
Values
| (+) Improvement Homesite Value: | + | $0 | |
| (+) Improvement Non-Homesite Value: | + | $150,904 | |
| (+) Land Homesite Value: | + | $0 | |
| (+) Land Non-Homesite Value: | + | $240,000 | |
| (+) Curr Use (HS): | + | $0 | $0 |
| (+) Curr Use (NHS): | + | $0 | $0 |
| | | -------------------------- | |
| (=) Market Value: | = | $390,904 | |
| (–) Productivity Loss: | – | $0 | |
| | | -------------------------- | |
| (=) Subtotal: | = | $390,904 | |
| (+) Senior Appraised Value: | + | $0 | |
| (+) Non-Senior Appraised Value: | + | $390,904 | |
| | | -------------------------- | |
| (=) Total Appraised Value: | = | $390,904 | |
| (–) Senior Exemption Loss: | – | $0 | |
| (–) Exemption Loss: | – | $0 | |
| | | -------------------------- | |
| (=) Taxable Value: | = | $390,904 | |
Taxing Jurisdiction
| Owner: | JACOBSON, BRUCE | | |
| % Ownership: | 100.0000000000% | | |
| Total Value: | $390,904 | | |
| Tax Area: | 540 - APPRAISER-Stan/Cam Schl Dist, Special Dist, improved & less than 1 acre |
| CF | Conservation Futures | 0.0316035091 | $390,904 | $390,904 | $12.35 | | |
| EMS1 | Fire & Rescue Dist #1 Camano GEN (EMS) | 0.3677864386 | $390,904 | $390,904 | $143.77 | | |
| FIRE1 | Fire & Rescue Dist #1 Camano GEN | 1.2502910536 | $390,904 | $390,904 | $488.74 | | |
| FIRE1BOND | Fire & Rescue Dist #1 Camano BOND | 0.1570001679 | $390,904 | $390,904 | $61.37 | | |
| CE | County Current Expense | 0.3708482477 | $390,904 | $390,904 | $144.97 | | |
| CR | County Roads | 0.4584763726 | $390,904 | $390,904 | $179.22 | | |
| LCIB | Library Sno-Isle BOND (Camano Island) | 0.0396325772 | $390,904 | $390,904 | $15.49 | | |
| LIB | Library Sno-Isle GEN | 0.3153421757 | $390,904 | $390,904 | $123.27 | | |
| SCH205_401 | School 205-401 Enrichment | 1.2698420524 | $390,904 | $390,904 | $496.39 | | |
| SCH205BOND | School 205-401 BOND | 0.9396497583 | $390,904 | $390,904 | $367.31 | | |
| ST | State School | 1.3035497053 | $390,904 | $390,904 | $509.56 | | |
| ST2 | State School Part 2 | 0.8169543533 | $390,904 | $390,904 | $319.35 | | |
| | Total Tax Rate: | 7.3209764117 | | | | | |
| | | | | Taxes w/Current Exemptions: | $2,861.79 | | |
| | | | | Taxes w/o Exemptions: | $2,861.79 | | |
Improvement / Building
| Improvement #1: | MANUFACTURED HOME | State Code: | Y | 1428.0 sqft | Value: | $150,904 |
| Bathrooms: | 1 | Bedrooms: | 2 | | Ceiling: | PLASTER PAINTED | Cooling: | EVAP NO DUCT | | Exterior Wall/Cover: | VINYL | Floor Covering: | CARPET 100% | | Floor Structure: | SLAB ON GRADE | Foundation: | SLAB | | Heating: | FHA ELECTRIC | Interior Finish: | PLASTER | | Roof Slope: | FLAT | Roof Structure/Cover: | CJ ALUMINIUM HEAVY |
|
Sketch
Property Image
Land
| 1 | 15 | SQ (12001-21780) | 0.2554 | 11125.22 | 0.00 | 0.00 | 1.00 | $240,000 | $0 |
Roll Value History
| 2026 | N/A | N/A | N/A | N/A | N/A |
| 2025 | $150,904 | $240,000 | $0 | $390,904 | $390,904 |
| 2024 | $154,115 | $235,000 | $0 | $389,115 | $389,115 |
| 2023 | $135,413 | $225,000 | $0 | $360,413 | $360,413 |
| 2022 | $123,879 | $180,000 | $0 | $303,879 | $303,879 |
| 2021 | $118,557 | $150,000 | $0 | $268,557 | $268,557 |
| 2020 | $115,059 | $120,000 | $0 | $235,059 | $235,059 |
| 2019 | $23,341 | $160,000 | $0 | $183,341 | $183,341 |
| 2018 | $23,808 | $120,000 | $0 | $143,808 | $143,808 |
| 2017 | $24,041 | $75,000 | $0 | $99,041 | $99,041 |
| 2016 | $24,274 | $50,000 | $0 | $74,274 | $74,274 |
| 2015 | $16,750 | $50,000 | $0 | $66,750 | $66,750 |
| 2014 | $16,954 | $50,000 | $0 | $66,954 | $66,954 |
| 2013 | $17,363 | $50,000 | $0 | $67,363 | $67,363 |
| 2012 | $17,772 | $66,400 | $0 | $84,172 | $84,172 |
| 2011 | $18,385 | $83,000 | $0 | $101,385 | $101,385 |
| 2010 | $17,681 | $83,000 | $0 | $100,681 | $100,681 |
| 2009 | $18,353 | $90,000 | $0 | $108,353 | $108,353 |
| 2008 | $18,567 | $95,000 | $0 | $113,567 | $113,567 |
| 2007 | $15,926 | $97,830 | $0 | $113,756 | $113,756 |
Deed and Sales History
| 1 | 04/23/2020 | WD | Warranty Deed | HOSKINS, JEREMY | JACOBSON, BRUCE | | | $327,000.00 | 42832 | 4485419 |
| 2 | 09/20/2019 | WD | Warranty Deed | ANTIS, RICHARD | HOSKINS, JEREMY | | | $60,000.00 | 40394 | 4471946 |
| 3 | 02/26/2016 | WD | Warranty Deed | PLUMMER 50% UNDIV INT, WILLIAM G & MARY S | ANTIS, RICHARD | | | $84,000.00 | 23353 | 4395070 |
| 4 | 07/12/2005 | TRUSTEED | Trustee's Deed | FEDERAL HOME LOAN MORTGAGE COR | PLUMMER, WILLIAM G & MARY S | | | $80,000.00 | 53328 | 4140443 |
| 5 | 03/30/2005 | TRUSTEED | Trustee's Deed | COGGINS, SUE | FEDERAL HOME LOAN MORTGAGE COR | | | $87,267.00 | 51288 | 4129891 |
| 6 | 05/27/2003 | WD | Warranty Deed | SCIACCA, ROBERT W | COGGINS, SUE | | | $85,500.00 | 32294 | 4060973 |
| 7 | 03/01/1993 | OTHER | Other - Misc. Documents | SCIACCA, ROBERT W | SCIACCA, ROBERT W | | | $10,000.00 | 60991 | 0 |
| 8 | 02/01/1993 | WD | Warranty Deed | JACKELS, MARK R | SCIACCA, ROBERT W | | | $35,000.00 | 30687 | 93003579 |
| 9 | 06/01/1991 | WD | Warranty Deed | WATKINS, ESTHER M | JACKELS, MARK R | | | $30,200.00 | 14485 | 91019575 |
| 10 | 03/01/1985 | DECREE | Divorce Decree/Legal Separation | WATKINS, RONALD | WATKINS, ESTHER M | | | $0.00 | 50731 | 85003065 |
| 11 | 01/01/1900 | OTHER | Other - Misc. Documents | Unknown | WATKINS, RONALD | | | $0.00 | 0 | 0 |
Payout Agreement
| No payout information available.. |