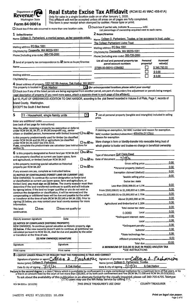
Property
Account |
| Property ID: | 338673 | Abbreviated Legal Description: | OZIYA LOT 23 |
| Geographic ID: | S7630-00-00023-0 | Agent Code: | |
| Type: | Real | | |
| Tax Area: | 540 - APPRAISER-Stan/Cam Schl Dist, Special Dist, improved & less than 1 acre | Land Use Code | 11 |
| Open Space: | N | DFL | N |
| Historic Property: | N | Remodel Property: | N |
| Multi-Family Redevelopment: | N | | |
| Township: | | Section: | |
| Range: | |
Location |
| Address: | 656 AWA LN CAMANO ISLAND, WA 98282 | Mapsco: | |
| Neighborhood: | Cycle 5 | Map ID: | 857 |
| Neighborhood CD: | 5 |
Owner |
| Name: | COUCHOT, TAMI S | Owner ID: | 307312 |
| Mailing Address: | COREY L GORRELL 656 AWA LANE CAMANO ISLAND, WA 98282 | % Ownership: | 100.0000000000% |
| | | Exemptions: | |
Taxes and Assessment Details
Values
| (+) Improvement Homesite Value: | + | $0 | |
| (+) Improvement Non-Homesite Value: | + | $198,954 | |
| (+) Land Homesite Value: | + | $0 | |
| (+) Land Non-Homesite Value: | + | $240,000 | |
| (+) Curr Use (HS): | + | $0 | $0 |
| (+) Curr Use (NHS): | + | $0 | $0 |
| | | -------------------------- | |
| (=) Market Value: | = | $438,954 | |
| (–) Productivity Loss: | – | $0 | |
| | | -------------------------- | |
| (=) Subtotal: | = | $438,954 | |
| (+) Senior Appraised Value: | + | $0 | |
| (+) Non-Senior Appraised Value: | + | $438,954 | |
| | | -------------------------- | |
| (=) Total Appraised Value: | = | $438,954 | |
| (–) Senior Exemption Loss: | – | $0 | |
| (–) Exemption Loss: | – | $0 | |
| | | -------------------------- | |
| (=) Taxable Value: | = | $438,954 | |
Taxing Jurisdiction
| Owner: | COUCHOT, TAMI S | | |
| % Ownership: | 100.0000000000% | | |
| Total Value: | $438,954 | | |
| Tax Area: | 540 - APPRAISER-Stan/Cam Schl Dist, Special Dist, improved & less than 1 acre |
| CF | Conservation Futures | 0.0316035091 | $438,954 | $438,954 | $13.87 | | |
| EMS1 | Fire & Rescue Dist #1 Camano GEN (EMS) | 0.3677864386 | $438,954 | $438,954 | $161.44 | | |
| FIRE1 | Fire & Rescue Dist #1 Camano GEN | 1.2502910536 | $438,954 | $438,954 | $548.82 | | |
| FIRE1BOND | Fire & Rescue Dist #1 Camano BOND | 0.1570001679 | $438,954 | $438,954 | $68.92 | | |
| CE | County Current Expense | 0.3708482477 | $438,954 | $438,954 | $162.79 | | |
| CR | County Roads | 0.4584763726 | $438,954 | $438,954 | $201.25 | | |
| LCIB | Library Sno-Isle BOND (Camano Island) | 0.0396325772 | $438,954 | $438,954 | $17.40 | | |
| LIB | Library Sno-Isle GEN | 0.3153421757 | $438,954 | $438,954 | $138.42 | | |
| SCH205_401 | School 205-401 Enrichment | 1.2698420524 | $438,954 | $438,954 | $557.40 | | |
| SCH205BOND | School 205-401 BOND | 0.9396497583 | $438,954 | $438,954 | $412.46 | | |
| ST | State School | 1.3035497053 | $438,954 | $438,954 | $572.20 | | |
| ST2 | State School Part 2 | 0.8169543533 | $438,954 | $438,954 | $358.61 | | |
| | Total Tax Rate: | 7.3209764117 | | | | | |
| | | | | Taxes w/Current Exemptions: | $3,213.58 | | |
| | | | | Taxes w/o Exemptions: | $3,213.58 | | |
Improvement / Building
| Improvement #1: | MANUFACTURED HOME | State Code: | Y | 1428.0 sqft | Value: | $198,954 |
| Bathrooms: | 1 | Bedrooms: | 2 | | Ceiling: | PLASTER PAINTED | Cooling: | EVAP NO DUCT | | Exterior Wall/Cover: | VINYL | Floor Covering: | CARPET 100% | | Floor Structure: | SLAB ON GRADE | Foundation: | SLAB | | Heating: | FHA ELECTRIC | Interior Finish: | PLASTER | | Plumbing Fixture Cnt: | 1 | Roof Slope: | FLAT | | Roof Structure/Cover: | CJ ALUMINIUM HEAVY |   |   |
|
| | Type | Description | Class CD | Sub Class CD | Year Built | Area |
| | BAS | BASE/MAIN FLOOR | 4 | 0 | 2020 | 1428.0 |
| | DGR | DETACHED GARAGE | 4 | 0 | 2020 | 784.0 |
| | OWP | OPEN WOOD PORCH W/STEPS | 4 | 0 | 2020 | 80.0 |
Sketch
Property Image
Land
| 1 | 15 | SQ (12001-21780) | 0.3090 | 13460.04 | 0.00 | 0.00 | 1.00 | $240,000 | $0 |
Roll Value History
| 2026 | N/A | N/A | N/A | N/A | N/A |
| 2025 | $198,954 | $240,000 | $0 | $438,954 | $438,954 |
| 2024 | $201,026 | $235,000 | $0 | $436,026 | $436,026 |
| 2023 | $176,591 | $225,000 | $0 | $401,591 | $401,591 |
| 2022 | $161,547 | $180,000 | $0 | $341,547 | $341,547 |
| 2021 | $140,467 | $150,000 | $0 | $290,467 | $290,467 |
| 2020 | $132,053 | $70,000 | $0 | $202,053 | $202,053 |
| 2019 | $4,000 | $70,000 | $0 | $74,000 | $74,000 |
| 2018 | $6,525 | $120,000 | $0 | $126,525 | $126,525 |
| 2017 | $6,991 | $75,000 | $0 | $81,991 | $81,991 |
| 2016 | $7,224 | $50,000 | $0 | $57,224 | $57,224 |
| 2015 | $12,312 | $50,000 | $0 | $62,312 | $62,312 |
| 2014 | $12,778 | $50,000 | $0 | $62,778 | $62,778 |
| 2013 | $13,477 | $50,000 | $0 | $63,477 | $63,477 |
| 2012 | $13,943 | $66,400 | $0 | $80,343 | $80,343 |
| 2011 | $14,409 | $83,000 | $0 | $97,409 | $97,409 |
| 2010 | $12,678 | $83,000 | $0 | $95,678 | $95,678 |
| 2009 | $14,481 | $90,000 | $0 | $104,481 | $104,481 |
| 2008 | $15,256 | $95,000 | $0 | $110,256 | $110,256 |
| 2007 | $13,298 | $97,515 | $0 | $110,813 | $110,813 |
Deed and Sales History
| 1 | 01/14/2023 | WD | Warranty Deed | JOHNSON TTEE, HELGA I | COUCHOT, TAMI S | | | $469,000.00 | 55642 | 4555814 |
| 2 | 05/04/2021 | WD | Warranty Deed | JOHNSON, HELGA I | JOHNSON TTEE, HELGA I | | | $0.00 | 48445 | 4520478 |
| 3 | 01/05/2021 | WD | Warranty Deed | NEWTON, LAWRENCE D | JOHNSON, HELGA I | | | $389,000.00 | 46557 | 4508094 |
| 4 | 04/23/2019 | WD | Warranty Deed | MERCER, JESSICA L | NEWTON, LAWRENCE D | | | $80,000.00 | 38724 | 4464269 |
| 5 | 12/01/1992 | OTHER | Other - Misc. Documents | MERCER, JESSICA L | MERCER, JESSICA L | | | $6,000.00 | 24817 | 0 |
| 6 | 11/01/1992 | WD | Warranty Deed | CHATFIELD, LIONELLE H | MERCER, JESSICA L | | | $34,000.00 | 24611 | 92022644 |
| 7 | 05/01/1990 | WD | Warranty Deed | ATKINS, GEORGE T | CHATFIELD, LIONELLE H | | | $20,000.00 | 3217 | 90010393 |
| 8 | 02/01/1982 | EZ | Easement | WARSINSKE, MARTHA A | ATKINS, GEORGE T | | | $11,000.00 | 20494 | 393630 |
| 9 | 01/01/1981 | EZ | Easement | ROBINSON, DAVID C | WARSINSKE, MARTHA A | | | $5,533.00 | 10440 | 379469 |
| 10 | 02/01/1979 | OTHER | Other - Misc. Documents | Unknown | ROBINSON, DAVID C | | | $6,000.00 | 90819 | 348038 |
Payout Agreement
| No payout information available.. |