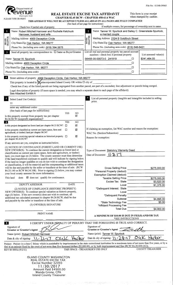
Property
Account |
| Property ID: | 338851 | Abbreviated Legal Description: | PANOR VTA LOT 3 & 1/29TH INT WELL & WATER SYS L29 |
| Geographic ID: | S7640-00-00003-0 | Agent Code: | |
| Type: | Real | | |
| Tax Area: | 710 - APPRAISER-S Whid Schl Dist, outside Langley, improved & 1 acre or less | Land Use Code | 11 |
| Open Space: | N | DFL | N |
| Historic Property: | N | Remodel Property: | N |
| Multi-Family Redevelopment: | N | | |
| Township: | | Section: | |
| Range: | |
Location |
| Address: | 4129 PANVISTA LN LANGLEY, WA 98260 | Mapsco: | |
| Neighborhood: | Cycle 4 | Map ID: | 895 |
| Neighborhood CD: | 4 |
Owner |
| Name: | RAKER TTEE, LINDA HORTON | Owner ID: | 287245 |
| Mailing Address: | 1801 WEDEMEYER ST UNIT 122 SAN FRANCISCO, CA 94129-5280 | % Ownership: | 100.0000000000% |
| | | Exemptions: | |
Taxes and Assessment Details
Values
| (+) Improvement Homesite Value: | + | $0 | |
| (+) Improvement Non-Homesite Value: | + | $442,020 | |
| (+) Land Homesite Value: | + | $0 | |
| (+) Land Non-Homesite Value: | + | $550,000 | |
| (+) Curr Use (HS): | + | $0 | $0 |
| (+) Curr Use (NHS): | + | $0 | $0 |
| | | -------------------------- | |
| (=) Market Value: | = | $992,020 | |
| (–) Productivity Loss: | – | $0 | |
| | | -------------------------- | |
| (=) Subtotal: | = | $992,020 | |
| (+) Senior Appraised Value: | + | $0 | |
| (+) Non-Senior Appraised Value: | + | $992,020 | |
| | | -------------------------- | |
| (=) Total Appraised Value: | = | $992,020 | |
| (–) Senior Exemption Loss: | – | $0 | |
| (–) Exemption Loss: | – | $0 | |
| | | -------------------------- | |
| (=) Taxable Value: | = | $992,020 | |
Taxing Jurisdiction
| Owner: | RAKER TTEE, LINDA HORTON | | |
| % Ownership: | 100.0000000000% | | |
| Total Value: | $992,020 | | |
| Tax Area: | 710 - APPRAISER-S Whid Schl Dist, outside Langley, improved & 1 acre or less |
| CF | Conservation Futures | 0.0316035091 | $992,020 | $992,020 | $31.35 | | |
| FIRE3 | Fire & Rescue Dist #3 S Whidbey GEN | 1.2004855531 | $992,020 | $992,020 | $1,190.91 | | |
| HOBOND | Hospital BOND | 0.1910887512 | $992,020 | $992,020 | $189.56 | | |
| HOGEN | Hospital GEN | 0.3902502903 | $992,020 | $992,020 | $387.14 | | |
| CE | County Current Expense | 0.3708482477 | $992,020 | $992,020 | $367.89 | | |
| CR | County Roads | 0.4584763726 | $992,020 | $992,020 | $454.82 | | |
| ISLANDEMS | Hospital GEN (EMS) | 0.5000000000 | $992,020 | $992,020 | $496.01 | | |
| LIB | Library Sno-Isle GEN | 0.3153421757 | $992,020 | $992,020 | $312.83 | | |
| PORTWHID | Port of S Whidbey GEN | 0.1094540357 | $992,020 | $992,020 | $108.58 | | |
| SCH206BOND | School 206 BOND | 0.3161759235 | $992,020 | $992,020 | $313.65 | | |
| SCH206MO | School 206 Enrichment | 0.4547169547 | $992,020 | $992,020 | $451.09 | | |
| ST | State School | 1.3035497053 | $992,020 | $992,020 | $1,293.15 | | |
| ST2 | State School Part 2 | 0.8169543533 | $992,020 | $992,020 | $810.44 | | |
| SWHIDPRBD | P & R S Whidbey BOND | 0.0152817568 | $992,020 | $992,020 | $15.16 | | |
| SWHIDPRBD2 | P & R S Whidbey BOND2 | 0.0138911264 | $992,020 | $992,020 | $13.78 | | |
| SWHIDPRMT | P & R S Whidbey GEN | 0.2053334452 | $992,020 | $992,020 | $203.69 | | |
| | Total Tax Rate: | 6.6934522006 | | | | | |
| | | | | Taxes w/Current Exemptions: | $6,640.05 | | |
| | | | | Taxes w/o Exemptions: | $6,640.05 | | |
Improvement / Building
| Improvement #1: | RESIDENTIAL | State Code: | Y | 1672.0 sqft | Value: | $442,020 |
| Bathrooms: | 1.5 | Bedrooms: | 2 | | Ceiling: | BEAM PAINTED | Cooling: | HEAT PUMP/CONV/V | | Exterior Wall/Cover: | CEMENT FIBER | Floor Covering: | VINYL 100% | | Floor Structure: | WOOD W/SUBFLOOR | Foundation: | CONCRETE | | Interior Finish: | DRYWALL PAINT | Plumbing Fixture Cnt: | 9 | | Roof Slope: | 3" IN 12" | Roof Structure/Cover: | BEAM ALUMINUM HEAVY |
|
| | Type | Description | Class CD | Sub Class CD | Year Built | Area |
| | BAS | BASE/MAIN FLOOR | 4 | 0 | 2018 | 1528.0 |
| | DWN | DOWNSTAIRS LIVING AREA | 4 | 0 | 2018 | 144.0 |
| | OWP | OPEN WOOD PORCH W/STEPS | 4 | 0 | 2018 | 79.2 |
| | OWR | OPEN WOOD PORCH W/STEPS/ROOF | 4 | 0 | 2018 | 425.3 |
| | UTY | STORAGE/UTILITY | 4 | 0 | 2018 | 242.0 |
Sketch
Property Image
Land
| 1 | HB | HIGH BLUFF | 0.0000 | 0.00 | 60.00 | 0.00 | 1.00 | $550,000 | $0 |
Roll Value History
| 2026 | N/A | N/A | N/A | N/A | N/A |
| 2025 | $442,020 | $550,000 | $0 | $992,020 | $992,020 |
| 2024 | $438,787 | $550,000 | $0 | $988,787 | $988,787 |
| 2023 | $442,324 | $550,000 | $0 | $992,324 | $992,324 |
| 2022 | $403,735 | $550,000 | $0 | $953,735 | $953,735 |
| 2021 | $353,858 | $400,000 | $0 | $753,858 | $753,858 |
| 2020 | $344,434 | $400,000 | $0 | $744,434 | $744,434 |
| 2019 | $192,108 | $400,000 | $0 | $592,108 | $592,108 |
| 2018 | $193,560 | $200,000 | $0 | $393,560 | $393,560 |
| 2017 | $23,000 | $350,000 | $0 | $373,000 | $373,000 |
| 2016 | $27,105 | $300,000 | $0 | $327,105 | $327,105 |
| 2015 | $29,428 | $250,000 | $0 | $279,428 | $279,428 |
| 2014 | $25,441 | $250,000 | $0 | $275,441 | $275,441 |
| 2013 | $26,515 | $205,816 | $0 | $232,331 | $232,331 |
| 2012 | $27,052 | $205,816 | $0 | $232,868 | $232,868 |
| 2011 | $28,126 | $205,816 | $0 | $233,942 | $233,942 |
| 2010 | $32,616 | $205,816 | $0 | $238,432 | $238,432 |
| 2009 | $23,930 | $215,370 | $0 | $239,300 | $239,300 |
| 2008 | $33,783 | $294,046 | $0 | $327,829 | $327,829 |
| 2007 | $34,061 | $165,877 | $0 | $199,938 | $199,938 |
Deed and Sales History
| 1 | 09/24/2018 | WD | Warranty Deed | SARATOGA FAMILY, LLC | RAKER TTEE, LINDA HORTON | | | $865,000.00 | 36096 | 4452631 |
| 2 | 08/17/2017 | WD | Warranty Deed | GAPPA ET AL, MARK A | SARATOGA FAMILY, LLC | | | $0.00 | 31720 | 4433102 |
| 3 | 09/23/2004 | WD | Warranty Deed | QUENTIN, H/E J | GAPPA, MARK A | | | $172,500.00 | 44592 | 4114218 |
| 4 | 01/01/1900 | OTHER | Other - Misc. Documents | Unknown | QUENTIN, H/E J | | | $0.00 | 0 | 0 |
Payout Agreement
| No payout information available.. |