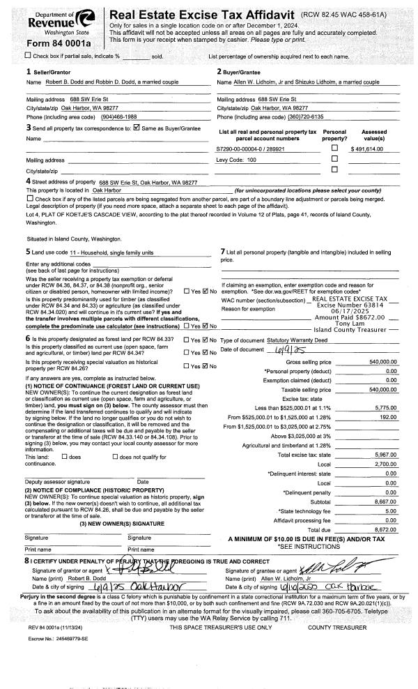
Property
Account |
| Property ID: | 339191 | Abbreviated Legal Description: | PARADISE BCH LOT 7 |
| Geographic ID: | S7645-00-00007-0 | Agent Code: | |
| Type: | Real | | |
| Tax Area: | 512 - APPRAISER-Stan/Cam Schl Dist, improved, greater than 1 acre | Land Use Code | 11 |
| Open Space: | N | DFL | N |
| Historic Property: | N | Remodel Property: | N |
| Multi-Family Redevelopment: | N | | |
| Township: | | Section: | |
| Range: | |
Location |
| Address: | 1250 JUNIPER BEACH RD CAMANO ISLAND, WA 98282 | Mapsco: | |
| Neighborhood: | Cycle 5 | Map ID: | 976 |
| Neighborhood CD: | 5 |
Owner |
| Name: | CALLAGHAN, RICHARD T | Owner ID: | 314710 |
| Mailing Address: | PO BOX 845 STANWOOD, WA 98292 | % Ownership: | 100.0000000000% |
| | | Exemptions: | |
Taxes and Assessment Details
Values
| (+) Improvement Homesite Value: | + | $0 | |
| (+) Improvement Non-Homesite Value: | + | $658,797 | |
| (+) Land Homesite Value: | + | $0 | |
| (+) Land Non-Homesite Value: | + | $500,000 | |
| (+) Curr Use (HS): | + | $0 | $0 |
| (+) Curr Use (NHS): | + | $0 | $0 |
| | | -------------------------- | |
| (=) Market Value: | = | $1,158,797 | |
| (–) Productivity Loss: | – | $0 | |
| | | -------------------------- | |
| (=) Subtotal: | = | $1,158,797 | |
| (+) Senior Appraised Value: | + | $0 | |
| (+) Non-Senior Appraised Value: | + | $1,158,797 | |
| | | -------------------------- | |
| (=) Total Appraised Value: | = | $1,158,797 | |
| (–) Senior Exemption Loss: | – | $0 | |
| (–) Exemption Loss: | – | $0 | |
| | | -------------------------- | |
| (=) Taxable Value: | = | $1,158,797 | |
Taxing Jurisdiction
| Owner: | CALLAGHAN, RICHARD T | | |
| % Ownership: | 100.0000000000% | | |
| Total Value: | $1,158,797 | | |
| Tax Area: | 512 - APPRAISER-Stan/Cam Schl Dist, improved, greater than 1 acre |
| CF | Conservation Futures | 0.0316035091 | $1,158,797 | $1,158,797 | $36.62 | | |
| EMS1 | Fire & Rescue Dist #1 Camano GEN (EMS) | 0.3677864386 | $1,158,797 | $1,158,797 | $426.19 | | |
| FIRE1 | Fire & Rescue Dist #1 Camano GEN | 1.2502910536 | $1,158,797 | $1,158,797 | $1,448.83 | | |
| FIRE1BOND | Fire & Rescue Dist #1 Camano BOND | 0.1570001679 | $1,158,797 | $1,158,797 | $181.93 | | |
| CE | County Current Expense | 0.3708482477 | $1,158,797 | $1,158,797 | $429.74 | | |
| CR | County Roads | 0.4584763726 | $1,158,797 | $1,158,797 | $531.28 | | |
| LCIB | Library Sno-Isle BOND (Camano Island) | 0.0396325772 | $1,158,797 | $1,158,797 | $45.93 | | |
| LIB | Library Sno-Isle GEN | 0.3153421757 | $1,158,797 | $1,158,797 | $365.42 | | |
| SCH205_401 | School 205-401 Enrichment | 1.2698420524 | $1,158,797 | $1,158,797 | $1,471.49 | | |
| SCH205BOND | School 205-401 BOND | 0.9396497583 | $1,158,797 | $1,158,797 | $1,088.86 | | |
| ST | State School | 1.3035497053 | $1,158,797 | $1,158,797 | $1,510.55 | | |
| ST2 | State School Part 2 | 0.8169543533 | $1,158,797 | $1,158,797 | $946.68 | | |
| | Total Tax Rate: | 7.3209764117 | | | | | |
| | | | | Taxes w/Current Exemptions: | $8,483.52 | | |
| | | | | Taxes w/o Exemptions: | $8,483.52 | | |
Improvement / Building
| Improvement #1: | RESIDENTIAL | State Code: | Y | 2716.5 sqft | Value: | $658,797 |
| Bathrooms: | 2.5 | Bedrooms: | 3 | | Ceiling: | DRYWALL PAINTED | Exterior Wall/Cover: | VINYL | | Floor Covering: | SLATE | Floor Structure: | WOOD W/SUBFLOOR | | Foundation: | CONCRETE | Heating: | BASEBOARD ELECTRIC | | Interior Finish: | DRYWALL PAINT | Plumbing Fixture Cnt: | 14 | | Roof Slope: | 6" IN 12" | Roof Structure/Cover: | CJ ASPHALT |
|
| | Type | Description | Class CD | Sub Class CD | Year Built | Area |
| | BAS | BASE/MAIN FLOOR | 4 | 0 | 1950 | 1843.2 |
| | OP4 | OPEN PORCH W/CEILING-ROOF | 4 | 0 | 1950 | 140.0 |
| | DGR | DETACHED GARAGE | 4 | 0 | 1950 | 660.0 |
| | OWP | OPEN WOOD PORCH W/STEPS | 4 | 0 | 1950 | 75.0 |
| | OWP | OPEN WOOD PORCH W/STEPS | 4 | 0 | 1950 | 391.8 |
| | OWC | OPEN WOOD PORCH W/STEPS/ROOF/C | 4 | 0 | 1950 | 361.2 |
| | OWC | OPEN WOOD PORCH W/STEPS/ROOF/C | 4 | 0 | 1950 | 99.0 |
| | OWC | OPEN WOOD PORCH W/STEPS/ROOF/C | 4 | 0 | 1950 | 148.7 |
| | OWC | OPEN WOOD PORCH W/STEPS/ROOF/C | 4 | 0 | 1950 | 192.3 |
| | ENP | ENCLOSED PORCH | 4 | 0 | 1950 | 238.0 |
| | CPD | OPEN CARPORT DIRT FLOOR | 4 | 0 | 1950 | 766.5 |
| | UPS | UPPER STORY | 4 | 0 | 1950 | 873.3 |
Sketch
Property Image
Land
| 1 | HB | HIGH BLUFF | 0.0000 | 0.00 | 100.00 | 0.00 | 1.00 | $500,000 | $0 |
Roll Value History
| 2026 | N/A | N/A | N/A | N/A | N/A |
| 2025 | $658,797 | $500,000 | $0 | $1,158,797 | $1,158,797 |
| 2024 | $678,777 | $500,000 | $0 | $1,178,777 | $1,178,777 |
| 2023 | $687,130 | $425,000 | $0 | $1,112,130 | $1,112,130 |
| 2022 | $629,773 | $390,000 | $0 | $1,019,773 | $1,019,773 |
| 2021 | $555,079 | $325,000 | $0 | $880,079 | $880,079 |
| 2020 | $541,667 | $275,000 | $0 | $816,667 | $816,667 |
| 2019 | $416,760 | $300,000 | $0 | $716,760 | $716,760 |
| 2018 | $417,970 | $275,000 | $0 | $692,970 | $692,970 |
| 2017 | $419,261 | $275,000 | $0 | $694,261 | $694,261 |
| 2016 | $424,081 | $250,000 | $0 | $674,081 | $674,081 |
| 2015 | $362,070 | $250,000 | $0 | $612,070 | $612,070 |
| 2014 | $366,293 | $250,000 | $0 | $616,293 | $616,293 |
| 2013 | $370,513 | $258,453 | $0 | $628,966 | $628,966 |
| 2012 | $374,733 | $258,453 | $0 | $633,186 | $633,186 |
| 2011 | $378,957 | $272,056 | $0 | $651,013 | $651,013 |
| 2010 | $399,323 | $272,056 | $0 | $671,379 | $671,379 |
| 2009 | $470,291 | $321,521 | $0 | $791,812 | $791,812 |
| 2008 | $475,727 | $321,521 | $0 | $797,248 | $797,248 |
| 2007 | $481,173 | $321,521 | $0 | $802,694 | $802,694 |
Deed and Sales History
| 1 | 11/25/2024 | PRD | Personal Representatives Deed | CALLAGHAN, RICHARD | CALLAGHAN, RICHARD T | | | $0.00 | 61960 | 4579923 |
| 2 | 01/22/2001 | QCD | Quit Claim Deed | CALLAGHAN, RICHARD | CALLAGHAN, RICHARD | | | $0.00 | 10729 | 20026834 |
| 3 | 09/01/1988 | WD | Warranty Deed | MULKEY, PAUL E | CALLAGHAN, RICHARD | | | $115,000.00 | 83022 | 88011287 |
| 4 | 11/01/1984 | QCD | Quit Claim Deed | MULKEY, PAUL E | MULKEY, PAUL E | | | $0.00 | 43538 | 84006495 |
| 5 | 08/01/1975 | EXECUTORD | Executor Deed | MCGINNIS, WILLIAM C | MULKEY, PAUL E | | | $0.00 | 56247 | 0 |
| 6 | 01/01/1900 | OTHER | Other - Misc. Documents | Unknown | MCGINNIS, WILLIAM C | | | $0.00 | 0 | 0 |
Payout Agreement
| No payout information available.. |