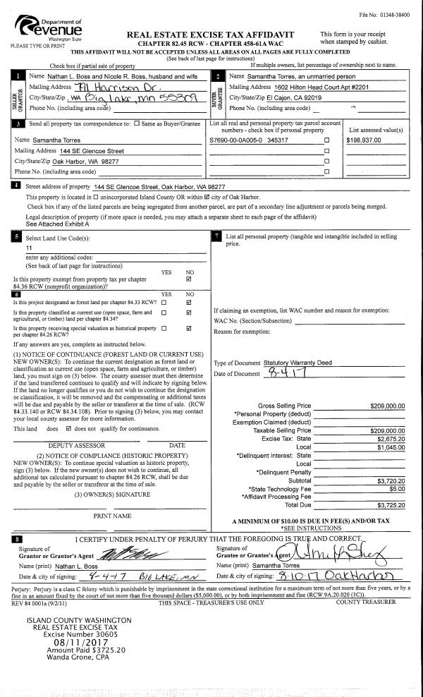
Property
Account |
| Property ID: | 33920 | Abbreviated Legal Description: | 47 - IN NE NW:BG INTER ELN W/2 NE NW & NE LN ST HWY 1- D N24*W624.29' TPB N24*W60' NELY 125' S24*E60' SWLY 125 TPB |
| Geographic ID: | R13311-455-1770 | Agent Code: | |
| Type: | Real | | |
| Tax Area: | 110 - APPRAISER-OH Schl Dist, outside OH, improved & 1 acre or less | Land Use Code | 11 |
| Open Space: | N | DFL | N |
| Historic Property: | N | Remodel Property: | N |
| Multi-Family Redevelopment: | N | | |
| Township: | 33 | Section: | 11 |
| Range: | R1 |
Location |
| Address: | 4357 NORTHGATE DR OAK HARBOR, WA 98277 | Mapsco: | |
| Neighborhood: | Cycle 6 | Map ID: | 202 |
| Neighborhood CD: | 6 |
Owner |
| Name: | NICKENS, ADRIAN | Owner ID: | 314334 |
| Mailing Address: | 4357 NORTHGATE DR OAK HARBOR, WA 98277 | % Ownership: | 100.0000000000% |
| | | Exemptions: | SNR/DSBL |
Taxes and Assessment Details
Values
| (+) Improvement Homesite Value: | + | $175,039 | |
| (+) Improvement Non-Homesite Value: | + | $0 | |
| (+) Land Homesite Value: | + | $180,000 | |
| (+) Land Non-Homesite Value: | + | $0 | |
| (+) Curr Use (HS): | + | $0 | $0 |
| (+) Curr Use (NHS): | + | $0 | $0 |
| | | -------------------------- | |
| (=) Market Value: | = | $355,039 | |
| (–) Productivity Loss: | – | $0 | |
| | | -------------------------- | |
| (=) Subtotal: | = | $355,039 | |
| (+) Senior Appraised Value: | + | $355,039 | |
| (+) Non-Senior Appraised Value: | + | $0 | |
| | | -------------------------- | |
| (=) Total Appraised Value: | = | $355,039 | |
| (–) Senior Exemption Loss: | – | $213,023 | |
| (–) Exemption Loss: | – | $0 | |
| | | -------------------------- | |
| (=) Taxable Value: | = | $142,016 | |
Taxing Jurisdiction
| Owner: | NICKENS, ADRIAN | | |
| % Ownership: | 100.0000000000% | | |
| Total Value: | $355,039 | | |
| Tax Area: | 110 - APPRAISER-OH Schl Dist, outside OH, improved & 1 acre or less |
| CF | Conservation Futures | 0.0316035091 | $355,039 | $142,016 | $4.49 | | |
| CEM1 | Cemetery #1 | 0.0040320932 | $355,039 | $142,016 | $0.57 | | |
| FIRE2 | Fire & Rescue Dist #2 N Whidbey GEN | 0.5475949600 | $355,039 | $142,016 | $77.77 | | |
| HOBOND | Hospital BOND | 0.0000000000 | $355,039 | $0 | $0.00 | | |
| HOGEN | Hospital GEN | 0.3902502903 | $355,039 | $142,016 | $55.42 | | |
| CE | County Current Expense | 0.3708482477 | $355,039 | $142,016 | $52.67 | | |
| CR | County Roads | 0.4584763726 | $355,039 | $142,016 | $65.11 | | |
| ISLANDEMS | Hospital GEN (EMS) | 0.5000000000 | $355,039 | $142,016 | $71.01 | | |
| LIB | Library Sno-Isle GEN | 0.3153421757 | $355,039 | $142,016 | $44.78 | | |
| NWHIDPRMT | P & R N Whidbey GEN | 0.2004466701 | $355,039 | $142,016 | $28.47 | | |
| SCH201MO | School 201 Enrichment | 0.0000000000 | $355,039 | $0 | $0.00 | | |
| ST | State School | 1.3035497053 | $355,039 | $142,016 | $185.12 | | |
| ST2 | State School Part 2 | 0.0000000000 | $355,039 | $0 | $0.00 | | |
| | Total Tax Rate: | 4.1221440240 | | | | | |
| | | | | Taxes w/Current Exemptions: | $585.41 | | |
| | | | | Taxes w/o Exemptions: | $2,480.35 | | |
Improvement / Building
| Improvement #1: | RESIDENTIAL | State Code: | Y | 1122.0 sqft | Value: | $175,039 |
| Bathrooms: | 1 | Bedrooms: | 2 | | Ceiling: | DRYWALL PAINTED | Exterior Wall/Cover: | CEMENT FIBER | | Floor Covering: | CARPET/VINYL 60-40 | Floor Structure: | WOOD W/SUBFLOOR | | Foundation: | CONCRETE | Heating: | BASEBOARD ELECTRIC | | Interior Finish: | DRYWALL PAINT | Plumbing Fixture Cnt: | 6 | | Roof Slope: | 4" IN 12" | Roof Structure/Cover: | CJ COMP ROLL |
|
| | Type | Description | Class CD | Sub Class CD | Year Built | Area |
| | BAS | BASE/MAIN FLOOR | 3 | 0 | 1957 | 1122.0 |
| | OWP | OPEN WOOD PORCH W/STEPS | 3 | 0 | 1957 | 65.0 |
| | OWP | OPEN WOOD PORCH W/STEPS | 3 | 0 | 1957 | 360.0 |
Sketch
Property Image
Land
| 1 | 13 | SQ (06001-08000) | 0.0000 | 7405.20 | 0.00 | 0.00 | 1.00 | $180,000 | $0 |
Roll Value History
| 2026 | N/A | N/A | N/A | N/A | N/A |
| 2025 | $175,039 | $180,000 | $0 | $355,039 | $142,016 |
| 2024 | $181,103 | $170,000 | $0 | $351,103 | $140,441 |
| 2023 | $187,805 | $170,000 | $0 | $357,805 | $143,122 |
| 2022 | $172,098 | $160,000 | $0 | $332,098 | $332,098 |
| 2021 | $151,427 | $125,000 | $0 | $276,427 | $276,427 |
| 2020 | $147,562 | $110,000 | $0 | $257,562 | $257,562 |
| 2019 | $105,267 | $140,000 | $0 | $245,267 | $245,267 |
| 2018 | $105,569 | $120,000 | $0 | $225,569 | $225,569 |
| 2017 | $100,141 | $90,000 | $0 | $190,141 | $190,141 |
| 2016 | $94,415 | $70,000 | $0 | $164,415 | $164,415 |
| 2015 | $58,693 | $50,000 | $0 | $108,693 | $108,693 |
| 2014 | $59,820 | $45,000 | $0 | $104,820 | $104,820 |
| 2013 | $60,950 | $51,000 | $0 | $111,950 | $111,950 |
| 2012 | $62,079 | $51,000 | $0 | $113,079 | $113,079 |
| 2011 | $63,207 | $77,500 | $0 | $140,707 | $140,707 |
| 2010 | $64,342 | $77,500 | $0 | $141,842 | $141,842 |
| 2009 | $69,648 | $90,000 | $0 | $159,648 | $159,648 |
| 2008 | $70,738 | $95,000 | $0 | $165,738 | $165,738 |
| 2007 | $71,827 | $65,000 | $0 | $136,827 | $136,827 |
Deed and Sales History
| 1 | 10/23/2024 | DECREE | Divorce Decree/Legal Separation | LEETS, BREANNA D | NICKENS, ADRIAN | | | | 89460 | |
| 2 | 02/04/2020 | WD | Warranty Deed | ALLEN, ERIC | LEETS, BREANNA D | | | $261,000.00 | 42012 | 4480762 |
| 3 | 08/21/2017 | WD | Warranty Deed | SWEAT, DANIEL M | ALLEN, ERIC | | | $210,200.00 | 30826 | 4429022 |
| 4 | 10/19/2015 | WD | Warranty Deed | WARD, JASON D | SWEAT, DANIEL M | | | $178,000.00 | 21847 | 4388131 |
| 5 | 03/24/2008 | WD | Warranty Deed | FABIAN, RICHARD V | WARD, JASON D | | | $177,500.00 | 80721 | 4224883 |
| 6 | 09/14/2005 | WD | Warranty Deed | BRAGDON, CLIFTON W | FABIAN, RICHARD V | | | $75,000.00 | 54623 | 4147665 |
| 7 | 02/01/1984 | PACD | Purchaser's Assignment | CHRISTIE, GERTRUDE W | BRAGDON, CLIFTON W | | | $27,000.00 | 40402 | 421094 |
| 8 | 07/01/1981 | TRUSTEED | Trustee's Deed | CHRISTIE, D R | CHRISTIE, GERTRUDE W | | | $0.00 | 59185 | 0 |
| 9 | 01/01/1979 | CD | DNU - Correction Deed | CHRISTIE, DONALD R | CHRISTIE, D R | | | $0.00 | 90356 | 346421 |
| 10 | 08/01/1978 | OTHER | Other - Misc. Documents | CH, | CHRISTIE, DONALD R | | | $24,000.00 | 839880 | 3383010 |
Payout Agreement
| No payout information available.. |