Property
Account |
| Property ID: | 339324 | Abbreviated Legal Description: | PARK AC N110' OF TR 5 |
| Geographic ID: | S7650-00-00005-1 | Agent Code: | |
| Type: | Real | | |
| Tax Area: | 110 - APPRAISER-OH Schl Dist, outside OH, improved & 1 acre or less | Land Use Code | 11 |
| Open Space: | N | DFL | N |
| Historic Property: | N | Remodel Property: | N |
| Multi-Family Redevelopment: | N | | |
| Township: | | Section: | |
| Range: | |
Location |
| Address: | 4615 PARK ACRES DR OAK HARBOR, WA 98277 | Mapsco: | |
| Neighborhood: | Cycle 6 | Map ID: | 192 |
| Neighborhood CD: | 6 |
Owner |
| Name: | HAWLEY, DANIEL S | Owner ID: | 78485 |
| Mailing Address: | BARBARA J HAWLEY 4615 PARK ACRES DR OAK HARBOR, WA 98277-9724 | % Ownership: | 100.0000000000% |
| | | Exemptions: | |
Taxes and Assessment Details
Values
| (+) Improvement Homesite Value: | + | $0 | |
| (+) Improvement Non-Homesite Value: | + | $138,538 | |
| (+) Land Homesite Value: | + | $0 | |
| (+) Land Non-Homesite Value: | + | $200,000 | |
| (+) Curr Use (HS): | + | $0 | $0 |
| (+) Curr Use (NHS): | + | $0 | $0 |
| | | -------------------------- | |
| (=) Market Value: | = | $338,538 | |
| (–) Productivity Loss: | – | $0 | |
| | | -------------------------- | |
| (=) Subtotal: | = | $338,538 | |
| (+) Senior Appraised Value: | + | $0 | |
| (+) Non-Senior Appraised Value: | + | $338,538 | |
| | | -------------------------- | |
| (=) Total Appraised Value: | = | $338,538 | |
| (–) Senior Exemption Loss: | – | $0 | |
| (–) Exemption Loss: | – | $0 | |
| | | -------------------------- | |
| (=) Taxable Value: | = | $338,538 | |
Taxing Jurisdiction
| Owner: | HAWLEY, DANIEL S | | |
| % Ownership: | 100.0000000000% | | |
| Total Value: | $338,538 | | |
| Tax Area: | 110 - APPRAISER-OH Schl Dist, outside OH, improved & 1 acre or less |
| CF | Conservation Futures | 0.0316035091 | $338,538 | $338,538 | $10.70 | | |
| CEM1 | Cemetery #1 | 0.0040320932 | $338,538 | $338,538 | $1.37 | | |
| FIRE2 | Fire & Rescue Dist #2 N Whidbey GEN | 0.5475949600 | $338,538 | $338,538 | $185.38 | | |
| HOBOND | Hospital BOND | 0.1910887512 | $338,538 | $338,538 | $64.69 | | |
| HOGEN | Hospital GEN | 0.3902502903 | $338,538 | $338,538 | $132.11 | | |
| CE | County Current Expense | 0.3708482477 | $338,538 | $338,538 | $125.55 | | |
| CR | County Roads | 0.4584763726 | $338,538 | $338,538 | $155.21 | | |
| ISLANDEMS | Hospital GEN (EMS) | 0.5000000000 | $338,538 | $338,538 | $169.27 | | |
| LIB | Library Sno-Isle GEN | 0.3153421757 | $338,538 | $338,538 | $106.76 | | |
| NWHIDPRMT | P & R N Whidbey GEN | 0.2004466701 | $338,538 | $338,538 | $67.86 | | |
| SCH201MO | School 201 Enrichment | 1.8559231640 | $338,538 | $338,538 | $628.30 | | |
| ST | State School | 1.3035497053 | $338,538 | $338,538 | $441.30 | | |
| ST2 | State School Part 2 | 0.8169543533 | $338,538 | $338,538 | $276.57 | | |
| | Total Tax Rate: | 6.9861102925 | | | | | |
| | | | | Taxes w/Current Exemptions: | $2,365.07 | | |
| | | | | Taxes w/o Exemptions: | $2,365.07 | | |
Improvement / Building
| Improvement #1: | MANUFACTURED HOME | State Code: | Y | 1330.3 sqft | Value: | $138,538 |
| Bathrooms: | 0 | Bedrooms: | 0 | | Ceiling: | PLASTER PAINTED | Cooling: | EVAP NO DUCT | | Exterior Wall/Cover: | VINYL | Floor Covering: | CARPET 100% | | Floor Structure: | SLAB ON GRADE | Foundation: | SLAB | | Heating: | FHA ELECTRIC | Interior Finish: | PLASTER | | Plumbing Fixture Cnt: | 1 | Roof Slope: | FLAT | | Roof Structure/Cover: | CJ ALUMINIUM HEAVY |   |   |
|
| | Type | Description | Class CD | Sub Class CD | Year Built | Area |
| | BAS | BASE/MAIN FLOOR | 4 | 0 | 1998 | 1330.3 |
| | oPOL | POLE BARN | 4 | 0 | 1998 | 0.0 |
| | oUTI | UTILITY | 4 | 0 | 1998 | 0.0 |
Sketch
Property Image
Land
| 1 | 16 | AC (00.51-01.00) | 0.0000 | 0.00 | 0.00 | 0.00 | 1.00 | $200,000 | $0 |
Roll Value History
| 2026 | N/A | N/A | N/A | N/A | N/A |
| 2025 | $138,538 | $200,000 | $0 | $338,538 | $338,538 |
| 2024 | $141,459 | $190,000 | $0 | $331,459 | $331,459 |
| 2023 | $131,807 | $190,000 | $0 | $321,807 | $321,807 |
| 2022 | $110,371 | $160,000 | $0 | $270,371 | $270,371 |
| 2021 | $103,980 | $125,000 | $0 | $228,980 | $228,980 |
| 2020 | $104,045 | $110,000 | $0 | $214,045 | $214,045 |
| 2019 | $93,478 | $170,000 | $0 | $263,478 | $263,478 |
| 2018 | $94,816 | $130,000 | $0 | $224,816 | $224,816 |
| 2017 | $96,154 | $110,000 | $0 | $206,154 | $206,154 |
| 2016 | $92,424 | $85,000 | $0 | $177,424 | $177,424 |
| 2015 | $93,641 | $75,000 | $0 | $168,641 | $168,641 |
| 2014 | $94,859 | $72,250 | $0 | $167,109 | $167,109 |
| 2013 | $96,077 | $72,250 | $0 | $168,327 | $168,327 |
| 2012 | $97,294 | $72,250 | $0 | $169,544 | $169,544 |
| 2011 | $98,512 | $85,000 | $0 | $183,512 | $183,512 |
| 2010 | $109,048 | $85,000 | $0 | $194,048 | $194,048 |
| 2009 | $113,251 | $100,000 | $0 | $213,251 | $213,251 |
| 2008 | $115,344 | $104,000 | $0 | $219,344 | $219,344 |
| 2007 | $118,608 | $104,000 | $0 | $222,608 | $222,608 |
Deed and Sales History
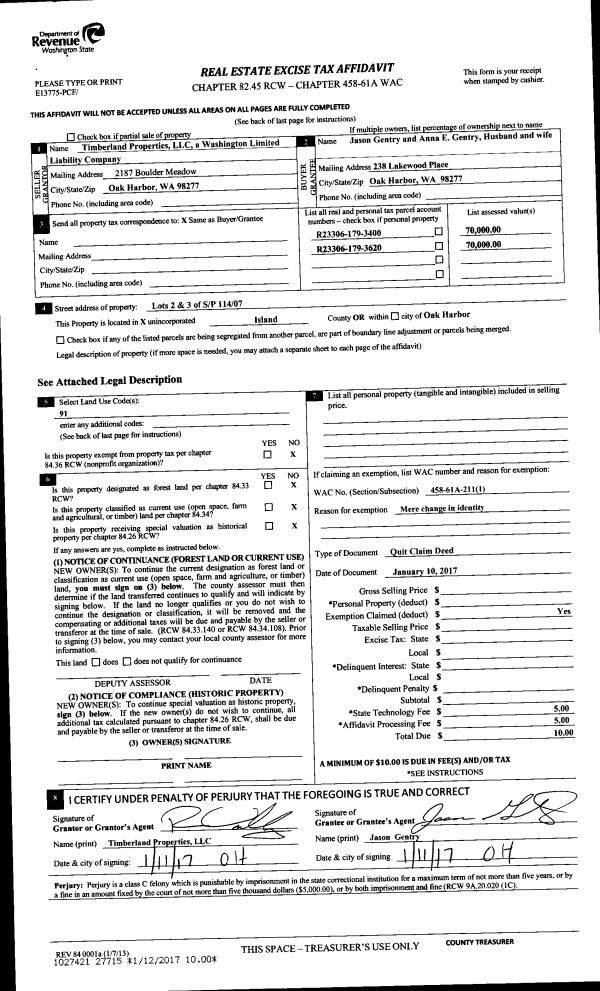
| 1 | 11/21/2002 | WD | Warranty Deed | PERRY, JAMES R | HAWLEY, DANIEL S | | | $155,000.00 | 24790 | 4039096 |
| 2 | 11/01/1987 | WD | Warranty Deed | WEYLAND, CATHY | PERRY, JAMES R | | | $3,000.00 | 73487 | 87015238 |
| 3 | 01/01/1900 | OTHER | Other - Misc. Documents | Unknown | WEYLAND, CATHY | | | $0.00 | 0 | 0 |
Payout Agreement
| No payout information available.. |