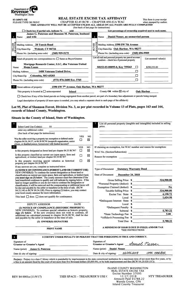
Property
Account |
| Property ID: | 339413 | Abbreviated Legal Description: | PARK AC LOT 8 |
| Geographic ID: | S7650-00-00008-0 | Agent Code: | |
| Type: | Real | | |
| Tax Area: | 112 - APPRAISER-OH Schl Dist, outside OH, improved, greater than 1 acre | Land Use Code | 11 |
| Open Space: | N | DFL | N |
| Historic Property: | N | Remodel Property: | N |
| Multi-Family Redevelopment: | N | | |
| Township: | | Section: | |
| Range: | |
Location |
| Address: | 4636 PARK ACRES DR OAK HARBOR, WA 98277 | Mapsco: | |
| Neighborhood: | Cycle 6 | Map ID: | 192 |
| Neighborhood CD: | 6 |
Owner |
| Name: | SCHOLL, LEE W | Owner ID: | 288323 |
| Mailing Address: | JANET SCHOLL 4636 PARK ACRES DR OAK HARBOR, WA 98277 | % Ownership: | 100.0000000000% |
| | | Exemptions: | |
Taxes and Assessment Details
Values
| (+) Improvement Homesite Value: | + | $0 | |
| (+) Improvement Non-Homesite Value: | + | $255,335 | |
| (+) Land Homesite Value: | + | $0 | |
| (+) Land Non-Homesite Value: | + | $250,000 | |
| (+) Curr Use (HS): | + | $0 | $0 |
| (+) Curr Use (NHS): | + | $0 | $0 |
| | | -------------------------- | |
| (=) Market Value: | = | $505,335 | |
| (–) Productivity Loss: | – | $0 | |
| | | -------------------------- | |
| (=) Subtotal: | = | $505,335 | |
| (+) Senior Appraised Value: | + | $0 | |
| (+) Non-Senior Appraised Value: | + | $505,335 | |
| | | -------------------------- | |
| (=) Total Appraised Value: | = | $505,335 | |
| (–) Senior Exemption Loss: | – | $0 | |
| (–) Exemption Loss: | – | $0 | |
| | | -------------------------- | |
| (=) Taxable Value: | = | $505,335 | |
Taxing Jurisdiction
| Owner: | SCHOLL, LEE W | | |
| % Ownership: | 100.0000000000% | | |
| Total Value: | $505,335 | | |
| Tax Area: | 112 - APPRAISER-OH Schl Dist, outside OH, improved, greater than 1 acre |
| CF | Conservation Futures | 0.0316035091 | $505,335 | $505,335 | $15.97 | | |
| CEM1 | Cemetery #1 | 0.0040320932 | $505,335 | $505,335 | $2.04 | | |
| FIRE2 | Fire & Rescue Dist #2 N Whidbey GEN | 0.5475949600 | $505,335 | $505,335 | $276.72 | | |
| HOBOND | Hospital BOND | 0.1910887512 | $505,335 | $505,335 | $96.56 | | |
| HOGEN | Hospital GEN | 0.3902502903 | $505,335 | $505,335 | $197.21 | | |
| CE | County Current Expense | 0.3708482477 | $505,335 | $505,335 | $187.40 | | |
| CR | County Roads | 0.4584763726 | $505,335 | $505,335 | $231.68 | | |
| ISLANDEMS | Hospital GEN (EMS) | 0.5000000000 | $505,335 | $505,335 | $252.67 | | |
| LIB | Library Sno-Isle GEN | 0.3153421757 | $505,335 | $505,335 | $159.35 | | |
| NWHIDPRMT | P & R N Whidbey GEN | 0.2004466701 | $505,335 | $505,335 | $101.29 | | |
| SCH201MO | School 201 Enrichment | 1.8559231640 | $505,335 | $505,335 | $937.86 | | |
| ST | State School | 1.3035497053 | $505,335 | $505,335 | $658.73 | | |
| ST2 | State School Part 2 | 0.8169543533 | $505,335 | $505,335 | $412.84 | | |
| | Total Tax Rate: | 6.9861102925 | | | | | |
| | | | | Taxes w/Current Exemptions: | $3,530.32 | | |
| | | | | Taxes w/o Exemptions: | $3,530.32 | | |
Improvement / Building
| Improvement #1: | MANUFACTURED HOME | State Code: | Y | 1512.0 sqft | Value: | $255,335 |
| Bathrooms: | 0 | Bedrooms: | 0 | | Ceiling: | PLASTER PAINTED | Cooling: | EVAP NO DUCT | | Exterior Wall/Cover: | VINYL | Floor Covering: | CARPET 100% | | Floor Structure: | SLAB ON GRADE | Foundation: | SLAB | | Heating: | FHA ELECTRIC | Interior Finish: | PLASTER | | Plumbing Fixture Cnt: | 1 | Roof Slope: | FLAT | | Roof Structure/Cover: | CJ ALUMINIUM HEAVY |   |   |
|
| | Type | Description | Class CD | Sub Class CD | Year Built | Area |
| | BAS | BASE/MAIN FLOOR | 4 | 0 | 1987 | 1512.0 |
| | oCB2 | CABIN FIN | 4 | 0 | 1987 | 0.0 |
| | ATF | ATTIC FINISHED | 4 | 0 | 1987 | 800.0 |
| | OP3 | OPEN PORCH W/ROOF | 4 | 0 | 1987 | 280.0 |
| | OWR | OPEN WOOD PORCH W/STEPS/ROOF | 4 | 0 | 1987 | 128.0 |
| | oPOL | POLE BARN | 4 | 0 | 1987 | 0.0 |
| | OWP | OPEN WOOD PORCH W/STEPS | 4 | 0 | 1987 | 128.0 |
| | OWP | OPEN WOOD PORCH W/STEPS | 4 | 0 | 1987 | 333.0 |
| | OWC | OPEN WOOD PORCH W/STEPS/ROOF/C | 4 | 0 | 1987 | 308.0 |
| | OWP | OPEN WOOD PORCH W/STEPS | 4 | 0 | 1987 | 184.0 |
Sketch
Property Image
Land
| 1 | 18 | AC (02.01-03.00) | 2.2800 | 99316.80 | 0.00 | 0.00 | 1.00 | $250,000 | $0 |
Roll Value History
| 2026 | N/A | N/A | N/A | N/A | N/A |
| 2025 | $255,335 | $250,000 | $0 | $505,335 | $505,335 |
| 2024 | $246,734 | $220,000 | $0 | $466,734 | $466,734 |
| 2023 | $228,733 | $220,000 | $0 | $448,733 | $448,733 |
| 2022 | $192,497 | $210,000 | $0 | $402,497 | $402,497 |
| 2021 | $180,428 | $160,000 | $0 | $340,428 | $340,428 |
| 2020 | $180,022 | $130,000 | $0 | $310,022 | $310,022 |
| 2019 | $160,793 | $200,000 | $0 | $360,793 | $360,793 |
| 2018 | $162,787 | $170,000 | $0 | $332,787 | $332,787 |
| 2017 | $164,784 | $150,000 | $0 | $314,784 | $314,784 |
| 2016 | $131,137 | $120,000 | $0 | $251,137 | $251,137 |
| 2015 | $133,828 | $100,000 | $0 | $233,828 | $233,828 |
| 2014 | $135,625 | $75,000 | $0 | $210,625 | $210,625 |
| 2013 | $137,419 | $75,000 | $0 | $212,419 | $212,419 |
| 2012 | $139,213 | $102,000 | $0 | $241,213 | $241,213 |
| 2011 | $141,006 | $120,000 | $0 | $261,006 | $261,006 |
| 2010 | $140,254 | $120,000 | $0 | $260,254 | $260,254 |
| 2009 | $145,667 | $130,000 | $0 | $275,667 | $275,667 |
| 2008 | $136,411 | $118,000 | $0 | $254,411 | $254,411 |
| 2007 | $142,318 | $117,500 | $0 | $259,818 | $259,818 |
Deed and Sales History
| 1 | 12/19/2018 | QCD | Quit Claim Deed | STAPLETON, RAYMOND D | SCHOLL, LEE W | | | $0.00 | 37079 | 4456997 |
| 2 | 09/27/2005 | ESTSEPPROP | Establish Separate Property | STAPLETON, RAYMOND D | STAPLETON, RAYMOND D | | | $0.00 | 55022 | 4149854 |
| 3 | 09/27/2005 | WD | Warranty Deed | WEAVER, JAMES C | STAPLETON, RAYMOND D | | | $269,000.00 | 55021 | 4149853 |
| 4 | 07/01/1988 | OTHER | Other - Misc. Documents | WEAVER, JAMES & | WEAVER, JAMES C | | | $19,758.00 | 11111111 | 0 |
| 5 | 06/01/1985 | WD | Warranty Deed | LAJOIE, JAMES J | WEAVER, JAMES & | | | $16,250.00 | 51712 | 85006828 |
| 6 | 03/01/1980 | REC | Real Estate Contract | O'DONNELL, JOSEPH W | LAJOIE, JAMES J | | | $13,392.00 | 1290 | 367717 |
| 7 | 08/01/1978 | OTHER | Other - Misc. Documents | Unknown | O'DONNELL, JOSEPH W | | | $7,000.00 | 83890 | 337967 |
Payout Agreement
| No payout information available.. |