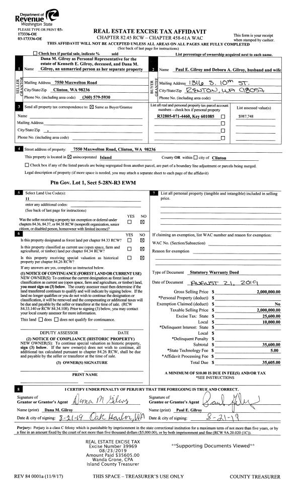
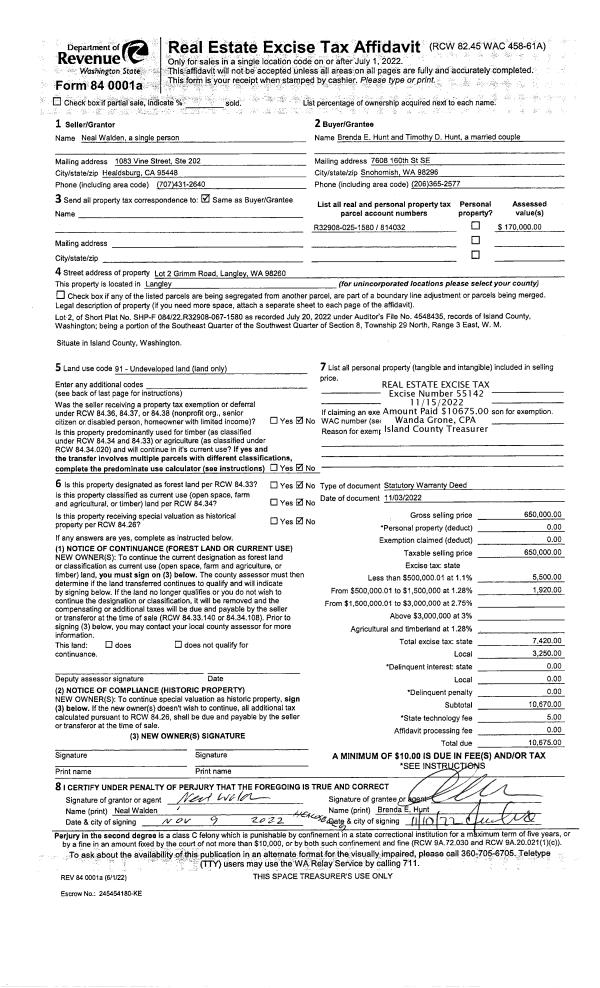
Property
Account |
| Property ID: | 340223 | Abbreviated Legal Description: | PARKLANE S/2 N/2 LOT 8 |
| Geographic ID: | S7660-00-00008-2 | Agent Code: | |
| Type: | Real | | |
| Tax Area: | 549 - APPRAISER-Stan/Cam Schl Dist, Special Dist, vacant & 50 acres or less | Land Use Code | 99 |
| Open Space: | N | DFL | N |
| Historic Property: | N | Remodel Property: | N |
| Multi-Family Redevelopment: | N | | |
| Township: | | Section: | |
| Range: | |
Location |
| Address: | | Mapsco: | |
| Neighborhood: | Cycle 5 | Map ID: | 536 |
| Neighborhood CD: | 5 |
Owner |
| Name: | ARNOT, GRANT | Owner ID: | 305733 |
| Mailing Address: | NATASHA ARNOT 17019 123RD PL NE #T302 BOTHELL, WA 98011 | % Ownership: | 100.0000000000% |
| | | Exemptions: | |
Taxes and Assessment Details
Values
| (+) Improvement Homesite Value: | + | $0 | |
| (+) Improvement Non-Homesite Value: | + | $0 | |
| (+) Land Homesite Value: | + | $0 | |
| (+) Land Non-Homesite Value: | + | $120,000 | |
| (+) Curr Use (HS): | + | $0 | $0 |
| (+) Curr Use (NHS): | + | $0 | $0 |
| | | -------------------------- | |
| (=) Market Value: | = | $120,000 | |
| (–) Productivity Loss: | – | $0 | |
| | | -------------------------- | |
| (=) Subtotal: | = | $120,000 | |
| (+) Senior Appraised Value: | + | $0 | |
| (+) Non-Senior Appraised Value: | + | $120,000 | |
| | | -------------------------- | |
| (=) Total Appraised Value: | = | $120,000 | |
| (–) Senior Exemption Loss: | – | $0 | |
| (–) Exemption Loss: | – | $0 | |
| | | -------------------------- | |
| (=) Taxable Value: | = | $120,000 | |
Taxing Jurisdiction
| Owner: | ARNOT, GRANT | | |
| % Ownership: | 100.0000000000% | | |
| Total Value: | $120,000 | | |
| Tax Area: | 549 - APPRAISER-Stan/Cam Schl Dist, Special Dist, vacant & 50 acres or less |
| CF | Conservation Futures | 0.0316035091 | $120,000 | $120,000 | $3.79 | | |
| EMS1 | Fire & Rescue Dist #1 Camano GEN (EMS) | 0.3677864386 | $120,000 | $120,000 | $44.13 | | |
| CE | County Current Expense | 0.3708482477 | $120,000 | $120,000 | $44.50 | | |
| CR | County Roads | 0.4584763726 | $120,000 | $120,000 | $55.02 | | |
| LCIB | Library Sno-Isle BOND (Camano Island) | 0.0396325772 | $120,000 | $120,000 | $4.76 | | |
| LIB | Library Sno-Isle GEN | 0.3153421757 | $120,000 | $120,000 | $37.84 | | |
| SCH205_401 | School 205-401 Enrichment | 1.2698420524 | $120,000 | $120,000 | $152.38 | | |
| SCH205BOND | School 205-401 BOND | 0.9396497583 | $120,000 | $120,000 | $112.76 | | |
| ST | State School | 1.3035497053 | $120,000 | $120,000 | $156.43 | | |
| ST2 | State School Part 2 | 0.8169543533 | $120,000 | $120,000 | $98.03 | | |
| | Total Tax Rate: | 5.9136851902 | | | | | |
| | | | | Taxes w/Current Exemptions: | $709.64 | | |
| | | | | Taxes w/o Exemptions: | $709.64 | | |
Improvement / Building
Sketch
| No sketches available for this property. |
Property Image
Land
| 1 | 15 | SQ (12001-21780) | 0.4650 | 20255.40 | 0.00 | 0.00 | 1.00 | $120,000 | $0 |
Roll Value History
| 2026 | N/A | N/A | N/A | N/A | N/A |
| 2025 | $0 | $120,000 | $0 | $120,000 | $120,000 |
| 2024 | $0 | $120,000 | $0 | $120,000 | $120,000 |
| 2023 | $0 | $120,000 | $0 | $120,000 | $120,000 |
| 2022 | $0 | $110,000 | $0 | $110,000 | $110,000 |
| 2021 | $0 | $70,000 | $0 | $70,000 | $70,000 |
| 2020 | $0 | $70,000 | $0 | $70,000 | $70,000 |
| 2019 | $0 | $70,000 | $0 | $70,000 | $70,000 |
| 2018 | $0 | $65,000 | $0 | $65,000 | $65,000 |
| 2017 | $0 | $65,000 | $0 | $65,000 | $65,000 |
| 2016 | $0 | $75,000 | $0 | $75,000 | $75,000 |
| 2015 | $0 | $53,120 | $0 | $53,120 | $53,120 |
| 2014 | $0 | $53,120 | $0 | $53,120 | $53,120 |
| 2013 | $0 | $53,120 | $0 | $53,120 | $53,120 |
| 2012 | $0 | $53,120 | $0 | $53,120 | $53,120 |
| 2011 | $0 | $83,000 | $0 | $83,000 | $83,000 |
| 2010 | $0 | $83,000 | $0 | $83,000 | $83,000 |
| 2009 | $4,000 | $90,000 | $0 | $94,000 | $94,000 |
| 2008 | $4,000 | $101,500 | $0 | $105,500 | $105,500 |
| 2007 | $4,000 | $101,500 | $0 | $105,500 | $105,500 |
Deed and Sales History
| 1 | 08/24/2022 | WD | Warranty Deed | CHERNIK, ECHO | ARNOT, GRANT | | | $110,000.00 | 54411 | 4550633 |
| 2 | 07/05/2019 | QCD | Quit Claim Deed | MCKINNEY, ROBERT J | CHERNIK, ECHO | | | $0.00 | 39564 | 4468031 |
| 3 | 07/05/2019 | QCD | Quit Claim Deed | CHERNIK, LAZARUS | CHERNIK, ECHO | | | $0.00 | 39563 | 4468030 |
| 4 | 07/25/2019 | WD | Warranty Deed | MERRETT, JOSEPH J | CHERNIK, ECHO | | | $70,000.00 | 39562 | 4468029 |
| 5 | 05/01/1979 | EXECUTORD | Executor Deed | SUNLAND, ASSOCIATES | MERRETT, JOSEPH J | | | $5,500.00 | 92676 | 353386 |
| 6 | 01/01/1900 | OTHER | Other - Misc. Documents | Unknown | SUNLAND, ASSOCIATES | | | $0.00 | 0 | 0 |
Payout Agreement
| No payout information available.. |