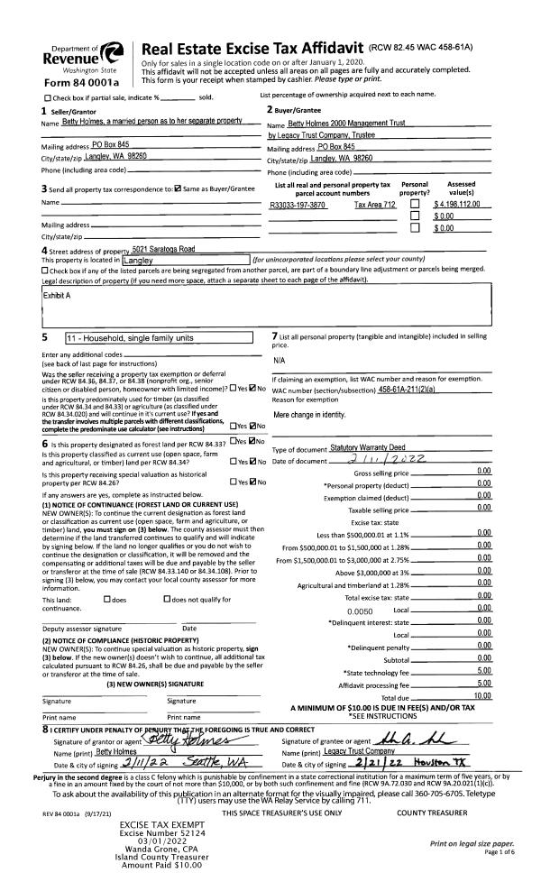
Property
Account |
| Property ID: | 340303 | Abbreviated Legal Description: | PARKLANE 2 SE1/4 OF LOT 5 & EZ |
| Geographic ID: | S7660-02-00005-2 | Agent Code: | |
| Type: | Real | | |
| Tax Area: | 540 - APPRAISER-Stan/Cam Schl Dist, Special Dist, improved & less than 1 acre | Land Use Code | 11 |
| Open Space: | N | DFL | N |
| Historic Property: | N | Remodel Property: | N |
| Multi-Family Redevelopment: | N | | |
| Township: | | Section: | |
| Range: | |
Location |
| Address: | 77 BRADLEY PLACE CAMANO ISLAND, WA 98282 | Mapsco: | |
| Neighborhood: | Cycle 5 | Map ID: | 534 |
| Neighborhood CD: | 5 |
Owner |
| Name: | YOUNG, SCOTT | Owner ID: | 284233 |
| Mailing Address: | WANDA YOUNG 77 BRADLEY PLACE CAMANO ISLAND, WA 98282 | % Ownership: | 100.0000000000% |
| | | Exemptions: | |
Taxes and Assessment Details
Values
| (+) Improvement Homesite Value: | + | $0 | |
| (+) Improvement Non-Homesite Value: | + | $387,122 | |
| (+) Land Homesite Value: | + | $0 | |
| (+) Land Non-Homesite Value: | + | $250,000 | |
| (+) Curr Use (HS): | + | $0 | $0 |
| (+) Curr Use (NHS): | + | $0 | $0 |
| | | -------------------------- | |
| (=) Market Value: | = | $637,122 | |
| (–) Productivity Loss: | – | $0 | |
| | | -------------------------- | |
| (=) Subtotal: | = | $637,122 | |
| (+) Senior Appraised Value: | + | $0 | |
| (+) Non-Senior Appraised Value: | + | $637,122 | |
| | | -------------------------- | |
| (=) Total Appraised Value: | = | $637,122 | |
| (–) Senior Exemption Loss: | – | $0 | |
| (–) Exemption Loss: | – | $0 | |
| | | -------------------------- | |
| (=) Taxable Value: | = | $637,122 | |
Taxing Jurisdiction
| Owner: | YOUNG, SCOTT | | |
| % Ownership: | 100.0000000000% | | |
| Total Value: | $637,122 | | |
| Tax Area: | 540 - APPRAISER-Stan/Cam Schl Dist, Special Dist, improved & less than 1 acre |
| CF | Conservation Futures | 0.0316035091 | $637,122 | $637,122 | $20.14 | | |
| EMS1 | Fire & Rescue Dist #1 Camano GEN (EMS) | 0.3677864386 | $637,122 | $637,122 | $234.32 | | |
| FIRE1 | Fire & Rescue Dist #1 Camano GEN | 1.2502910536 | $637,122 | $637,122 | $796.59 | | |
| FIRE1BOND | Fire & Rescue Dist #1 Camano BOND | 0.1570001679 | $637,122 | $637,122 | $100.03 | | |
| CE | County Current Expense | 0.3708482477 | $637,122 | $637,122 | $236.28 | | |
| CR | County Roads | 0.4584763726 | $637,122 | $637,122 | $292.11 | | |
| LCIB | Library Sno-Isle BOND (Camano Island) | 0.0396325772 | $637,122 | $637,122 | $25.25 | | |
| LIB | Library Sno-Isle GEN | 0.3153421757 | $637,122 | $637,122 | $200.91 | | |
| SCH205_401 | School 205-401 Enrichment | 1.2698420524 | $637,122 | $637,122 | $809.04 | | |
| SCH205BOND | School 205-401 BOND | 0.9396497583 | $637,122 | $637,122 | $598.67 | | |
| ST | State School | 1.3035497053 | $637,122 | $637,122 | $830.52 | | |
| ST2 | State School Part 2 | 0.8169543533 | $637,122 | $637,122 | $520.50 | | |
| | Total Tax Rate: | 7.3209764117 | | | | | |
| | | | | Taxes w/Current Exemptions: | $4,664.36 | | |
| | | | | Taxes w/o Exemptions: | $4,664.36 | | |
Improvement / Building
| Improvement #1: | RESIDENTIAL | State Code: | Y | 1574.0 sqft | Value: | $387,122 |
| Bathrooms: | 2 | Bedrooms: | 3 | | Ceiling: | DRYWALL PAINTED | Exterior Wall/Cover: | CEMENT FIBER | | Floor Covering: | HARDWOOD/CARP 60-40 | Floor Structure: | WOOD W/SUBFLOOR | | Foundation: | CONCRETE | Heating: | FHA ELECTRIC | | Interior Finish: | DRYWALL PAINT | Plumbing Fixture Cnt: | 11 | | Roof Slope: | 5" IN 12" | Roof Structure/Cover: | CJ ASPHALT |
|
| | Type | Description | Class CD | Sub Class CD | Year Built | Area |
| | BAS | BASE/MAIN FLOOR | 3 | 0 | 2015 | 1574.0 |
| | AGR | ATTACHED GARAGE | 3 | 0 | 2015 | 576.0 |
| | OWC | OPEN WOOD PORCH W/STEPS/ROOF/C | 3 | 0 | 2015 | 88.0 |
| | OP3 | OPEN PORCH W/ROOF | 3 | 0 | 2015 | 60.0 |
| | DGR | DETACHED GARAGE | 3 | 0 | 2015 | 1080.0 |
Sketch
Property Image
Land
| 1 | 16 | AC (00.51-01.00) | 0.6300 | 27442.80 | 0.00 | 0.00 | 1.00 | $250,000 | $0 |
Roll Value History
| 2026 | N/A | N/A | N/A | N/A | N/A |
| 2025 | $387,122 | $250,000 | $0 | $637,122 | $637,122 |
| 2024 | $390,107 | $240,000 | $0 | $630,107 | $630,107 |
| 2023 | $393,304 | $240,000 | $0 | $633,304 | $633,304 |
| 2022 | $359,024 | $220,000 | $0 | $579,024 | $579,024 |
| 2021 | $311,279 | $140,000 | $0 | $451,279 | $451,279 |
| 2020 | $301,837 | $120,000 | $0 | $421,837 | $421,837 |
| 2019 | $221,938 | $160,000 | $0 | $381,938 | $381,938 |
| 2018 | $185,401 | $150,000 | $0 | $335,401 | $335,401 |
| 2017 | $186,362 | $135,000 | $0 | $321,362 | $321,362 |
| 2016 | $188,283 | $100,000 | $0 | $288,283 | $288,283 |
| 2015 | $79,849 | $53,120 | $0 | $132,969 | $132,969 |
| 2014 | $0 | $53,120 | $0 | $53,120 | $53,120 |
| 2013 | $0 | $53,120 | $0 | $53,120 | $53,120 |
| 2012 | $0 | $53,120 | $0 | $53,120 | $53,120 |
| 2011 | $0 | $53,120 | $0 | $53,120 | $53,120 |
| 2010 | $0 | $53,120 | $0 | $53,120 | $53,120 |
| 2009 | $0 | $81,000 | $0 | $81,000 | $81,000 |
| 2008 | $0 | $81,000 | $0 | $81,000 | $81,000 |
Deed and Sales History
| 1 | 03/09/2018 | WD | Warranty Deed | LUKEHART, KENNETH | YOUNG, SCOTT | | | $399,000.00 | 33288 | 4440774 |
| 2 | 06/12/2016 | WD | Warranty Deed | MC 10123 LLC | LUKEHART, KENNETH | | | $305,000.00 | 24815 | 4401397 |
| 3 | 09/16/2011 | BARGSLD | Bargain And Sale Deed | FEDERAL NATIONAL MORTGAGE ASSOCIATION | MC 10123 LLC | | | $77,700.00 | 5590 | 4301500 |
|   | |
| 4 | 09/23/2010 | TRUSTEED | Trustee's Deed | ELDER, MERRI SUSAN | FEDERAL NATIONAL MORTGAGE ASSOCIATION | | | $246,597.00 | 2414 | 4281849 |
|   | |
| 5 | 02/26/2007 | WD | Warranty Deed | PEARSON, AMY JO | ELDER, MERRI SUSAN | | | $65,250.00 | 70679 | 4195296 |
| 6 | 07/10/2003 | WD | Warranty Deed | DAVIDSON, JAY | PEARSON, AMY JO | | | $31,726.00 | 33118 | 4067606 |
| 7 | 03/02/1999 | WD | Warranty Deed | GROSHONG, STEVEN L | DAVIDSON, JAY | | | $16,305.00 | 90782 | 99005533 |
| 8 | 05/01/1992 | WD | Warranty Deed | SMITH, RONALD D | GROSHONG, STEVEN L | | | $16,900.00 | 21724 | 92008192 |
| 9 | 07/01/1989 | WD | Warranty Deed | PETRYK, RICHARD E | SMITH, RONALD D | | | $7,600.00 | 92787 | 89009387 |
| 10 | 09/01/1986 | WD | Warranty Deed | DOUGLASS, EMMA B | PETRYK, RICHARD E | | | $7,425.00 | 62672 | 86012115 |
| 11 | 07/01/1985 | DECREE | Divorce Decree/Legal Separation | DOUGLASS, ALLAN W | DOUGLASS, EMMA B | | | $0.00 | 53161 | 85012492 |
| 12 | 10/01/1979 | EXECUTORD | Executor Deed | ZITZER, THOMAS F | DOUGLASS, ALLAN W | | | $17,500.00 | 95196 | 360804 |
| 13 | 05/01/1978 | OTHER | Other - Misc. Documents | Unknown | ZITZER, THOMAS F | | | $3,375.00 | 826220 | 3340850 |
Payout Agreement
| No payout information available.. |