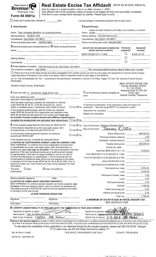
Property
Account |
| Property ID: | 340410 | Abbreviated Legal Description: | PARKLANE 2 LOT 9 |
| Geographic ID: | S7660-02-00009-0 | Agent Code: | |
| Type: | Real | | |
| Tax Area: | 542 - APPRAISER-Stan/Cam Schl Dist, Special Dist, improved, greater than 1 acre | Land Use Code | 11 |
| Open Space: | N | DFL | N |
| Historic Property: | N | Remodel Property: | N |
| Multi-Family Redevelopment: | N | | |
| Township: | | Section: | |
| Range: | |
Location |
| Address: | 2257 PARKER RD CAMANO ISLAND, WA 98282 | Mapsco: | |
| Neighborhood: | Cycle 5 | Map ID: | 534 |
| Neighborhood CD: | 5 |
Owner |
| Name: | ADAIR, HEIDI ANNE | Owner ID: | 306111 |
| Mailing Address: | 2257 PARKER RD CAMANO ISLAND, WA 98282 | % Ownership: | 100.0000000000% |
| | | Exemptions: | |
Taxes and Assessment Details
Values
| (+) Improvement Homesite Value: | + | $0 | |
| (+) Improvement Non-Homesite Value: | + | $313,179 | |
| (+) Land Homesite Value: | + | $0 | |
| (+) Land Non-Homesite Value: | + | $250,000 | |
| (+) Curr Use (HS): | + | $0 | $0 |
| (+) Curr Use (NHS): | + | $0 | $0 |
| | | -------------------------- | |
| (=) Market Value: | = | $563,179 | |
| (–) Productivity Loss: | – | $0 | |
| | | -------------------------- | |
| (=) Subtotal: | = | $563,179 | |
| (+) Senior Appraised Value: | + | $0 | |
| (+) Non-Senior Appraised Value: | + | $563,179 | |
| | | -------------------------- | |
| (=) Total Appraised Value: | = | $563,179 | |
| (–) Senior Exemption Loss: | – | $0 | |
| (–) Exemption Loss: | – | $0 | |
| | | -------------------------- | |
| (=) Taxable Value: | = | $563,179 | |
Taxing Jurisdiction
| Owner: | ADAIR, HEIDI ANNE | | |
| % Ownership: | 100.0000000000% | | |
| Total Value: | $563,179 | | |
| Tax Area: | 542 - APPRAISER-Stan/Cam Schl Dist, Special Dist, improved, greater than 1 acre |
| CF | Conservation Futures | 0.0316035091 | $563,179 | $563,179 | $17.80 | | |
| EMS1 | Fire & Rescue Dist #1 Camano GEN (EMS) | 0.3677864386 | $563,179 | $563,179 | $207.13 | | |
| FIRE1 | Fire & Rescue Dist #1 Camano GEN | 1.2502910536 | $563,179 | $563,179 | $704.14 | | |
| FIRE1BOND | Fire & Rescue Dist #1 Camano BOND | 0.1570001679 | $563,179 | $563,179 | $88.42 | | |
| CE | County Current Expense | 0.3708482477 | $563,179 | $563,179 | $208.85 | | |
| CR | County Roads | 0.4584763726 | $563,179 | $563,179 | $258.20 | | |
| LCIB | Library Sno-Isle BOND (Camano Island) | 0.0396325772 | $563,179 | $563,179 | $22.32 | | |
| LIB | Library Sno-Isle GEN | 0.3153421757 | $563,179 | $563,179 | $177.59 | | |
| SCH205_401 | School 205-401 Enrichment | 1.2698420524 | $563,179 | $563,179 | $715.15 | | |
| SCH205BOND | School 205-401 BOND | 0.9396497583 | $563,179 | $563,179 | $529.19 | | |
| ST | State School | 1.3035497053 | $563,179 | $563,179 | $734.13 | | |
| ST2 | State School Part 2 | 0.8169543533 | $563,179 | $563,179 | $460.09 | | |
| | Total Tax Rate: | 7.3209764117 | | | | | |
| | | | | Taxes w/Current Exemptions: | $4,123.01 | | |
| | | | | Taxes w/o Exemptions: | $4,123.01 | | |
Improvement / Building
| Improvement #1: | RESIDENTIAL | State Code: | Y | 927.0 sqft | Value: | $225,940 |
| Bathrooms: | 2 | Bedrooms: | 3 | | Ceiling: | DRY WALL SPRAYED | Exterior Wall/Cover: | PLY/HARDBOARD T-111 | | Floor Covering: | CARPET/VINYL 80-20 | Floor Structure: | WOOD W/SUBFLOOR | | Foundation: | CONCRETE | Heating: | FHA GAS | | Interior Finish: | DRYWALL PAINT | Plumbing Fixture Cnt: | 10 | | Roof Slope: | 5" IN 12" | Roof Structure/Cover: | CJ ASPHALT |
|
| | Type | Description | Class CD | Sub Class CD | Year Built | Area |
| | BAS | BASE/MAIN FLOOR | 3 | 0 | 1970 | 927.0 |
| | OP3 | OPEN PORCH W/ROOF | 3 | 0 | 1970 | 110.0 |
| | AGR | ATTACHED GARAGE | 3 | 0 | 1970 | 504.0 |
| | OWP | OPEN WOOD PORCH W/STEPS | 3 | 0 | 1970 | 466.0 |
| | ENP | ENCLOSED PORCH | 3 | 0 | 1970 | 84.0 |
| | oUTI | UTILITY | 3 | 0 | 1970 | 168.0 |
| Improvement #2: | RESIDENTIAL | State Code: | Y | 0.0 sqft | Value: | $87,239 |
| | Type | Description | Class CD | Sub Class CD | Year Built | Area |
| | oPOL | POLE BARN | 3 | 0 | 2023 | 734.0 |
| | oCB2 | CABIN FIN | 2 | 0 | 2025 | 410.0 |
| | OWR | OPEN WOOD PORCH W/STEPS/ROOF | 3 | 0 | 2023 | 460.0 |
Sketch
Property Image
Land
| 1 | 18 | AC (02.01-03.00) | 2.4400 | 106286.40 | 0.00 | 0.00 | 1.00 | $250,000 | $0 |
Roll Value History
| 2026 | N/A | N/A | N/A | N/A | N/A |
| 2025 | $313,179 | $250,000 | $0 | $563,179 | $563,179 |
| 2024 | $256,076 | $240,000 | $0 | $496,076 | $496,076 |
| 2023 | $216,238 | $240,000 | $0 | $456,238 | $456,238 |
| 2022 | $132,307 | $220,000 | $0 | $352,307 | $352,307 |
| 2021 | $108,074 | $170,000 | $0 | $278,074 | $278,074 |
| 2020 | $105,743 | $150,000 | $0 | $255,743 | $255,743 |
| 2019 | $75,277 | $200,000 | $0 | $275,277 | $275,277 |
| 2018 | $75,580 | $150,000 | $0 | $225,580 | $225,580 |
| 2017 | $76,184 | $135,000 | $0 | $211,184 | $211,184 |
| 2016 | $77,393 | $140,000 | $0 | $217,393 | $217,393 |
| 2015 | $74,181 | $83,328 | $0 | $157,509 | $157,509 |
| 2014 | $75,438 | $83,328 | $0 | $158,766 | $158,766 |
| 2013 | $76,693 | $83,328 | $0 | $160,021 | $160,021 |
| 2012 | $77,948 | $83,328 | $0 | $161,276 | $161,276 |
| 2011 | $79,205 | $104,160 | $0 | $183,365 | $183,365 |
| 2010 | $88,131 | $104,160 | $0 | $192,291 | $192,291 |
| 2009 | $88,237 | $120,000 | $0 | $208,237 | $208,237 |
| 2008 | $89,149 | $145,453 | $0 | $234,602 | $234,602 |
| 2007 | $92,028 | $143,941 | $0 | $235,969 | $24,494 |
Deed and Sales History
| 1 | 08/30/2022 | WD | Warranty Deed | MORE CONSTRUCTION, LLC | ADAIR, HEIDI ANNE | | | $580,000.00 | 54375 | 4550520 |
| 2 | 09/27/2021 | WD | Warranty Deed | WILLIAMSON, HILDA G | MORE CONSTRUCTION, LLC | | | $368,000.00 | 50210 | 4530130 |
| 3 | 05/25/2010 | WD | Warranty Deed | ANDERSEN, MILDRED F | WILLIAMSON, HILDA G | | | $195,000.00 | 1342 | 4274770 |
| 4 | 01/01/1900 | OTHER | Other - Misc. Documents | Unknown | ANDERSEN, MILDRED F | | | $0.00 | 0 | 0 |
Payout Agreement
| No payout information available.. |