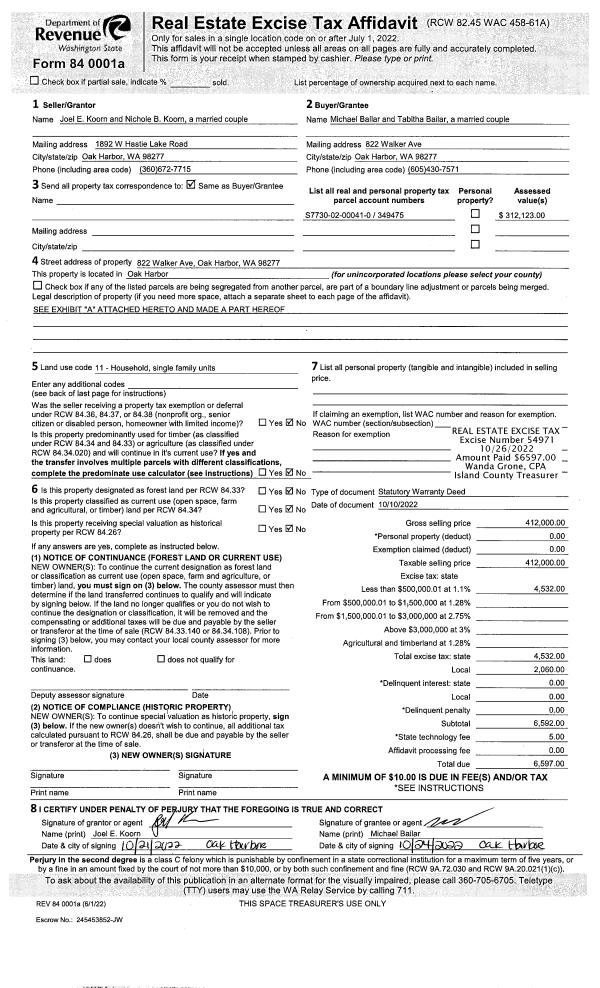
Property
Account |
| Property ID: | 340474 | Abbreviated Legal Description: | PARKLANE E139' OF W278' LOT 14 SP 73-057 TR B |
| Geographic ID: | S7660-02-00014-2 | Agent Code: | |
| Type: | Real | | |
| Tax Area: | 542 - APPRAISER-Stan/Cam Schl Dist, Special Dist, improved, greater than 1 acre | Land Use Code | 11 |
| Open Space: | N | DFL | N |
| Historic Property: | N | Remodel Property: | N |
| Multi-Family Redevelopment: | N | | |
| Township: | | Section: | |
| Range: | |
Location |
| Address: | | Mapsco: | |
| Neighborhood: | Cycle 5 | Map ID: | 534 |
| Neighborhood CD: | 5 |
Owner |
| Name: | O'CONNOR, TIM | Owner ID: | 311448 |
| Mailing Address: | KENDRA GRITSCH 12708 1ST AVE NW SEATTLE, WA 98177 | % Ownership: | 100.0000000000% |
| | | Exemptions: | |
Taxes and Assessment Details
Values
| (+) Improvement Homesite Value: | + | $0 | |
| (+) Improvement Non-Homesite Value: | + | $67,122 | |
| (+) Land Homesite Value: | + | $0 | |
| (+) Land Non-Homesite Value: | + | $250,000 | |
| (+) Curr Use (HS): | + | $0 | $0 |
| (+) Curr Use (NHS): | + | $0 | $0 |
| | | -------------------------- | |
| (=) Market Value: | = | $317,122 | |
| (–) Productivity Loss: | – | $0 | |
| | | -------------------------- | |
| (=) Subtotal: | = | $317,122 | |
| (+) Senior Appraised Value: | + | $0 | |
| (+) Non-Senior Appraised Value: | + | $317,122 | |
| | | -------------------------- | |
| (=) Total Appraised Value: | = | $317,122 | |
| (–) Senior Exemption Loss: | – | $0 | |
| (–) Exemption Loss: | – | $0 | |
| | | -------------------------- | |
| (=) Taxable Value: | = | $317,122 | |
Taxing Jurisdiction
| Owner: | O'CONNOR, TIM | | |
| % Ownership: | 100.0000000000% | | |
| Total Value: | $317,122 | | |
| Tax Area: | 542 - APPRAISER-Stan/Cam Schl Dist, Special Dist, improved, greater than 1 acre |
| CF | Conservation Futures | 0.0316035091 | $317,122 | $317,122 | $10.02 | | |
| EMS1 | Fire & Rescue Dist #1 Camano GEN (EMS) | 0.3677864386 | $317,122 | $317,122 | $116.63 | | |
| FIRE1 | Fire & Rescue Dist #1 Camano GEN | 1.2502910536 | $317,122 | $317,122 | $396.49 | | |
| FIRE1BOND | Fire & Rescue Dist #1 Camano BOND | 0.1570001679 | $317,122 | $317,122 | $49.79 | | |
| CE | County Current Expense | 0.3708482477 | $317,122 | $317,122 | $117.60 | | |
| CR | County Roads | 0.4584763726 | $317,122 | $317,122 | $145.39 | | |
| LCIB | Library Sno-Isle BOND (Camano Island) | 0.0396325772 | $317,122 | $317,122 | $12.57 | | |
| LIB | Library Sno-Isle GEN | 0.3153421757 | $317,122 | $317,122 | $100.00 | | |
| SCH205_401 | School 205-401 Enrichment | 1.2698420524 | $317,122 | $317,122 | $402.69 | | |
| SCH205BOND | School 205-401 BOND | 0.9396497583 | $317,122 | $317,122 | $297.98 | | |
| ST | State School | 1.3035497053 | $317,122 | $317,122 | $413.38 | | |
| ST2 | State School Part 2 | 0.8169543533 | $317,122 | $317,122 | $259.07 | | |
| | Total Tax Rate: | 7.3209764117 | | | | | |
| | | | | Taxes w/Current Exemptions: | $2,321.61 | | |
| | | | | Taxes w/o Exemptions: | $2,321.61 | | |
Improvement / Building
| Improvement #1: | RESIDENTIAL | State Code: | Y | 590.3 sqft | Value: | $67,122 |
| Bathrooms: | 1 | Bedrooms: | 1 | | Ceiling: | PLASTER PAINTED | Exterior Wall/Cover: | STUCCO | | Floor Covering: | HARDWOOD 100% | Floor Structure: | SLAB ON GRADE | | Foundation: | CONCRETE | Heating: | (NONE) | | Interior Finish: | PLASTER | Plumbing Fixture Cnt: | 1 | | Roof Slope: | 3" IN 12" | Roof Structure/Cover: | CJ BUILT-UP ROCK |
|
| | Type | Description | Class CD | Sub Class CD | Year Built | Area |
| | BAS | BASE/MAIN FLOOR | 2 | 0 | 2008 | 590.3 |
| | OWP | OPEN WOOD PORCH W/STEPS | 2 | 0 | 2008 | 70.4 |
Sketch
Property Image
Land
| 1 | 17 | AC (01.01-02.00) | 1.1335 | 49374.00 | 0.00 | 0.00 | 1.00 | $250,000 | $0 |
Roll Value History
| 2026 | N/A | N/A | N/A | N/A | N/A |
| 2025 | $67,122 | $250,000 | $0 | $317,122 | $317,122 |
| 2024 | $67,914 | $240,000 | $0 | $307,914 | $307,914 |
| 2023 | $68,706 | $240,000 | $0 | $308,706 | $308,706 |
| 2022 | $63,045 | $220,000 | $0 | $283,045 | $283,045 |
| 2021 | $22,901 | $170,000 | $0 | $192,901 | $192,901 |
| 2020 | $22,448 | $150,000 | $0 | $172,448 | $172,448 |
| 2019 | $17,224 | $200,000 | $0 | $217,224 | $217,224 |
| 2018 | $17,268 | $150,000 | $0 | $167,268 | $167,268 |
| 2017 | $17,358 | $135,000 | $0 | $152,358 | $152,358 |
| 2016 | $24,291 | $65,000 | $0 | $89,291 | $89,291 |
| 2015 | $0 | $51,894 | $0 | $51,894 | $51,894 |
| 2014 | $0 | $51,894 | $0 | $51,894 | $51,894 |
| 2013 | $0 | $51,894 | $0 | $51,894 | $51,894 |
| 2012 | $0 | $51,894 | $0 | $51,894 | $51,894 |
| 2011 | $0 | $51,894 | $0 | $51,894 | $51,894 |
| 2010 | $0 | $51,894 | $0 | $51,894 | $51,894 |
| 2009 | $0 | $80,000 | $0 | $80,000 | $80,000 |
| 2008 | $0 | $105,000 | $0 | $105,000 | $105,000 |
| 2007 | $0 | $105,000 | $0 | $105,000 | $105,000 |
Deed and Sales History
| 1 | 02/13/2024 | WD | Warranty Deed | CROASDALE, EVA A | O'CONNOR, TIM | | | $215,000.00 | 59226 | 4569516 |
| 2 | 06/03/2022 | WD | Warranty Deed | CLARKE, NATASHA | CROASDALE, EVA A | | | $505,000.00 | 53377 | 4546368 |
|   | |
| 3 | 01/08/2003 | WD | Warranty Deed | WEBER ESTATE, DAPHNE | CLARKE, NATASHA | | | $29,390.00 | 30444 | 4046734 |
| 4 | 01/01/1900 | OTHER | Other - Misc. Documents | Unknown | WEBER ESTATE, DAPHNE | | | $0.00 | 0 | 0 |
Payout Agreement
| No payout information available.. |