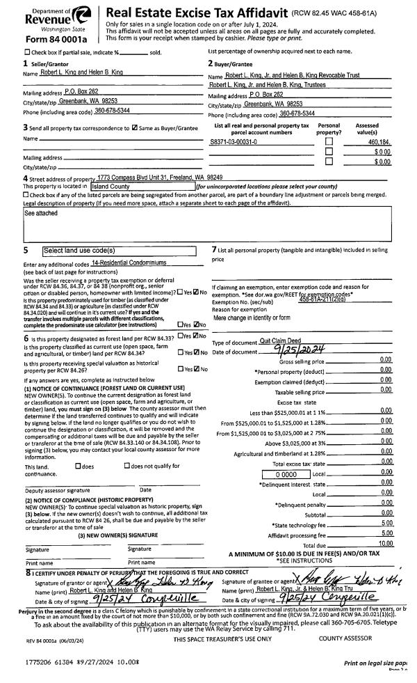
Property
Account |
| Property ID: | 340731 | Abbreviated Legal Description: | PASEKS LOT 12 |
| Geographic ID: | S7670-00-00012-0 | Agent Code: | |
| Type: | Real | | |
| Tax Area: | 100 - APPRAISER-OH Schl Dist, in OH | Land Use Code | 11 |
| Open Space: | N | DFL | N |
| Historic Property: | N | Remodel Property: | N |
| Multi-Family Redevelopment: | N | | |
| Township: | | Section: | |
| Range: | |
Location |
| Address: | 833 SW 2ND AVE OAK HARBOR, WA 98277 | Mapsco: | |
| Neighborhood: | Cycle 1 | Map ID: | 253 |
| Neighborhood CD: | 1 |
Owner |
| Name: | BEAMER, BRUCE A | Owner ID: | 286594 |
| Mailing Address: | SUSAN A BEAMER 833 SW 2ND AVE OAK HARBOR, WA 98277-5306 | % Ownership: | 100.0000000000% |
| | | Exemptions: | SNR/DSBL |
Taxes and Assessment Details
Values
| (+) Improvement Homesite Value: | + | $299,029 | |
| (+) Improvement Non-Homesite Value: | + | $0 | |
| (+) Land Homesite Value: | + | $200,000 | |
| (+) Land Non-Homesite Value: | + | $0 | |
| (+) Curr Use (HS): | + | $0 | $0 |
| (+) Curr Use (NHS): | + | $0 | $0 |
| | | -------------------------- | |
| (=) Market Value: | = | $499,029 | |
| (–) Productivity Loss: | – | $0 | |
| | | -------------------------- | |
| (=) Subtotal: | = | $499,029 | |
| (+) Senior Appraised Value: | + | $489,029 | |
| (+) Non-Senior Appraised Value: | + | $0 | |
| | | -------------------------- | |
| (=) Total Appraised Value: | = | $489,029 | |
| (–) Senior Exemption Loss: | – | $70,000 | |
| (–) Exemption Loss: | – | $0 | |
| | | -------------------------- | |
| (=) Taxable Value: | = | $419,029 | |
Taxing Jurisdiction
| Owner: | BEAMER, BRUCE A | | |
| % Ownership: | 100.0000000000% | | |
| Total Value: | $499,029 | | |
| Tax Area: | 100 - APPRAISER-OH Schl Dist, in OH |
| CF | Conservation Futures | 0.0316035091 | $499,029 | $419,029 | $13.24 | | |
| CEM1 | Cemetery #1 | 0.0040320932 | $499,029 | $419,029 | $1.69 | | |
| COH | City of Oak Harbor | 2.3001546061 | $499,029 | $419,029 | $963.83 | | |
| OAKBOND | City of Oak Harbor BOND | 0.1926904192 | $499,029 | $419,029 | $80.74 | | |
| HOBOND | Hospital BOND | 0.0000000000 | $499,029 | $0 | $0.00 | | |
| HOGEN | Hospital GEN | 0.3902502903 | $499,029 | $419,029 | $163.53 | | |
| CE | County Current Expense | 0.3708482477 | $499,029 | $419,029 | $155.40 | | |
| ISLANDEMS | Hospital GEN (EMS) | 0.5000000000 | $499,029 | $419,029 | $209.51 | | |
| LIB | Library Sno-Isle GEN | 0.3153421757 | $499,029 | $419,029 | $132.14 | | |
| NWHIDPRMT | P & R N Whidbey GEN | 0.2004466701 | $499,029 | $419,029 | $83.99 | | |
| SCH201MO | School 201 Enrichment | 0.0000000000 | $499,029 | $0 | $0.00 | | |
| ST | State School | 1.3035497053 | $499,029 | $419,029 | $546.23 | | |
| ST2 | State School Part 2 | 0.0000000000 | $499,029 | $0 | $0.00 | | |
| | Total Tax Rate: | 5.6089177167 | | | | | |
| | | | | Taxes w/Current Exemptions: | $2,350.30 | | |
| | | | | Taxes w/o Exemptions: | $4,228.20 | | |
Improvement / Building
| Improvement #1: | RESIDENTIAL | State Code: | Y | 1946.0 sqft | Value: | $299,029 |
| Bathrooms: | 2 | Bedrooms: | 3 | | Ceiling: | DRY WALL SPRAYED | Exterior Wall/Cover: | WOOD SIDING | | Floor Covering: | CARPET/VINYL 80-20 | Floor Structure: | WOOD W/SUBFLOOR | | Foundation: | CONCRETE | Heating: | FHA GAS | | Interior Finish: | DRYWALL PAINT | Plumbing Fixture Cnt: | 9 | | Roof Slope: | 4" IN 12" | Roof Structure/Cover: | CJ ALUMINIUM HEAVY |
|
| | Type | Description | Class CD | Sub Class CD | Year Built | Area |
| | BAS | BASE/MAIN FLOOR | 3 | 0 | 1977 | 1946.0 |
| | OP3 | OPEN PORCH W/ROOF | 3 | 0 | 1977 | 96.0 |
| | AGR | ATTACHED GARAGE | 3 | 0 | 1977 | 440.0 |
| | OWP | OPEN WOOD PORCH W/STEPS | 3 | 0 | 1977 | 250.0 |
Sketch
Property Image
Land
| 1 | 14 | SQ (08001-12000) | 0.0000 | 0.00 | 0.00 | 0.00 | 1.00 | $200,000 | $0 |
Roll Value History
| 2026 | N/A | N/A | N/A | N/A | N/A |
| 2025 | $299,029 | $200,000 | $0 | $499,029 | $419,029 |
| 2024 | $303,003 | $190,000 | $0 | $493,003 | $419,029 |
| 2023 | $299,029 | $190,000 | $0 | $489,029 | $419,029 |
| 2022 | $274,370 | $180,000 | $0 | $454,370 | $454,370 |
| 2021 | $241,715 | $120,000 | $0 | $361,715 | $361,715 |
| 2020 | $236,180 | $100,000 | $0 | $336,180 | $336,180 |
| 2019 | $180,271 | $150,000 | $0 | $330,271 | $330,271 |
| 2018 | $180,840 | $130,000 | $0 | $310,840 | $310,840 |
| 2017 | $170,203 | $110,000 | $0 | $280,203 | $280,203 |
| 2016 | $172,413 | $90,000 | $0 | $262,413 | $262,413 |
| 2015 | $174,624 | $70,000 | $0 | $244,624 | $244,624 |
| 2014 | $176,834 | $55,000 | $0 | $231,834 | $231,834 |
| 2013 | $151,657 | $55,000 | $0 | $206,657 | $206,657 |
| 2012 | $153,706 | $60,000 | $0 | $213,706 | $213,706 |
| 2011 | $169,722 | $50,000 | $0 | $219,722 | $219,722 |
| 2010 | $180,630 | $50,000 | $0 | $230,630 | $230,630 |
| 2009 | $188,472 | $60,000 | $0 | $248,472 | $248,472 |
| 2008 | $188,536 | $72,000 | $0 | $260,536 | $260,536 |
| 2007 | $190,955 | $72,000 | $0 | $262,955 | $262,955 |
Deed and Sales History
| 1 | 08/16/2018 | WD | Warranty Deed | OLDHAM, WARREN J | BEAMER, BRUCE A | | | $340,000.00 | 35607 | 4450550 |
| 2 | 09/01/1988 | WD | Warranty Deed | KENNEY, PAUL S | OLDHAM, WARREN J | | | $84,500.00 | 83183 | 88011841 |
| 3 | 05/01/1982 | WD | Warranty Deed | ELCOCK, CHARLES G | KENNEY, PAUL S | | | $86,000.00 | 21075 | 396037 |
| 4 | 01/01/1900 | OTHER | Other - Misc. Documents | Unknown | ELCOCK, CHARLES G | | | $0.00 | 0 | 0 |
Payout Agreement
| No payout information available.. |