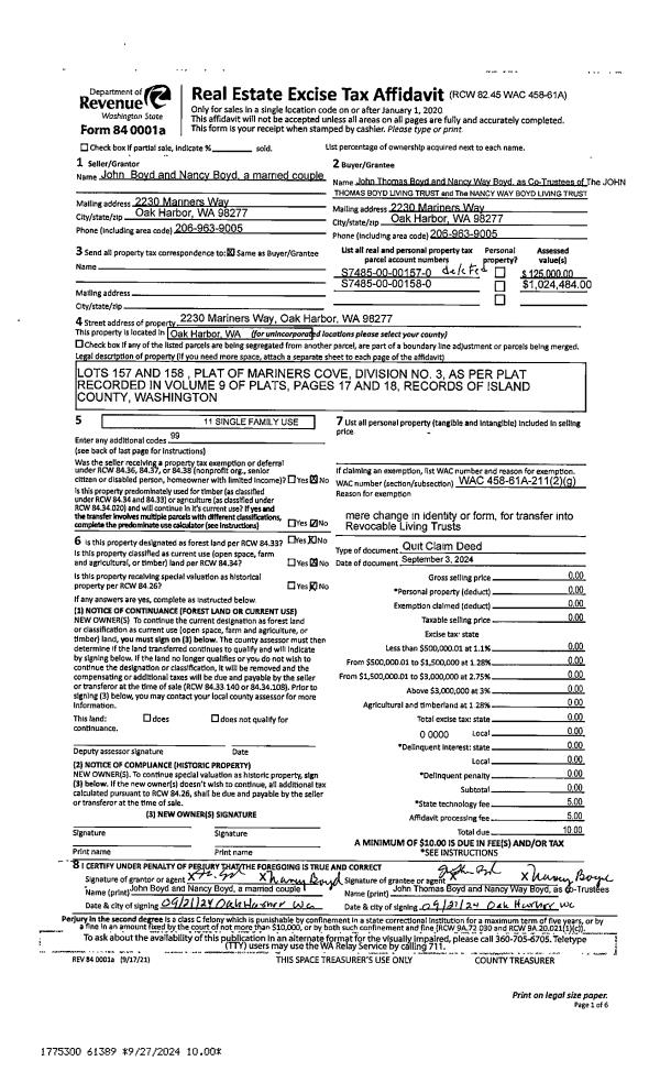
Property
Account |
| Property ID: | 340786 | Abbreviated Legal Description: | PASEKS LOT 17 |
| Geographic ID: | S7670-00-00017-0 | Agent Code: | |
| Type: | Real | | |
| Tax Area: | 100 - APPRAISER-OH Schl Dist, in OH | Land Use Code | 11 |
| Open Space: | N | DFL | N |
| Historic Property: | N | Remodel Property: | N |
| Multi-Family Redevelopment: | N | | |
| Township: | | Section: | |
| Range: | |
Location |
| Address: | 986 SW 2ND AVE OAK HARBOR, WA 98277 | Mapsco: | |
| Neighborhood: | Cycle 1 | Map ID: | 253 |
| Neighborhood CD: | 1 |
Owner |
| Name: | BALDWIN, MICHAEL L / NOREEN W | Owner ID: | 78567 |
| Mailing Address: | 986 SW 2ND AVE OAK HARBOR, WA 98277-5307 | % Ownership: | 100.0000000000% |
| | | Exemptions: | |
Taxes and Assessment Details
Values
| (+) Improvement Homesite Value: | + | $0 | |
| (+) Improvement Non-Homesite Value: | + | $241,633 | |
| (+) Land Homesite Value: | + | $0 | |
| (+) Land Non-Homesite Value: | + | $200,000 | |
| (+) Curr Use (HS): | + | $0 | $0 |
| (+) Curr Use (NHS): | + | $0 | $0 |
| | | -------------------------- | |
| (=) Market Value: | = | $441,633 | |
| (–) Productivity Loss: | – | $0 | |
| | | -------------------------- | |
| (=) Subtotal: | = | $441,633 | |
| (+) Senior Appraised Value: | + | $0 | |
| (+) Non-Senior Appraised Value: | + | $441,633 | |
| | | -------------------------- | |
| (=) Total Appraised Value: | = | $441,633 | |
| (–) Senior Exemption Loss: | – | $0 | |
| (–) Exemption Loss: | – | $0 | |
| | | -------------------------- | |
| (=) Taxable Value: | = | $441,633 | |
Taxing Jurisdiction
| Owner: | BALDWIN, MICHAEL L / NOREEN W | | |
| % Ownership: | 100.0000000000% | | |
| Total Value: | $441,633 | | |
| Tax Area: | 100 - APPRAISER-OH Schl Dist, in OH |
| CF | Conservation Futures | 0.0316035091 | $441,633 | $441,633 | $13.96 | | |
| CEM1 | Cemetery #1 | 0.0040320932 | $441,633 | $441,633 | $1.78 | | |
| COH | City of Oak Harbor | 2.3001546061 | $441,633 | $441,633 | $1,015.82 | | |
| OAKBOND | City of Oak Harbor BOND | 0.1926904192 | $441,633 | $441,633 | $85.10 | | |
| HOBOND | Hospital BOND | 0.1910887512 | $441,633 | $441,633 | $84.39 | | |
| HOGEN | Hospital GEN | 0.3902502903 | $441,633 | $441,633 | $172.35 | | |
| CE | County Current Expense | 0.3708482477 | $441,633 | $441,633 | $163.78 | | |
| ISLANDEMS | Hospital GEN (EMS) | 0.5000000000 | $441,633 | $441,633 | $220.82 | | |
| LIB | Library Sno-Isle GEN | 0.3153421757 | $441,633 | $441,633 | $139.27 | | |
| NWHIDPRMT | P & R N Whidbey GEN | 0.2004466701 | $441,633 | $441,633 | $88.52 | | |
| SCH201MO | School 201 Enrichment | 1.8559231640 | $441,633 | $441,633 | $819.64 | | |
| ST | State School | 1.3035497053 | $441,633 | $441,633 | $575.69 | | |
| ST2 | State School Part 2 | 0.8169543533 | $441,633 | $441,633 | $360.79 | | |
| | Total Tax Rate: | 8.4728839852 | | | | | |
| | | | | Taxes w/Current Exemptions: | $3,741.91 | | |
| | | | | Taxes w/o Exemptions: | $3,741.91 | | |
Improvement / Building
| Improvement #1: | RESIDENTIAL | State Code: | Y | 1906.0 sqft | Value: | $241,633 |
| Bathrooms: | 3 | Bedrooms: | 3 | | Ceiling: | DRY WALL SPRAYED | Exterior Wall/Cover: | PLY/HARDBOARD T-111 | | Floor Covering: | CARPET/VINYL 80-20 | Floor Structure: | WOOD W/SUBFLOOR | | Foundation: | CONCRETE | Heating: | FHA ELECTRIC | | Interior Finish: | DRYWALL PAINT | Plumbing Fixture Cnt: | 12 | | Roof Slope: | 4" IN 12" | Roof Structure/Cover: | CJ ASPHALT |
|
| | Type | Description | Class CD | Sub Class CD | Year Built | Area |
| | BAS | BASE/MAIN FLOOR | 3 | 0 | 1976 | 1354.0 |
| | OP2 | OPEN PORCH W/STEPS | 3 | 0 | 1976 | 24.0 |
| | AGR | ATTACHED GARAGE | 3 | 0 | 1976 | 552.0 |
| | DWN | DOWNSTAIRS LIVING AREA | 3 | 0 | 1976 | 552.0 |
| | OWP | OPEN WOOD PORCH W/STEPS | 3 | 0 | 1976 | 236.0 |
Sketch
Property Image
Land
| 1 | 14 | SQ (08001-12000) | 0.0000 | 0.00 | 0.00 | 0.00 | 1.00 | $200,000 | $0 |
Roll Value History
| 2026 | N/A | N/A | N/A | N/A | N/A |
| 2025 | $241,633 | $200,000 | $0 | $441,633 | $441,633 |
| 2024 | $245,282 | $190,000 | $0 | $435,282 | $435,282 |
| 2023 | $248,928 | $190,000 | $0 | $438,928 | $438,928 |
| 2022 | $228,704 | $180,000 | $0 | $408,704 | $408,704 |
| 2021 | $212,987 | $120,000 | $0 | $332,987 | $332,987 |
| 2020 | $207,239 | $100,000 | $0 | $307,239 | $307,239 |
| 2019 | $146,744 | $150,000 | $0 | $296,744 | $296,744 |
| 2018 | $147,251 | $130,000 | $0 | $277,251 | $277,251 |
| 2017 | $138,606 | $110,000 | $0 | $248,606 | $248,606 |
| 2016 | $140,645 | $90,000 | $0 | $230,645 | $230,645 |
| 2015 | $142,683 | $70,000 | $0 | $212,683 | $212,683 |
| 2014 | $144,722 | $55,000 | $0 | $199,722 | $199,722 |
| 2013 | $146,759 | $55,000 | $0 | $201,759 | $201,759 |
| 2012 | $148,797 | $60,000 | $0 | $208,797 | $208,797 |
| 2011 | $146,197 | $50,000 | $0 | $196,197 | $196,197 |
| 2010 | $157,461 | $50,000 | $0 | $207,461 | $207,461 |
| 2009 | $164,311 | $60,000 | $0 | $224,311 | $224,311 |
| 2008 | $166,421 | $72,000 | $0 | $238,421 | $238,421 |
| 2007 | $168,531 | $72,000 | $0 | $240,531 | $240,531 |
Deed and Sales History
| 1 | 07/01/1992 | WD | Warranty Deed | HAMILTON, MAHLON D | BALDWIN, MICHAEL L | | | $128,000.00 | 22838 | 92013820 |
| 2 | 04/01/1979 | WD | Warranty Deed | Unknown | HAMILTON, MAHLON D | | | $72,500.00 | 91824 | 351199 |
Payout Agreement
| No payout information available.. |