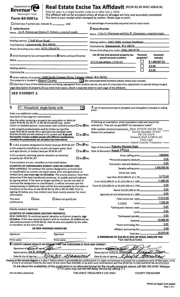
Property
Account |
| Property ID: | 340857 | Abbreviated Legal Description: | PASEKS LOT 24 |
| Geographic ID: | S7670-00-00024-0 | Agent Code: | |
| Type: | Real | | |
| Tax Area: | 100 - APPRAISER-OH Schl Dist, in OH | Land Use Code | 11 |
| Open Space: | N | DFL | N |
| Historic Property: | N | Remodel Property: | N |
| Multi-Family Redevelopment: | N | | |
| Township: | | Section: | |
| Range: | |
Location |
| Address: | 724 SW 2ND AVE OAK HARBOR, WA 98277 | Mapsco: | |
| Neighborhood: | Cycle 1 | Map ID: | 253 |
| Neighborhood CD: | 1 |
Owner |
| Name: | COKER, JEFFREY SCOTT | Owner ID: | 78574 |
| Mailing Address: | EVELEEN K COKER 451 G AVE CORONADO, CA 92118-1618 | % Ownership: | 100.0000000000% |
| | | Exemptions: | |
Taxes and Assessment Details
Values
| (+) Improvement Homesite Value: | + | $0 | |
| (+) Improvement Non-Homesite Value: | + | $299,371 | |
| (+) Land Homesite Value: | + | $0 | |
| (+) Land Non-Homesite Value: | + | $200,000 | |
| (+) Curr Use (HS): | + | $0 | $0 |
| (+) Curr Use (NHS): | + | $0 | $0 |
| | | -------------------------- | |
| (=) Market Value: | = | $499,371 | |
| (–) Productivity Loss: | – | $0 | |
| | | -------------------------- | |
| (=) Subtotal: | = | $499,371 | |
| (+) Senior Appraised Value: | + | $0 | |
| (+) Non-Senior Appraised Value: | + | $499,371 | |
| | | -------------------------- | |
| (=) Total Appraised Value: | = | $499,371 | |
| (–) Senior Exemption Loss: | – | $0 | |
| (–) Exemption Loss: | – | $0 | |
| | | -------------------------- | |
| (=) Taxable Value: | = | $499,371 | |
Taxing Jurisdiction
| Owner: | COKER, JEFFREY SCOTT | | |
| % Ownership: | 100.0000000000% | | |
| Total Value: | $499,371 | | |
| Tax Area: | 100 - APPRAISER-OH Schl Dist, in OH |
| CF | Conservation Futures | 0.0316035091 | $499,371 | $499,371 | $15.78 | | |
| CEM1 | Cemetery #1 | 0.0040320932 | $499,371 | $499,371 | $2.01 | | |
| COH | City of Oak Harbor | 2.3001546061 | $499,371 | $499,371 | $1,148.63 | | |
| OAKBOND | City of Oak Harbor BOND | 0.1926904192 | $499,371 | $499,371 | $96.22 | | |
| HOBOND | Hospital BOND | 0.1910887512 | $499,371 | $499,371 | $95.42 | | |
| HOGEN | Hospital GEN | 0.3902502903 | $499,371 | $499,371 | $194.88 | | |
| CE | County Current Expense | 0.3708482477 | $499,371 | $499,371 | $185.19 | | |
| ISLANDEMS | Hospital GEN (EMS) | 0.5000000000 | $499,371 | $499,371 | $249.69 | | |
| LIB | Library Sno-Isle GEN | 0.3153421757 | $499,371 | $499,371 | $157.47 | | |
| NWHIDPRMT | P & R N Whidbey GEN | 0.2004466701 | $499,371 | $499,371 | $100.10 | | |
| SCH201MO | School 201 Enrichment | 1.8559231640 | $499,371 | $499,371 | $926.79 | | |
| ST | State School | 1.3035497053 | $499,371 | $499,371 | $650.95 | | |
| ST2 | State School Part 2 | 0.8169543533 | $499,371 | $499,371 | $407.96 | | |
| | Total Tax Rate: | 8.4728839852 | | | | | |
| | | | | Taxes w/Current Exemptions: | $4,231.09 | | |
| | | | | Taxes w/o Exemptions: | $4,231.09 | | |
Improvement / Building
| Improvement #1: | RESIDENTIAL | State Code: | Y | 1968.0 sqft | Value: | $299,371 |
| Bathrooms: | 2 | Bedrooms: | 4 | | Ceiling: | DRYWALL PAINTED | Exterior Wall/Cover: | WOOD SIDING | | Floor Covering: | HARDWOOD/CARP 20-80 | Floor Structure: | WOOD W/SUBFLOOR | | Foundation: | CONCRETE BLOCKS | Heating: | FHA GAS | | Interior Finish: | DRYWALL PAINT | Plumbing Fixture Cnt: | 9 | | Roof Slope: | 4" IN 12" | Roof Structure/Cover: | CJ ASPHALT |
|
| | Type | Description | Class CD | Sub Class CD | Year Built | Area |
| | BAS | BASE/MAIN FLOOR | 3 | 0 | 1975 | 1968.0 |
| | OP2 | OPEN PORCH W/STEPS | 3 | 0 | 1975 | 30.0 |
| | AGR | ATTACHED GARAGE | 3 | 0 | 1975 | 632.0 |
| | OWP | OPEN WOOD PORCH W/STEPS | 3 | 0 | 1975 | 96.0 |
Sketch
Property Image
Land
| 1 | 14 | SQ (08001-12000) | 0.0000 | 0.00 | 0.00 | 0.00 | 1.00 | $200,000 | $0 |
Roll Value History
| 2026 | N/A | N/A | N/A | N/A | N/A |
| 2025 | $299,371 | $200,000 | $0 | $499,371 | $499,371 |
| 2024 | $303,349 | $190,000 | $0 | $493,349 | $493,349 |
| 2023 | $299,371 | $190,000 | $0 | $489,371 | $489,371 |
| 2022 | $274,684 | $180,000 | $0 | $454,684 | $454,684 |
| 2021 | $241,999 | $120,000 | $0 | $361,999 | $361,999 |
| 2020 | $236,416 | $100,000 | $0 | $336,416 | $336,416 |
| 2019 | $180,780 | $150,000 | $0 | $330,780 | $330,780 |
| 2018 | $181,350 | $130,000 | $0 | $311,350 | $311,350 |
| 2017 | $159,960 | $110,000 | $0 | $269,960 | $269,960 |
| 2016 | $162,182 | $90,000 | $0 | $252,182 | $252,182 |
| 2015 | $164,403 | $70,000 | $0 | $234,403 | $234,403 |
| 2014 | $166,625 | $55,000 | $0 | $221,625 | $221,625 |
| 2013 | $168,845 | $55,000 | $0 | $223,845 | $223,845 |
| 2012 | $171,068 | $60,000 | $0 | $231,068 | $231,068 |
| 2011 | $186,856 | $50,000 | $0 | $236,856 | $236,856 |
| 2010 | $196,000 | $50,000 | $0 | $246,000 | $246,000 |
| 2009 | $204,397 | $60,000 | $0 | $264,397 | $264,397 |
| 2008 | $206,875 | $72,000 | $0 | $278,875 | $278,875 |
| 2007 | $199,743 | $72,000 | $0 | $271,743 | $271,743 |
Deed and Sales History
| 1 | 12/22/2006 | WD | Warranty Deed | KERESEY, JAMES K | COKER, JEFFREY SCOTT | | | $296,000.00 | 65367 | 4190370 |
| 2 | 06/01/1981 | WD | Warranty Deed | MILLER, DONALD D | KERESEY, JAMES K | | | $85,000.00 | 11931 | 384628 |
| 3 | 01/01/1900 | OTHER | Other - Misc. Documents | Unknown | MILLER, DONALD D | | | $0.00 | 0 | 0 |
Payout Agreement
| No payout information available.. |