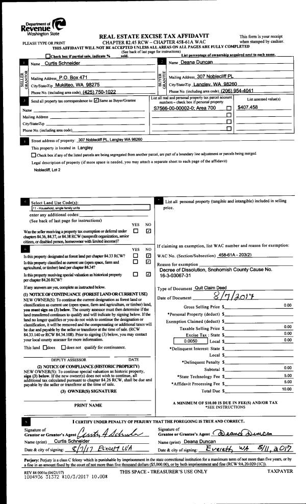
Property
Account |
| Property ID: | 340928 | Abbreviated Legal Description: | PATTON'S BEACHWOOD MANOR LOT 1 & S30' LOT 2 |
| Geographic ID: | S7675-00-00001-0 | Agent Code: | |
| Type: | Real | | |
| Tax Area: | 110 - APPRAISER-OH Schl Dist, outside OH, improved & 1 acre or less | Land Use Code | 11 |
| Open Space: | N | DFL | N |
| Historic Property: | N | Remodel Property: | N |
| Multi-Family Redevelopment: | N | | |
| Township: | | Section: | |
| Range: | |
Location |
| Address: | 1501 WHITECAP LN OAK HARBOR, WA 98277 | Mapsco: | |
| Neighborhood: | Cycle 1 | Map ID: | 2 |
| Neighborhood CD: | 1 |
Owner |
| Name: | TROZZO TTEE, PAMELA A | Owner ID: | 284347 |
| Mailing Address: | ROBERT S TROZZO TTEE 16212 BOTHELL EVERETT HWY STE F MILLCREEK, WA 98012 | % Ownership: | 100.0000000000% |
| | | Exemptions: | |
Taxes and Assessment Details
Values
| (+) Improvement Homesite Value: | + | $0 | |
| (+) Improvement Non-Homesite Value: | + | $664,509 | |
| (+) Land Homesite Value: | + | $0 | |
| (+) Land Non-Homesite Value: | + | $530,000 | |
| (+) Curr Use (HS): | + | $0 | $0 |
| (+) Curr Use (NHS): | + | $0 | $0 |
| | | -------------------------- | |
| (=) Market Value: | = | $1,194,509 | |
| (–) Productivity Loss: | – | $0 | |
| | | -------------------------- | |
| (=) Subtotal: | = | $1,194,509 | |
| (+) Senior Appraised Value: | + | $0 | |
| (+) Non-Senior Appraised Value: | + | $1,194,509 | |
| | | -------------------------- | |
| (=) Total Appraised Value: | = | $1,194,509 | |
| (–) Senior Exemption Loss: | – | $0 | |
| (–) Exemption Loss: | – | $0 | |
| | | -------------------------- | |
| (=) Taxable Value: | = | $1,194,509 | |
Taxing Jurisdiction
| Owner: | TROZZO TTEE, PAMELA A | | |
| % Ownership: | 100.0000000000% | | |
| Total Value: | $1,194,509 | | |
| Tax Area: | 110 - APPRAISER-OH Schl Dist, outside OH, improved & 1 acre or less |
| CF | Conservation Futures | 0.0316035091 | $1,194,509 | $1,194,509 | $37.75 | | |
| CEM1 | Cemetery #1 | 0.0040320932 | $1,194,509 | $1,194,509 | $4.82 | | |
| FIRE2 | Fire & Rescue Dist #2 N Whidbey GEN | 0.5475949600 | $1,194,509 | $1,194,509 | $654.11 | | |
| HOBOND | Hospital BOND | 0.1910887512 | $1,194,509 | $1,194,509 | $228.26 | | |
| HOGEN | Hospital GEN | 0.3902502903 | $1,194,509 | $1,194,509 | $466.16 | | |
| CE | County Current Expense | 0.3708482477 | $1,194,509 | $1,194,509 | $442.98 | | |
| CR | County Roads | 0.4584763726 | $1,194,509 | $1,194,509 | $547.65 | | |
| ISLANDEMS | Hospital GEN (EMS) | 0.5000000000 | $1,194,509 | $1,194,509 | $597.25 | | |
| LIB | Library Sno-Isle GEN | 0.3153421757 | $1,194,509 | $1,194,509 | $376.68 | | |
| NWHIDPRMT | P & R N Whidbey GEN | 0.2004466701 | $1,194,509 | $1,194,509 | $239.44 | | |
| SCH201MO | School 201 Enrichment | 1.8559231640 | $1,194,509 | $1,194,509 | $2,216.92 | | |
| ST | State School | 1.3035497053 | $1,194,509 | $1,194,509 | $1,557.10 | | |
| ST2 | State School Part 2 | 0.8169543533 | $1,194,509 | $1,194,509 | $975.86 | | |
| | Total Tax Rate: | 6.9861102925 | | | | | |
| | | | | Taxes w/Current Exemptions: | $8,344.98 | | |
| | | | | Taxes w/o Exemptions: | $8,344.98 | | |
Improvement / Building
| Improvement #1: | RESIDENTIAL | State Code: | Y | 2081.3 sqft | Value: | $664,509 |
| Bathrooms: | 2.25 | Bedrooms: | 3 | | Ceiling: | DRYWALL PAINTED | Exterior Wall/Cover: | SHINGLE | | Floor Covering: | CERAMIC TILE/CPT 40-60 | Floor Structure: | WOOD W/SUBFLOOR | | Foundation: | CONCRETE | Heating: | RADIANT FLOOR | | Interior Finish: | DRYWALL PAINT | Plumbing Fixture Cnt: | 14 | | Roof Slope: | 6" IN 12" | Roof Structure/Cover: | CJ WOOD SHINGLE |
|
| | Type | Description | Class CD | Sub Class CD | Year Built | Area |
| | BAS | BASE/MAIN FLOOR | 6 | 0 | 2000 | 2081.3 |
| | OP1 | OPEN PORCH SLAB | 6 | 0 | 2000 | 513.0 |
| | OP4 | OPEN PORCH W/CEILING-ROOF | 6 | 0 | 2000 | 22.0 |
| | AGR | ATTACHED GARAGE | 6 | 0 | 2000 | 633.6 |
Sketch
Property Image
Land
| 1 | LB | LOW BANK | 0.2300 | 10018.80 | 90.00 | 0.00 | 1.00 | $530,000 | $0 |
Roll Value History
| 2026 | N/A | N/A | N/A | N/A | N/A |
| 2025 | $664,509 | $530,000 | $0 | $1,194,509 | $1,194,509 |
| 2024 | $672,126 | $510,000 | $0 | $1,182,126 | $1,182,126 |
| 2023 | $649,276 | $450,000 | $0 | $1,099,276 | $1,099,276 |
| 2022 | $594,823 | $450,000 | $0 | $1,044,823 | $1,044,823 |
| 2021 | $523,234 | $370,000 | $0 | $893,234 | $893,234 |
| 2020 | $508,136 | $370,000 | $0 | $878,136 | $878,136 |
| 2019 | $413,135 | $420,000 | $0 | $833,135 | $833,135 |
| 2018 | $414,291 | $400,000 | $0 | $814,291 | $814,291 |
| 2017 | $407,290 | $350,000 | $0 | $757,290 | $757,290 |
| 2016 | $411,918 | $350,000 | $0 | $761,918 | $761,918 |
| 2015 | $416,546 | $350,000 | $0 | $766,546 | $766,546 |
| 2014 | $442,902 | $350,000 | $0 | $792,902 | $792,902 |
| 2013 | $407,676 | $475,551 | $0 | $883,227 | $883,227 |
| 2012 | $412,415 | $475,551 | $0 | $887,966 | $887,966 |
| 2011 | $415,584 | $475,551 | $0 | $891,135 | $891,135 |
| 2010 | $426,493 | $475,551 | $0 | $902,044 | $902,044 |
| 2009 | $444,792 | $640,464 | $0 | $1,085,256 | $1,085,256 |
| 2008 | $450,171 | $632,622 | $0 | $1,082,793 | $1,082,793 |
| 2007 | $450,856 | $546,355 | $0 | $997,211 | $997,211 |
Deed and Sales History
| 1 | 03/23/2018 | WD | Warranty Deed | PEABODY, ALIEA M | TROZZO TTEE, PAMELA A | | | $810,000.00 | 33407 | 4441383 |
| 2 | 06/20/2016 | PRD | Personal Representatives Deed | ROBBINS, BOBBY C | PEABODY, ALIEA M | | | $0.00 | 25659 | 4405212 |
| 3 | 07/14/2014 | WD | Warranty Deed | CLARK, JANE H | ROBBINS, BOBBY C | | | $750,000.00 | 16065 | 4362516 |
| 4 | 05/22/2012 | QCD | Quit Claim Deed | J BAR J INVESTMENTS LLC | CLARK, JANE H | | | $0.00 | 7872 | 4316808 |
| 5 | 05/19/2006 | WD | Warranty Deed | BASHOR, JIM D | J BAR J INVESTMENTS LLC, | | | $1,175,000.00 | 62288 | 4171502 |
| 6 | 01/26/1998 | WD | Warranty Deed | BLUHM, RICHARD | BASHOR, JIM D | | | $150,000.00 | 84395 | 98023843 |
| 7 | 12/01/1983 | OTHER | Other - Misc. Documents | BLUHM, RICHARD | BLUHM, RICHARD | | | $0.00 | 60340 | 0 |
| 8 | 10/01/1983 | WD | Warranty Deed | PATTON, LLOYD B | BLUHM, RICHARD | | | $70,000.00 | 33310 | 417364 |
| 9 | 08/01/1982 | CD | DNU - Correction Deed | PATTON, LLOYD B | PATTON, LLOYD B | | | $0.00 | 59594 | 376714 |
Payout Agreement
| No payout information available.. |