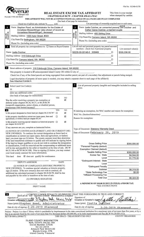
Property
Account |
| Property ID: | 341099 | Abbreviated Legal Description: | PATTONS HIDEAWAY LOT 5 BLK 1 |
| Geographic ID: | S7680-00-01005-0 | Agent Code: | |
| Type: | Real | | |
| Tax Area: | 110 - APPRAISER-OH Schl Dist, outside OH, improved & 1 acre or less | Land Use Code | 11 |
| Open Space: | N | DFL | N |
| Historic Property: | N | Remodel Property: | N |
| Multi-Family Redevelopment: | N | | |
| Township: | | Section: | |
| Range: | |
Location |
| Address: | 1450 NORTH VIEW RD OAK HARBOR, WA 98277 | Mapsco: | |
| Neighborhood: | Cycle 1 | Map ID: | 139 |
| Neighborhood CD: | 1 |
Owner |
| Name: | STILL, JEREMY | Owner ID: | 296755 |
| Mailing Address: | ANGELA STILL 1450 NORTH VIEW RD OAK HARBOR, WA 98277 | % Ownership: | 100.0000000000% |
| | | Exemptions: | |
Taxes and Assessment Details
Values
| (+) Improvement Homesite Value: | + | $0 | |
| (+) Improvement Non-Homesite Value: | + | $384,345 | |
| (+) Land Homesite Value: | + | $0 | |
| (+) Land Non-Homesite Value: | + | $240,000 | |
| (+) Curr Use (HS): | + | $0 | $0 |
| (+) Curr Use (NHS): | + | $0 | $0 |
| | | -------------------------- | |
| (=) Market Value: | = | $624,345 | |
| (–) Productivity Loss: | – | $0 | |
| | | -------------------------- | |
| (=) Subtotal: | = | $624,345 | |
| (+) Senior Appraised Value: | + | $0 | |
| (+) Non-Senior Appraised Value: | + | $624,345 | |
| | | -------------------------- | |
| (=) Total Appraised Value: | = | $624,345 | |
| (–) Senior Exemption Loss: | – | $0 | |
| (–) Exemption Loss: | – | $0 | |
| | | -------------------------- | |
| (=) Taxable Value: | = | $624,345 | |
Taxing Jurisdiction
| Owner: | STILL, JEREMY | | |
| % Ownership: | 100.0000000000% | | |
| Total Value: | $624,345 | | |
| Tax Area: | 110 - APPRAISER-OH Schl Dist, outside OH, improved & 1 acre or less |
| CF | Conservation Futures | 0.0316035091 | $624,345 | $624,345 | $19.73 | | |
| CEM1 | Cemetery #1 | 0.0040320932 | $624,345 | $624,345 | $2.52 | | |
| FIRE2 | Fire & Rescue Dist #2 N Whidbey GEN | 0.5475949600 | $624,345 | $624,345 | $341.89 | | |
| HOBOND | Hospital BOND | 0.1910887512 | $624,345 | $624,345 | $119.31 | | |
| HOGEN | Hospital GEN | 0.3902502903 | $624,345 | $624,345 | $243.65 | | |
| CE | County Current Expense | 0.3708482477 | $624,345 | $624,345 | $231.54 | | |
| CR | County Roads | 0.4584763726 | $624,345 | $624,345 | $286.25 | | |
| ISLANDEMS | Hospital GEN (EMS) | 0.5000000000 | $624,345 | $624,345 | $312.17 | | |
| LIB | Library Sno-Isle GEN | 0.3153421757 | $624,345 | $624,345 | $196.88 | | |
| NWHIDPRMT | P & R N Whidbey GEN | 0.2004466701 | $624,345 | $624,345 | $125.15 | | |
| SCH201MO | School 201 Enrichment | 1.8559231640 | $624,345 | $624,345 | $1,158.74 | | |
| ST | State School | 1.3035497053 | $624,345 | $624,345 | $813.86 | | |
| ST2 | State School Part 2 | 0.8169543533 | $624,345 | $624,345 | $510.06 | | |
| | Total Tax Rate: | 6.9861102925 | | | | | |
| | | | | Taxes w/Current Exemptions: | $4,361.75 | | |
| | | | | Taxes w/o Exemptions: | $4,361.75 | | |
Improvement / Building
| Improvement #1: | RESIDENTIAL | State Code: | Y | 2456.0 sqft | Value: | $384,345 |
| Bathrooms: | 1.75 | Bedrooms: | 4 | | Ceiling: | DRYWALL PAINTED | Cooling: | HEAT PUMP/CONV/V | | Exterior Wall/Cover: | PLY/HARDBOARD T-111 | Floor Covering: | VINYL 100% | | Floor Structure: | WOOD W/SUBFLOOR | Foundation: | CONCRETE | | Interior Finish: | DRYWALL PAINT | Plumbing Fixture Cnt: | 10 | | Roof Slope: | 8" IN 12" | Roof Structure/Cover: | CJ ASPHALT |
|
| | Type | Description | Class CD | Sub Class CD | Year Built | Area |
| | BAS | BASE/MAIN FLOOR | 3 | 0 | 1986 | 1064.0 |
| | AGR | ATTACHED GARAGE | 3 | 0 | 1986 | 484.0 |
| | OWP | OPEN WOOD PORCH W/STEPS | 3 | 0 | 1986 | 364.0 |
| | OWP | OPEN WOOD PORCH W/STEPS | 3 | 0 | 1986 | 514.0 |
| | OWP | OPEN WOOD PORCH W/STEPS | 3 | 0 | 1986 | 40.0 |
| | UPH | HALF STORY | 3 | 0 | 1986 | 608.0 |
| | DWN | DOWNSTAIRS LIVING AREA | 3 | 0 | 1986 | 784.0 |
| | DGR | DETACHED GARAGE | 3 | 0 | 1986 | 1080.0 |
Sketch
Property Image
Land
| 1 | 16 | AC (00.51-01.00) | 0.0000 | 38332.80 | 0.00 | 0.00 | 1.00 | $240,000 | $0 |
Roll Value History
| 2026 | N/A | N/A | N/A | N/A | N/A |
| 2025 | $384,345 | $240,000 | $0 | $624,345 | $624,345 |
| 2024 | $389,194 | $220,000 | $0 | $609,194 | $609,194 |
| 2023 | $364,946 | $215,000 | $0 | $579,946 | $579,946 |
| 2022 | $334,856 | $215,000 | $0 | $549,856 | $549,856 |
| 2021 | $295,002 | $120,000 | $0 | $415,002 | $415,002 |
| 2020 | $261,280 | $80,000 | $0 | $341,280 | $341,280 |
| 2019 | $205,271 | $150,000 | $0 | $355,271 | $355,271 |
| 2018 | $194,281 | $140,000 | $0 | $334,281 | $334,281 |
| 2017 | $176,276 | $110,000 | $0 | $286,276 | $286,276 |
| 2016 | $178,428 | $100,000 | $0 | $278,428 | $278,428 |
| 2015 | $180,580 | $75,000 | $0 | $255,580 | $255,580 |
| 2014 | $182,732 | $60,000 | $0 | $242,732 | $242,732 |
| 2013 | $165,683 | $60,000 | $0 | $225,683 | $225,683 |
| 2012 | $167,835 | $63,750 | $0 | $231,585 | $231,585 |
| 2011 | $170,498 | $75,000 | $0 | $245,498 | $245,498 |
| 2010 | $179,601 | $75,000 | $0 | $254,601 | $254,601 |
| 2009 | $187,421 | $90,000 | $0 | $277,421 | $277,421 |
| 2008 | $189,872 | $95,000 | $0 | $284,872 | $284,872 |
| 2007 | $192,315 | $95,500 | $0 | $287,815 | $287,815 |
Deed and Sales History
| 1 | 11/16/2020 | WD | Warranty Deed | GROVE, KJIRSTEN | STILL, JEREMY | | | $496,500.00 | 45798 | 4502956 |
| 2 | 02/07/2019 | QCD | Quit Claim Deed | CARRILLO, JEREMY MANUEL | GROVE, KJIRSTEN | | | $0.00 | 37565 | 4459159 |
| 3 | 02/12/2019 | WD | Warranty Deed | NIRK, GARY J | GROVE, KJIRSTEN | | | $370,000.00 | 37564 | 4459158 |
| 4 | 07/08/2013 | WD | Warranty Deed | TRONTVET, DUANE A / DONNA R | NIRK, GARY J | | | $226,000.00 | 11957 | 4343683 |
| 5 | 06/01/1992 | WD | Warranty Deed | MCCARTHY, CATHERINE H | TRONTVET, DUANE A | | | $116,500.00 | 22346 | 92011361 |
| 6 | 10/01/1991 | DECREE | Divorce Decree/Legal Separation | MCCARTHY, JAMES F | MCCARTHY, CATHERINE H | | | $0.00 | 64522 | 0 |
| 7 | 05/01/1990 | WD | Warranty Deed | WETHERELL, LESLIE | MCCARTHY, JAMES F | | | $93,750.00 | 2738 | 90008980 |
| 8 | 01/01/1985 | WD | Warranty Deed | LEVERONI, MARIO E | WETHERELL, LESLIE | | | $17,000.00 | 50663 | 85002863 |
| 9 | 07/01/1979 | WD | Warranty Deed | LACY, MICHAEL S | LEVERONI, MARIO E | | | $14,000.00 | 93590 | 355988 |
| 10 | 01/01/1900 | OTHER | Other - Misc. Documents | Unknown | LACY, MICHAEL S | | | $0.00 | 0 | 0 |
Payout Agreement
| No payout information available.. |