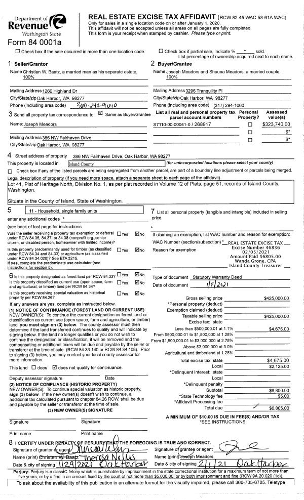
Property
Account |
| Property ID: | 341375 | Abbreviated Legal Description: | PATTONS HIDEAWAY LOT 4 BLK 5 |
| Geographic ID: | S7680-00-05004-0 | Agent Code: | |
| Type: | Real | | |
| Tax Area: | 110 - APPRAISER-OH Schl Dist, outside OH, improved & 1 acre or less | Land Use Code | 11 |
| Open Space: | N | DFL | N |
| Historic Property: | N | Remodel Property: | N |
| Multi-Family Redevelopment: | N | | |
| Township: | | Section: | |
| Range: | |
Location |
| Address: | 2331 HASTIE LAKE RD OAK HARBOR, WA 98277 | Mapsco: | |
| Neighborhood: | Cycle 1 | Map ID: | 139 |
| Neighborhood CD: | 1 |
Owner |
| Name: | MACISAAC, PAUL JOSEPH BLOCK | Owner ID: | 300204 |
| Mailing Address: | CLAUDIA MARIE MACISAAC 2331 W HASTIE LAKE RD OAK HARBOR, WA 98277 | % Ownership: | 100.0000000000% |
| | | Exemptions: | |
Taxes and Assessment Details
Values
| (+) Improvement Homesite Value: | + | $0 | |
| (+) Improvement Non-Homesite Value: | + | $462,835 | |
| (+) Land Homesite Value: | + | $0 | |
| (+) Land Non-Homesite Value: | + | $240,000 | |
| (+) Curr Use (HS): | + | $0 | $0 |
| (+) Curr Use (NHS): | + | $0 | $0 |
| | | -------------------------- | |
| (=) Market Value: | = | $702,835 | |
| (–) Productivity Loss: | – | $0 | |
| | | -------------------------- | |
| (=) Subtotal: | = | $702,835 | |
| (+) Senior Appraised Value: | + | $0 | |
| (+) Non-Senior Appraised Value: | + | $702,835 | |
| | | -------------------------- | |
| (=) Total Appraised Value: | = | $702,835 | |
| (–) Senior Exemption Loss: | – | $0 | |
| (–) Exemption Loss: | – | $0 | |
| | | -------------------------- | |
| (=) Taxable Value: | = | $702,835 | |
Taxing Jurisdiction
| Owner: | MACISAAC, PAUL JOSEPH BLOCK | | |
| % Ownership: | 100.0000000000% | | |
| Total Value: | $702,835 | | |
| Tax Area: | 110 - APPRAISER-OH Schl Dist, outside OH, improved & 1 acre or less |
| CF | Conservation Futures | 0.0316035091 | $702,835 | $702,835 | $22.21 | | |
| CEM1 | Cemetery #1 | 0.0040320932 | $702,835 | $702,835 | $2.83 | | |
| FIRE2 | Fire & Rescue Dist #2 N Whidbey GEN | 0.5475949600 | $702,835 | $702,835 | $384.87 | | |
| HOBOND | Hospital BOND | 0.1910887512 | $702,835 | $702,835 | $134.30 | | |
| HOGEN | Hospital GEN | 0.3902502903 | $702,835 | $702,835 | $274.28 | | |
| CE | County Current Expense | 0.3708482477 | $702,835 | $702,835 | $260.65 | | |
| CR | County Roads | 0.4584763726 | $702,835 | $702,835 | $322.23 | | |
| ISLANDEMS | Hospital GEN (EMS) | 0.5000000000 | $702,835 | $702,835 | $351.42 | | |
| LIB | Library Sno-Isle GEN | 0.3153421757 | $702,835 | $702,835 | $221.63 | | |
| NWHIDPRMT | P & R N Whidbey GEN | 0.2004466701 | $702,835 | $702,835 | $140.88 | | |
| SCH201MO | School 201 Enrichment | 1.8559231640 | $702,835 | $702,835 | $1,304.41 | | |
| ST | State School | 1.3035497053 | $702,835 | $702,835 | $916.18 | | |
| ST2 | State School Part 2 | 0.8169543533 | $702,835 | $702,835 | $574.18 | | |
| | Total Tax Rate: | 6.9861102925 | | | | | |
| | | | | Taxes w/Current Exemptions: | $4,910.07 | | |
| | | | | Taxes w/o Exemptions: | $4,910.07 | | |
Improvement / Building
| Improvement #1: | RESIDENTIAL | State Code: | Y | 2610.0 sqft | Value: | $462,835 |
| Bathrooms: | 2.5 | Bedrooms: | 4 | | Ceiling: | DRYWALL PAINTED | Exterior Wall/Cover: | COMMON BRICK VENEER | | Floor Covering: | VINYL/HARDWOOD 20-80 | Floor Structure: | WOOD W/SUBFLOOR | | Foundation: | CONCRETE BLOCKS | Heating: | FHA OIL | | Interior Finish: | DRYWALL PAINT | Plumbing Fixture Cnt: | 12 | | Roof Slope: | 12" IN 12" | Roof Structure/Cover: | CJ ASPHALT |
|
| | Type | Description | Class CD | Sub Class CD | Year Built | Area |
| | BAS | BASE/MAIN FLOOR | 4 | 0 | 1940 | 1350.0 |
| | OP4 | OPEN PORCH W/CEILING-ROOF | 4 | 0 | 1940 | 16.0 |
| | OP4 | OPEN PORCH W/CEILING-ROOF | 4 | 0 | 1940 | 45.0 |
| | UPS | UPPER STORY | 4 | 0 | 1940 | 1260.0 |
| | DGR | DETACHED GARAGE | 4 | 0 | 1940 | 720.0 |
Sketch
Property Image
Land
| 1 | 16 | AC (00.51-01.00) | 0.6300 | 27442.80 | 0.00 | 0.00 | 1.00 | $240,000 | $0 |
Roll Value History
| 2026 | N/A | N/A | N/A | N/A | N/A |
| 2025 | $462,835 | $240,000 | $0 | $702,835 | $702,835 |
| 2024 | $469,332 | $220,000 | $0 | $689,332 | $689,332 |
| 2023 | $436,853 | $215,000 | $0 | $651,853 | $651,853 |
| 2022 | $401,474 | $215,000 | $0 | $616,474 | $616,474 |
| 2021 | $276,323 | $120,000 | $0 | $396,323 | $396,323 |
| 2020 | $270,436 | $80,000 | $0 | $350,436 | $350,436 |
| 2019 | $211,038 | $150,000 | $0 | $361,038 | $361,038 |
| 2018 | $211,780 | $140,000 | $0 | $351,780 | $351,780 |
| 2017 | $159,975 | $110,000 | $0 | $269,975 | $269,975 |
| 2016 | $162,545 | $100,000 | $0 | $262,545 | $262,545 |
| 2015 | $165,113 | $75,000 | $0 | $240,113 | $240,113 |
| 2014 | $167,682 | $60,000 | $0 | $227,682 | $227,682 |
| 2013 | $170,251 | $60,000 | $0 | $230,251 | $230,251 |
| 2012 | $172,820 | $63,750 | $0 | $236,570 | $236,570 |
| 2011 | $177,037 | $75,000 | $0 | $252,037 | $252,037 |
| 2010 | $193,429 | $75,000 | $0 | $268,429 | $268,429 |
| 2009 | $199,162 | $90,000 | $0 | $289,162 | $289,162 |
| 2008 | $202,170 | $95,500 | $0 | $297,670 | $297,670 |
| 2007 | $205,170 | $95,500 | $0 | $300,670 | $300,670 |
Deed and Sales History
| 1 | 07/12/2021 | WD | Warranty Deed | MABUTT, JAMIE CAROLE LANE | MACISAAC, PAUL JOSEPH BLOCK | | | $605,000.00 | 49153 | 4524378 |
| 2 | 11/06/2020 | QCD | Quit Claim Deed | MABBUTT, FREDERICK R / JAMIE | MABUTT, JAMIE CAROLE LANE | | | $0.00 | 45632 | 4502020 |
| 3 | 06/01/1996 | WD | Warranty Deed | CASSITY, THEODORE A | MABBUTT, FREDERICK R | | | $146,500.00 | 62358 | 96011672 |
| 4 | 09/01/1987 | WD | Warranty Deed | DE, MUTH, R | CASSITY, THEODORE A | | | $75,000.00 | 72970 | 87013237 |
| 5 | 07/01/1979 | WD | Warranty Deed | VAN, ARSDEL, S | DE, MUTH, R | | | $49,000.00 | 94118 | 357652 |
| 6 | 01/01/1900 | OTHER | Other - Misc. Documents | Unknown | VAN, ARSDEL, S | | | $0.00 | 0 | 0 |
Payout Agreement
| No payout information available.. |