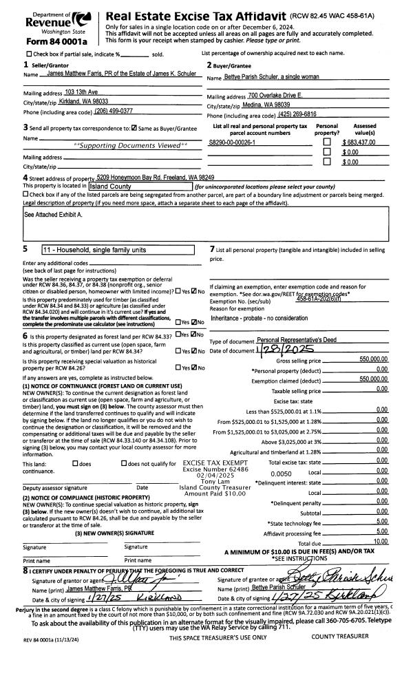
Property
Account |
| Property ID: | 34144 | Abbreviated Legal Description: | 7 - SW SE EX W942' EX S440' EX RD |
| Geographic ID: | R13312-083-3770 | Agent Code: | |
| Type: | Real | | |
| Tax Area: | 112 - APPRAISER-OH Schl Dist, outside OH, improved, greater than 1 acre | Land Use Code | 11 |
| Open Space: | N | DFL | N |
| Historic Property: | N | Remodel Property: | N |
| Multi-Family Redevelopment: | N | | |
| Township: | 33 | Section: | 12 |
| Range: | R1 |
Location |
| Address: | 37411 SR20 OAK HARBOR, WA 98277 | Mapsco: | |
| Neighborhood: | Cycle 6 | Map ID: | 205 |
| Neighborhood CD: | 6 |
Owner |
| Name: | SEILER, KARL J | Owner ID: | 150011 |
| Mailing Address: | 37411 STATE ROUTE 20 OAK HARBOR, WA 98277-9554 | % Ownership: | 100.0000000000% |
| | | Exemptions: | |
Taxes and Assessment Details
Values
| (+) Improvement Homesite Value: | + | $0 | |
| (+) Improvement Non-Homesite Value: | + | $35,781 | |
| (+) Land Homesite Value: | + | $0 | |
| (+) Land Non-Homesite Value: | + | $300,000 | |
| (+) Curr Use (HS): | + | $0 | $0 |
| (+) Curr Use (NHS): | + | $0 | $0 |
| | | -------------------------- | |
| (=) Market Value: | = | $335,781 | |
| (–) Productivity Loss: | – | $0 | |
| | | -------------------------- | |
| (=) Subtotal: | = | $335,781 | |
| (+) Senior Appraised Value: | + | $0 | |
| (+) Non-Senior Appraised Value: | + | $335,781 | |
| | | -------------------------- | |
| (=) Total Appraised Value: | = | $335,781 | |
| (–) Senior Exemption Loss: | – | $0 | |
| (–) Exemption Loss: | – | $0 | |
| | | -------------------------- | |
| (=) Taxable Value: | = | $335,781 | |
Taxing Jurisdiction
| Owner: | SEILER, KARL J | | |
| % Ownership: | 100.0000000000% | | |
| Total Value: | $335,781 | | |
| Tax Area: | 112 - APPRAISER-OH Schl Dist, outside OH, improved, greater than 1 acre |
| CF | Conservation Futures | 0.0316035091 | $335,781 | $335,781 | $10.61 | | |
| CEM1 | Cemetery #1 | 0.0040320932 | $335,781 | $335,781 | $1.35 | | |
| FIRE2 | Fire & Rescue Dist #2 N Whidbey GEN | 0.5475949600 | $335,781 | $335,781 | $183.87 | | |
| HOBOND | Hospital BOND | 0.1910887512 | $335,781 | $335,781 | $64.16 | | |
| HOGEN | Hospital GEN | 0.3902502903 | $335,781 | $335,781 | $131.04 | | |
| CE | County Current Expense | 0.3708482477 | $335,781 | $335,781 | $124.52 | | |
| CR | County Roads | 0.4584763726 | $335,781 | $335,781 | $153.95 | | |
| ISLANDEMS | Hospital GEN (EMS) | 0.5000000000 | $335,781 | $335,781 | $167.89 | | |
| LIB | Library Sno-Isle GEN | 0.3153421757 | $335,781 | $335,781 | $105.89 | | |
| NWHIDPRMT | P & R N Whidbey GEN | 0.2004466701 | $335,781 | $335,781 | $67.31 | | |
| SCH201MO | School 201 Enrichment | 1.8559231640 | $335,781 | $335,781 | $623.18 | | |
| ST | State School | 1.3035497053 | $335,781 | $335,781 | $437.71 | | |
| ST2 | State School Part 2 | 0.8169543533 | $335,781 | $335,781 | $274.32 | | |
| | Total Tax Rate: | 6.9861102925 | | | | | |
| | | | | Taxes w/Current Exemptions: | $2,345.80 | | |
| | | | | Taxes w/o Exemptions: | $2,345.80 | | |
Improvement / Building
| Improvement #1: | MANUFACTURED HOME | State Code: | Y | 1264.1 sqft | Value: | $35,781 |
| Bathrooms: | 0 | Bedrooms: | 0 | | Ceiling: | PLASTER PAINTED | Cooling: | EVAP NO DUCT | | Exterior Wall/Cover: | VINYL | Floor Covering: | CARPET 100% | | Floor Structure: | SLAB ON GRADE | Foundation: | SLAB | | Heating: | FHA ELECTRIC | Interior Finish: | PLASTER | | Plumbing Fixture Cnt: | 1 | Roof Slope: | FLAT | | Roof Structure/Cover: | CJ ALUMINIUM HEAVY |   |   |
|
| | Type | Description | Class CD | Sub Class CD | Year Built | Area |
| | BAS | BASE/MAIN FLOOR | 3 | 0 | 1978 | 784.0 |
| | LOF | LOFT | 3 | 0 | 1978 | 480.1 |
| | DGR | DETACHED GARAGE | 3 | 0 | 1978 | 720.0 |
Sketch
Property Image
Land
| 1 | 32 | AC (03.01-09.99) | 7.0400 | 306662.40 | 0.00 | 0.00 | 1.00 | $300,000 | $0 |
Roll Value History
| 2026 | N/A | N/A | N/A | N/A | N/A |
| 2025 | $35,781 | $300,000 | $0 | $335,781 | $335,781 |
| 2024 | $35,781 | $280,000 | $0 | $315,781 | $315,781 |
| 2023 | $35,781 | $270,000 | $0 | $305,781 | $305,781 |
| 2022 | $29,998 | $240,000 | $0 | $269,998 | $269,998 |
| 2021 | $28,469 | $175,000 | $0 | $203,469 | $203,469 |
| 2020 | $28,777 | $150,000 | $0 | $178,777 | $178,777 |
| 2019 | $24,488 | $185,000 | $0 | $209,488 | $209,488 |
| 2018 | $25,395 | $170,000 | $0 | $195,395 | $195,395 |
| 2017 | $27,209 | $150,000 | $0 | $177,209 | $177,209 |
| 2016 | $21,556 | $140,000 | $0 | $161,556 | $161,556 |
| 2015 | $22,014 | $120,000 | $0 | $142,014 | $142,014 |
| 2014 | $22,472 | $158,400 | $0 | $180,872 | $180,872 |
| 2013 | $23,158 | $158,400 | $0 | $181,558 | $181,558 |
| 2012 | $23,616 | $158,400 | $0 | $182,016 | $182,016 |
| 2011 | $24,074 | $176,000 | $0 | $200,074 | $200,074 |
| 2010 | $28,666 | $176,000 | $0 | $204,666 | $204,666 |
| 2009 | $30,094 | $176,000 | $0 | $206,094 | $206,094 |
| 2008 | $31,594 | $179,555 | $0 | $211,149 | $211,149 |
| 2007 | $32,878 | $179,542 | $0 | $212,420 | $212,420 |
Deed and Sales History
| 1 | 07/01/1997 | OTHER | Other - Misc. Documents | SEILER, KARL J | SEILER, KARL J | | | $13,651.00 | 72324 | 0 |
| 2 | 07/01/1997 | WD | Warranty Deed | WOOD, JAMES R | SEILER, KARL J | | | $101,349.00 | 72325 | 97011005 |
| 3 | 01/01/1993 | OTHER | Other - Misc. Documents | WOOD, JAMES R | WOOD, JAMES R | | | $14,900.00 | 30314 | 0 |
| 4 | 12/01/1991 | WD | Warranty Deed | SWARTWOOD, LAVINA M | WOOD, JAMES R | | | $34,000.00 | 14265 | 91018488 |
| 5 | 11/01/1989 | QCD | Quit Claim Deed | LEBRET, REBECCA | SWARTWOOD, LAVINA M | | | $0.00 | 55 | 90000171 |
| 6 | 11/01/1987 | QCD | Quit Claim Deed | LEBRET, REBECCA A | LEBRET, REBECCA | | | $0.00 | 73507 | 87015320 |
| 7 | 05/01/1983 | REC | Real Estate Contract | Unknown | LEBRET, REBECCA A | | | $23,000.00 | 31505 | 410484 |
Payout Agreement
| No payout information available.. |