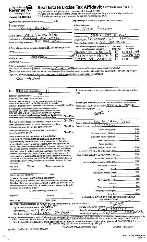
Property
Account |
| Property ID: | 341632 | Abbreviated Legal Description: | PATTONS HIDEAWAY 2 LOT 11 BLK 8 |
| Geographic ID: | S7680-02-08011-0 | Agent Code: | |
| Type: | Real | | |
| Tax Area: | 110 - APPRAISER-OH Schl Dist, outside OH, improved & 1 acre or less | Land Use Code | 11 |
| Open Space: | N | DFL | N |
| Historic Property: | N | Remodel Property: | N |
| Multi-Family Redevelopment: | N | | |
| Township: | | Section: | |
| Range: | |
Location |
| Address: | 1457 MARTHA WAY OAK HARBOR, WA 98277 | Mapsco: | |
| Neighborhood: | Cycle 1 | Map ID: | 2 |
| Neighborhood CD: | 1 |
Owner |
| Name: | CONKLIN, SANDRA MARTIN | Owner ID: | 308616 |
| Mailing Address: | 3214 COACHMAN LN OAK HARBOR, WA 98277 | % Ownership: | 100.0000000000% |
| | | Exemptions: | |
Taxes and Assessment Details
Values
| (+) Improvement Homesite Value: | + | $0 | |
| (+) Improvement Non-Homesite Value: | + | $143,738 | |
| (+) Land Homesite Value: | + | $0 | |
| (+) Land Non-Homesite Value: | + | $250,000 | |
| (+) Curr Use (HS): | + | $0 | $0 |
| (+) Curr Use (NHS): | + | $0 | $0 |
| | | -------------------------- | |
| (=) Market Value: | = | $393,738 | |
| (–) Productivity Loss: | – | $0 | |
| | | -------------------------- | |
| (=) Subtotal: | = | $393,738 | |
| (+) Senior Appraised Value: | + | $0 | |
| (+) Non-Senior Appraised Value: | + | $393,738 | |
| | | -------------------------- | |
| (=) Total Appraised Value: | = | $393,738 | |
| (–) Senior Exemption Loss: | – | $0 | |
| (–) Exemption Loss: | – | $0 | |
| | | -------------------------- | |
| (=) Taxable Value: | = | $393,738 | |
Taxing Jurisdiction
| Owner: | CONKLIN, SANDRA MARTIN | | |
| % Ownership: | 100.0000000000% | | |
| Total Value: | $393,738 | | |
| Tax Area: | 110 - APPRAISER-OH Schl Dist, outside OH, improved & 1 acre or less |
| CF | Conservation Futures | 0.0316035091 | $393,738 | $393,738 | $12.44 | | |
| CEM1 | Cemetery #1 | 0.0040320932 | $393,738 | $393,738 | $1.59 | | |
| FIRE2 | Fire & Rescue Dist #2 N Whidbey GEN | 0.5475949600 | $393,738 | $393,738 | $215.61 | | |
| HOBOND | Hospital BOND | 0.1910887512 | $393,738 | $393,738 | $75.24 | | |
| HOGEN | Hospital GEN | 0.3902502903 | $393,738 | $393,738 | $153.66 | | |
| CE | County Current Expense | 0.3708482477 | $393,738 | $393,738 | $146.02 | | |
| CR | County Roads | 0.4584763726 | $393,738 | $393,738 | $180.52 | | |
| ISLANDEMS | Hospital GEN (EMS) | 0.5000000000 | $393,738 | $393,738 | $196.87 | | |
| LIB | Library Sno-Isle GEN | 0.3153421757 | $393,738 | $393,738 | $124.16 | | |
| NWHIDPRMT | P & R N Whidbey GEN | 0.2004466701 | $393,738 | $393,738 | $78.92 | | |
| SCH201MO | School 201 Enrichment | 1.8559231640 | $393,738 | $393,738 | $730.75 | | |
| ST | State School | 1.3035497053 | $393,738 | $393,738 | $513.26 | | |
| ST2 | State School Part 2 | 0.8169543533 | $393,738 | $393,738 | $321.67 | | |
| | Total Tax Rate: | 6.9861102925 | | | | | |
| | | | | Taxes w/Current Exemptions: | $2,750.71 | | |
| | | | | Taxes w/o Exemptions: | $2,750.71 | | |
Improvement / Building
| Improvement #1: | RESIDENTIAL | State Code: | Y | 1648.9 sqft | Value: | $143,738 |
| Bathrooms: | 1.5 | Bedrooms: | 3 | | Ceiling: | ACOUSTIC FURRED | Exterior Wall/Cover: | PLY/HARDBOARD T-111 | | Floor Covering: | CARPET/VINYL 80-20 | Floor Structure: | WOOD W/SUBFLOOR | | Foundation: | CONCRETE BLOCKS | Heating: | BASEBOARD ELECTRIC | | Interior Finish: | DRYWALL PAINT | Plumbing Fixture Cnt: | 8 | | Roof Slope: | 3" IN 12" | Roof Structure/Cover: | BEAM BUILT-UP ROCK |
|
| | Type | Description | Class CD | Sub Class CD | Year Built | Area |
| | BAS | BASE/MAIN FLOOR | 3 | 0 | 1962 | 1056.0 |
| | BGR | BASEMENT GARAGE | 3 | 0 | 1962 | 352.0 |
| | OWP | OPEN WOOD PORCH W/STEPS | 3 | 0 | 1962 | 286.0 |
| | DWN | DOWNSTAIRS LIVING AREA | 3 | 0 | 1962 | 592.9 |
| | OCP | OPEN CARPORT | 3 | 0 | 1962 | 576.0 |
Sketch
Property Image
Land
| 1 | 14 | SQ (08001-12000) | 0.0000 | 0.00 | 0.00 | 0.00 | 1.00 | $250,000 | $0 |
Roll Value History
| 2026 | N/A | N/A | N/A | N/A | N/A |
| 2025 | $143,738 | $250,000 | $0 | $393,738 | $393,738 |
| 2024 | $149,936 | $240,000 | $0 | $389,936 | $389,936 |
| 2023 | $105,462 | $240,000 | $0 | $345,462 | $345,462 |
| 2022 | $97,609 | $240,000 | $0 | $337,609 | $337,609 |
| 2021 | $86,713 | $130,000 | $0 | $216,713 | $216,713 |
| 2020 | $85,369 | $160,000 | $0 | $245,369 | $245,369 |
| 2019 | $62,874 | $150,000 | $0 | $212,874 | $212,874 |
| 2018 | $63,194 | $140,000 | $0 | $203,194 | $203,194 |
| 2017 | $91,234 | $120,000 | $0 | $211,234 | $211,234 |
| 2016 | $92,965 | $120,000 | $0 | $212,965 | $212,965 |
| 2015 | $94,697 | $90,000 | $0 | $184,697 | $184,697 |
| 2014 | $96,430 | $89,250 | $0 | $185,680 | $185,680 |
| 2013 | $98,163 | $89,250 | $0 | $187,413 | $187,413 |
| 2012 | $99,897 | $89,250 | $0 | $189,147 | $189,147 |
| 2011 | $103,657 | $105,000 | $0 | $208,657 | $208,657 |
| 2010 | $116,064 | $105,000 | $0 | $221,064 | $221,064 |
| 2009 | $121,171 | $130,000 | $0 | $251,171 | $251,171 |
| 2008 | $122,925 | $130,000 | $0 | $252,925 | $252,925 |
| 2007 | $124,770 | $95,500 | $0 | $220,270 | $220,270 |
Deed and Sales History
| 1 | 04/04/2023 | QCD | Quit Claim Deed | TAYLOR, PAUL M | CONKLIN, SANDRA MARTIN | | | $0.00 | 56711 | 4559974 |
| 2 | 04/22/1999 | WD | Warranty Deed | COLLINGS, MARY E | TAYLOR, PAUL M | | | $110,980.00 | 91668 | 99010662 |
| 3 | 12/01/1984 | OTHER | Other - Misc. Documents | COLLINGS, BROOKS E | COLLINGS, MARY E | | | $0.00 | 60962 | 0 |
| 4 | 01/01/1900 | OTHER | Other - Misc. Documents | Unknown | COLLINGS, BROOKS E | | | $0.00 | 0 | 0 |
Payout Agreement
| No payout information available.. |