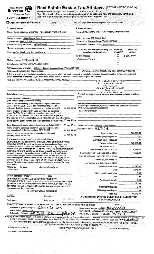
Property
Account |
| Property ID: | 341687 | Abbreviated Legal Description: | PATTONS HIDEAWAY 2 LOT 16 BLK 8 |
| Geographic ID: | S7680-02-08016-0 | Agent Code: | |
| Type: | Real | | |
| Tax Area: | 110 - APPRAISER-OH Schl Dist, outside OH, improved & 1 acre or less | Land Use Code | 11 |
| Open Space: | N | DFL | N |
| Historic Property: | N | Remodel Property: | N |
| Multi-Family Redevelopment: | N | | |
| Township: | | Section: | |
| Range: | |
Location |
| Address: | 1440 WEST BEACH RD OAK HARBOR, WA 98277 | Mapsco: | |
| Neighborhood: | Cycle 1 | Map ID: | 2 |
| Neighborhood CD: | 1 |
Owner |
| Name: | AKULOVA, NATALIA V | Owner ID: | 310271 |
| Mailing Address: | 1440 WEST BEACH RD OAK HARBOR, WA 98277 | % Ownership: | 100.0000000000% |
| | | Exemptions: | |
Taxes and Assessment Details
Values
| (+) Improvement Homesite Value: | + | $0 | |
| (+) Improvement Non-Homesite Value: | + | $391,879 | |
| (+) Land Homesite Value: | + | $0 | |
| (+) Land Non-Homesite Value: | + | $260,000 | |
| (+) Curr Use (HS): | + | $0 | $0 |
| (+) Curr Use (NHS): | + | $0 | $0 |
| | | -------------------------- | |
| (=) Market Value: | = | $651,879 | |
| (–) Productivity Loss: | – | $0 | |
| | | -------------------------- | |
| (=) Subtotal: | = | $651,879 | |
| (+) Senior Appraised Value: | + | $0 | |
| (+) Non-Senior Appraised Value: | + | $651,879 | |
| | | -------------------------- | |
| (=) Total Appraised Value: | = | $651,879 | |
| (–) Senior Exemption Loss: | – | $0 | |
| (–) Exemption Loss: | – | $0 | |
| | | -------------------------- | |
| (=) Taxable Value: | = | $651,879 | |
Taxing Jurisdiction
| Owner: | AKULOVA, NATALIA V | | |
| % Ownership: | 100.0000000000% | | |
| Total Value: | $651,879 | | |
| Tax Area: | 110 - APPRAISER-OH Schl Dist, outside OH, improved & 1 acre or less |
| CF | Conservation Futures | 0.0316035091 | $651,879 | $651,879 | $20.60 | | |
| CEM1 | Cemetery #1 | 0.0040320932 | $651,879 | $651,879 | $2.63 | | |
| FIRE2 | Fire & Rescue Dist #2 N Whidbey GEN | 0.5475949600 | $651,879 | $651,879 | $356.97 | | |
| HOBOND | Hospital BOND | 0.1910887512 | $651,879 | $651,879 | $124.57 | | |
| HOGEN | Hospital GEN | 0.3902502903 | $651,879 | $651,879 | $254.40 | | |
| CE | County Current Expense | 0.3708482477 | $651,879 | $651,879 | $241.75 | | |
| CR | County Roads | 0.4584763726 | $651,879 | $651,879 | $298.87 | | |
| ISLANDEMS | Hospital GEN (EMS) | 0.5000000000 | $651,879 | $651,879 | $325.94 | | |
| LIB | Library Sno-Isle GEN | 0.3153421757 | $651,879 | $651,879 | $205.56 | | |
| NWHIDPRMT | P & R N Whidbey GEN | 0.2004466701 | $651,879 | $651,879 | $130.67 | | |
| SCH201MO | School 201 Enrichment | 1.8559231640 | $651,879 | $651,879 | $1,209.84 | | |
| ST | State School | 1.3035497053 | $651,879 | $651,879 | $849.76 | | |
| ST2 | State School Part 2 | 0.8169543533 | $651,879 | $651,879 | $532.56 | | |
| | Total Tax Rate: | 6.9861102925 | | | | | |
| | | | | Taxes w/Current Exemptions: | $4,554.12 | | |
| | | | | Taxes w/o Exemptions: | $4,554.12 | | |
Improvement / Building
| Improvement #1: | RESIDENTIAL | State Code: | Y | 2102.0 sqft | Value: | $391,879 |
| Bathrooms: | 2 | Bedrooms: | 3 | | Ceiling: | DRYWALL PAINTED | Exterior Wall/Cover: | WOOD SIDING | | Floor Covering: | HARDWOOD/CARP 80-20 | Floor Structure: | WOOD W/SUBFLOOR | | Foundation: | CONCRETE | Heating: | BASEBOARD ELECTRIC | | Interior Finish: | DRYWALL PAINT | Plumbing Fixture Cnt: | 9 | | Roof Slope: | FLAT | Roof Structure/Cover: | BEAM BUILT-UP ROCK |
|
| | Type | Description | Class CD | Sub Class CD | Year Built | Area |
| | BAS | BASE/MAIN FLOOR | 4 | 0 | 1980 | 954.0 |
| | BGR | BASEMENT GARAGE | 4 | 0 | 1980 | 330.0 |
| | UPS | UPPER STORY | 4 | 0 | 1980 | 764.0 |
| | OWP | OPEN WOOD PORCH W/STEPS | 4 | 0 | 1980 | 95.1 |
| | OWP | OPEN WOOD PORCH W/STEPS | 4 | 0 | 1980 | 196.1 |
| | DWN | DOWNSTAIRS LIVING AREA | 4 | 0 | 1980 | 384.0 |
Sketch
Property Image
Land
| 1 | 15 | SQ (12001-21780) | 0.0000 | 0.00 | 0.00 | 0.00 | 1.00 | $260,000 | $0 |
Roll Value History
| 2026 | N/A | N/A | N/A | N/A | N/A |
| 2025 | $391,879 | $260,000 | $0 | $651,879 | $651,879 |
| 2024 | $404,891 | $240,000 | $0 | $644,891 | $644,891 |
| 2023 | $410,343 | $240,000 | $0 | $650,343 | $650,343 |
| 2022 | $376,514 | $240,000 | $0 | $616,514 | $616,514 |
| 2021 | $331,694 | $130,000 | $0 | $461,694 | $461,694 |
| 2020 | $324,205 | $130,000 | $0 | $454,205 | $454,205 |
| 2019 | $246,592 | $150,000 | $0 | $396,592 | $396,592 |
| 2018 | $247,371 | $140,000 | $0 | $387,371 | $387,371 |
| 2017 | $200,919 | $120,000 | $0 | $320,919 | $320,919 |
| 2016 | $203,710 | $120,000 | $0 | $323,710 | $323,710 |
| 2015 | $206,503 | $100,000 | $0 | $306,503 | $306,503 |
| 2014 | $209,292 | $100,000 | $0 | $309,292 | $309,292 |
| 2013 | $212,081 | $114,750 | $0 | $326,831 | $326,831 |
| 2012 | $214,873 | $89,250 | $0 | $304,123 | $304,123 |
| 2011 | $230,438 | $105,000 | $0 | $335,438 | $335,438 |
| 2010 | $239,125 | $105,000 | $0 | $344,125 | $344,125 |
| 2009 | $249,729 | $130,000 | $0 | $379,729 | $379,729 |
| 2008 | $253,353 | $131,500 | $0 | $384,853 | $384,853 |
| 2007 | $233,159 | $95,500 | $0 | $328,659 | $328,659 |
Deed and Sales History
| 1 | 09/28/2023 | PRD | Personal Representatives Deed | MONTGOMERY, CHARLES D | AKULOVA, NATALIA V | | | $0.00 | 58185 | 4565493 |
| 2 | 11/17/2004 | WD | Warranty Deed | ALBERTS, HAROLD A | MONTGOMERY, CHARLES D | | | $332,500.00 | 45679 | 4119950 |
| 3 | 12/01/1993 | WD | Warranty Deed | HUNT, ALAN G | ALBERTS, HAROLD A | | | $187,500.00 | 35164 | 93026814 |
| 4 | 12/01/1988 | WD | Warranty Deed | HARTGRAVES, DOUGLAS K | HUNT, ALAN G | | | $132,000.00 | 84169 | 88015592 |
| 5 | 02/01/1981 | WD | Warranty Deed | CRAWFORD, ROBERT J | HARTGRAVES, DOUGLAS K | | | $94,900.00 | 10441 | 379482 |
| 6 | 10/01/1978 | OTHER | Other - Misc. Documents | Unknown | CRAWFORD, ROBERT J | | | $11,000.00 | 84951 | 340964 |
Payout Agreement
| No payout information available.. |