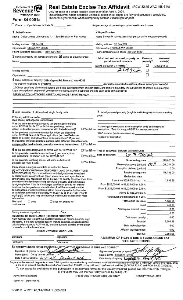
Property
Account |
| Property ID: | 341892 | Abbreviated Legal Description: | PATTONS HIDEAWAY 3 LOT 2 BLK 10 |
| Geographic ID: | S7680-03-10002-0 | Agent Code: | |
| Type: | Real | | |
| Tax Area: | 110 - APPRAISER-OH Schl Dist, outside OH, improved & 1 acre or less | Land Use Code | 11 |
| Open Space: | N | DFL | N |
| Historic Property: | N | Remodel Property: | N |
| Multi-Family Redevelopment: | N | | |
| Township: | | Section: | |
| Range: | |
Location |
| Address: | 1453 LLOYD PLACE OAK HARBOR, WA 98277 | Mapsco: | |
| Neighborhood: | Cycle 1 | Map ID: | 2 |
| Neighborhood CD: | 1 |
Owner |
| Name: | LAMPERS, GARY | Owner ID: | 279029 |
| Mailing Address: | ELIZABETH LAMPERS 1453 LLOYDS PLACE OAK HARBOR, WA 98277-8568 | % Ownership: | 100.0000000000% |
| | | Exemptions: | |
Taxes and Assessment Details
Values
| (+) Improvement Homesite Value: | + | $0 | |
| (+) Improvement Non-Homesite Value: | + | $267,515 | |
| (+) Land Homesite Value: | + | $0 | |
| (+) Land Non-Homesite Value: | + | $230,000 | |
| (+) Curr Use (HS): | + | $0 | $0 |
| (+) Curr Use (NHS): | + | $0 | $0 |
| | | -------------------------- | |
| (=) Market Value: | = | $497,515 | |
| (–) Productivity Loss: | – | $0 | |
| | | -------------------------- | |
| (=) Subtotal: | = | $497,515 | |
| (+) Senior Appraised Value: | + | $0 | |
| (+) Non-Senior Appraised Value: | + | $497,515 | |
| | | -------------------------- | |
| (=) Total Appraised Value: | = | $497,515 | |
| (–) Senior Exemption Loss: | – | $0 | |
| (–) Exemption Loss: | – | $0 | |
| | | -------------------------- | |
| (=) Taxable Value: | = | $497,515 | |
Taxing Jurisdiction
| Owner: | LAMPERS, GARY | | |
| % Ownership: | 100.0000000000% | | |
| Total Value: | $497,515 | | |
| Tax Area: | 110 - APPRAISER-OH Schl Dist, outside OH, improved & 1 acre or less |
| CF | Conservation Futures | 0.0316035091 | $497,515 | $497,515 | $15.72 | | |
| CEM1 | Cemetery #1 | 0.0040320932 | $497,515 | $497,515 | $2.01 | | |
| FIRE2 | Fire & Rescue Dist #2 N Whidbey GEN | 0.5475949600 | $497,515 | $497,515 | $272.44 | | |
| HOBOND | Hospital BOND | 0.1910887512 | $497,515 | $497,515 | $95.07 | | |
| HOGEN | Hospital GEN | 0.3902502903 | $497,515 | $497,515 | $194.16 | | |
| CE | County Current Expense | 0.3708482477 | $497,515 | $497,515 | $184.50 | | |
| CR | County Roads | 0.4584763726 | $497,515 | $497,515 | $228.10 | | |
| ISLANDEMS | Hospital GEN (EMS) | 0.5000000000 | $497,515 | $497,515 | $248.76 | | |
| LIB | Library Sno-Isle GEN | 0.3153421757 | $497,515 | $497,515 | $156.89 | | |
| NWHIDPRMT | P & R N Whidbey GEN | 0.2004466701 | $497,515 | $497,515 | $99.73 | | |
| SCH201MO | School 201 Enrichment | 1.8559231640 | $497,515 | $497,515 | $923.35 | | |
| ST | State School | 1.3035497053 | $497,515 | $497,515 | $648.54 | | |
| ST2 | State School Part 2 | 0.8169543533 | $497,515 | $497,515 | $406.45 | | |
| | Total Tax Rate: | 6.9861102925 | | | | | |
| | | | | Taxes w/Current Exemptions: | $3,475.72 | | |
| | | | | Taxes w/o Exemptions: | $3,475.72 | | |
Improvement / Building
| Improvement #1: | RESIDENTIAL | State Code: | Y | 1806.0 sqft | Value: | $267,515 |
| Bathrooms: | 2.5 | Bedrooms: | 3 | | Ceiling: | DRY WALL SPRAYED | Exterior Wall/Cover: | WOOD SIDING | | Floor Covering: | CARPET/VINYL 80-20 | Floor Structure: | WOOD W/SUBFLOOR | | Foundation: | CONCRETE | Heating: | FHA ELECTRIC | | Interior Finish: | DRYWALL PAINT | Plumbing Fixture Cnt: | 11 | | Roof Slope: | 4" IN 12" | Roof Structure/Cover: | CJ ASPHALT |
|
| | Type | Description | Class CD | Sub Class CD | Year Built | Area |
| | BAS | BASE/MAIN FLOOR | 3 | 0 | 1971 | 1806.0 |
| | OP3 | OPEN PORCH W/ROOF | 3 | 0 | 1971 | 63.8 |
| | AGR | ATTACHED GARAGE | 3 | 0 | 1971 | 483.0 |
| | OWP | OPEN WOOD PORCH W/STEPS | 3 | 0 | 1971 | 612.0 |
Sketch
Property Image
Land
| 1 | 15 | SQ (12001-21780) | 0.0000 | 0.00 | 0.00 | 0.00 | 1.00 | $230,000 | $0 |
Roll Value History
| 2026 | N/A | N/A | N/A | N/A | N/A |
| 2025 | $267,515 | $230,000 | $0 | $497,515 | $497,515 |
| 2024 | $271,270 | $220,000 | $0 | $491,270 | $491,270 |
| 2023 | $275,025 | $215,000 | $0 | $490,025 | $490,025 |
| 2022 | $252,447 | $215,000 | $0 | $467,447 | $467,447 |
| 2021 | $222,466 | $120,000 | $0 | $342,466 | $342,466 |
| 2020 | $217,002 | $80,000 | $0 | $297,002 | $297,002 |
| 2019 | $160,774 | $150,000 | $0 | $310,774 | $310,774 |
| 2018 | $161,293 | $140,000 | $0 | $301,293 | $301,293 |
| 2017 | $161,449 | $110,000 | $0 | $271,449 | $271,449 |
| 2016 | $125,010 | $120,000 | $0 | $245,010 | $245,010 |
| 2015 | $127,026 | $90,000 | $0 | $217,026 | $217,026 |
| 2014 | $129,043 | $90,000 | $0 | $219,043 | $219,043 |
| 2013 | $131,059 | $55,000 | $0 | $186,059 | $186,059 |
| 2012 | $133,076 | $89,250 | $0 | $222,326 | $222,326 |
| 2011 | $138,415 | $105,000 | $0 | $243,415 | $243,415 |
| 2010 | $148,875 | $105,000 | $0 | $253,875 | $253,875 |
| 2009 | $155,305 | $130,000 | $0 | $285,305 | $285,305 |
| 2008 | $157,343 | $130,000 | $0 | $287,343 | $287,343 |
| 2007 | $159,381 | $95,500 | $0 | $254,881 | $254,881 |
Deed and Sales History
| 1 | 03/09/2017 | WD | Warranty Deed | METZGER, WILLIAM J | LAMPERS, GARY | | | $300,000.00 | 28516 | 4419238 |
| 2 | 01/01/1986 | WD | Warranty Deed | PALMA, RICHARD J | METZGER, WILLIAM J | | | $70,000.00 | 60175 | 86000986 |
| 3 | 01/01/1900 | OTHER | Other - Misc. Documents | Unknown | PALMA, RICHARD J | | | $0.00 | 0 | 0 |
Payout Agreement
| No payout information available.. |