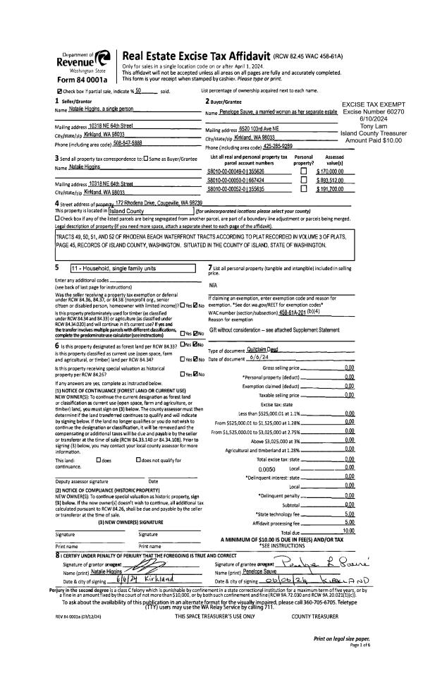
Property
Account |
| Property ID: | 341963 | Abbreviated Legal Description: | PATTONS HIDEAWAY 3 LOT 9 BLK 10 |
| Geographic ID: | S7680-03-10009-0 | Agent Code: | |
| Type: | Real | | |
| Tax Area: | 110 - APPRAISER-OH Schl Dist, outside OH, improved & 1 acre or less | Land Use Code | 11 |
| Open Space: | N | DFL | N |
| Historic Property: | N | Remodel Property: | N |
| Multi-Family Redevelopment: | N | | |
| Township: | | Section: | |
| Range: | |
Location |
| Address: | 2370 MARIE WAY OAK HARBOR, WA 98277 | Mapsco: | |
| Neighborhood: | Cycle 1 | Map ID: | 139 |
| Neighborhood CD: | 1 |
Owner |
| Name: | FORBES, MARK HUNDLEY | Owner ID: | 292078 |
| Mailing Address: | MARJORIE ELIZABETH FORBES 2370 MARIE WAY OAK HARBOR, WA 98277 | % Ownership: | 100.0000000000% |
| | | Exemptions: | |
Taxes and Assessment Details
Values
| (+) Improvement Homesite Value: | + | $0 | |
| (+) Improvement Non-Homesite Value: | + | $236,757 | |
| (+) Land Homesite Value: | + | $0 | |
| (+) Land Non-Homesite Value: | + | $260,000 | |
| (+) Curr Use (HS): | + | $0 | $0 |
| (+) Curr Use (NHS): | + | $0 | $0 |
| | | -------------------------- | |
| (=) Market Value: | = | $496,757 | |
| (–) Productivity Loss: | – | $0 | |
| | | -------------------------- | |
| (=) Subtotal: | = | $496,757 | |
| (+) Senior Appraised Value: | + | $0 | |
| (+) Non-Senior Appraised Value: | + | $496,757 | |
| | | -------------------------- | |
| (=) Total Appraised Value: | = | $496,757 | |
| (–) Senior Exemption Loss: | – | $0 | |
| (–) Exemption Loss: | – | $0 | |
| | | -------------------------- | |
| (=) Taxable Value: | = | $496,757 | |
Taxing Jurisdiction
| Owner: | FORBES, MARK HUNDLEY | | |
| % Ownership: | 100.0000000000% | | |
| Total Value: | $496,757 | | |
| Tax Area: | 110 - APPRAISER-OH Schl Dist, outside OH, improved & 1 acre or less |
| CF | Conservation Futures | 0.0316035091 | $496,757 | $496,757 | $15.70 | | |
| CEM1 | Cemetery #1 | 0.0040320932 | $496,757 | $496,757 | $2.00 | | |
| FIRE2 | Fire & Rescue Dist #2 N Whidbey GEN | 0.5475949600 | $496,757 | $496,757 | $272.02 | | |
| HOBOND | Hospital BOND | 0.1910887512 | $496,757 | $496,757 | $94.92 | | |
| HOGEN | Hospital GEN | 0.3902502903 | $496,757 | $496,757 | $193.86 | | |
| CE | County Current Expense | 0.3708482477 | $496,757 | $496,757 | $184.22 | | |
| CR | County Roads | 0.4584763726 | $496,757 | $496,757 | $227.75 | | |
| ISLANDEMS | Hospital GEN (EMS) | 0.5000000000 | $496,757 | $496,757 | $248.38 | | |
| LIB | Library Sno-Isle GEN | 0.3153421757 | $496,757 | $496,757 | $156.65 | | |
| NWHIDPRMT | P & R N Whidbey GEN | 0.2004466701 | $496,757 | $496,757 | $99.57 | | |
| SCH201MO | School 201 Enrichment | 1.8559231640 | $496,757 | $496,757 | $921.94 | | |
| ST | State School | 1.3035497053 | $496,757 | $496,757 | $647.55 | | |
| ST2 | State School Part 2 | 0.8169543533 | $496,757 | $496,757 | $405.83 | | |
| | Total Tax Rate: | 6.9861102925 | | | | | |
| | | | | Taxes w/Current Exemptions: | $3,470.39 | | |
| | | | | Taxes w/o Exemptions: | $3,470.39 | | |
Improvement / Building
| Improvement #1: | RESIDENTIAL | State Code: | Y | 1556.0 sqft | Value: | $236,757 |
| Bathrooms: | 2 | Bedrooms: | 0 | | Ceiling: | DRY WALL SPRAYED | Exterior Wall/Cover: | PLY/HARDBOARD T-111 | | Floor Covering: | CARPET/VINYL 80-20 | Floor Structure: | WOOD W/SUBFLOOR | | Foundation: | CONCRETE | Heating: | BASEBOARD ELECTRIC | | Interior Finish: | DRYWALL PAINT | Plumbing Fixture Cnt: | 9 | | Roof Slope: | 4" IN 12" | Roof Structure/Cover: | CJ ASPHALT |
|
| | Type | Description | Class CD | Sub Class CD | Year Built | Area |
| | BAS | BASE/MAIN FLOOR | 3 | 0 | 1974 | 1556.0 |
| | AGR | ATTACHED GARAGE | 3 | 0 | 1974 | 450.0 |
| | OWP | OPEN WOOD PORCH W/STEPS | 3 | 0 | 1974 | 204.0 |
Sketch
Property Image
Land
| 1 | 15 | SQ (12001-21780) | 0.0000 | 0.00 | 0.00 | 0.00 | 1.00 | $260,000 | $0 |
Roll Value History
| 2026 | N/A | N/A | N/A | N/A | N/A |
| 2025 | $236,757 | $260,000 | $0 | $496,757 | $496,757 |
| 2024 | $245,106 | $240,000 | $0 | $485,106 | $485,106 |
| 2023 | $216,176 | $240,000 | $0 | $456,176 | $456,176 |
| 2022 | $198,669 | $240,000 | $0 | $438,669 | $438,669 |
| 2021 | $175,283 | $120,000 | $0 | $295,283 | $295,283 |
| 2020 | $171,192 | $80,000 | $0 | $251,192 | $251,192 |
| 2019 | $125,026 | $150,000 | $0 | $275,026 | $275,026 |
| 2018 | $125,465 | $140,000 | $0 | $265,465 | $265,465 |
| 2017 | $109,070 | $110,000 | $0 | $219,070 | $219,070 |
| 2016 | $110,859 | $100,000 | $0 | $210,859 | $210,859 |
| 2015 | $112,646 | $75,000 | $0 | $187,646 | $187,646 |
| 2014 | $114,434 | $55,000 | $0 | $169,434 | $169,434 |
| 2013 | $116,222 | $55,000 | $0 | $171,222 | $171,222 |
| 2012 | $118,011 | $89,250 | $0 | $207,261 | $207,261 |
| 2011 | $122,528 | $105,000 | $0 | $227,528 | $227,528 |
| 2010 | $130,718 | $105,000 | $0 | $235,718 | $235,718 |
| 2009 | $136,505 | $130,000 | $0 | $266,505 | $266,505 |
| 2008 | $138,554 | $131,500 | $0 | $270,054 | $270,054 |
| 2007 | $140,604 | $95,500 | $0 | $236,104 | $236,104 |
Deed and Sales History
| 1 | 09/19/2019 | WD | Warranty Deed | NAYMIK, MARK | FORBES, MARK HUNDLEY | | | $370,000.00 | 40537 | 4472592 |
| 2 | 09/07/2000 | WD | Warranty Deed | SLACK, HERBERT L | NAYMIK, MARK | | | $146,250.00 | 3524 | 20016241 |
| 3 | 09/01/1994 | WD | Warranty Deed | WINCKLER, ROBERT A | SLACK, HERBERT L | | | $136,000.00 | 44050 | 94020909 |
| 4 | 05/01/1987 | WD | Warranty Deed | SCHMELING, WILLIAM F | WINCKLER, ROBERT A | | | $81,750.00 | 71170 | 87005838 |
| 5 | 10/01/1979 | WD | Warranty Deed | BALAND, GEORGE A | SCHMELING, WILLIAM F | | | $69,000.00 | 95281 | 361119 |
| 6 | 01/01/1900 | OTHER | Other - Misc. Documents | Unknown | BALAND, GEORGE A | | | $0.00 | 0 | 0 |
Payout Agreement
| No payout information available.. |