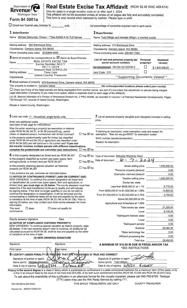
Property
Account |
| Property ID: | 342016 | Abbreviated Legal Description: | PATTONS HIDEAWAY 3 LOT 14 BLK 10 TGW EZ |
| Geographic ID: | S7680-03-10014-0 | Agent Code: | |
| Type: | Real | | |
| Tax Area: | 110 - APPRAISER-OH Schl Dist, outside OH, improved & 1 acre or less | Land Use Code | 11 |
| Open Space: | N | DFL | N |
| Historic Property: | N | Remodel Property: | N |
| Multi-Family Redevelopment: | N | | |
| Township: | | Section: | |
| Range: | |
Location |
| Address: | 1456 BERTHA PLACE OAK HARBOR, WA 98277 | Mapsco: | |
| Neighborhood: | Cycle 1 | Map ID: | 139 |
| Neighborhood CD: | 1 |
Owner |
| Name: | GORDON TRUSTEE, TAYLOR J. | Owner ID: | 277858 |
| Mailing Address: | CHERYL D GORDON THE GORDON FAMILY TRUST 1456 BERTHA PLACE OAK HARBOR, WA 98277 | % Ownership: | 100.0000000000% |
| | | Exemptions: | |
Taxes and Assessment Details
Values
| (+) Improvement Homesite Value: | + | $0 | |
| (+) Improvement Non-Homesite Value: | + | $411,914 | |
| (+) Land Homesite Value: | + | $0 | |
| (+) Land Non-Homesite Value: | + | $260,000 | |
| (+) Curr Use (HS): | + | $0 | $0 |
| (+) Curr Use (NHS): | + | $0 | $0 |
| | | -------------------------- | |
| (=) Market Value: | = | $671,914 | |
| (–) Productivity Loss: | – | $0 | |
| | | -------------------------- | |
| (=) Subtotal: | = | $671,914 | |
| (+) Senior Appraised Value: | + | $0 | |
| (+) Non-Senior Appraised Value: | + | $671,914 | |
| | | -------------------------- | |
| (=) Total Appraised Value: | = | $671,914 | |
| (–) Senior Exemption Loss: | – | $0 | |
| (–) Exemption Loss: | – | $0 | |
| | | -------------------------- | |
| (=) Taxable Value: | = | $671,914 | |
Taxing Jurisdiction
| Owner: | GORDON TRUSTEE, TAYLOR J. | | |
| % Ownership: | 100.0000000000% | | |
| Total Value: | $671,914 | | |
| Tax Area: | 110 - APPRAISER-OH Schl Dist, outside OH, improved & 1 acre or less |
| CF | Conservation Futures | 0.0316035091 | $671,914 | $671,914 | $21.23 | | |
| CEM1 | Cemetery #1 | 0.0040320932 | $671,914 | $671,914 | $2.71 | | |
| FIRE2 | Fire & Rescue Dist #2 N Whidbey GEN | 0.5475949600 | $671,914 | $671,914 | $367.94 | | |
| HOBOND | Hospital BOND | 0.1910887512 | $671,914 | $671,914 | $128.40 | | |
| HOGEN | Hospital GEN | 0.3902502903 | $671,914 | $671,914 | $262.21 | | |
| CE | County Current Expense | 0.3708482477 | $671,914 | $671,914 | $249.18 | | |
| CR | County Roads | 0.4584763726 | $671,914 | $671,914 | $308.06 | | |
| ISLANDEMS | Hospital GEN (EMS) | 0.5000000000 | $671,914 | $671,914 | $335.96 | | |
| LIB | Library Sno-Isle GEN | 0.3153421757 | $671,914 | $671,914 | $211.88 | | |
| NWHIDPRMT | P & R N Whidbey GEN | 0.2004466701 | $671,914 | $671,914 | $134.68 | | |
| SCH201MO | School 201 Enrichment | 1.8559231640 | $671,914 | $671,914 | $1,247.02 | | |
| ST | State School | 1.3035497053 | $671,914 | $671,914 | $875.87 | | |
| ST2 | State School Part 2 | 0.8169543533 | $671,914 | $671,914 | $548.92 | | |
| | Total Tax Rate: | 6.9861102925 | | | | | |
| | | | | Taxes w/Current Exemptions: | $4,694.06 | | |
| | | | | Taxes w/o Exemptions: | $4,694.06 | | |
Improvement / Building
| Improvement #1: | RESIDENTIAL | State Code: | Y | 2895.0 sqft | Value: | $411,914 |
| Bathrooms: | 3 | Bedrooms: | 3 | | Ceiling: | BEAM PAINTED | Exterior Wall/Cover: | WOOD SIDING | | Floor Covering: | HARDWOOD/CARP 60-40 | Floor Structure: | WOOD W/SUBFLOOR | | Foundation: | CONCRETE | Heating: | FHA GAS | | Interior Finish: | DRYWALL PAINT | Plumbing Fixture Cnt: | 15 | | Roof Slope: | 4" IN 12" | Roof Structure/Cover: | BEAM ASPHALT |
|
| | Type | Description | Class CD | Sub Class CD | Year Built | Area |
| | BAS | BASE/MAIN FLOOR | 3 | 0 | 1986 | 1723.5 |
| | OP1 | OPEN PORCH SLAB | 3 | 0 | 1986 | 530.2 |
| | BIG | BUILT IN GARAGE | 3 | 0 | 1986 | 552.0 |
| | OWP | OPEN WOOD PORCH W/STEPS | 3 | 0 | 1986 | 589.9 |
| | DWN | DOWNSTAIRS LIVING AREA | 3 | 0 | 1986 | 1171.5 |
Sketch
Property Image
Land
| 1 | 15 | SQ (12001-21780) | 0.0000 | 0.00 | 0.00 | 0.00 | 1.00 | $260,000 | $0 |
Roll Value History
| 2026 | N/A | N/A | N/A | N/A | N/A |
| 2025 | $411,914 | $260,000 | $0 | $671,914 | $671,914 |
| 2024 | $410,129 | $240,000 | $0 | $650,129 | $650,129 |
| 2023 | $415,372 | $240,000 | $0 | $655,372 | $655,372 |
| 2022 | $380,876 | $240,000 | $0 | $620,876 | $620,876 |
| 2021 | $335,323 | $120,000 | $0 | $455,323 | $455,323 |
| 2020 | $327,246 | $80,000 | $0 | $407,246 | $407,246 |
| 2019 | $259,331 | $150,000 | $0 | $409,331 | $409,331 |
| 2018 | $260,111 | $140,000 | $0 | $400,111 | $400,111 |
| 2017 | $194,620 | $110,000 | $0 | $304,620 | $304,620 |
| 2016 | $197,483 | $100,000 | $0 | $297,483 | $297,483 |
| 2015 | $200,344 | $75,000 | $0 | $275,344 | $275,344 |
| 2014 | $203,206 | $55,000 | $0 | $258,206 | $258,206 |
| 2013 | $206,068 | $55,000 | $0 | $261,068 | $261,068 |
| 2012 | $208,932 | $89,250 | $0 | $298,182 | $298,182 |
| 2011 | $216,736 | $105,000 | $0 | $321,736 | $321,736 |
| 2010 | $228,948 | $105,000 | $0 | $333,948 | $333,948 |
| 2009 | $239,185 | $130,000 | $0 | $369,185 | $369,185 |
| 2008 | $242,609 | $131,500 | $0 | $374,109 | $374,109 |
| 2007 | $245,930 | $95,500 | $0 | $341,430 | $341,430 |
Deed and Sales History
| 1 | 12/13/2016 | QCD | Quit Claim Deed | GORDON, TAYLOR J | GORDON TRUSTEE, TAYLOR J. | | | $0.00 | 27304 | 4413272 |
| 2 | 08/01/1990 | WD | Warranty Deed | DYER, JOHN D | GORDON, TAYLOR J | | | $138,000.00 | 5224 | 90017400 |
| 3 | 03/01/1985 | WD | Warranty Deed | BILLS, RODNEY O | DYER, JOHN D | | | $24,000.00 | 50796 | 85003369 |
| 4 | 07/01/1979 | WD | Warranty Deed | KOHLER, JOSEPH G | BILLS, RODNEY O | | | $19,000.00 | 93834 | 356749 |
| 5 | 01/01/1900 | OTHER | Other - Misc. Documents | Unknown | KOHLER, JOSEPH G | | | $0.00 | 0 | 0 |
Payout Agreement
| No payout information available.. |