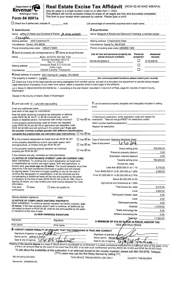
Property
Account |
| Property ID: | 342034 | Abbreviated Legal Description: | PATTONS HIDEAWAY 3 LOT 16 BLK 10 |
| Geographic ID: | S7680-03-10016-0 | Agent Code: | |
| Type: | Real | | |
| Tax Area: | 110 - APPRAISER-OH Schl Dist, outside OH, improved & 1 acre or less | Land Use Code | 11 |
| Open Space: | N | DFL | N |
| Historic Property: | N | Remodel Property: | N |
| Multi-Family Redevelopment: | N | | |
| Township: | | Section: | |
| Range: | |
Location |
| Address: | 1446 BERTHA PLACE OAK HARBOR, WA 98277 | Mapsco: | |
| Neighborhood: | Cycle 1 | Map ID: | 139 |
| Neighborhood CD: | 1 |
Owner |
| Name: | GEIST, STEVEN | Owner ID: | 302964 |
| Mailing Address: | SARAH GEIST 1446 BERTHA PL OAK HARBOR, WA 98277 | % Ownership: | 100.0000000000% |
| | | Exemptions: | |
Taxes and Assessment Details
Values
| (+) Improvement Homesite Value: | + | $0 | |
| (+) Improvement Non-Homesite Value: | + | $294,277 | |
| (+) Land Homesite Value: | + | $0 | |
| (+) Land Non-Homesite Value: | + | $250,000 | |
| (+) Curr Use (HS): | + | $0 | $0 |
| (+) Curr Use (NHS): | + | $0 | $0 |
| | | -------------------------- | |
| (=) Market Value: | = | $544,277 | |
| (–) Productivity Loss: | – | $0 | |
| | | -------------------------- | |
| (=) Subtotal: | = | $544,277 | |
| (+) Senior Appraised Value: | + | $0 | |
| (+) Non-Senior Appraised Value: | + | $544,277 | |
| | | -------------------------- | |
| (=) Total Appraised Value: | = | $544,277 | |
| (–) Senior Exemption Loss: | – | $0 | |
| (–) Exemption Loss: | – | $0 | |
| | | -------------------------- | |
| (=) Taxable Value: | = | $544,277 | |
Taxing Jurisdiction
| Owner: | GEIST, STEVEN | | |
| % Ownership: | 100.0000000000% | | |
| Total Value: | $544,277 | | |
| Tax Area: | 110 - APPRAISER-OH Schl Dist, outside OH, improved & 1 acre or less |
| CF | Conservation Futures | 0.0316035091 | $544,277 | $544,277 | $17.20 | | |
| CEM1 | Cemetery #1 | 0.0040320932 | $544,277 | $544,277 | $2.19 | | |
| FIRE2 | Fire & Rescue Dist #2 N Whidbey GEN | 0.5475949600 | $544,277 | $544,277 | $298.04 | | |
| HOBOND | Hospital BOND | 0.1910887512 | $544,277 | $544,277 | $104.01 | | |
| HOGEN | Hospital GEN | 0.3902502903 | $544,277 | $544,277 | $212.40 | | |
| CE | County Current Expense | 0.3708482477 | $544,277 | $544,277 | $201.84 | | |
| CR | County Roads | 0.4584763726 | $544,277 | $544,277 | $249.54 | | |
| ISLANDEMS | Hospital GEN (EMS) | 0.5000000000 | $544,277 | $544,277 | $272.14 | | |
| LIB | Library Sno-Isle GEN | 0.3153421757 | $544,277 | $544,277 | $171.63 | | |
| NWHIDPRMT | P & R N Whidbey GEN | 0.2004466701 | $544,277 | $544,277 | $109.10 | | |
| SCH201MO | School 201 Enrichment | 1.8559231640 | $544,277 | $544,277 | $1,010.14 | | |
| ST | State School | 1.3035497053 | $544,277 | $544,277 | $709.49 | | |
| ST2 | State School Part 2 | 0.8169543533 | $544,277 | $544,277 | $444.65 | | |
| | Total Tax Rate: | 6.9861102925 | | | | | |
| | | | | Taxes w/Current Exemptions: | $3,802.37 | | |
| | | | | Taxes w/o Exemptions: | $3,802.37 | | |
Improvement / Building
| Improvement #1: | RESIDENTIAL | State Code: | Y | 1908.5 sqft | Value: | $294,277 |
| Bathrooms: | 2 | Bedrooms: | 3 | | Ceiling: | DRY WALL SPRAYED | Exterior Wall/Cover: | WOOD SIDING | | Floor Covering: | CARPET/VINYL 60-40 | Floor Structure: | WOOD W/SUBFLOOR | | Foundation: | CONCRETE | Heating: | FHA ELECTRIC | | Interior Finish: | DRYWALL PAINT | Plumbing Fixture Cnt: | 10 | | Roof Slope: | 4" IN 12" | Roof Structure/Cover: | CJ ASPHALT |
|
| | Type | Description | Class CD | Sub Class CD | Year Built | Area |
| | BAS | BASE/MAIN FLOOR | 3 | 0 | 1979 | 1908.5 |
| | OP4 | OPEN PORCH W/CEILING-ROOF | 3 | 0 | 1979 | 24.0 |
| | AGR | ATTACHED GARAGE | 3 | 0 | 1979 | 430.5 |
| | OWP | OPEN WOOD PORCH W/STEPS | 3 | 0 | 1979 | 176.0 |
| | ENP | ENCLOSED PORCH | 3 | 0 | 1979 | 160.0 |
Sketch
Property Image
Land
| 1 | 14 | SQ (08001-12000) | 0.0000 | 0.00 | 0.00 | 0.00 | 1.00 | $250,000 | $0 |
Roll Value History
| 2026 | N/A | N/A | N/A | N/A | N/A |
| 2025 | $294,277 | $250,000 | $0 | $544,277 | $544,277 |
| 2024 | $298,087 | $240,000 | $0 | $538,087 | $538,087 |
| 2023 | $266,858 | $240,000 | $0 | $506,858 | $506,858 |
| 2022 | $245,135 | $240,000 | $0 | $485,135 | $485,135 |
| 2021 | $212,028 | $120,000 | $0 | $332,028 | $332,028 |
| 2020 | $207,334 | $80,000 | $0 | $287,334 | $287,334 |
| 2019 | $157,403 | $150,000 | $0 | $307,403 | $307,403 |
| 2018 | $157,942 | $140,000 | $0 | $297,942 | $297,942 |
| 2017 | $142,999 | $110,000 | $0 | $252,999 | $252,999 |
| 2016 | $145,234 | $100,000 | $0 | $245,234 | $245,234 |
| 2015 | $147,467 | $75,000 | $0 | $222,467 | $222,467 |
| 2014 | $149,702 | $55,000 | $0 | $204,702 | $204,702 |
| 2013 | $151,936 | $55,000 | $0 | $206,936 | $82,774 |
| 2012 | $154,171 | $63,750 | $0 | $217,921 | $87,168 |
| 2011 | $159,347 | $75,000 | $0 | $234,347 | $93,739 |
| 2010 | $175,167 | $75,000 | $0 | $250,167 | $100,067 |
| 2009 | $175,165 | $90,000 | $0 | $265,165 | $106,066 |
| 2008 | $177,127 | $95,376 | $0 | $272,503 | $109,001 |
| 2007 | $180,215 | $95,500 | $0 | $275,715 | $275,715 |
Deed and Sales History
| 1 | 02/08/2022 | WD | Warranty Deed | WILLIAMS, ANNA H | GEIST, STEVEN | | | $454,145.00 | 51953 | 4539703 |
| 2 | 08/11/2008 | WD | Warranty Deed | ERLEY, PAUL A | WILLIAMS, ANNA H | | | $242,000.00 | 82131 | 4234930 |
| 3 | 01/01/1996 | WD | Warranty Deed | ERLEY, PAUL A | ERLEY, PAUL A | | | $150,000.00 | 60239 | 96001257 |
| 4 | 01/01/1996 | DECREE | Divorce Decree/Legal Separation | SINNOTT, RAY A | ERLEY, PAUL A | | | $0.00 | 60240 | 96001258 |
| 5 | 03/01/1988 | WD | Warranty Deed | SHIRVEN, RAYMOND M | SINNOTT, RAY A | | | $85,500.00 | 80986 | 88003799 |
| 6 | 08/01/1980 | WD | Warranty Deed | BWB, CONSTRUCTION C | SHIRVEN, RAYMOND M | | | $79,000.00 | 2741 | 372535 |
| 7 | 03/01/1979 | OTHER | Other - Misc. Documents | Unknown | BWB, CONSTRUCTION C | | | $15,500.00 | 91088 | 348874 |
Payout Agreement
| No payout information available.. |