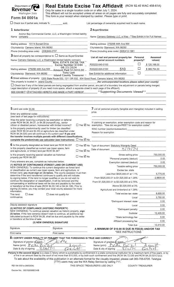
Property
Account |
| Property ID: | 342506 | Abbreviated Legal Description: | PATTONS HILLCREST LOT 3 BLK 3 |
| Geographic ID: | S7685-00-03003-0 | Agent Code: | |
| Type: | Real | | |
| Tax Area: | 110 - APPRAISER-OH Schl Dist, outside OH, improved & 1 acre or less | Land Use Code | 11 |
| Open Space: | N | DFL | N |
| Historic Property: | N | Remodel Property: | N |
| Multi-Family Redevelopment: | N | | |
| Township: | | Section: | |
| Range: | |
Location |
| Address: | 1344 SWANTOWN RD OAK HARBOR, WA 98277 | Mapsco: | |
| Neighborhood: | Cycle 1 | Map ID: | 97 |
| Neighborhood CD: | 1 |
Owner |
| Name: | HEATH, SARA J | Owner ID: | 78744 |
| Mailing Address: | 1344 SWANTOWN RD OAK HARBOR, WA 98277-9152 | % Ownership: | 100.0000000000% |
| | | Exemptions: | |
Taxes and Assessment Details
Values
| (+) Improvement Homesite Value: | + | $0 | |
| (+) Improvement Non-Homesite Value: | + | $145,885 | |
| (+) Land Homesite Value: | + | $0 | |
| (+) Land Non-Homesite Value: | + | $210,000 | |
| (+) Curr Use (HS): | + | $0 | $0 |
| (+) Curr Use (NHS): | + | $0 | $0 |
| | | -------------------------- | |
| (=) Market Value: | = | $355,885 | |
| (–) Productivity Loss: | – | $0 | |
| | | -------------------------- | |
| (=) Subtotal: | = | $355,885 | |
| (+) Senior Appraised Value: | + | $0 | |
| (+) Non-Senior Appraised Value: | + | $355,885 | |
| | | -------------------------- | |
| (=) Total Appraised Value: | = | $355,885 | |
| (–) Senior Exemption Loss: | – | $0 | |
| (–) Exemption Loss: | – | $0 | |
| | | -------------------------- | |
| (=) Taxable Value: | = | $355,885 | |
Taxing Jurisdiction
| Owner: | HEATH, SARA J | | |
| % Ownership: | 100.0000000000% | | |
| Total Value: | $355,885 | | |
| Tax Area: | 110 - APPRAISER-OH Schl Dist, outside OH, improved & 1 acre or less |
| CF | Conservation Futures | 0.0316035091 | $355,885 | $355,885 | $11.25 | | |
| CEM1 | Cemetery #1 | 0.0040320932 | $355,885 | $355,885 | $1.43 | | |
| FIRE2 | Fire & Rescue Dist #2 N Whidbey GEN | 0.5475949600 | $355,885 | $355,885 | $194.88 | | |
| HOBOND | Hospital BOND | 0.1910887512 | $355,885 | $355,885 | $68.01 | | |
| HOGEN | Hospital GEN | 0.3902502903 | $355,885 | $355,885 | $138.88 | | |
| CE | County Current Expense | 0.3708482477 | $355,885 | $355,885 | $131.98 | | |
| CR | County Roads | 0.4584763726 | $355,885 | $355,885 | $163.16 | | |
| ISLANDEMS | Hospital GEN (EMS) | 0.5000000000 | $355,885 | $355,885 | $177.94 | | |
| LIB | Library Sno-Isle GEN | 0.3153421757 | $355,885 | $355,885 | $112.23 | | |
| NWHIDPRMT | P & R N Whidbey GEN | 0.2004466701 | $355,885 | $355,885 | $71.34 | | |
| SCH201MO | School 201 Enrichment | 1.8559231640 | $355,885 | $355,885 | $660.50 | | |
| ST | State School | 1.3035497053 | $355,885 | $355,885 | $463.91 | | |
| ST2 | State School Part 2 | 0.8169543533 | $355,885 | $355,885 | $290.74 | | |
| | Total Tax Rate: | 6.9861102925 | | | | | |
| | | | | Taxes w/Current Exemptions: | $2,486.25 | | |
| | | | | Taxes w/o Exemptions: | $2,486.25 | | |
Improvement / Building
| Improvement #1: | RESIDENTIAL | State Code: | Y | 1092.0 sqft | Value: | $145,885 |
| Bathrooms: | 1 | Bedrooms: | 3 | | Ceiling: | DRY WALL SPRAYED | Exterior Wall/Cover: | WOOD SIDING | | Floor Covering: | CARPET/VINYL 80-20 | Floor Structure: | WOOD W/SUBFLOOR | | Foundation: | CONCRETE BLOCKS | Heating: | BASEBOARD ELECTRIC | | Interior Finish: | DRYWALL PAINT | Plumbing Fixture Cnt: | 6 | | Roof Slope: | 4" IN 12" | Roof Structure/Cover: | CJ ASPHALT |
|
| | Type | Description | Class CD | Sub Class CD | Year Built | Area |
| | BAS | BASE/MAIN FLOOR | 3 | 0 | 1957 | 1092.0 |
| | OP1 | OPEN PORCH SLAB | 3 | 0 | 1957 | 660.0 |
| | OP3 | OPEN PORCH W/ROOF | 3 | 0 | 1957 | 24.0 |
| | AGR | ATTACHED GARAGE | 3 | 0 | 1957 | 308.0 |
Sketch
Property Image
Land
| 1 | 15 | SQ (12001-21780) | 0.0000 | 0.00 | 0.00 | 0.00 | 1.00 | $210,000 | $0 |
Roll Value History
| 2026 | N/A | N/A | N/A | N/A | N/A |
| 2025 | $145,885 | $210,000 | $0 | $355,885 | $355,885 |
| 2024 | $151,390 | $190,000 | $0 | $341,390 | $341,390 |
| 2023 | $149,104 | $190,000 | $0 | $339,104 | $339,104 |
| 2022 | $137,081 | $180,000 | $0 | $317,081 | $317,081 |
| 2021 | $60,503 | $135,000 | $0 | $195,503 | $195,503 |
| 2020 | $118,266 | $100,000 | $0 | $218,266 | $218,266 |
| 2019 | $84,509 | $150,000 | $0 | $234,509 | $234,509 |
| 2018 | $84,814 | $130,000 | $0 | $214,814 | $214,814 |
| 2017 | $71,649 | $110,000 | $0 | $181,649 | $181,649 |
| 2016 | $72,905 | $90,000 | $0 | $162,905 | $162,905 |
| 2015 | $74,162 | $70,000 | $0 | $144,162 | $144,162 |
| 2014 | $75,420 | $55,000 | $0 | $130,420 | $130,420 |
| 2013 | $76,677 | $55,000 | $0 | $131,677 | $131,677 |
| 2012 | $77,933 | $60,000 | $0 | $137,933 | $137,933 |
| 2011 | $67,200 | $50,000 | $0 | $117,200 | $117,200 |
| 2010 | $79,359 | $50,000 | $0 | $129,359 | $129,359 |
| 2009 | $81,910 | $92,000 | $0 | $173,910 | $173,910 |
| 2008 | $83,451 | $98,000 | $0 | $181,451 | $181,451 |
| 2007 | $84,992 | $98,000 | $0 | $182,992 | $182,992 |
Deed and Sales History
| 1 | 11/01/1982 | QCD | Quit Claim Deed | HEATH, JAMES B | HEATH, SARA J | | | $0.00 | 22830 | 402981 |
| 2 | 07/01/1978 | OTHER | Other - Misc. Documents | Unknown | HEATH, JAMES B | | | $42,000.00 | 83269 | 336010 |
Payout Agreement
| No payout information available.. |