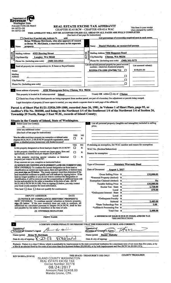
Property
Account |
| Property ID: | 342659 | Abbreviated Legal Description: | PATTONS HILLCREST LOT 6 BLK 4 |
| Geographic ID: | S7685-00-04006-0 | Agent Code: | |
| Type: | Real | | |
| Tax Area: | 110 - APPRAISER-OH Schl Dist, outside OH, improved & 1 acre or less | Land Use Code | 11 |
| Open Space: | N | DFL | N |
| Historic Property: | N | Remodel Property: | N |
| Multi-Family Redevelopment: | N | | |
| Township: | | Section: | |
| Range: | |
Location |
| Address: | 1354 ORCHARD LOOP OAK HARBOR, WA 98277 | Mapsco: | |
| Neighborhood: | 11cOH-swantown rd | Map ID: | 249 |
| Neighborhood CD: | 11cOHswntn |
Owner |
| Name: | BUTZ LIVING TRUST | Owner ID: | 282476 |
| Mailing Address: | 1354 ORCHARD LOOP OAK HARBOR, WA 98277 | % Ownership: | 100.0000000000% |
| | | Exemptions: | SNR/DSBL |
Taxes and Assessment Details
Values
| (+) Improvement Homesite Value: | + | $324,085 | |
| (+) Improvement Non-Homesite Value: | + | $0 | |
| (+) Land Homesite Value: | + | $210,000 | |
| (+) Land Non-Homesite Value: | + | $0 | |
| (+) Curr Use (HS): | + | $0 | $0 |
| (+) Curr Use (NHS): | + | $0 | $0 |
| | | -------------------------- | |
| (=) Market Value: | = | $534,085 | |
| (–) Productivity Loss: | – | $0 | |
| | | -------------------------- | |
| (=) Subtotal: | = | $534,085 | |
| (+) Senior Appraised Value: | + | $518,189 | |
| (+) Non-Senior Appraised Value: | + | $0 | |
| | | -------------------------- | |
| (=) Total Appraised Value: | = | $518,189 | |
| (–) Senior Exemption Loss: | – | $0 | |
| (–) Exemption Loss: | – | $0 | |
| | | -------------------------- | |
| (=) Taxable Value: | = | $518,189 | |
Taxing Jurisdiction
| Owner: | BUTZ LIVING TRUST | | |
| % Ownership: | 100.0000000000% | | |
| Total Value: | $534,085 | | |
| Tax Area: | 110 - APPRAISER-OH Schl Dist, outside OH, improved & 1 acre or less |
| CF | Conservation Futures | 0.0316035091 | $534,085 | $518,189 | $16.38 | | |
| CEM1 | Cemetery #1 | 0.0040320932 | $534,085 | $518,189 | $2.09 | | |
| FIRE2 | Fire & Rescue Dist #2 N Whidbey GEN | 0.5475949600 | $534,085 | $518,189 | $283.76 | | |
| HOBOND | Hospital BOND | 0.0000000000 | $534,085 | $0 | $0.00 | | |
| HOGEN | Hospital GEN | 0.3902502903 | $534,085 | $518,189 | $202.22 | | |
| CE | County Current Expense | 0.3708482477 | $534,085 | $518,189 | $192.17 | | |
| CR | County Roads | 0.4584763726 | $534,085 | $518,189 | $237.58 | | |
| ISLANDEMS | Hospital GEN (EMS) | 0.5000000000 | $534,085 | $518,189 | $259.09 | | |
| LIB | Library Sno-Isle GEN | 0.3153421757 | $534,085 | $518,189 | $163.41 | | |
| NWHIDPRMT | P & R N Whidbey GEN | 0.2004466701 | $534,085 | $518,189 | $103.87 | | |
| SCH201MO | School 201 Enrichment | 0.0000000000 | $534,085 | $0 | $0.00 | | |
| ST | State School | 1.3035497053 | $534,085 | $518,189 | $675.49 | | |
| ST2 | State School Part 2 | 0.0000000000 | $534,085 | $0 | $0.00 | | |
| | Total Tax Rate: | 4.1221440240 | | | | | |
| | | | | Taxes w/Current Exemptions: | $2,136.06 | | |
| | | | | Taxes w/o Exemptions: | $3,731.18 | | |
Improvement / Building
| Improvement #1: | RESIDENTIAL | State Code: | Y | 2350.0 sqft | Value: | $324,085 |
| Bathrooms: | 2 | Bedrooms: | 3 | | Ceiling: | DRY WALL SPRAYED | Cooling: | HEAT PUMP/CONV/V | | Exterior Wall/Cover: | WOOD SIDING | Floor Covering: | VINYL/HARDWOOD 20-80 | | Floor Structure: | WOOD W/SUBFLOOR | Foundation: | CONCRETE | | Interior Finish: | DRYWALL PAINT | Plumbing Fixture Cnt: | 10 | | Roof Slope: | 4" IN 12" | Roof Structure/Cover: | CJ ASPHALT |
|
| | Type | Description | Class CD | Sub Class CD | Year Built | Area |
| | BAS | BASE/MAIN FLOOR | 3 | 0 | 1958 | 1236.0 |
| | UB6 | BASEMENT UNFINISHED 6" | 3 | 0 | 1958 | 133.0 |
| | oPOL | POLE BARN | 3 | 0 | 1958 | 1176.0 |
| | DWN | DOWNSTAIRS LIVING AREA | 3 | 0 | 1958 | 1114.0 |
| | OWP | OPEN WOOD PORCH W/STEPS | 3 | 0 | 1958 | 320.0 |
| | OWP | OPEN WOOD PORCH W/STEPS | 3 | 0 | 1958 | 280.0 |
| | UTY | STORAGE/UTILITY | 3 | 0 | 1958 | 297.0 |
Sketch
Property Image
Land
| 1 | 15 | SQ (12001-21780) | 0.0000 | 0.00 | 0.00 | 0.00 | 1.00 | $210,000 | $0 |
Roll Value History
| 2026 | N/A | N/A | N/A | N/A | N/A |
| 2025 | $324,085 | $210,000 | $0 | $534,085 | $518,189 |
| 2024 | $328,189 | $190,000 | $0 | $518,189 | $518,189 |
| 2023 | $324,085 | $190,000 | $0 | $514,085 | $514,085 |
| 2022 | $299,391 | $180,000 | $0 | $479,391 | $479,391 |
| 2021 | $266,657 | $135,000 | $0 | $401,657 | $401,657 |
| 2020 | $261,330 | $100,000 | $0 | $361,330 | $361,330 |
| 2019 | $208,716 | $150,000 | $0 | $358,716 | $358,716 |
| 2018 | $209,316 | $130,000 | $0 | $339,316 | $339,316 |
| 2017 | $166,213 | $110,000 | $0 | $276,213 | $276,213 |
| 2016 | $168,611 | $70,000 | $0 | $238,611 | $238,611 |
| 2015 | $171,011 | $55,000 | $0 | $226,011 | $226,011 |
| 2014 | $173,411 | $55,000 | $0 | $228,411 | $228,411 |
| 2013 | $175,811 | $55,000 | $0 | $230,811 | $230,811 |
| 2012 | $181,178 | $60,000 | $0 | $241,178 | $241,178 |
| 2011 | $152,295 | $50,000 | $0 | $202,295 | $202,295 |
| 2010 | $136,263 | $50,000 | $0 | $186,263 | $186,263 |
| 2009 | $142,519 | $92,000 | $0 | $234,519 | $234,519 |
| 2008 | $144,781 | $98,000 | $0 | $242,781 | $242,781 |
| 2007 | $147,085 | $98,000 | $0 | $245,085 | $245,085 |
Deed and Sales History
| 1 | 10/17/2017 | QCD | Quit Claim Deed | BUTZ, DAVID | BUTZ LIVING TRUST | | | $0.00 | 31549 | 4432240 |
| 2 | 06/28/2017 | WD | Warranty Deed | VANGORDER, BENJAMIN | BUTZ, DAVID | | | $342,000.00 | 30168 | 4426162 |
| 3 | 08/07/2012 | WD | Warranty Deed | BARNEY, ALLEN L | VANGORDER, BENJAMIN | | | $215,000.00 | 8612 | 4321560 |
| 4 | 04/27/2010 | OTHER | Other - Misc. Documents | BARNEY, ALLEN L | BARNEY, ALLEN L | | | $0.00 | 81630 | 0 |
| 5 | 12/01/1992 | WD | Warranty Deed | TALMADGE, STEVEN J | BARNEY, ALLEN L | | | $119,500.00 | 24762 | 92023451 |
| 6 | 01/01/1900 | OTHER | Other - Misc. Documents | Unknown | TALMADGE, STEVEN J | | | $0.00 | 0 | 0 |
Payout Agreement
| No payout information available.. |