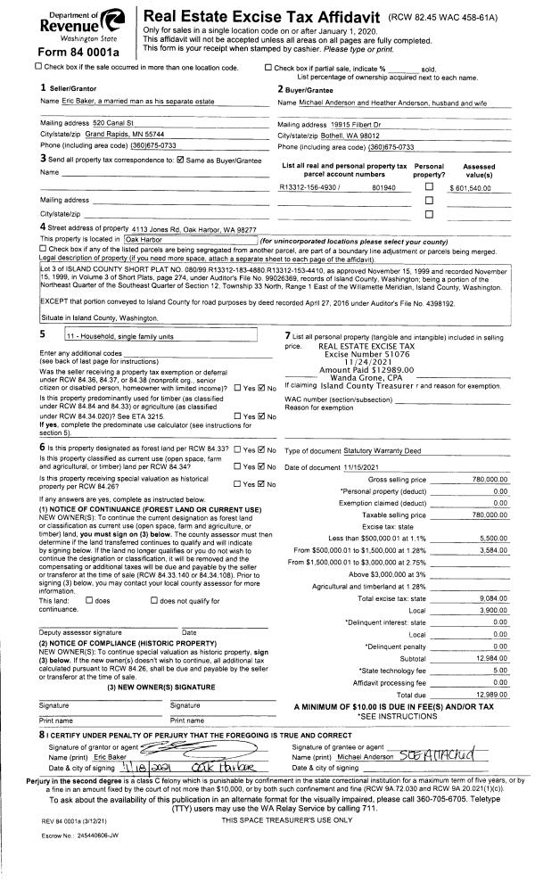
Property
Account |
| Property ID: | 342819 | Abbreviated Legal Description: | PATTONS HILLCREST LOT 2 BLK 5 |
| Geographic ID: | S7685-00-05002-0 | Agent Code: | |
| Type: | Real | | |
| Tax Area: | 110 - APPRAISER-OH Schl Dist, outside OH, improved & 1 acre or less | Land Use Code | 11 |
| Open Space: | N | DFL | N |
| Historic Property: | N | Remodel Property: | N |
| Multi-Family Redevelopment: | N | | |
| Township: | | Section: | |
| Range: | |
Location |
| Address: | 1377 ORCHARD LOOP OAK HARBOR, WA 98277 | Mapsco: | |
| Neighborhood: | Cycle 1 | Map ID: | 249 |
| Neighborhood CD: | 1 |
Owner |
| Name: | PESCHEL, PERCIE ANN | Owner ID: | 304535 |
| Mailing Address: | CATHERINE MARIE WEIR 1377 ORCHARD LOOP OAK HARBOR, WA 98277 | % Ownership: | 100.0000000000% |
| | | Exemptions: | SNR/DSBL |
Taxes and Assessment Details
Values
| (+) Improvement Homesite Value: | + | $99,922 | |
| (+) Improvement Non-Homesite Value: | + | $99,922 | |
| (+) Land Homesite Value: | + | $210,000 | |
| (+) Land Non-Homesite Value: | + | $0 | |
| (+) Curr Use (HS): | + | $0 | $0 |
| (+) Curr Use (NHS): | + | $0 | $0 |
| | | -------------------------- | |
| (=) Market Value: | = | $409,844 | |
| (–) Productivity Loss: | – | $0 | |
| | | -------------------------- | |
| (=) Subtotal: | = | $409,844 | |
| (+) Senior Appraised Value: | + | $188,072 | |
| (+) Non-Senior Appraised Value: | + | $99,922 | |
| | | -------------------------- | |
| (=) Total Appraised Value: | = | $287,994 | |
| (–) Senior Exemption Loss: | – | $112,843 | |
| (–) Exemption Loss: | – | $0 | |
| | | -------------------------- | |
| (=) Taxable Value: | = | $175,151 | |
Taxing Jurisdiction
| Owner: | PESCHEL, PERCIE ANN | | |
| % Ownership: | 100.0000000000% | | |
| Total Value: | $409,844 | | |
| Tax Area: | 110 - APPRAISER-OH Schl Dist, outside OH, improved & 1 acre or less |
| CF | Conservation Futures | 0.0316035091 | $409,844 | $175,151 | $5.54 | | |
| CEM1 | Cemetery #1 | 0.0040320932 | $409,844 | $175,151 | $0.71 | | |
| FIRE2 | Fire & Rescue Dist #2 N Whidbey GEN | 0.5475949600 | $409,844 | $175,151 | $95.91 | | |
| HOBOND | Hospital BOND | 0.0000000000 | $409,844 | $99,922 | $19.09 | | |
| HOGEN | Hospital GEN | 0.3902502903 | $409,844 | $175,151 | $68.35 | | |
| CE | County Current Expense | 0.3708482477 | $409,844 | $175,151 | $64.95 | | |
| CR | County Roads | 0.4584763726 | $409,844 | $175,151 | $80.30 | | |
| ISLANDEMS | Hospital GEN (EMS) | 0.5000000000 | $409,844 | $175,151 | $87.58 | | |
| LIB | Library Sno-Isle GEN | 0.3153421757 | $409,844 | $175,151 | $55.23 | | |
| NWHIDPRMT | P & R N Whidbey GEN | 0.2004466701 | $409,844 | $175,151 | $35.11 | | |
| SCH201MO | School 201 Enrichment | 0.0000000000 | $409,844 | $99,922 | $185.45 | | |
| ST | State School | 1.3035497053 | $409,844 | $175,151 | $228.32 | | |
| ST2 | State School Part 2 | 0.0000000000 | $409,844 | $99,922 | $81.63 | | |
| | Total Tax Rate: | 4.1221440240 | | | | | |
| | | | | Taxes w/Current Exemptions: | $1,008.17 | | |
| | | | | Taxes w/o Exemptions: | $2,863.20 | | |
Improvement / Building
| Improvement #1: | RESIDENTIAL | State Code: | Y | 1540.0 sqft | Value: | $199,844 |
| Bathrooms: | 2 | Bedrooms: | 3 | | Ceiling: | DRY WALL SPRAYED | Exterior Wall/Cover: | VINYL | | Floor Covering: | CARPET/VINYL 80-20 | Floor Structure: | WOOD W/SUBFLOOR | | Foundation: | CONCRETE | Heating: | FHA GAS | | Interior Finish: | DRYWALL PAINT | Plumbing Fixture Cnt: | 11 | | Roof Slope: | 4" IN 12" | Roof Structure/Cover: | CJ ASPHALT |
|
| | Type | Description | Class CD | Sub Class CD | Year Built | Area |
| | BAS | BASE/MAIN FLOOR | 3 | 0 | 1957 | 1540.0 |
| | OP1 | OPEN PORCH SLAB | 3 | 0 | 1957 | 320.0 |
| | AGR | ATTACHED GARAGE | 3 | 0 | 1957 | 520.0 |
| | UTY | STORAGE/UTILITY | 3 | 0 | 1957 | 54.0 |
Sketch
Property Image
Land
| 1 | 15 | SQ (12001-21780) | 0.0000 | 0.00 | 0.00 | 0.00 | 1.00 | $210,000 | $0 |
Roll Value History
| 2026 | N/A | N/A | N/A | N/A | N/A |
| 2025 | $199,844 | $210,000 | $0 | $409,844 | $175,151 |
| 2024 | $203,100 | $190,000 | $0 | $393,100 | $176,779 |
| 2023 | $203,100 | $190,000 | $0 | $393,100 | $176,779 |
| 2022 | $186,904 | $180,000 | $0 | $366,904 | $168,681 |
| 2021 | $165,133 | $135,000 | $0 | $300,133 | $157,795 |
| 2020 | $161,267 | $100,000 | $0 | $261,267 | $261,267 |
| 2019 | $115,709 | $150,000 | $0 | $265,709 | $246,144 |
| 2018 | $116,144 | $130,000 | $0 | $246,144 | $246,144 |
| 2017 | $103,272 | $110,000 | $0 | $213,272 | $213,272 |
| 2016 | $105,076 | $90,000 | $0 | $195,076 | $195,076 |
| 2015 | $106,881 | $70,000 | $0 | $176,881 | $176,881 |
| 2014 | $108,686 | $55,000 | $0 | $163,686 | $163,686 |
| 2013 | $110,491 | $55,000 | $0 | $165,491 | $165,491 |
| 2012 | $112,294 | $60,000 | $0 | $172,294 | $172,294 |
| 2011 | $105,428 | $50,000 | $0 | $155,428 | $155,428 |
| 2010 | $119,040 | $50,000 | $0 | $169,040 | $169,040 |
| 2009 | $124,472 | $92,000 | $0 | $216,472 | $216,472 |
| 2008 | $126,422 | $98,000 | $0 | $224,422 | $224,422 |
| 2007 | $128,372 | $98,000 | $0 | $226,372 | $226,372 |
Deed and Sales History
| 1 | 04/11/2021 | QCD | Quit Claim Deed | PESCHEL SR, RONALD G | PESCHEL, PERCIE ANN | | | $0.00 | 48076 | 4518124 |
| 2 | 03/08/2010 | QCD | Quit Claim Deed | PESCHEL SR, RONALD G | PESCHEL SR, RONALD G | | | $0.00 | 535 | 4269912 |
| 3 | 01/28/2009 | QCD | Quit Claim Deed | PESCHEL SR, RONALD G | PESCHEL SR, RONALD G | | | $0.00 | 90219 | 4243911 |
| 4 | 11/17/2008 | OTHER | Other - Misc. Documents | PESCHEL, RONALD G | PESCHEL SR, RONALD G | | | $0.00 | 81031 | 0 |
| 5 | 07/01/1988 | WD | Warranty Deed | LAFAYETTE, HARRY M | PESCHEL, RONALD G | | | $69,950.00 | 82395 | 88009066 |
| 6 | 01/01/1900 | OTHER | Other - Misc. Documents | Unknown | LAFAYETTE, HARRY M | | | $0.00 | 0 | 0 |
Payout Agreement
| No payout information available.. |