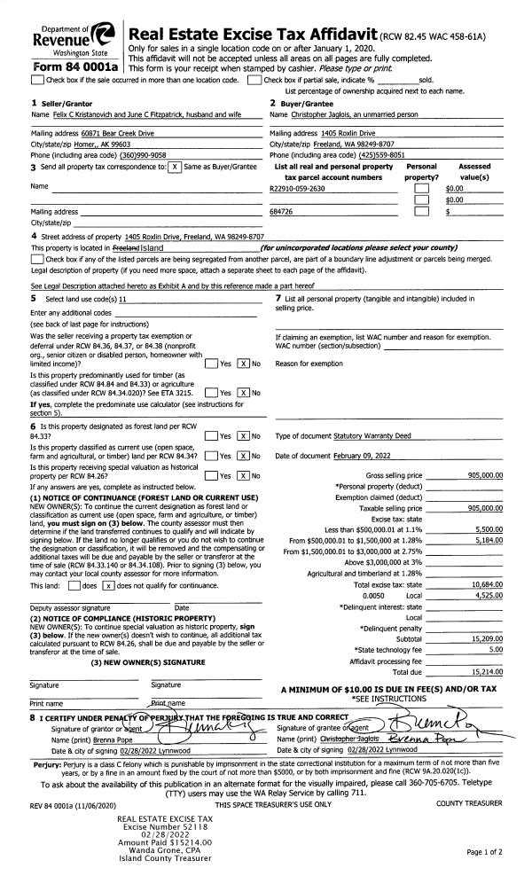
Property
Account |
| Property ID: | 34304 | Abbreviated Legal Description: | 32 - BG NE SW SW W728' TPB S228' W592' N228' TO NLN SW SW E TPB EX E152' |
| Geographic ID: | R13312-116-0230 | Agent Code: | |
| Type: | Real | | |
| Tax Area: | 112 - APPRAISER-OH Schl Dist, outside OH, improved, greater than 1 acre | Land Use Code | 11 |
| Open Space: | N | DFL | N |
| Historic Property: | N | Remodel Property: | N |
| Multi-Family Redevelopment: | N | | |
| Township: | 33 | Section: | 12 |
| Range: | R1 |
Location |
| Address: | 38085 SR20 OAK HARBOR, WA 98277 | Mapsco: | |
| Neighborhood: | Cycle 6 | Map ID: | 204 |
| Neighborhood CD: | 6 |
Owner |
| Name: | SUPINISKI, STEPHEN | Owner ID: | 301550 |
| Mailing Address: | VALARIE SUPINSKI 38085 SR 20 OAK HARBOR, WA 98277 | % Ownership: | 100.0000000000% |
| | | Exemptions: | |
Taxes and Assessment Details
Values
| (+) Improvement Homesite Value: | + | $0 | |
| (+) Improvement Non-Homesite Value: | + | $82,079 | |
| (+) Land Homesite Value: | + | $0 | |
| (+) Land Non-Homesite Value: | + | $210,000 | |
| (+) Curr Use (HS): | + | $0 | $0 |
| (+) Curr Use (NHS): | + | $0 | $0 |
| | | -------------------------- | |
| (=) Market Value: | = | $292,079 | |
| (–) Productivity Loss: | – | $0 | |
| | | -------------------------- | |
| (=) Subtotal: | = | $292,079 | |
| (+) Senior Appraised Value: | + | $0 | |
| (+) Non-Senior Appraised Value: | + | $292,079 | |
| | | -------------------------- | |
| (=) Total Appraised Value: | = | $292,079 | |
| (–) Senior Exemption Loss: | – | $0 | |
| (–) Exemption Loss: | – | $0 | |
| | | -------------------------- | |
| (=) Taxable Value: | = | $292,079 | |
Taxing Jurisdiction
| Owner: | SUPINISKI, STEPHEN | | |
| % Ownership: | 100.0000000000% | | |
| Total Value: | $292,079 | | |
| Tax Area: | 112 - APPRAISER-OH Schl Dist, outside OH, improved, greater than 1 acre |
| CF | Conservation Futures | 0.0316035091 | $292,079 | $292,079 | $9.23 | | |
| CEM1 | Cemetery #1 | 0.0040320932 | $292,079 | $292,079 | $1.18 | | |
| FIRE2 | Fire & Rescue Dist #2 N Whidbey GEN | 0.5475949600 | $292,079 | $292,079 | $159.94 | | |
| HOBOND | Hospital BOND | 0.1910887512 | $292,079 | $292,079 | $55.81 | | |
| HOGEN | Hospital GEN | 0.3902502903 | $292,079 | $292,079 | $113.98 | | |
| CE | County Current Expense | 0.3708482477 | $292,079 | $292,079 | $108.32 | | |
| CR | County Roads | 0.4584763726 | $292,079 | $292,079 | $133.91 | | |
| ISLANDEMS | Hospital GEN (EMS) | 0.5000000000 | $292,079 | $292,079 | $146.04 | | |
| LIB | Library Sno-Isle GEN | 0.3153421757 | $292,079 | $292,079 | $92.10 | | |
| NWHIDPRMT | P & R N Whidbey GEN | 0.2004466701 | $292,079 | $292,079 | $58.55 | | |
| SCH201MO | School 201 Enrichment | 1.8559231640 | $292,079 | $292,079 | $542.08 | | |
| ST | State School | 1.3035497053 | $292,079 | $292,079 | $380.74 | | |
| ST2 | State School Part 2 | 0.8169543533 | $292,079 | $292,079 | $238.62 | | |
| | Total Tax Rate: | 6.9861102925 | | | | | |
| | | | | Taxes w/Current Exemptions: | $2,040.50 | | |
| | | | | Taxes w/o Exemptions: | $2,040.50 | | |
Improvement / Building
| Improvement #1: | RESIDENTIAL | State Code: | Y | 424.0 sqft | Value: | $82,079 |
| Bathrooms: | 1 | Bedrooms: | 1 | | Ceiling: | DRYWALL PAINTED | Exterior Wall/Cover: | SHINGLE | | Floor Covering: | CARPET/VINYL 80-20 | Floor Structure: | WOOD W/SUBFLOOR | | Foundation: | WOOD BLOCKS | Heating: | WALL HEAT ELECTRIC | | Interior Finish: | DRYWALL PAINT | Plumbing Fixture Cnt: | 6 | | Roof Slope: | 12" IN 12" | Roof Structure/Cover: | CJ ASPHALT |
|
| | Type | Description | Class CD | Sub Class CD | Year Built | Area |
| | BAS | BASE/MAIN FLOOR | 2 | 0 | 1927 | 424.0 |
| | ENP | ENCLOSED PORCH | 2 | 0 | 1927 | 192.0 |
| | UTY | STORAGE/UTILITY | 2 | 0 | 1927 | 180.0 |
Sketch
Property Image
Land
| 1 | 17 | AC (01.01-02.00) | 1.3200 | 57499.20 | 0.00 | 0.00 | 1.00 | $210,000 | $0 |
Roll Value History
| 2026 | N/A | N/A | N/A | N/A | N/A |
| 2025 | $82,079 | $210,000 | $0 | $292,079 | $292,079 |
| 2024 | $83,230 | $210,000 | $0 | $293,230 | $293,230 |
| 2023 | $84,381 | $210,000 | $0 | $294,381 | $294,381 |
| 2022 | $55,068 | $200,000 | $0 | $255,068 | $255,068 |
| 2021 | $48,641 | $140,000 | $0 | $188,641 | $188,641 |
| 2020 | $47,285 | $130,000 | $0 | $177,285 | $177,285 |
| 2019 | $33,214 | $165,000 | $0 | $198,214 | $198,214 |
| 2018 | $33,339 | $150,000 | $0 | $183,339 | $183,339 |
| 2017 | $33,590 | $120,000 | $0 | $153,590 | $153,590 |
| 2016 | $12,330 | $100,000 | $0 | $112,330 | $112,330 |
| 2015 | $12,682 | $85,000 | $0 | $97,682 | $97,682 |
| 2014 | $13,034 | $46,750 | $0 | $59,784 | $59,784 |
| 2013 | $13,387 | $46,750 | $0 | $60,137 | $60,137 |
| 2012 | $13,739 | $46,750 | $0 | $60,489 | $60,489 |
| 2011 | $14,091 | $55,000 | $0 | $69,091 | $69,091 |
| 2010 | $0 | $55,000 | $0 | $55,000 | $55,000 |
| 2009 | $0 | $62,000 | $0 | $62,000 | $62,000 |
| 2008 | $0 | $62,000 | $0 | $62,000 | $62,000 |
| 2007 | $4 | $64,350 | $0 | $64,354 | $64,354 |
Deed and Sales History
| 1 | 05/03/2024 | EZ | Easement | SUPINISKI, STEPHEN | PUGET SOUND ENERGY | | | $1,135.00 | 60674 | 4574734 |
| 2 | 10/12/2021 | WD | Warranty Deed | MCGOOKEY, JEFFREY A | SUPINISKI, STEPHEN | | | $300,000.00 | 50469 | 4531436 |
| 3 | 11/13/2015 | WD | Warranty Deed | DONALDSON, PHILLIP T | MCGOOKEY, JEFFREY A | | | $117,000.00 | 22156 | 4389582 |
| 4 | 11/09/2006 | WD | Warranty Deed | GRIFFIN, RICHARD E | DONALDSON, PHILLIP T | | | $65,000.00 | 64829 | 4186770 |
| 5 | 04/01/1980 | WD | Warranty Deed | FELKER, DOUGLAS K | GRIFFIN, RICHARD E | | | $18,000.00 | 1430 | 368145 |
| 6 | 01/01/1900 | OTHER | Other - Misc. Documents | Unknown | FELKER, DOUGLAS K | | | $0.00 | 0 | 0 |
Payout Agreement
| No payout information available.. |