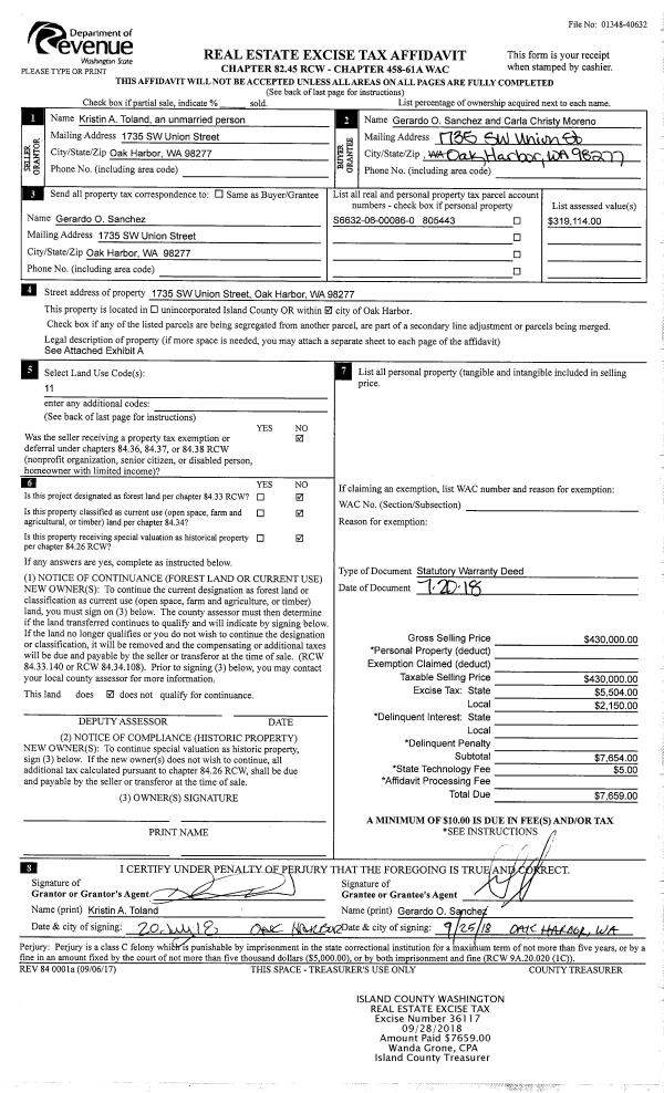
Property
Account |
| Property ID: | 343079 | Abbreviated Legal Description: | PATTONS HILLCREST LOT 2 BLK 7 |
| Geographic ID: | S7685-00-07002-0 | Agent Code: | |
| Type: | Real | | |
| Tax Area: | 110 - APPRAISER-OH Schl Dist, outside OH, improved & 1 acre or less | Land Use Code | 11 |
| Open Space: | N | DFL | N |
| Historic Property: | N | Remodel Property: | N |
| Multi-Family Redevelopment: | N | | |
| Township: | | Section: | |
| Range: | |
Location |
| Address: | 2463 MONTICELLO WAY OAK HARBOR, WA 98277 | Mapsco: | |
| Neighborhood: | Cycle 1 | Map ID: | 249 |
| Neighborhood CD: | 1 |
Owner |
| Name: | HERS & HIS LLC | Owner ID: | 316818 |
| Mailing Address: | 2410 W MARIE WAY OAK HARBOR, WA 98277 | % Ownership: | 100.0000000000% |
| | | Exemptions: | |
Taxes and Assessment Details
Values
| (+) Improvement Homesite Value: | + | $0 | |
| (+) Improvement Non-Homesite Value: | + | $260,869 | |
| (+) Land Homesite Value: | + | $0 | |
| (+) Land Non-Homesite Value: | + | $210,000 | |
| (+) Curr Use (HS): | + | $0 | $0 |
| (+) Curr Use (NHS): | + | $0 | $0 |
| | | -------------------------- | |
| (=) Market Value: | = | $470,869 | |
| (–) Productivity Loss: | – | $0 | |
| | | -------------------------- | |
| (=) Subtotal: | = | $470,869 | |
| (+) Senior Appraised Value: | + | $0 | |
| (+) Non-Senior Appraised Value: | + | $470,869 | |
| | | -------------------------- | |
| (=) Total Appraised Value: | = | $470,869 | |
| (–) Senior Exemption Loss: | – | $0 | |
| (–) Exemption Loss: | – | $0 | |
| | | -------------------------- | |
| (=) Taxable Value: | = | $470,869 | |
Taxing Jurisdiction
| Owner: | HERS & HIS LLC | | |
| % Ownership: | 100.0000000000% | | |
| Total Value: | $470,869 | | |
| Tax Area: | 110 - APPRAISER-OH Schl Dist, outside OH, improved & 1 acre or less |
| CF | Conservation Futures | 0.0316035091 | $470,869 | $470,869 | $14.88 | | |
| CEM1 | Cemetery #1 | 0.0040320932 | $470,869 | $470,869 | $1.90 | | |
| FIRE2 | Fire & Rescue Dist #2 N Whidbey GEN | 0.5475949600 | $470,869 | $470,869 | $257.85 | | |
| HOBOND | Hospital BOND | 0.1910887512 | $470,869 | $470,869 | $89.98 | | |
| HOGEN | Hospital GEN | 0.3902502903 | $470,869 | $470,869 | $183.76 | | |
| CE | County Current Expense | 0.3708482477 | $470,869 | $470,869 | $174.62 | | |
| CR | County Roads | 0.4584763726 | $470,869 | $470,869 | $215.88 | | |
| ISLANDEMS | Hospital GEN (EMS) | 0.5000000000 | $470,869 | $470,869 | $235.43 | | |
| LIB | Library Sno-Isle GEN | 0.3153421757 | $470,869 | $470,869 | $148.48 | | |
| NWHIDPRMT | P & R N Whidbey GEN | 0.2004466701 | $470,869 | $470,869 | $94.38 | | |
| SCH201MO | School 201 Enrichment | 1.8559231640 | $470,869 | $470,869 | $873.90 | | |
| ST | State School | 1.3035497053 | $470,869 | $470,869 | $613.80 | | |
| ST2 | State School Part 2 | 0.8169543533 | $470,869 | $470,869 | $384.68 | | |
| | Total Tax Rate: | 6.9861102925 | | | | | |
| | | | | Taxes w/Current Exemptions: | $3,289.54 | | |
| | | | | Taxes w/o Exemptions: | $3,289.54 | | |
Improvement / Building
| Improvement #1: | RESIDENTIAL | State Code: | Y | 1580.0 sqft | Value: | $260,869 |
| Bathrooms: | 2 | Bedrooms: | 3 | | Ceiling: | DRYWALL PAINTED | Exterior Wall/Cover: | WOOD SIDING | | Floor Covering: | CARPET/VINYL 60-40 | Floor Structure: | WOOD W/SUBFLOOR | | Foundation: | CONCRETE BLOCKS | Heating: | FHA OIL | | Interior Finish: | DRYWALL PAINT | Plumbing Fixture Cnt: | 10 | | Roof Slope: | 4" IN 12" | Roof Structure/Cover: | CJ ASPHALT |
|
| | Type | Description | Class CD | Sub Class CD | Year Built | Area |
| | BAS | BASE/MAIN FLOOR | 3 | 0 | 1957 | 1580.0 |
| | OP4 | OPEN PORCH W/CEILING-ROOF | 3 | 0 | 1957 | 20.0 |
| | AGR | ATTACHED GARAGE | 3 | 0 | 1957 | 460.0 |
Sketch
Property Image
Land
| 1 | 15 | SQ (12001-21780) | 0.0000 | 0.00 | 0.00 | 0.00 | 1.00 | $210,000 | $0 |
Roll Value History
| 2026 | N/A | N/A | N/A | N/A | N/A |
| 2025 | $260,869 | $210,000 | $0 | $470,869 | $470,869 |
| 2024 | $264,246 | $190,000 | $0 | $454,246 | $454,246 |
| 2023 | $260,869 | $190,000 | $0 | $450,869 | $450,869 |
| 2022 | $239,282 | $180,000 | $0 | $419,282 | $419,282 |
| 2021 | $210,717 | $135,000 | $0 | $345,717 | $345,717 |
| 2020 | $205,369 | $100,000 | $0 | $305,369 | $305,369 |
| 2019 | $149,476 | $150,000 | $0 | $299,476 | $299,476 |
| 2018 | $149,935 | $130,000 | $0 | $279,935 | $279,935 |
| 2017 | $150,855 | $110,000 | $0 | $260,855 | $260,855 |
| 2016 | $152,695 | $90,000 | $0 | $242,695 | $242,695 |
| 2015 | $154,535 | $70,000 | $0 | $224,535 | $224,535 |
| 2014 | $106,322 | $55,000 | $0 | $161,322 | $161,322 |
| 2013 | $108,094 | $55,000 | $0 | $163,094 | $163,094 |
| 2012 | $109,867 | $60,000 | $0 | $169,867 | $169,867 |
| 2011 | $114,400 | $50,000 | $0 | $164,400 | $164,400 |
| 2010 | $126,710 | $50,000 | $0 | $176,710 | $176,710 |
| 2009 | $130,598 | $92,000 | $0 | $222,598 | $222,598 |
| 2008 | $132,629 | $98,000 | $0 | $230,629 | $230,629 |
| 2007 | $134,729 | $98,000 | $0 | $232,729 | $232,729 |
Deed and Sales History
| 1 | 05/20/2025 | QCD | Quit Claim Deed | LYCKSELL, ROBERT | HERS & HIS LLC | | | $0.00 | 63672 | 4586550 |
| 2 | 05/20/2025 | PRD | Personal Representatives Deed | ROBERT LYCKSELL, PR | LYCKSELL, ROBERT | | | $0.00 | 63671 | 4586549 |
| 3 | 11/04/2014 | WD | Warranty Deed | LOCATELLI, GEORGE B / KAY W | LYCKSELL, THERESA R | | | $225,000.00 | 17470 | 4368081 |
| 4 | 04/06/2001 | QCD | Quit Claim Deed | LOCATELLI, GEORGE B | LOCATELLI, GEORGE B/KAY W | | | $0.00 | 11272 | 20029936 |
| 5 | 08/01/1994 | WD | Warranty Deed | MACDONALD, ERIC M | LOCATELLI, GEORGE B | | | $120,000.00 | 43208 | 94017274 |
| 6 | 06/01/1993 | QCD | Quit Claim Deed | MACDONALD, ERIC M | MACDONALD, ERIC M | | | $0.00 | 32198 | 93011331 |
| 7 | 06/01/1991 | WD | Warranty Deed | MEDINA, JUAN G | MACDONALD, ERIC M | | | $95,000.00 | 11979 | 91008430 |
| 8 | 06/01/1987 | WD | Warranty Deed | MIELKE, KENNETH R | MEDINA, JUAN G | | | $68,000.00 | 71713 | 87008018 |
| 9 | 01/01/1900 | OTHER | Other - Misc. Documents | Unknown | MIELKE, KENNETH R | | | $0.00 | 0 | 0 |
Payout Agreement
| No payout information available.. |