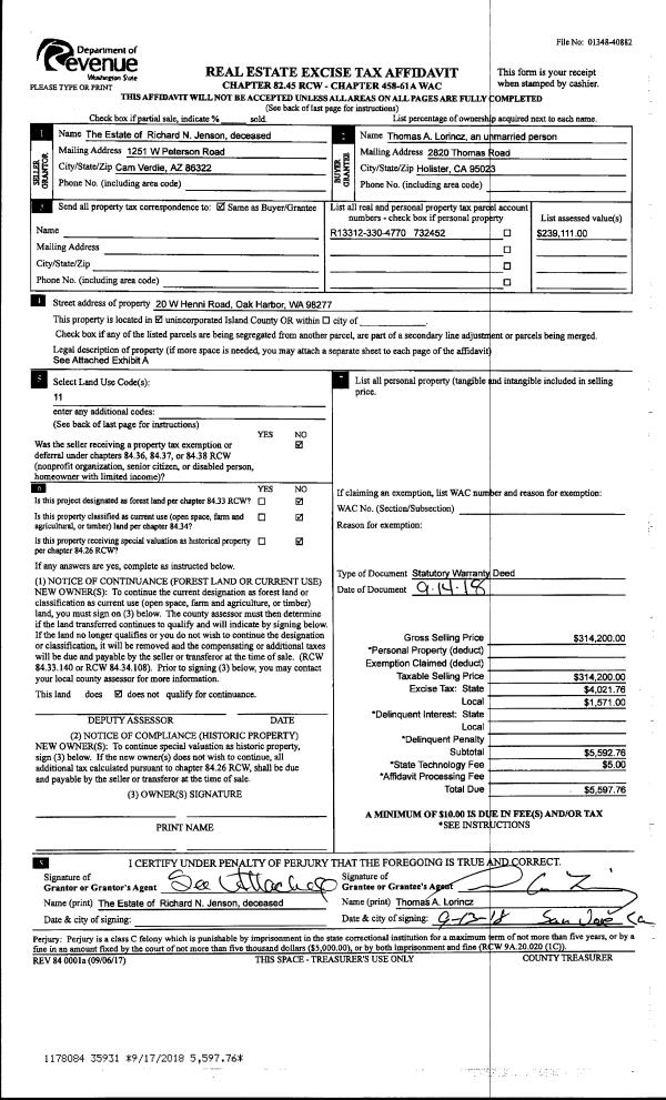
Property
Account |
| Property ID: | 343499 | Abbreviated Legal Description: | PATTONS HILLCREST LOT 17 BLK 9 |
| Geographic ID: | S7685-00-09017-0 | Agent Code: | |
| Type: | Real | | |
| Tax Area: | 110 - APPRAISER-OH Schl Dist, outside OH, improved & 1 acre or less | Land Use Code | 11 |
| Open Space: | N | DFL | N |
| Historic Property: | N | Remodel Property: | N |
| Multi-Family Redevelopment: | N | | |
| Township: | | Section: | |
| Range: | |
Location |
| Address: | 2480 CRESTVIEW PLACE OAK HARBOR, WA 98277 | Mapsco: | |
| Neighborhood: | Cycle 1 | Map ID: | 249 |
| Neighborhood CD: | 1 |
Owner |
| Name: | GAGNON, ROLAND E | Owner ID: | 298691 |
| Mailing Address: | ROSEMARIE C GAGNON & RANDY R GAGNON 2480 CRESTVEW PL OAK HARBOR, WA 98277 | % Ownership: | 100.0000000000% |
| | | Exemptions: | |
Taxes and Assessment Details
Values
| (+) Improvement Homesite Value: | + | $0 | |
| (+) Improvement Non-Homesite Value: | + | $299,833 | |
| (+) Land Homesite Value: | + | $0 | |
| (+) Land Non-Homesite Value: | + | $210,000 | |
| (+) Curr Use (HS): | + | $0 | $0 |
| (+) Curr Use (NHS): | + | $0 | $0 |
| | | -------------------------- | |
| (=) Market Value: | = | $509,833 | |
| (–) Productivity Loss: | – | $0 | |
| | | -------------------------- | |
| (=) Subtotal: | = | $509,833 | |
| (+) Senior Appraised Value: | + | $0 | |
| (+) Non-Senior Appraised Value: | + | $509,833 | |
| | | -------------------------- | |
| (=) Total Appraised Value: | = | $509,833 | |
| (–) Senior Exemption Loss: | – | $0 | |
| (–) Exemption Loss: | – | $0 | |
| | | -------------------------- | |
| (=) Taxable Value: | = | $509,833 | |
Taxing Jurisdiction
| Owner: | GAGNON, ROLAND E | | |
| % Ownership: | 100.0000000000% | | |
| Total Value: | $509,833 | | |
| Tax Area: | 110 - APPRAISER-OH Schl Dist, outside OH, improved & 1 acre or less |
| CF | Conservation Futures | 0.0316035091 | $509,833 | $509,833 | $16.11 | | |
| CEM1 | Cemetery #1 | 0.0040320932 | $509,833 | $509,833 | $2.06 | | |
| FIRE2 | Fire & Rescue Dist #2 N Whidbey GEN | 0.5475949600 | $509,833 | $509,833 | $279.18 | | |
| HOBOND | Hospital BOND | 0.1910887512 | $509,833 | $509,833 | $97.42 | | |
| HOGEN | Hospital GEN | 0.3902502903 | $509,833 | $509,833 | $198.96 | | |
| CE | County Current Expense | 0.3708482477 | $509,833 | $509,833 | $189.07 | | |
| CR | County Roads | 0.4584763726 | $509,833 | $509,833 | $233.75 | | |
| ISLANDEMS | Hospital GEN (EMS) | 0.5000000000 | $509,833 | $509,833 | $254.92 | | |
| LIB | Library Sno-Isle GEN | 0.3153421757 | $509,833 | $509,833 | $160.77 | | |
| NWHIDPRMT | P & R N Whidbey GEN | 0.2004466701 | $509,833 | $509,833 | $102.19 | | |
| SCH201MO | School 201 Enrichment | 1.8559231640 | $509,833 | $509,833 | $946.21 | | |
| ST | State School | 1.3035497053 | $509,833 | $509,833 | $664.59 | | |
| ST2 | State School Part 2 | 0.8169543533 | $509,833 | $509,833 | $416.51 | | |
| | Total Tax Rate: | 6.9861102925 | | | | | |
| | | | | Taxes w/Current Exemptions: | $3,561.74 | | |
| | | | | Taxes w/o Exemptions: | $3,561.74 | | |
Improvement / Building
| Improvement #1: | RESIDENTIAL | State Code: | Y | 2063.1 sqft | Value: | $299,833 |
| Bathrooms: | 2.25 | Bedrooms: | 4 | | Ceiling: | DRYWALL PAINTED | Exterior Wall/Cover: | WOOD SIDING | | Floor Covering: | CARPET/VINYL 60-40 | Floor Structure: | WOOD W/SUBFLOOR | | Foundation: | CONCRETE BLOCKS | Heating: | BASEBOARD ELECTRIC | | Interior Finish: | DRYWALL PAINT | Plumbing Fixture Cnt: | 11 | | Roof Slope: | 4" IN 12" | Roof Structure/Cover: | CJ ASPHALT |
|
| | Type | Description | Class CD | Sub Class CD | Year Built | Area |
| | BAS | BASE/MAIN FLOOR | 3 | 0 | 1958 | 2063.1 |
| | OP1 | OPEN PORCH SLAB | 3 | 0 | 1958 | 248.0 |
| | OP3 | OPEN PORCH W/ROOF | 3 | 0 | 1958 | 64.0 |
| | UTY | STORAGE/UTILITY | 3 | 0 | 1958 | 240.0 |
Sketch
Property Image
Land
| 1 | 16 | AC (00.51-01.00) | 0.5200 | 22651.20 | 0.00 | 0.00 | 1.00 | $210,000 | $0 |
Roll Value History
| 2026 | N/A | N/A | N/A | N/A | N/A |
| 2025 | $299,833 | $210,000 | $0 | $509,833 | $509,833 |
| 2024 | $310,074 | $190,000 | $0 | $500,074 | $500,074 |
| 2023 | $313,843 | $190,000 | $0 | $503,843 | $503,843 |
| 2022 | $287,609 | $180,000 | $0 | $467,609 | $467,609 |
| 2021 | $253,056 | $135,000 | $0 | $388,056 | $388,056 |
| 2020 | $223,800 | $100,000 | $0 | $323,800 | $323,800 |
| 2019 | $170,863 | $150,000 | $0 | $320,863 | $320,863 |
| 2018 | $160,536 | $130,000 | $0 | $290,536 | $290,536 |
| 2017 | $162,311 | $110,000 | $0 | $272,311 | $272,311 |
| 2016 | $164,420 | $90,000 | $0 | $254,420 | $254,420 |
| 2015 | $124,163 | $70,000 | $0 | $194,163 | $194,163 |
| 2014 | $126,266 | $55,000 | $0 | $181,266 | $181,266 |
| 2013 | $128,372 | $55,000 | $0 | $183,372 | $183,372 |
| 2012 | $130,476 | $60,000 | $0 | $190,476 | $190,476 |
| 2011 | $129,812 | $50,000 | $0 | $179,812 | $179,812 |
| 2010 | $141,785 | $50,000 | $0 | $191,785 | $191,785 |
| 2009 | $146,049 | $92,000 | $0 | $238,049 | $238,049 |
| 2008 | $148,121 | $98,000 | $0 | $246,121 | $246,121 |
| 2007 | $150,193 | $98,000 | $0 | $248,193 | $248,193 |
Deed and Sales History
| 1 | 03/04/2021 | WD | Warranty Deed | CRONE, JASON M | GAGNON, ROLAND E | | | $457,000.00 | 47541 | 4514950 |
| 2 | 07/12/2018 | WD | Warranty Deed | JEPSON, ANDREW | CRONE, JASON M | | | $339,000.00 | 35085 | 4448366 |
| 3 | 04/13/2016 | WD | Warranty Deed | BARTLETT, JOHN C | JEPSON, ANDREW | | | $275,000.00 | 23895 | 4397573 |
| 4 | 02/01/1998 | QCD | Quit Claim Deed | BARTLETT, JOHN C | BARTLETT, JOHN C | | | $0.00 | 80511 | 98002698 |
| 5 | 09/01/1996 | WD | Warranty Deed | BARTLETT, JOHN C | BARTLETT, JOHN C | | | $138,000.00 | 63323 | 96016300 |
| 6 | 09/01/1996 | ESTSEPPROP | Establish Separate Property | ATWOOD, RICHARD C | BARTLETT, JOHN C | | | $0.00 | 63322 | 96016299 |
| 7 | 01/01/1900 | OTHER | Other - Misc. Documents | Unknown | ATWOOD, RICHARD C | | | $0.00 | 0 | 0 |
Payout Agreement
| No payout information available.. |