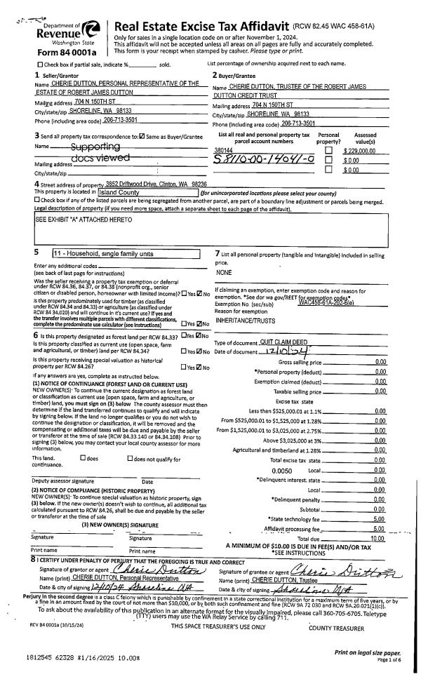
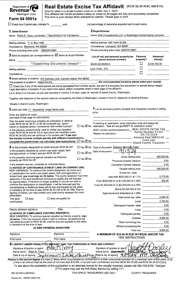
Property
Account |
| Property ID: | 343550 | Abbreviated Legal Description: | PATTONS HILLCREST #2 LOTS 66 & 67 BLK 10 |
| Geographic ID: | S7685-02-10066-0 | Agent Code: | |
| Type: | Real | | |
| Tax Area: | 110 - APPRAISER-OH Schl Dist, outside OH, improved & 1 acre or less | Land Use Code | 11 |
| Open Space: | N | DFL | N |
| Historic Property: | N | Remodel Property: | N |
| Multi-Family Redevelopment: | N | | |
| Township: | | Section: | |
| Range: | |
Location |
| Address: | 1245 HIGHLAND DR OAK HARBOR, WA 98277 | Mapsco: | |
| Neighborhood: | Cycle 1 | Map ID: | 249 |
| Neighborhood CD: | 1 |
Owner |
| Name: | STAATZ, SAMUEL DUMONT | Owner ID: | 313286 |
| Mailing Address: | MICHAEL EARL DEANGUERA 32650 SR 20 STE B102 PMB 342 OAK HARBOR, WA 98277 | % Ownership: | 100.0000000000% |
| | | Exemptions: | |
Taxes and Assessment Details
Values
| (+) Improvement Homesite Value: | + | $0 | |
| (+) Improvement Non-Homesite Value: | + | $316,054 | |
| (+) Land Homesite Value: | + | $0 | |
| (+) Land Non-Homesite Value: | + | $210,000 | |
| (+) Curr Use (HS): | + | $0 | $0 |
| (+) Curr Use (NHS): | + | $0 | $0 |
| | | -------------------------- | |
| (=) Market Value: | = | $526,054 | |
| (–) Productivity Loss: | – | $0 | |
| | | -------------------------- | |
| (=) Subtotal: | = | $526,054 | |
| (+) Senior Appraised Value: | + | $0 | |
| (+) Non-Senior Appraised Value: | + | $526,054 | |
| | | -------------------------- | |
| (=) Total Appraised Value: | = | $526,054 | |
| (–) Senior Exemption Loss: | – | $0 | |
| (–) Exemption Loss: | – | $0 | |
| | | -------------------------- | |
| (=) Taxable Value: | = | $526,054 | |
Taxing Jurisdiction
| Owner: | STAATZ, SAMUEL DUMONT | | |
| % Ownership: | 100.0000000000% | | |
| Total Value: | $526,054 | | |
| Tax Area: | 110 - APPRAISER-OH Schl Dist, outside OH, improved & 1 acre or less |
| CF | Conservation Futures | 0.0316035091 | $526,054 | $526,054 | $16.63 | | |
| CEM1 | Cemetery #1 | 0.0040320932 | $526,054 | $526,054 | $2.12 | | |
| FIRE2 | Fire & Rescue Dist #2 N Whidbey GEN | 0.5475949600 | $526,054 | $526,054 | $288.06 | | |
| HOBOND | Hospital BOND | 0.1910887512 | $526,054 | $526,054 | $100.52 | | |
| HOGEN | Hospital GEN | 0.3902502903 | $526,054 | $526,054 | $205.29 | | |
| CE | County Current Expense | 0.3708482477 | $526,054 | $526,054 | $195.09 | | |
| CR | County Roads | 0.4584763726 | $526,054 | $526,054 | $241.18 | | |
| ISLANDEMS | Hospital GEN (EMS) | 0.5000000000 | $526,054 | $526,054 | $263.03 | | |
| LIB | Library Sno-Isle GEN | 0.3153421757 | $526,054 | $526,054 | $165.89 | | |
| NWHIDPRMT | P & R N Whidbey GEN | 0.2004466701 | $526,054 | $526,054 | $105.45 | | |
| SCH201MO | School 201 Enrichment | 1.8559231640 | $526,054 | $526,054 | $976.32 | | |
| ST | State School | 1.3035497053 | $526,054 | $526,054 | $685.74 | | |
| ST2 | State School Part 2 | 0.8169543533 | $526,054 | $526,054 | $429.76 | | |
| | Total Tax Rate: | 6.9861102925 | | | | | |
| | | | | Taxes w/Current Exemptions: | $3,675.08 | | |
| | | | | Taxes w/o Exemptions: | $3,675.08 | | |
Improvement / Building
| Improvement #1: | RESIDENTIAL | State Code: | Y | 1786.0 sqft | Value: | $316,054 |
| Bathrooms: | 2.5 | Bedrooms: | 3 | | Ceiling: | DRY WALL SPRAYED | Exterior Wall/Cover: | CEMENT FIBER | | Floor Covering: | CARPET/VINYL 20-80 | Floor Structure: | WOOD W/SUBFLOOR | | Foundation: | CONCRETE | Heating: | BASEBOARD ELECTRIC | | Interior Finish: | DRYWALL PAINT | Plumbing Fixture Cnt: | 11 | | Roof Slope: | 4" IN 12" | Roof Structure/Cover: | CJ ASPHALT |
|
| | Type | Description | Class CD | Sub Class CD | Year Built | Area |
| | BAS | BASE/MAIN FLOOR | 3 | 0 | 1969 | 874.0 |
| | OP4 | OPEN PORCH W/CEILING-ROOF | 3 | 0 | 1969 | 50.0 |
| | AGR | ATTACHED GARAGE | 3 | 0 | 1969 | 586.0 |
| | UPS | UPPER STORY | 3 | 0 | 1969 | 912.0 |
Sketch
Property Image
Land
| 1 | 15 | SQ (12001-21780) | 0.0000 | 0.00 | 0.00 | 0.00 | 1.00 | $210,000 | $0 |
Roll Value History
| 2026 | N/A | N/A | N/A | N/A | N/A |
| 2025 | $316,054 | $210,000 | $0 | $526,054 | $526,054 |
| 2024 | $325,473 | $190,000 | $0 | $515,473 | $515,473 |
| 2023 | $125,246 | $80,000 | $0 | $205,246 | $205,246 |
| 2022 | $123,979 | $180,000 | $0 | $303,979 | $303,979 |
| 2021 | $109,956 | $135,000 | $0 | $244,956 | $244,956 |
| 2020 | $107,891 | $100,000 | $0 | $207,891 | $207,891 |
| 2019 | $80,206 | $150,000 | $0 | $230,206 | $230,206 |
| 2018 | $80,582 | $130,000 | $0 | $210,582 | $210,582 |
| 2017 | $101,940 | $110,000 | $0 | $211,940 | $211,940 |
| 2016 | $103,828 | $90,000 | $0 | $193,828 | $193,828 |
| 2015 | $105,715 | $70,000 | $0 | $175,715 | $175,715 |
| 2014 | $107,604 | $55,000 | $0 | $162,604 | $162,604 |
| 2013 | $109,491 | $55,000 | $0 | $164,491 | $164,491 |
| 2012 | $111,378 | $60,000 | $0 | $171,378 | $171,378 |
| 2011 | $113,268 | $75,000 | $0 | $188,268 | $188,268 |
| 2010 | $115,732 | $75,000 | $0 | $190,732 | $190,732 |
| 2009 | $121,201 | $138,000 | $0 | $259,201 | $259,201 |
| 2008 | $123,258 | $147,000 | $0 | $270,258 | $270,258 |
| 2007 | $125,315 | $147,000 | $0 | $272,315 | $272,315 |
Deed and Sales History
| 1 | 07/25/2024 | WD | Warranty Deed | ARCHER TTEE, DEREK WAYNE | STAATZ, SAMUEL DUMONT | | | $545,000.00 | 60747 | 4575076 |
| 2 | 07/25/2024 | QCD | Quit Claim Deed | DUBRIL ENTERPRISES, LLC | ARCHER TTEE, DEREK WAYNE | | | $0.00 | 60746 | 4575075 |
| 3 | 03/30/2022 | WD | Warranty Deed | DATI ENTERPRISE LLC | DUBRIL ENTERPRISES, LLC | | | $250,000.00 | 52626 | 4542926 |
| 4 | 03/17/2022 | WD | Warranty Deed | BARRON, SYLVESTER L JR / GAIL | DATI ENTERPRISE LLC | | | $150,000.00 | 52382 | 4541896 |
| 5 | 12/01/1992 | WD | Warranty Deed | PENFOLD, ROBERT R | BARRON, SYLVESTER L | | | $137,200.00 | 24860 | 92023954 |
| 6 | 01/01/1900 | OTHER | Other - Misc. Documents | Unknown | PENFOLD, ROBERT R | | | $0.00 | 0 | 0 |
Payout Agreement
| No payout information available.. |