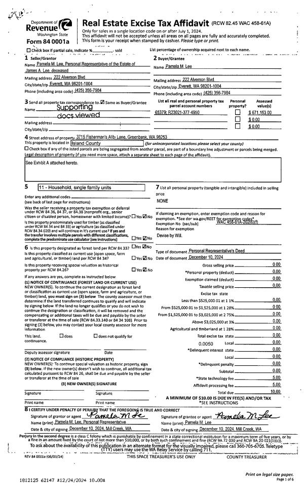
Property
Account |
| Property ID: | 343587 | Abbreviated Legal Description: | PATTONS HILLCREST #2 LOT 2 BLK 11 |
| Geographic ID: | S7685-02-11002-0 | Agent Code: | |
| Type: | Real | | |
| Tax Area: | 110 - APPRAISER-OH Schl Dist, outside OH, improved & 1 acre or less | Land Use Code | 11 |
| Open Space: | N | DFL | N |
| Historic Property: | N | Remodel Property: | N |
| Multi-Family Redevelopment: | N | | |
| Township: | | Section: | |
| Range: | |
Location |
| Address: | 2531 AIRLINE WAY OAK HARBOR, WA 98277 | Mapsco: | |
| Neighborhood: | Cycle 1 | Map ID: | 249 |
| Neighborhood CD: | 1 |
Owner |
| Name: | WRIGHT, RHONDA MARIE | Owner ID: | 293051 |
| Mailing Address: | 2531 AIRLINE WAY OAK HARBOR, WA 98277 | % Ownership: | 100.0000000000% |
| | | Exemptions: | |
Taxes and Assessment Details
Values
| (+) Improvement Homesite Value: | + | $0 | |
| (+) Improvement Non-Homesite Value: | + | $226,765 | |
| (+) Land Homesite Value: | + | $0 | |
| (+) Land Non-Homesite Value: | + | $210,000 | |
| (+) Curr Use (HS): | + | $0 | $0 |
| (+) Curr Use (NHS): | + | $0 | $0 |
| | | -------------------------- | |
| (=) Market Value: | = | $436,765 | |
| (–) Productivity Loss: | – | $0 | |
| | | -------------------------- | |
| (=) Subtotal: | = | $436,765 | |
| (+) Senior Appraised Value: | + | $0 | |
| (+) Non-Senior Appraised Value: | + | $436,765 | |
| | | -------------------------- | |
| (=) Total Appraised Value: | = | $436,765 | |
| (–) Senior Exemption Loss: | – | $0 | |
| (–) Exemption Loss: | – | $0 | |
| | | -------------------------- | |
| (=) Taxable Value: | = | $436,765 | |
Taxing Jurisdiction
| Owner: | WRIGHT, RHONDA MARIE | | |
| % Ownership: | 100.0000000000% | | |
| Total Value: | $436,765 | | |
| Tax Area: | 110 - APPRAISER-OH Schl Dist, outside OH, improved & 1 acre or less |
| CF | Conservation Futures | 0.0316035091 | $436,765 | $436,765 | $13.80 | | |
| CEM1 | Cemetery #1 | 0.0040320932 | $436,765 | $436,765 | $1.76 | | |
| FIRE2 | Fire & Rescue Dist #2 N Whidbey GEN | 0.5475949600 | $436,765 | $436,765 | $239.17 | | |
| HOBOND | Hospital BOND | 0.1910887512 | $436,765 | $436,765 | $83.46 | | |
| HOGEN | Hospital GEN | 0.3902502903 | $436,765 | $436,765 | $170.45 | | |
| CE | County Current Expense | 0.3708482477 | $436,765 | $436,765 | $161.97 | | |
| CR | County Roads | 0.4584763726 | $436,765 | $436,765 | $200.25 | | |
| ISLANDEMS | Hospital GEN (EMS) | 0.5000000000 | $436,765 | $436,765 | $218.38 | | |
| LIB | Library Sno-Isle GEN | 0.3153421757 | $436,765 | $436,765 | $137.73 | | |
| NWHIDPRMT | P & R N Whidbey GEN | 0.2004466701 | $436,765 | $436,765 | $87.55 | | |
| SCH201MO | School 201 Enrichment | 1.8559231640 | $436,765 | $436,765 | $810.60 | | |
| ST | State School | 1.3035497053 | $436,765 | $436,765 | $569.34 | | |
| ST2 | State School Part 2 | 0.8169543533 | $436,765 | $436,765 | $356.82 | | |
| | Total Tax Rate: | 6.9861102925 | | | | | |
| | | | | Taxes w/Current Exemptions: | $3,051.28 | | |
| | | | | Taxes w/o Exemptions: | $3,051.28 | | |
Improvement / Building
| Improvement #1: | RESIDENTIAL | State Code: | Y | 1552.0 sqft | Value: | $226,765 |
| Bathrooms: | 2 | Bedrooms: | 3 | | Ceiling: | DRYWALL PAINTED | Cooling: | HEAT PUMP/CONV/V | | Exterior Wall/Cover: | WOOD SIDING | Floor Covering: | HARDWOOD/CARP 20-80 | | Floor Structure: | WOOD W/SUBFLOOR | Foundation: | CONCRETE BLOCKS | | Interior Finish: | DRYWALL PAINT | Plumbing Fixture Cnt: | 9 | | Roof Slope: | 4" IN 12" | Roof Structure/Cover: | CJ ASPHALT |
|
| | Type | Description | Class CD | Sub Class CD | Year Built | Area |
| | BAS | BASE/MAIN FLOOR | 3 | 0 | 1954 | 1552.0 |
| | OP1 | OPEN PORCH SLAB | 3 | 0 | 1954 | 180.0 |
| | OP4 | OPEN PORCH W/CEILING-ROOF | 3 | 0 | 1954 | 24.0 |
| | UTY | STORAGE/UTILITY | 3 | 0 | 1954 | 81.0 |
Sketch
Property Image
Land
| 1 | 15 | SQ (12001-21780) | 0.0000 | 0.00 | 0.00 | 0.00 | 1.00 | $210,000 | $0 |
Roll Value History
| 2026 | N/A | N/A | N/A | N/A | N/A |
| 2025 | $226,765 | $210,000 | $0 | $436,765 | $436,765 |
| 2024 | $229,905 | $190,000 | $0 | $419,905 | $419,905 |
| 2023 | $223,628 | $190,000 | $0 | $413,628 | $413,628 |
| 2022 | $205,567 | $180,000 | $0 | $385,567 | $385,567 |
| 2021 | $181,228 | $135,000 | $0 | $316,228 | $316,228 |
| 2020 | $176,919 | $100,000 | $0 | $276,919 | $276,919 |
| 2019 | $129,393 | $150,000 | $0 | $279,393 | $279,393 |
| 2018 | $129,823 | $130,000 | $0 | $259,823 | $259,823 |
| 2017 | $129,985 | $110,000 | $0 | $239,985 | $239,985 |
| 2016 | $91,285 | $90,000 | $0 | $181,285 | $181,285 |
| 2015 | $92,858 | $70,000 | $0 | $162,858 | $162,858 |
| 2014 | $94,432 | $55,000 | $0 | $149,432 | $149,432 |
| 2013 | $96,007 | $55,000 | $0 | $151,007 | $151,007 |
| 2012 | $97,580 | $60,000 | $0 | $157,580 | $157,580 |
| 2011 | $81,331 | $50,000 | $0 | $131,331 | $131,331 |
| 2010 | $94,251 | $50,000 | $0 | $144,251 | $144,251 |
| 2009 | $98,652 | $92,000 | $0 | $190,652 | $190,652 |
| 2008 | $100,274 | $104,000 | $0 | $204,274 | $204,274 |
| 2007 | $100,312 | $104,000 | $0 | $204,312 | $204,312 |
Deed and Sales History
| 1 | 12/23/2019 | QCD | Quit Claim Deed | WRIGHT, RHONDA M | WRIGHT, RHONDA MARIE | | | $0.00 | 41645 | 4478378 |
| 2 | 01/09/2017 | ESTSEPPROP | Establish Separate Property | WRIGHT, RHONDA M | WRIGHT, RHONDA M | | | $0.00 | 28142 | 4417465 |
| 3 | 02/06/2017 | WD | Warranty Deed | SANDERS, JAMIE L | WRIGHT, RHONDA M | | | $249,900.00 | 28141 | 4417464 |
| 4 | 08/20/2003 | WD | Warranty Deed | PISTEY, JOSEPH L | SANDERS, JAMIE L | | | $130,000.00 | 33766 | 4072644 |
| 5 | 11/01/1996 | WD | Warranty Deed | KILLINGBECK, GENE E | PISTEY, JOSEPH L | | | $104,000.00 | 64155 | 96020220 |
| 6 | 05/01/1987 | WD | Warranty Deed | WENTZ, STEPHEN W | KILLINGBECK, GENE E | | | $62,000.00 | 71385 | 87006764 |
| 7 | 11/01/1982 | WD | Warranty Deed | QUINBY, GRIFFITH E | WENTZ, STEPHEN W | | | $56,000.00 | 22824 | 402967 |
| 8 | 08/01/1981 | WD | Warranty Deed | LONQUIST, AARON D | QUINBY, GRIFFITH E | | | $56,000.00 | 12510 | 386732 |
Payout Agreement
| No payout information available.. |