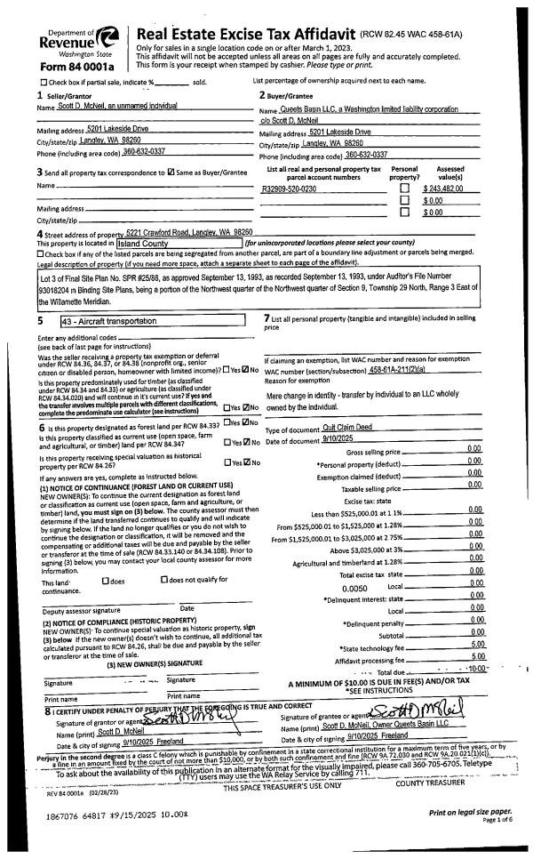
Property
Account |
| Property ID: | 343738 | Abbreviated Legal Description: | PATTONS HILLCREST VILLAGE 2 LOT 16 BLK 12 EX S20' |
| Geographic ID: | S7685-02-12016-0 | Agent Code: | |
| Type: | Real | | |
| Tax Area: | 110 - APPRAISER-OH Schl Dist, outside OH, improved & 1 acre or less | Land Use Code | 11 |
| Open Space: | N | DFL | N |
| Historic Property: | N | Remodel Property: | N |
| Multi-Family Redevelopment: | N | | |
| Township: | | Section: | |
| Range: | |
Location |
| Address: | 2578 RIDGEVIEW DR OAK HARBOR, WA 98277 | Mapsco: | |
| Neighborhood: | Cycle 1 | Map ID: | 249 |
| Neighborhood CD: | 1 |
Owner |
| Name: | CHERRY, DYLEN ANDREW | Owner ID: | 316387 |
| Mailing Address: | CASSIDY CHRISTINE SHAMSELDIN 2578 RIDGEVIEW DR OAK HARBOR, WA 98277 | % Ownership: | 100.0000000000% |
| | | Exemptions: | |
Taxes and Assessment Details
Values
| (+) Improvement Homesite Value: | + | $0 | |
| (+) Improvement Non-Homesite Value: | + | $195,654 | |
| (+) Land Homesite Value: | + | $0 | |
| (+) Land Non-Homesite Value: | + | $210,000 | |
| (+) Curr Use (HS): | + | $0 | $0 |
| (+) Curr Use (NHS): | + | $0 | $0 |
| | | -------------------------- | |
| (=) Market Value: | = | $405,654 | |
| (–) Productivity Loss: | – | $0 | |
| | | -------------------------- | |
| (=) Subtotal: | = | $405,654 | |
| (+) Senior Appraised Value: | + | $0 | |
| (+) Non-Senior Appraised Value: | + | $405,654 | |
| | | -------------------------- | |
| (=) Total Appraised Value: | = | $405,654 | |
| (–) Senior Exemption Loss: | – | $0 | |
| (–) Exemption Loss: | – | $0 | |
| | | -------------------------- | |
| (=) Taxable Value: | = | $405,654 | |
Taxing Jurisdiction
| Owner: | CHERRY, DYLEN ANDREW | | |
| % Ownership: | 100.0000000000% | | |
| Total Value: | $405,654 | | |
| Tax Area: | 110 - APPRAISER-OH Schl Dist, outside OH, improved & 1 acre or less |
| CF | Conservation Futures | 0.0316035091 | $405,654 | $405,654 | $12.82 | | |
| CEM1 | Cemetery #1 | 0.0040320932 | $405,654 | $405,654 | $1.64 | | |
| FIRE2 | Fire & Rescue Dist #2 N Whidbey GEN | 0.5475949600 | $405,654 | $405,654 | $222.13 | | |
| HOBOND | Hospital BOND | 0.1910887512 | $405,654 | $405,654 | $77.52 | | |
| HOGEN | Hospital GEN | 0.3902502903 | $405,654 | $405,654 | $158.31 | | |
| CE | County Current Expense | 0.3708482477 | $405,654 | $405,654 | $150.44 | | |
| CR | County Roads | 0.4584763726 | $405,654 | $405,654 | $185.98 | | |
| ISLANDEMS | Hospital GEN (EMS) | 0.5000000000 | $405,654 | $405,654 | $202.83 | | |
| LIB | Library Sno-Isle GEN | 0.3153421757 | $405,654 | $405,654 | $127.92 | | |
| NWHIDPRMT | P & R N Whidbey GEN | 0.2004466701 | $405,654 | $405,654 | $81.31 | | |
| SCH201MO | School 201 Enrichment | 1.8559231640 | $405,654 | $405,654 | $752.86 | | |
| ST | State School | 1.3035497053 | $405,654 | $405,654 | $528.79 | | |
| ST2 | State School Part 2 | 0.8169543533 | $405,654 | $405,654 | $331.40 | | |
| | Total Tax Rate: | 6.9861102925 | | | | | |
| | | | | Taxes w/Current Exemptions: | $2,833.95 | | |
| | | | | Taxes w/o Exemptions: | $2,833.95 | | |
Improvement / Building
| Improvement #1: | RESIDENTIAL | State Code: | Y | 1080.0 sqft | Value: | $195,654 |
| Bathrooms: | 1 | Bedrooms: | 2 | | Ceiling: | DRYWALL PAINTED | Exterior Wall/Cover: | WOOD SIDING | | Floor Covering: | CARPET/VINYL 80-20 | Floor Structure: | WOOD W/SUBFLOOR | | Foundation: | CONCRETE | Heating: | FHA OIL | | Interior Finish: | DRYWALL PAINT | Plumbing Fixture Cnt: | 6 | | Roof Slope: | 3" IN 12" | Roof Structure/Cover: | CJ ALUMINIUM HEAVY |
|
| | Type | Description | Class CD | Sub Class CD | Year Built | Area |
| | BAS | BASE/MAIN FLOOR | 3 | 0 | 1961 | 1080.0 |
| | AGR | ATTACHED GARAGE | 3 | 0 | 1961 | 276.0 |
| | OWP | OPEN WOOD PORCH W/STEPS | 3 | 0 | 1961 | 119.0 |
| | OWP | OPEN WOOD PORCH W/STEPS | 3 | 0 | 1961 | 240.0 |
Sketch
Property Image
Land
| 1 | 15 | SQ (12001-21780) | 0.0000 | 0.00 | 0.00 | 0.00 | 1.00 | $210,000 | $0 |
Roll Value History
| 2026 | N/A | N/A | N/A | N/A | N/A |
| 2025 | $195,654 | $210,000 | $0 | $405,654 | $405,654 |
| 2024 | $198,289 | $190,000 | $0 | $388,289 | $388,289 |
| 2023 | $184,001 | $190,000 | $0 | $374,001 | $374,001 |
| 2022 | $168,889 | $180,000 | $0 | $348,889 | $348,889 |
| 2021 | $148,842 | $135,000 | $0 | $283,842 | $283,842 |
| 2020 | $126,288 | $100,000 | $0 | $226,288 | $226,288 |
| 2019 | $90,615 | $150,000 | $0 | $240,615 | $240,615 |
| 2018 | $90,952 | $130,000 | $0 | $220,952 | $220,952 |
| 2017 | $76,803 | $110,000 | $0 | $186,803 | $186,803 |
| 2016 | $78,150 | $90,000 | $0 | $168,150 | $168,150 |
| 2015 | $79,498 | $70,000 | $0 | $149,498 | $149,498 |
| 2014 | $80,846 | $55,000 | $0 | $135,846 | $135,846 |
| 2013 | $82,193 | $55,000 | $0 | $137,193 | $137,193 |
| 2012 | $83,541 | $60,000 | $0 | $143,541 | $143,541 |
| 2011 | $78,150 | $50,000 | $0 | $128,150 | $128,150 |
| 2010 | $84,842 | $50,000 | $0 | $134,842 | $134,842 |
| 2009 | $88,808 | $92,000 | $0 | $180,808 | $180,808 |
| 2008 | $90,168 | $98,000 | $0 | $188,168 | $188,168 |
| 2007 | $91,527 | $98,000 | $0 | $189,527 | $189,527 |
Deed and Sales History
| 1 | 05/03/2025 | WD | Warranty Deed | RODDA, ERIC ANDREW | CHERRY, DYLEN ANDREW | | | $412,000.00 | 63383 | 4585420 |
| 2 | 04/09/2021 | WD | Warranty Deed | URTASUN, CHRISTINA MARIE | RODDA, ERIC ANDREW | | | $355,000.00 | 47729 | 4516291 |
| 3 | 12/07/2012 | DECREE | Divorce Decree/Legal Separation | URTASUN, FRANK A | URTASUN, CHRISTINA MARIE | | | $0.00 | 9733 | 4329095 |
| 4 | 08/24/2005 | WD | Warranty Deed | JACOBY, GEORGE B | URTASUN, FRANK A | | | $164,000.00 | 54577 | 4147458 |
| 5 | 03/17/2003 | WD | Warranty Deed | WEST, LEO F | JACOBY, GEORGE B | | | $112,500.00 | 31122 | 4051620 |
| 6 | 06/01/1990 | WD | Warranty Deed | FAIRCHILD, JOHN D | WEST, LEO F | | | $64,995.00 | 3373 | 90010981 |
| 7 | 06/01/1987 | WD | Warranty Deed | SMITH, LYLE C | FAIRCHILD, JOHN D | | | $54,680.00 | 71531 | 87007241 |
| 8 | 12/01/1983 | WD | Warranty Deed | NEEDLER, MARK S | SMITH, LYLE C | | | $55,000.00 | 40011 | 419486 |
| 9 | 04/01/1982 | OTHER | Other - Misc. Documents | NEEDLER, MARK S | NEEDLER, MARK S | | | $1.00 | 20864 | 395200 |
| 10 | 05/01/1980 | TRUSTEED | Trustee's Deed | KNIGHT, DEEN M | NEEDLER, MARK S | | | $51,800.00 | 1564 | 368504 |
| 11 | 01/01/1900 | OTHER | Other - Misc. Documents | Unknown | KNIGHT, DEEN M | | | $0.00 | 0 | 0 |
Payout Agreement
| No payout information available.. |