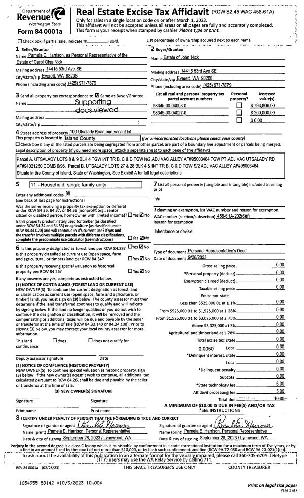
Property
Account |
| Property ID: | 343818 | Abbreviated Legal Description: | PATTONS HILLCREST #2 PT LOTS 20 & 21 BLK 12 DESC BG NECR LOT 20 S15*E83.39' TPB S22*W48.64' S89*E115' TO WLN OLYMPIC DR S77.38' WLY CUR/R 46.69' N72*W54.39 NWLY CUR/R 198.42'TP ON ELN RIDGEVIEW DR N89*W FR TPB S89*E128.40'TPB COMB 10/89 |
| Geographic ID: | S7685-02-12021-2 | Agent Code: | |
| Type: | Real | | |
| Tax Area: | 110 - APPRAISER-OH Schl Dist, outside OH, improved & 1 acre or less | Land Use Code | 11 |
| Open Space: | N | DFL | N |
| Historic Property: | N | Remodel Property: | N |
| Multi-Family Redevelopment: | N | | |
| Township: | | Section: | |
| Range: | |
Location |
| Address: | 2538 RIDGEVIEW DR OAK HARBOR, WA 98277 | Mapsco: | |
| Neighborhood: | Cycle 1 | Map ID: | 249 |
| Neighborhood CD: | 1 |
Owner |
| Name: | JEFFERSON, KIMBERLY S | Owner ID: | 185207 |
| Mailing Address: | MARIAFE H JEFFERSON 2538 RIDGEVIEW DR OAK HARBOR, WA 98277-8946 | % Ownership: | 100.0000000000% |
| | | Exemptions: | |
Taxes and Assessment Details
Values
| (+) Improvement Homesite Value: | + | $0 | |
| (+) Improvement Non-Homesite Value: | + | $308,525 | |
| (+) Land Homesite Value: | + | $0 | |
| (+) Land Non-Homesite Value: | + | $210,000 | |
| (+) Curr Use (HS): | + | $0 | $0 |
| (+) Curr Use (NHS): | + | $0 | $0 |
| | | -------------------------- | |
| (=) Market Value: | = | $518,525 | |
| (–) Productivity Loss: | – | $0 | |
| | | -------------------------- | |
| (=) Subtotal: | = | $518,525 | |
| (+) Senior Appraised Value: | + | $0 | |
| (+) Non-Senior Appraised Value: | + | $518,525 | |
| | | -------------------------- | |
| (=) Total Appraised Value: | = | $518,525 | |
| (–) Senior Exemption Loss: | – | $0 | |
| (–) Exemption Loss: | – | $0 | |
| | | -------------------------- | |
| (=) Taxable Value: | = | $518,525 | |
Taxing Jurisdiction
| Owner: | JEFFERSON, KIMBERLY S | | |
| % Ownership: | 100.0000000000% | | |
| Total Value: | $518,525 | | |
| Tax Area: | 110 - APPRAISER-OH Schl Dist, outside OH, improved & 1 acre or less |
| CF | Conservation Futures | 0.0316035091 | $518,525 | $518,525 | $16.39 | | |
| CEM1 | Cemetery #1 | 0.0040320932 | $518,525 | $518,525 | $2.09 | | |
| FIRE2 | Fire & Rescue Dist #2 N Whidbey GEN | 0.5475949600 | $518,525 | $518,525 | $283.94 | | |
| HOBOND | Hospital BOND | 0.1910887512 | $518,525 | $518,525 | $99.08 | | |
| HOGEN | Hospital GEN | 0.3902502903 | $518,525 | $518,525 | $202.35 | | |
| CE | County Current Expense | 0.3708482477 | $518,525 | $518,525 | $192.29 | | |
| CR | County Roads | 0.4584763726 | $518,525 | $518,525 | $237.73 | | |
| ISLANDEMS | Hospital GEN (EMS) | 0.5000000000 | $518,525 | $518,525 | $259.26 | | |
| LIB | Library Sno-Isle GEN | 0.3153421757 | $518,525 | $518,525 | $163.51 | | |
| NWHIDPRMT | P & R N Whidbey GEN | 0.2004466701 | $518,525 | $518,525 | $103.94 | | |
| SCH201MO | School 201 Enrichment | 1.8559231640 | $518,525 | $518,525 | $962.34 | | |
| ST | State School | 1.3035497053 | $518,525 | $518,525 | $675.92 | | |
| ST2 | State School Part 2 | 0.8169543533 | $518,525 | $518,525 | $423.61 | | |
| | Total Tax Rate: | 6.9861102925 | | | | | |
| | | | | Taxes w/Current Exemptions: | $3,622.45 | | |
| | | | | Taxes w/o Exemptions: | $3,622.45 | | |
Improvement / Building
| Improvement #1: | RESIDENTIAL | State Code: | Y | 2604.0 sqft | Value: | $308,525 |
| Bathrooms: | 3 | Bedrooms: | 3 | | Ceiling: | DRY WALL SPRAYED | Exterior Wall/Cover: | VINYL | | Floor Covering: | CARPET/VINYL 80-20 | Floor Structure: | WOOD W/SUBFLOOR | | Foundation: | CONCRETE BLOCKS | Heating: | BASEBOARD ELECTRIC | | Interior Finish: | DRYWALL PAINT | Plumbing Fixture Cnt: | 12 | | Roof Slope: | 4" IN 12" | Roof Structure/Cover: | CJ ASPHALT |
|
| | Type | Description | Class CD | Sub Class CD | Year Built | Area |
| | BAS | BASE/MAIN FLOOR | 3 | 0 | 1972 | 1524.0 |
| | OCP | OPEN CARPORT | 3 | 0 | 1972 | 288.0 |
| | UTY | STORAGE/UTILITY | 3 | 0 | 1972 | 48.0 |
| | OWP | OPEN WOOD PORCH W/STEPS | 3 | 0 | 1972 | 224.0 |
| | DWN | DOWNSTAIRS LIVING AREA | 3 | 0 | 1972 | 1080.0 |
| | DGR | DETACHED GARAGE | 3 | 0 | 1972 | 640.0 |
| | OWR | OPEN WOOD PORCH W/STEPS/ROOF | 3 | 0 | 1972 | 24.0 |
Sketch
Property Image
Land
| 1 | 15 | SQ (12001-21780) | 0.0000 | 0.00 | 0.00 | 0.00 | 1.00 | $210,000 | $0 |
Roll Value History
| 2026 | N/A | N/A | N/A | N/A | N/A |
| 2025 | $308,525 | $210,000 | $0 | $518,525 | $518,525 |
| 2024 | $319,595 | $190,000 | $0 | $509,595 | $509,595 |
| 2023 | $275,381 | $190,000 | $0 | $465,381 | $465,381 |
| 2022 | $253,069 | $180,000 | $0 | $433,069 | $433,069 |
| 2021 | $223,289 | $135,000 | $0 | $358,289 | $358,289 |
| 2020 | $218,410 | $100,000 | $0 | $318,410 | $318,410 |
| 2019 | $169,090 | $150,000 | $0 | $319,090 | $319,090 |
| 2018 | $169,682 | $130,000 | $0 | $299,682 | $299,682 |
| 2017 | $148,239 | $110,000 | $0 | $258,239 | $258,239 |
| 2016 | $150,472 | $90,000 | $0 | $240,472 | $240,472 |
| 2015 | $152,705 | $70,000 | $0 | $222,705 | $222,705 |
| 2014 | $154,938 | $55,000 | $0 | $209,938 | $209,938 |
| 2013 | $157,172 | $55,000 | $0 | $212,172 | $212,172 |
| 2012 | $159,406 | $60,000 | $0 | $219,406 | $219,406 |
| 2011 | $160,827 | $50,000 | $0 | $210,827 | $210,827 |
| 2010 | $170,307 | $50,000 | $0 | $220,307 | $220,307 |
| 2009 | $177,640 | $92,000 | $0 | $269,640 | $269,640 |
| 2008 | $180,601 | $98,000 | $0 | $278,601 | $278,601 |
| 2007 | $183,737 | $98,000 | $0 | $281,737 | $281,737 |
Deed and Sales History
| 1 | 03/03/2005 | WD | Warranty Deed | THOMAS, TRUDY A | JEFFERSON, KIMBERLY S | | | $225,000.00 | 50871 | 4127433 |
| 2 | 04/03/2001 | WD | Warranty Deed | LITTELL, CLARENCE O | THOMAS, TRUDY A | | | $173,400.00 | 11143 | 20029202 |
| 3 | 10/01/1989 | OTHER | Other - Misc. Documents | Unknown | LITTELL, CLARENCE O | | | $0.00 | 63340 | 89014322 |
Payout Agreement
| No payout information available.. |