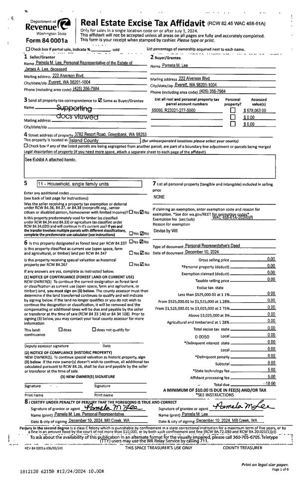
Property
Account |
| Property ID: | 344041 | Abbreviated Legal Description: | PATTONS HILLCREST #2 N21' OF LOT 43 & S62' OF LOT 44 BLK 14 |
| Geographic ID: | S7685-02-14043-1 | Agent Code: | |
| Type: | Real | | |
| Tax Area: | 110 - APPRAISER-OH Schl Dist, outside OH, improved & 1 acre or less | Land Use Code | 11 |
| Open Space: | N | DFL | N |
| Historic Property: | N | Remodel Property: | N |
| Multi-Family Redevelopment: | N | | |
| Township: | | Section: | |
| Range: | |
Location |
| Address: | 2534 AIRLINE WAY OAK HARBOR, WA 98277 | Mapsco: | |
| Neighborhood: | Cycle 1 | Map ID: | 249 |
| Neighborhood CD: | 1 |
Owner |
| Name: | CHURCH, LEON M | Owner ID: | 78896 |
| Mailing Address: | SUZANNE E CHURCH 2534 AIRLINE WAY OAK HARBOR, WA 98277-8939 | % Ownership: | 100.0000000000% |
| | | Exemptions: | |
Taxes and Assessment Details
Values
| (+) Improvement Homesite Value: | + | $0 | |
| (+) Improvement Non-Homesite Value: | + | $142,385 | |
| (+) Land Homesite Value: | + | $0 | |
| (+) Land Non-Homesite Value: | + | $215,000 | |
| (+) Curr Use (HS): | + | $0 | $0 |
| (+) Curr Use (NHS): | + | $0 | $0 |
| | | -------------------------- | |
| (=) Market Value: | = | $357,385 | |
| (–) Productivity Loss: | – | $0 | |
| | | -------------------------- | |
| (=) Subtotal: | = | $357,385 | |
| (+) Senior Appraised Value: | + | $0 | |
| (+) Non-Senior Appraised Value: | + | $357,385 | |
| | | -------------------------- | |
| (=) Total Appraised Value: | = | $357,385 | |
| (–) Senior Exemption Loss: | – | $0 | |
| (–) Exemption Loss: | – | $0 | |
| | | -------------------------- | |
| (=) Taxable Value: | = | $357,385 | |
Taxing Jurisdiction
| Owner: | CHURCH, LEON M | | |
| % Ownership: | 100.0000000000% | | |
| Total Value: | $357,385 | | |
| Tax Area: | 110 - APPRAISER-OH Schl Dist, outside OH, improved & 1 acre or less |
| CF | Conservation Futures | 0.0316035091 | $357,385 | $357,385 | $11.29 | | |
| CEM1 | Cemetery #1 | 0.0040320932 | $357,385 | $357,385 | $1.44 | | |
| FIRE2 | Fire & Rescue Dist #2 N Whidbey GEN | 0.5475949600 | $357,385 | $357,385 | $195.70 | | |
| HOBOND | Hospital BOND | 0.1910887512 | $357,385 | $357,385 | $68.29 | | |
| HOGEN | Hospital GEN | 0.3902502903 | $357,385 | $357,385 | $139.47 | | |
| CE | County Current Expense | 0.3708482477 | $357,385 | $357,385 | $132.54 | | |
| CR | County Roads | 0.4584763726 | $357,385 | $357,385 | $163.85 | | |
| ISLANDEMS | Hospital GEN (EMS) | 0.5000000000 | $357,385 | $357,385 | $178.69 | | |
| LIB | Library Sno-Isle GEN | 0.3153421757 | $357,385 | $357,385 | $112.70 | | |
| NWHIDPRMT | P & R N Whidbey GEN | 0.2004466701 | $357,385 | $357,385 | $71.64 | | |
| SCH201MO | School 201 Enrichment | 1.8559231640 | $357,385 | $357,385 | $663.28 | | |
| ST | State School | 1.3035497053 | $357,385 | $357,385 | $465.87 | | |
| ST2 | State School Part 2 | 0.8169543533 | $357,385 | $357,385 | $291.97 | | |
| | Total Tax Rate: | 6.9861102925 | | | | | |
| | | | | Taxes w/Current Exemptions: | $2,496.73 | | |
| | | | | Taxes w/o Exemptions: | $2,496.73 | | |
Improvement / Building
| Improvement #1: | RESIDENTIAL | State Code: | Y | 988.0 sqft | Value: | $142,385 |
| Bathrooms: | 1 | Bedrooms: | 3 | | Ceiling: | DRYWALL PAINTED | Cooling: | HEAT PUMP/CONV/V | | Exterior Wall/Cover: | WOOD SIDING | Floor Covering: | HARDWOOD/CARP 20-80 | | Floor Structure: | WOOD W/SUBFLOOR | Foundation: | CONCRETE | | Interior Finish: | DRYWALL PAINT | Plumbing Fixture Cnt: | 6 | | Roof Slope: | 4" IN 12" | Roof Structure/Cover: | CJ ASPHALT |
|
| | Type | Description | Class CD | Sub Class CD | Year Built | Area |
| | BAS | BASE/MAIN FLOOR | 3 | 0 | 1959 | 988.0 |
| | AGR | ATTACHED GARAGE | 3 | 0 | 1959 | 260.0 |
Sketch
Property Image
Land
| 1 | 14 | SQ (08001-12000) | 0.0000 | 0.00 | 0.00 | 0.00 | 1.00 | $215,000 | $0 |
Roll Value History
| 2026 | N/A | N/A | N/A | N/A | N/A |
| 2025 | $142,385 | $215,000 | $0 | $357,385 | $357,385 |
| 2024 | $144,535 | $195,000 | $0 | $339,535 | $339,535 |
| 2023 | $140,236 | $195,000 | $0 | $335,236 | $335,236 |
| 2022 | $128,932 | $185,000 | $0 | $313,932 | $313,932 |
| 2021 | $113,806 | $145,000 | $0 | $258,806 | $258,806 |
| 2020 | $108,061 | $125,000 | $0 | $233,061 | $233,061 |
| 2019 | $77,070 | $165,000 | $0 | $242,070 | $242,070 |
| 2018 | $77,356 | $135,000 | $0 | $212,356 | $212,356 |
| 2017 | $65,323 | $110,000 | $0 | $175,323 | $175,323 |
| 2016 | $66,469 | $90,000 | $0 | $156,469 | $156,469 |
| 2015 | $67,615 | $70,000 | $0 | $137,615 | $137,615 |
| 2014 | $68,761 | $55,000 | $0 | $123,761 | $123,761 |
| 2013 | $69,907 | $55,000 | $0 | $124,907 | $124,907 |
| 2012 | $71,053 | $60,000 | $0 | $131,053 | $131,053 |
| 2011 | $70,221 | $50,000 | $0 | $120,221 | $120,221 |
| 2010 | $76,384 | $50,000 | $0 | $126,384 | $126,384 |
| 2009 | $79,943 | $92,000 | $0 | $171,943 | $171,943 |
| 2008 | $81,201 | $98,000 | $0 | $179,201 | $179,201 |
| 2007 | $82,458 | $98,000 | $0 | $180,458 | $180,458 |
Deed and Sales History
| 1 | 11/28/2005 | WD | Warranty Deed | TILAND, BRIAN S | CHURCH, LEON M | | | $200,000.00 | 55981 | 4155682 |
| 2 | 11/01/2005 | WD | Warranty Deed | BOWERS, BERNADEEK K | TILAND, BRIAN S | | | $160,000.00 | 55629 | 4153355 |
| 3 | 07/06/2005 | TRUSTEED | Trustee's Deed | TUCKER, JAMES M | BOWERS, BERNADEEK K | | | $89,611.00 | 53402 | 4140797 |
| 4 | 02/18/1999 | QCD | Quit Claim Deed | TUCKER, JAMES M | TUCKER, JAMES M | | | $0.00 | 90707 | 99005160 |
| 5 | 06/01/1993 | DECREE | Divorce Decree/Legal Separation | TUCKER, JAMES M | TUCKER, JAMES M | | | $0.00 | 32083 | 93010743 |
| 6 | 06/01/1989 | WD | Warranty Deed | COBLE, JERRY W | TUCKER, JAMES M | | | $53,934.00 | 92120 | 89007237 |
| 7 | 05/01/1981 | WD | Warranty Deed | POSADAS, CARLO E | COBLE, JERRY W | | | $47,800.00 | 11501 | 383115 |
| 8 | 10/01/1978 | OTHER | Other - Misc. Documents | Unknown | POSADAS, CARLO E | | | $38,500.00 | 85312 | 342102 |
Payout Agreement
| No payout information available.. |