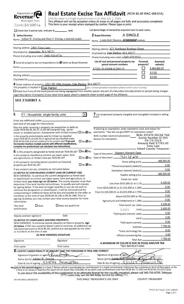
Property
Account |
| Property ID: | 344050 | Abbreviated Legal Description: | PATTONS HILLCREST #2 LOT 43 BLK 14 EX N21' |
| Geographic ID: | S7685-02-14043-2 | Agent Code: | |
| Type: | Real | | |
| Tax Area: | 110 - APPRAISER-OH Schl Dist, outside OH, improved & 1 acre or less | Land Use Code | 11 |
| Open Space: | N | DFL | N |
| Historic Property: | N | Remodel Property: | N |
| Multi-Family Redevelopment: | N | | |
| Township: | | Section: | |
| Range: | |
Location |
| Address: | 1280 HIGHLAND DR OAK HARBOR, WA 98277 | Mapsco: | |
| Neighborhood: | Cycle 1 | Map ID: | 249 |
| Neighborhood CD: | 1 |
Owner |
| Name: | SHANAHAN, KRYSTAL M | Owner ID: | 297340 |
| Mailing Address: | MATTHEW PASQUALE 1280 HIGHLAND DR OAK HARBOR, WA 98277 | % Ownership: | 100.0000000000% |
| | | Exemptions: | |
Taxes and Assessment Details
Values
| (+) Improvement Homesite Value: | + | $0 | |
| (+) Improvement Non-Homesite Value: | + | $178,421 | |
| (+) Land Homesite Value: | + | $0 | |
| (+) Land Non-Homesite Value: | + | $215,000 | |
| (+) Curr Use (HS): | + | $0 | $0 |
| (+) Curr Use (NHS): | + | $0 | $0 |
| | | -------------------------- | |
| (=) Market Value: | = | $393,421 | |
| (–) Productivity Loss: | – | $0 | |
| | | -------------------------- | |
| (=) Subtotal: | = | $393,421 | |
| (+) Senior Appraised Value: | + | $0 | |
| (+) Non-Senior Appraised Value: | + | $393,421 | |
| | | -------------------------- | |
| (=) Total Appraised Value: | = | $393,421 | |
| (–) Senior Exemption Loss: | – | $0 | |
| (–) Exemption Loss: | – | $0 | |
| | | -------------------------- | |
| (=) Taxable Value: | = | $393,421 | |
Taxing Jurisdiction
| Owner: | SHANAHAN, KRYSTAL M | | |
| % Ownership: | 100.0000000000% | | |
| Total Value: | $393,421 | | |
| Tax Area: | 110 - APPRAISER-OH Schl Dist, outside OH, improved & 1 acre or less |
| CF | Conservation Futures | 0.0316035091 | $393,421 | $393,421 | $12.43 | | |
| CEM1 | Cemetery #1 | 0.0040320932 | $393,421 | $393,421 | $1.59 | | |
| FIRE2 | Fire & Rescue Dist #2 N Whidbey GEN | 0.5475949600 | $393,421 | $393,421 | $215.44 | | |
| HOBOND | Hospital BOND | 0.1910887512 | $393,421 | $393,421 | $75.18 | | |
| HOGEN | Hospital GEN | 0.3902502903 | $393,421 | $393,421 | $153.53 | | |
| CE | County Current Expense | 0.3708482477 | $393,421 | $393,421 | $145.90 | | |
| CR | County Roads | 0.4584763726 | $393,421 | $393,421 | $180.37 | | |
| ISLANDEMS | Hospital GEN (EMS) | 0.5000000000 | $393,421 | $393,421 | $196.71 | | |
| LIB | Library Sno-Isle GEN | 0.3153421757 | $393,421 | $393,421 | $124.06 | | |
| NWHIDPRMT | P & R N Whidbey GEN | 0.2004466701 | $393,421 | $393,421 | $78.86 | | |
| SCH201MO | School 201 Enrichment | 1.8559231640 | $393,421 | $393,421 | $730.16 | | |
| ST | State School | 1.3035497053 | $393,421 | $393,421 | $512.84 | | |
| ST2 | State School Part 2 | 0.8169543533 | $393,421 | $393,421 | $321.41 | | |
| | Total Tax Rate: | 6.9861102925 | | | | | |
| | | | | Taxes w/Current Exemptions: | $2,748.48 | | |
| | | | | Taxes w/o Exemptions: | $2,748.48 | | |
Improvement / Building
| Improvement #1: | RESIDENTIAL | State Code: | Y | 988.0 sqft | Value: | $178,421 |
| Bathrooms: | 1 | Bedrooms: | 3 | | Ceiling: | DRYWALL PAINTED | Cooling: | HEAT PUMP/CONV/V | | Exterior Wall/Cover: | VINYL | Floor Covering: | VINYL 100% | | Floor Structure: | WOOD W/SUBFLOOR | Foundation: | CONCRETE | | Interior Finish: | DRYWALL PAINT | Plumbing Fixture Cnt: | 6 | | Roof Slope: | 4" IN 12" | Roof Structure/Cover: | CJ ASPHALT |
|
| | Type | Description | Class CD | Sub Class CD | Year Built | Area |
| | BAS | BASE/MAIN FLOOR | 3 | 0 | 1959 | 988.0 |
| | AGR | ATTACHED GARAGE | 3 | 0 | 1959 | 260.0 |
| | OWR | OPEN WOOD PORCH W/STEPS/ROOF | 3 | 0 | 1959 | 192.0 |
Sketch
Property Image
Land
| 1 | 14 | SQ (08001-12000) | 0.0000 | 0.00 | 0.00 | 0.00 | 1.00 | $215,000 | $0 |
Roll Value History
| 2026 | N/A | N/A | N/A | N/A | N/A |
| 2025 | $178,421 | $215,000 | $0 | $393,421 | $393,421 |
| 2024 | $180,731 | $195,000 | $0 | $375,731 | $375,731 |
| 2023 | $174,854 | $195,000 | $0 | $369,854 | $369,854 |
| 2022 | $160,434 | $185,000 | $0 | $345,434 | $345,434 |
| 2021 | $141,397 | $145,000 | $0 | $286,397 | $286,397 |
| 2020 | $121,244 | $125,000 | $0 | $246,244 | $246,244 |
| 2019 | $86,816 | $165,000 | $0 | $251,816 | $251,816 |
| 2018 | $81,573 | $135,000 | $0 | $216,573 | $216,573 |
| 2017 | $67,123 | $110,000 | $0 | $177,123 | $177,123 |
| 2016 | $68,279 | $90,000 | $0 | $158,279 | $158,279 |
| 2015 | $69,435 | $70,000 | $0 | $139,435 | $139,435 |
| 2014 | $70,590 | $55,000 | $0 | $125,590 | $125,590 |
| 2013 | $71,747 | $55,000 | $0 | $126,747 | $126,747 |
| 2012 | $72,903 | $60,000 | $0 | $132,903 | $132,903 |
| 2011 | $68,034 | $50,000 | $0 | $118,034 | $118,034 |
| 2010 | $75,039 | $50,000 | $0 | $125,039 | $125,039 |
| 2009 | $78,601 | $92,000 | $0 | $170,601 | $170,601 |
| 2008 | $79,936 | $98,000 | $0 | $177,936 | $177,936 |
| 2007 | $81,290 | $98,000 | $0 | $179,290 | $179,290 |
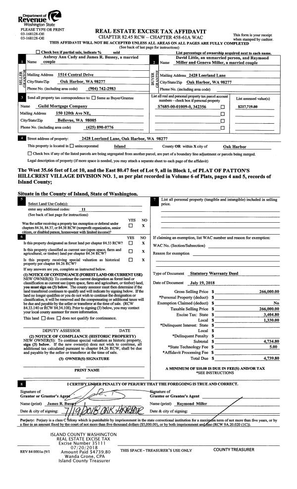
Deed and Sales History
| 1 | 12/16/2020 | WD | Warranty Deed | ZAHIRNIAK, ERIN DANIELLE | SHANAHAN, KRYSTAL M | | | $326,000.00 | 46148 | 4505432 |
| 2 | 06/27/2018 | WD | Warranty Deed | WILLIS, JOHN H | ZAHIRNIAK, ERIN DANIELLE | | | $248,750.00 | 34727 | 4446982 |
| 3 | 03/01/1989 | WD | Warranty Deed | OWNER, ROGER C | WILLIS, JOHN H | | | $51,000.00 | 91171 | 89004089 |
| 4 | 09/01/1988 | WD | Warranty Deed | PORT, TOWNSEND P | OWNER, ROGER C | | | $48,000.00 | 83132 | 88011605 |
| 5 | 06/01/1985 | WD | Warranty Deed | WHITE, WILLIAM D | PORT, TOWNSEND P | | | $0.00 | 51481 | 85005988 |
| 6 | 06/01/1985 | WD | Warranty Deed | MASSEY, WILLIAM L | WHITE, WILLIAM D | | | $52,000.00 | 51482 | 85005989 |
| 7 | 10/01/1984 | QCD | Quit Claim Deed | MASSEY, WILLIAM L | MASSEY, WILLIAM L | | | $0.00 | 42970 | 84004250 |
| 8 | 02/01/1984 | WD | Warranty Deed | HEARTHSIDE, HOMES, I | MASSEY, WILLIAM L | | | $42,000.00 | 40514 | 421541 |
| 9 | 01/01/1984 | WD | Warranty Deed | CUDMORE, JANICE K | HEARTHSIDE, HOMES, I | | | $39,978.00 | 40216 | 420293 |
| 10 | 01/01/1979 | OTHER | Other - Misc. Documents | Unknown | CUDMORE, JANICE K | | | $0.00 | 90423 | 346617 |
Payout Agreement
| No payout information available.. |