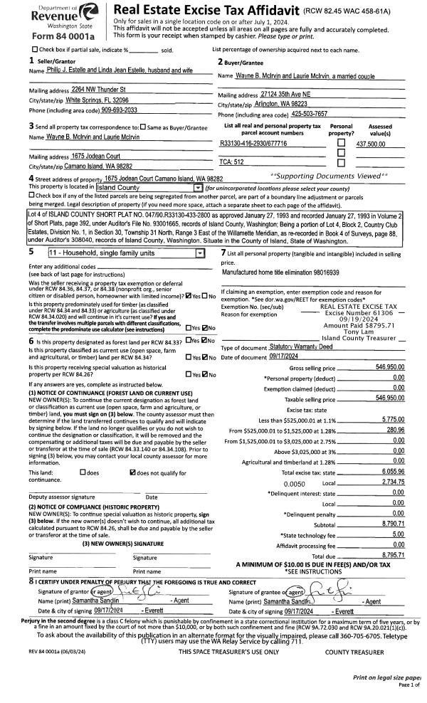
Property
Account |
| Property ID: | 344087 | Abbreviated Legal Description: | PATTONS HILLCREST #2 LOT 46 EX N20' BLK 14 |
| Geographic ID: | S7685-02-14046-0 | Agent Code: | |
| Type: | Real | | |
| Tax Area: | 110 - APPRAISER-OH Schl Dist, outside OH, improved & 1 acre or less | Land Use Code | 11 |
| Open Space: | N | DFL | N |
| Historic Property: | N | Remodel Property: | N |
| Multi-Family Redevelopment: | N | | |
| Township: | | Section: | |
| Range: | |
Location |
| Address: | 2550 AIRLINE WAY OAK HARBOR, WA 98277 | Mapsco: | |
| Neighborhood: | Cycle 1 | Map ID: | 249 |
| Neighborhood CD: | 1 |
Owner |
| Name: | LINDELL JR, GEOFFREY | Owner ID: | 297747 |
| Mailing Address: | 2550 AIRLINE WAY OAK HARBOR, WA 98277 | % Ownership: | 100.0000000000% |
| | | Exemptions: | |
Taxes and Assessment Details
Values
| (+) Improvement Homesite Value: | + | $0 | |
| (+) Improvement Non-Homesite Value: | + | $173,837 | |
| (+) Land Homesite Value: | + | $0 | |
| (+) Land Non-Homesite Value: | + | $210,000 | |
| (+) Curr Use (HS): | + | $0 | $0 |
| (+) Curr Use (NHS): | + | $0 | $0 |
| | | -------------------------- | |
| (=) Market Value: | = | $383,837 | |
| (–) Productivity Loss: | – | $0 | |
| | | -------------------------- | |
| (=) Subtotal: | = | $383,837 | |
| (+) Senior Appraised Value: | + | $0 | |
| (+) Non-Senior Appraised Value: | + | $383,837 | |
| | | -------------------------- | |
| (=) Total Appraised Value: | = | $383,837 | |
| (–) Senior Exemption Loss: | – | $0 | |
| (–) Exemption Loss: | – | $0 | |
| | | -------------------------- | |
| (=) Taxable Value: | = | $383,837 | |
Taxing Jurisdiction
| Owner: | LINDELL JR, GEOFFREY | | |
| % Ownership: | 100.0000000000% | | |
| Total Value: | $383,837 | | |
| Tax Area: | 110 - APPRAISER-OH Schl Dist, outside OH, improved & 1 acre or less |
| CF | Conservation Futures | 0.0316035091 | $383,837 | $383,837 | $12.13 | | |
| CEM1 | Cemetery #1 | 0.0040320932 | $383,837 | $383,837 | $1.55 | | |
| FIRE2 | Fire & Rescue Dist #2 N Whidbey GEN | 0.5475949600 | $383,837 | $383,837 | $210.19 | | |
| HOBOND | Hospital BOND | 0.1910887512 | $383,837 | $383,837 | $73.35 | | |
| HOGEN | Hospital GEN | 0.3902502903 | $383,837 | $383,837 | $149.79 | | |
| CE | County Current Expense | 0.3708482477 | $383,837 | $383,837 | $142.35 | | |
| CR | County Roads | 0.4584763726 | $383,837 | $383,837 | $175.98 | | |
| ISLANDEMS | Hospital GEN (EMS) | 0.5000000000 | $383,837 | $383,837 | $191.92 | | |
| LIB | Library Sno-Isle GEN | 0.3153421757 | $383,837 | $383,837 | $121.04 | | |
| NWHIDPRMT | P & R N Whidbey GEN | 0.2004466701 | $383,837 | $383,837 | $76.94 | | |
| SCH201MO | School 201 Enrichment | 1.8559231640 | $383,837 | $383,837 | $712.37 | | |
| ST | State School | 1.3035497053 | $383,837 | $383,837 | $500.35 | | |
| ST2 | State School Part 2 | 0.8169543533 | $383,837 | $383,837 | $313.58 | | |
| | Total Tax Rate: | 6.9861102925 | | | | | |
| | | | | Taxes w/Current Exemptions: | $2,681.54 | | |
| | | | | Taxes w/o Exemptions: | $2,681.54 | | |
Improvement / Building
| Improvement #1: | RESIDENTIAL | State Code: | Y | 1368.0 sqft | Value: | $173,837 |
| Bathrooms: | 1 | Bedrooms: | 3 | | Ceiling: | DRYWALL PAINTED | Cooling: | HEAT PUMP/CONV/V | | Exterior Wall/Cover: | CEMENT FIBER | Floor Covering: | CARPET/VINYL 80-20 | | Floor Structure: | WOOD W/SUBFLOOR | Foundation: | CONCRETE | | Interior Finish: | DRYWALL PAINT | Plumbing Fixture Cnt: | 6 | | Roof Slope: | 4" IN 12" | Roof Structure/Cover: | CJ ASPHALT |
|
Sketch
Property Image
Land
| 1 | 14 | SQ (08001-12000) | 0.0000 | 0.00 | 0.00 | 0.00 | 1.00 | $210,000 | $0 |
Roll Value History
| 2026 | N/A | N/A | N/A | N/A | N/A |
| 2025 | $173,837 | $210,000 | $0 | $383,837 | $383,837 |
| 2024 | $176,347 | $190,000 | $0 | $366,347 | $366,347 |
| 2023 | $148,402 | $190,000 | $0 | $338,402 | $338,402 |
| 2022 | $136,648 | $180,000 | $0 | $316,648 | $316,648 |
| 2021 | $120,800 | $135,000 | $0 | $255,800 | $255,800 |
| 2020 | $116,257 | $100,000 | $0 | $216,257 | $216,257 |
| 2019 | $84,622 | $150,000 | $0 | $234,622 | $234,622 |
| 2018 | $84,957 | $130,000 | $0 | $214,957 | $214,957 |
| 2017 | $76,260 | $110,000 | $0 | $186,260 | $186,260 |
| 2016 | $77,598 | $90,000 | $0 | $167,598 | $167,598 |
| 2015 | $78,936 | $70,000 | $0 | $148,936 | $148,936 |
| 2014 | $80,274 | $55,000 | $0 | $135,274 | $135,274 |
| 2013 | $81,612 | $55,000 | $0 | $136,612 | $136,612 |
| 2012 | $82,950 | $60,000 | $0 | $142,950 | $142,950 |
| 2011 | $77,050 | $50,000 | $0 | $127,050 | $127,050 |
| 2010 | $83,633 | $50,000 | $0 | $133,633 | $133,633 |
| 2009 | $87,605 | $92,000 | $0 | $179,605 | $179,605 |
| 2008 | $89,002 | $98,000 | $0 | $187,002 | $187,002 |
| 2007 | $90,399 | $98,000 | $0 | $188,399 | $188,399 |
Deed and Sales History
| 1 | 01/13/2021 | WD | Warranty Deed | KELLAM TRUSTEE, DOROTHY L | LINDELL JR, GEOFFREY | | | $335,000.00 | 46581 | 4508226 |
| 2 | 09/29/2017 | SPWARDEED | Special Warranty Deed | KELLAM, DOROTHY | KELLAM TRUSTEE, DOROTHY L | | | $0.00 | 31357 | 4431330 |
| 3 | 01/01/1900 | QCD | Quit Claim Deed | Unknown | KELLAM, DOROTHY | | | $0.00 | 0 | 0 |
Payout Agreement
| No payout information available.. |